← Hyndburn Borough Council

Status

Pending House extension
Received
Not recorded
New homes
0

Full proposal

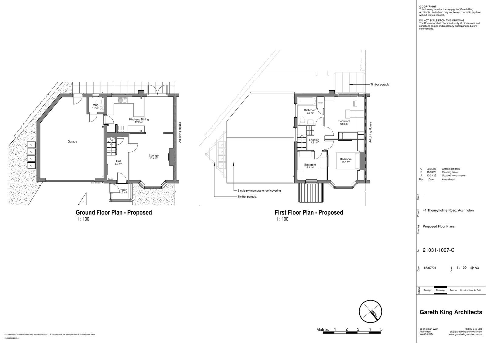
41 Thorneyholme Road, Accrington, Lancashire, BB5 6BD | Full Planning Application | Householder: Single storey side extension to provide garage and associated landscaping following the demolition of existing single storey lean-to | Application No: 11/25/0129 | Decided: 05 June 2025

Documents

21031 Design and Access Statement
Background Papers
Not yet archived · Original link
21031-1002-A Existing Floor Plans
CAD Drawing
Not yet archived · Original link
21031-1003-A Existing Elevations
CAD Drawing
Not yet archived · Original link
21031-1008-C Proposed Elevations
CAD Drawing
Not yet archived · Original link
Application Form Redacted
Redacted Application Form
Not yet archived · Original link
Constraints 11-25-0129
Background Papers
Not yet archived · Original link
DECNFUL_FINAL
Decision notice
Not yet archived · Original link
Environmental Protection
Statutory Consultee Response
Not yet archived · Original link
Officers Report
Officer's Report - final
Not yet archived · Original link

Have your say

Your comment matters. Councils must consider every representation that raises material planning considerations.

Write a comment