← Hyndburn Borough Council

Status

Pending New housing
Received
Not recorded
New homes
1

Summary

Demolition of existing dwelling and erection of replacement self-build eco-home with detached garage.

Full proposal

Martholme Farm Bungalow, Martholme Lane, Great Harwood, Lancashire, BB6 7UJ | Full Planning Application | Full: Demolition of the existing dwelling & detached garage and erection of a replacement self-build eco-home with detached garage | Application No: 11/25/0166 | Registered : 23 April 2025

Documents

11A PROPOSED ELEVATIONS - HOUSE
CAD Drawing
Not yet archived · Original link
12A PROPOSED ELEVATIONS - GARAGE
CAD Drawing
Not yet archived · Original link
Application Form Redacted
Redacted Application Form
Not yet archived · Original link
Bat Survey Report and Method Statement
Background paper needing redaction
Not yet archived · Original link
Constraints 11 25 0166
Background Papers
Not yet archived · Original link
Design and Access Statement
Background Papers
Not yet archived · Original link
Draft Unilateral Undertaking
Legal
Not yet archived · Original link
Ecology
Statutory Consultee Response
Not yet archived · Original link
Environmental Protection
Statutory Consultee Response
Not yet archived · Original link
EXISTING ELEVATIONS
CAD Drawing
Not yet archived · Original link
EXISTING FIRST FLOOR PLAN
CAD Drawing
Not yet archived · Original link
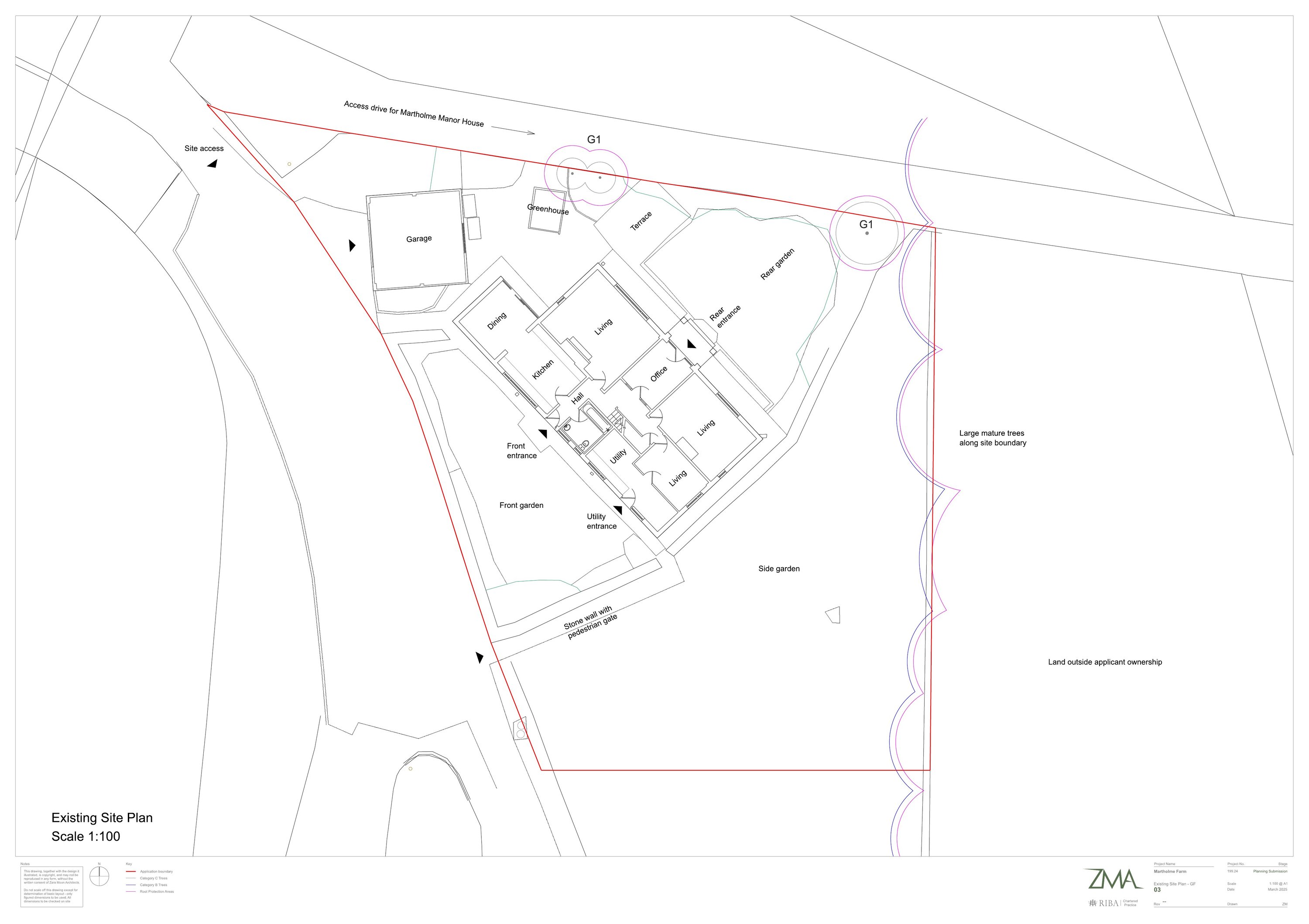
EXISTING GROUND FLOOR PLAN
CAD Drawing
Not yet archived · Original link
CAD Drawing
Archived · Original link
CAD Drawing
Archived · Original link
Flood Risk Assessment
Background Papers
Not yet archived · Original link
FRDS - FRA - REV A - Martholme Farm, Great Harwood
Background Papers
Not yet archived · Original link
HBC Ecology
Statutory Consultee Response
Not yet archived · Original link
Heritage Statement
Background Papers
Not yet archived · Original link
LCC Highways
Statutory Consultee Response
Not yet archived · Original link
LLFA
Statutory Consultee Response
Not yet archived · Original link
LOCATION PLAN
CAD Drawing
Not yet archived · Original link
Martholme Farm - Sequential Test
Background Papers
Not yet archived · Original link
Martholme Farm, Great Harwood, CMRA e-doc
Background paper needing redaction
Not yet archived · Original link
Planning History 11 25 0166
Background Papers
Not yet archived · Original link
Planning Statement
Background Papers
Not yet archived · Original link
Proforma for self-build redacted
Background Papers
Not yet archived · Original link
PROPOSED ELEVATIONS GARAGE Spsd by 12A rcvd 26/02/2026
CAD Drawing
Not yet archived · Original link
PROPOSED ELEVATIONS HOUSE Spsd by 11a rcvd 26/02/2026
CAD Drawing
Not yet archived · Original link
PROPOSED FIRST FLOOR PLAN
CAD Drawing
Not yet archived · Original link
PROPOSED GROUND FLOOR PLAN
CAD Drawing
Not yet archived · Original link
CAD Drawing
Archived · Original link
CAD Drawing
Archived · Original link
The Coal Authority
Statutory Consultee Response
Not yet archived · Original link
The Coal Authority
Statutory Consultee Response
Not yet archived · Original link
Tree Survey
Background Papers
Not yet archived · Original link
United Utilities
Statutory Consultee Response
Not yet archived · Original link

Have your say

Your comment matters. Councils must consider every representation that raises material planning considerations.

Write a comment