← Hyndburn Borough Council

Status

Pending House extension
Received
Not recorded
New homes
0

Summary

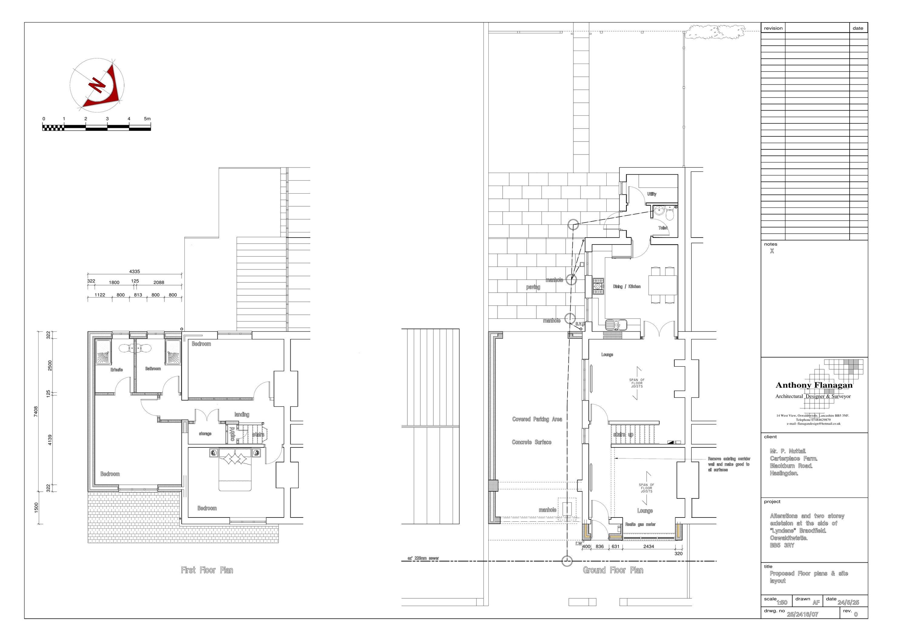
Two storey side extension and new roof to existing single storey rear extensions at Lyndene.

Full proposal

Lyndene, Broadfield, Oswaldtwistle, Lancashire BB5 3RY | Full Planning Application | Householder: Two storey extension at side of "Lyndene" Broadfield Oswaldtwistle and new roof to existing single storey extensions at rear | Application No: 11/25/0246 | Decided: 22 September 2025

Documents

2416 - 3 - Existing Floor Plans & Site Layout
CAD Drawing
Not yet archived · Original link
2416 - 8 - Existing & Proposed Elevations
CAD Drawing
Not yet archived · Original link
Application Form
Redacted Application Form
Not yet archived · Original link
Cadent Gas
Statutory Consultee Response
Not yet archived · Original link
Constraints
Background Papers
Not yet archived · Original link
Decision Notice
Decision notice
Not yet archived · Original link
History
Background Papers
Not yet archived · Original link
LCC Highways
Statutory Consultee Response
Not yet archived · Original link
Location Plan
OS Extract
Not yet archived · Original link
Officers Report
Officer's Report - final
Not yet archived · Original link

Have your say

Your comment matters. Councils must consider every representation that raises material planning considerations.

Write a comment