← Hyndburn Borough Council

Status

Pending Demolition
Received
Not recorded
New homes
0

Full proposal

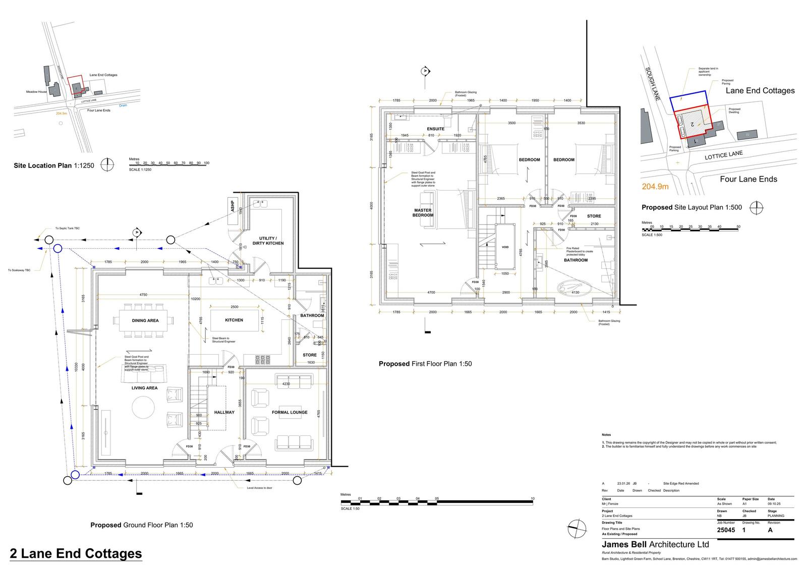
Lane End Cottages, Sough Lane, Guide, Lancashire, BB1 2LR | Full Planning Application | Full: Retrospective permission for demolition of existing dwellinghouse and Replacement with new 3 storey dwellinghouse' | Application No: 11/25/0460 | Registered : 17 November 2025

Documents

102 001 Existing Floor Plans
CAD Drawing
Not yet archived · Original link
25045 2 Proposed Plan and Elevations
CAD Drawing
Not yet archived · Original link
25045 4 Existing Elevations
CAD Drawing
Not yet archived · Original link
Application Form Redacted
Redacted Application Form
Not yet archived · Original link
Client Letter to Council
Correspondence
Not yet archived · Original link
Constraints 11-25-0460
Background Papers
Not yet archived · Original link
Design and Access Planning and Green Belt Statement
Background Papers
Not yet archived · Original link
ECOLOGY
Statutory Consultee Response
Not yet archived · Original link
HBC Ecology
Statutory Consultee Response
Not yet archived · Original link
LCC Highways
Statutory Consultee Response
Not yet archived · Original link
Planning History 11-25-0460
Background Papers
Not yet archived · Original link
Proforma for schemes that are self or custom build
Background paper needing redaction
Not yet archived · Original link

Have your say

Your comment matters. Councils must consider every representation that raises material planning considerations.

Write a comment