← Hyndburn Borough Council

Status

Pending Change of use
Received
Not recorded
New homes
8

Full proposal

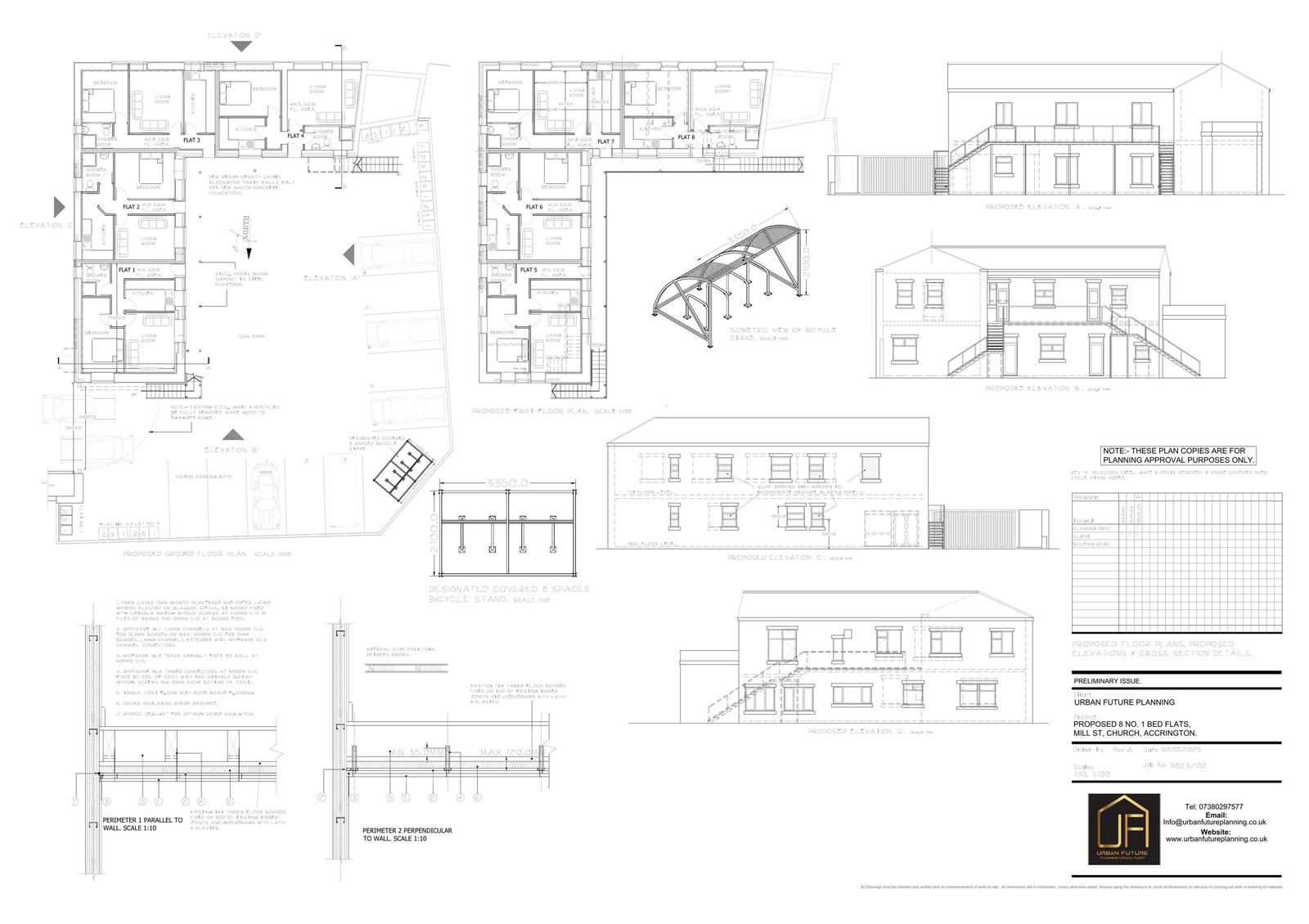
Church Bridge House, Church, Lancashire, BB5 4EJ | Full Planning Application | Full: Change of use to 8 flats (Class C3) | Application No: 11/25/0463 | Registered : 17 November 2025

Documents

Appendix 1
Background Papers
Not yet archived · Original link
Appendix 2A
Background Papers
Not yet archived · Original link
Appendix 2B
Background Papers
Not yet archived · Original link
Application Form Redacted
Redacted Application Form
Not yet archived · Original link
Constraints 11-25-0463
Background Papers
Not yet archived · Original link
Desk Study
Background Papers
Not yet archived · Original link
Environment Agency
Statutory Consultee Response
Not yet archived · Original link
Existing Floor plans,Existing Cross Sections and Existing Elevations PLAN 01 A1-1
CAD Drawing
Not yet archived · Original link
LCC Highways
Statutory consultee response to be redacted
Not yet archived · Original link
Local Lead Flood Authority
Statutory Consultee Response
Not yet archived · Original link
Location Plan
OS Extract
Not yet archived · Original link
MILL ST LOC PLAN -1
OS Extract
Not yet archived · Original link
MMC HBC Environmental Health
Statutory Consultee Response
Not yet archived · Original link
Planning Design and Access
Background Papers
Not yet archived · Original link

Have your say

Your comment matters. Councils must consider every representation that raises material planning considerations.

Write a comment