← Hyndburn Borough Council

Status

Pending House extension
Received
Not recorded
New homes
0

Full proposal

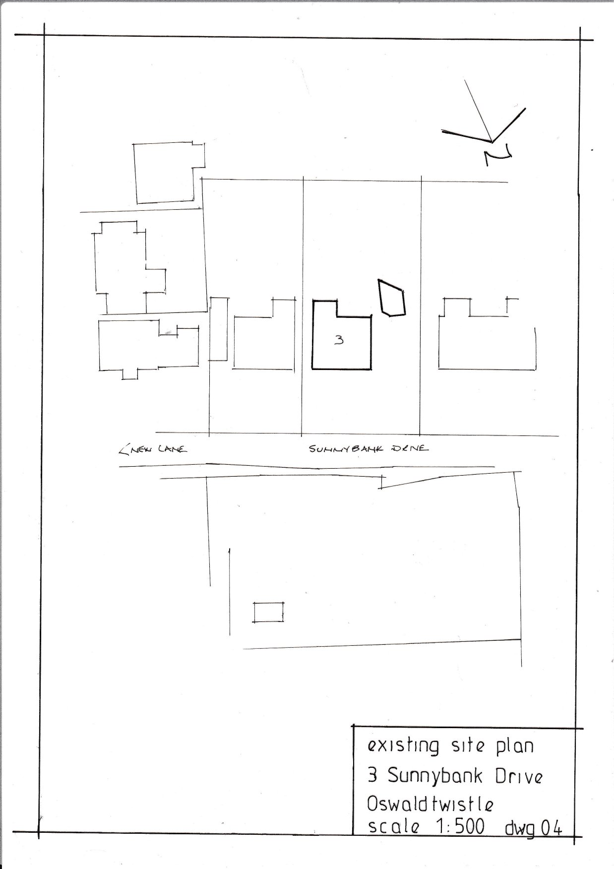
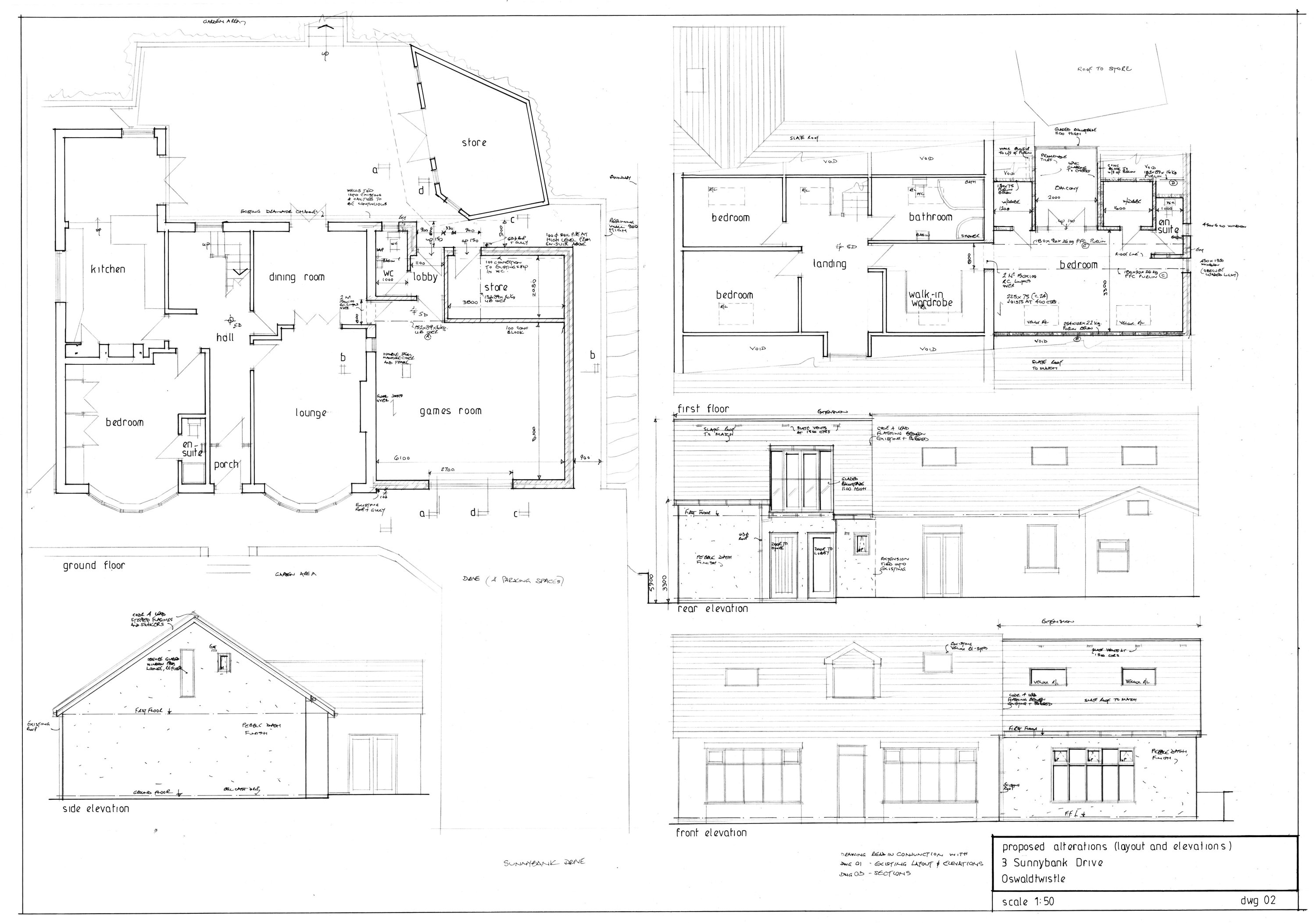
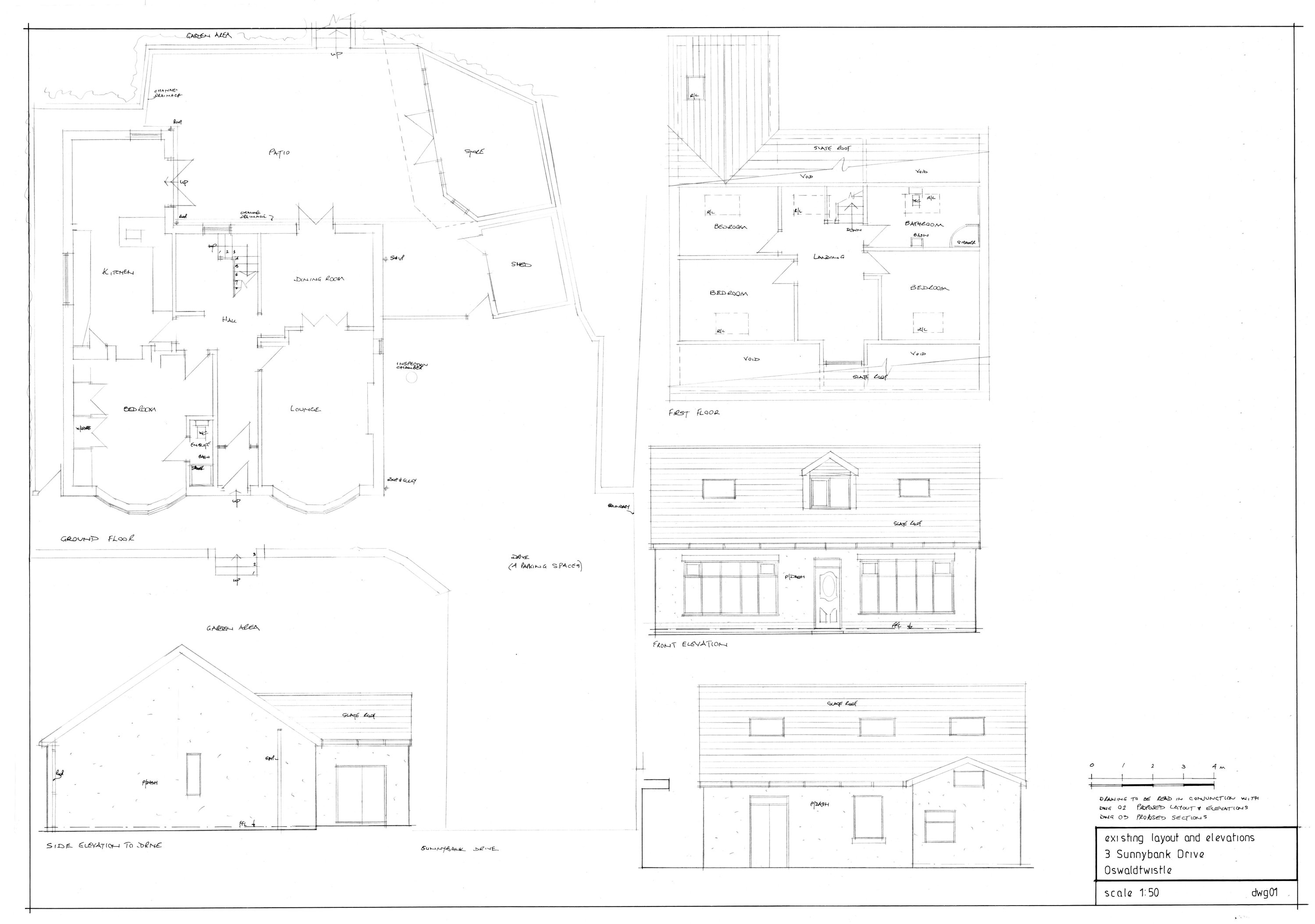
3 Sunnybank Drive, Oswaldtwistle, Lancashire, BB5 3QP | Householder | Householder: Erection of single storey side extension | Application No: 11/26/0017 | Registered : 20 February 2026

Documents

Application Form not Redacted
Archived · Original link
Background Papers
Archived · Original link
CAD Drawing
Archived · Original link
CAD Drawing
Archived · Original link
Statutory Consultee Response
Archived · Original link
Location Plan
Archived · Original link
CAD Drawing
Archived · Original link
Location Plan
Archived · Original link
CAD Drawing
Archived · Original link

Have your say

Your comment matters. Councils must consider every representation that raises material planning considerations.

Write a comment