← Hyndburn Borough Council

Status

Pending House extension
Received
Not recorded
New homes
0

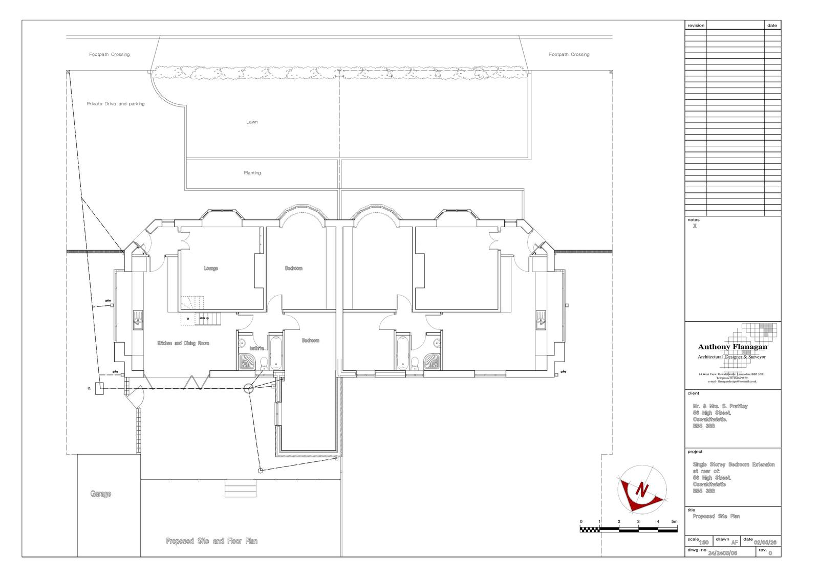
Full proposal

56 High Street, Oswaldtwistle, Lancashire, BB5 3BB | Householder | Householder: Erection of single storey rear extension | Application No: 11/26/0095 | Registered : 06 March 2026

Documents

Application Form Redacted
Redacted Application Form
Not yet archived · Original link
Existing Plans and Elevations
CAD Drawing
Not yet archived · Original link
Location Plan
CAD Drawing
Not yet archived · Original link
Planning History 11 26 0095
Background Papers
Not yet archived · Original link
CAD Drawing
Archived · Original link
Section Details and Specifications
CAD Drawing
Not yet archived · Original link

Have your say

Your comment matters. Councils must consider every representation that raises material planning considerations.

Write a comment