← Hyndburn Borough Council

Status

Pending House extension
Received
Not recorded
New homes
0

Full proposal

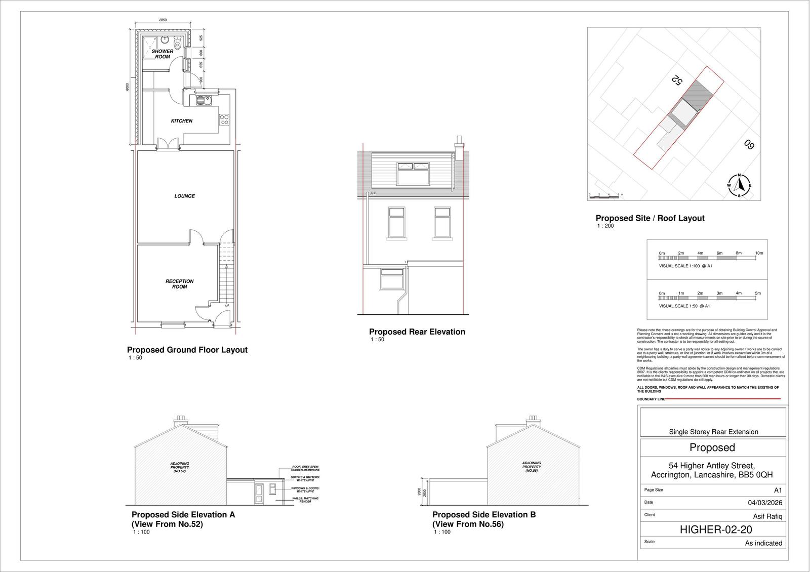
54 Higher Antley Street, Accrington, Lancashire, BB5 0QH | Prior Approval: (Part 1, Class A) Householder | Prior Approval: Erection of single storey rear extension. | Application No: 11/26/0101 | Registered : 13 March 2026

Documents

Application Form not Redacted
Archived · Original link
Background Papers
Archived · Original link
CAD Drawing
Archived · Original link
CAD Drawing
Archived · Original link
CAD Drawing
Archived · Original link

Have your say

Your comment matters. Councils must consider every representation that raises material planning considerations.

Write a comment