← Islington Council

Status

APPEAL COMPLETED House extension
Received
24 Jan 2025
New homes
0

Planning Inspectorate

Appeal: Decided Dismissed
Reference3364857
TypeHouseholder (HAS)
Decision date06 Aug 2025

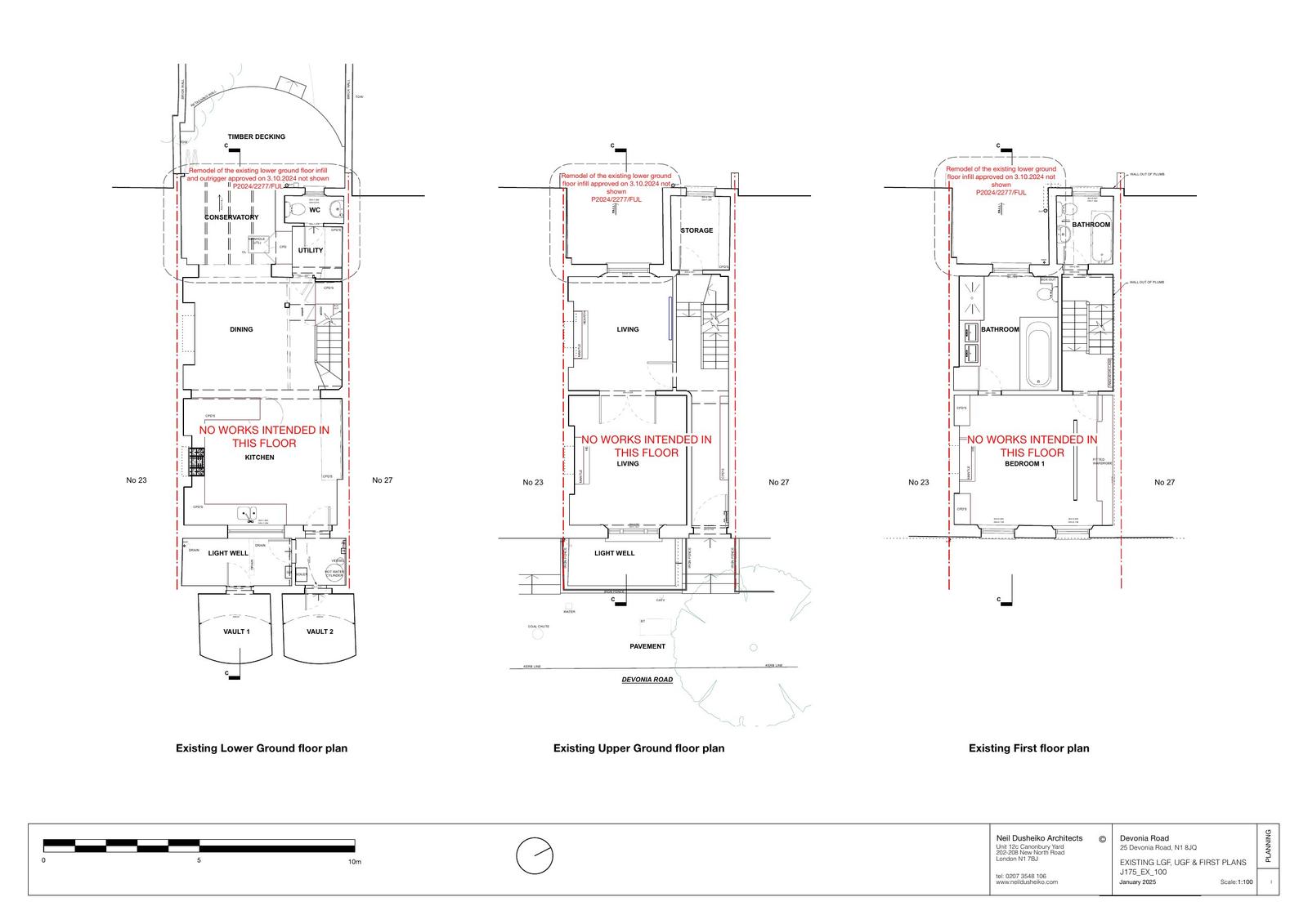
Full proposal

Erection of a roof dormer to rear roof slope and rooflights to front roof slope with increase in ridge height

Documents

Appeal Decision
Archived · Original link
Default
Archived · Original link
Decision Notice Final
Archived · Original link
Delegated Report
Archived · Original link
Default
Archived · Original link
Default
Archived · Original link

Have your say

Your comment matters. Councils must consider every representation that raises material planning considerations.

Write a comment