Application
P2025/0785/FUL
Islington Council · AGILE
Status
VALIDATED
House extension
Received
18 Mar 2025
New dwellings
0
What you can do
Take Action
Make your voice heard. Authorities need to hear from people who support new homes.
Summary
Mansard roof extension with dormers to provide two 1-bed self-contained flats.
Full Proposal
Erection of a new mansard roof extension with associated front and rear dormer windows and external staircase, to facilitate the provision of 2 x 1-bed 2-person self-contained flats with cycle and refuse storage.
Detail pages
- View live detail on council site
- No archived detail page available.
Documents
3D Images
Default
Not downloaded
· Council link
Additional Plans and Floor Areas
Existing & Proposed Plans
Not downloaded
· Council link
Application Form - Without Personal Data
Application Form
Not downloaded
· Council link
Building Costs Estimate
Supporting Documentation
Not downloaded
· Council link
Community Infrastructure Levy - Completed form
Default
Not downloaded
· Council link
Daylight/sunlight assessment
Supporting Documentation
Not downloaded
· Council link
Existing & Proposed drawings Revised
Existing & Proposed Plans
Not downloaded
· Council link
Existing and Proposed Drawings
Existing & Proposed Plans
Not downloaded
· Council link
Financial Viability Assessment
Supporting Documentation
Not downloaded
· Council link
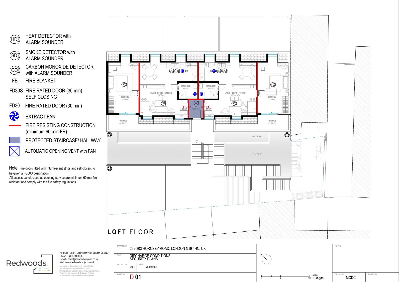
Fire escape drawings
Supporting Documentation
Not downloaded
· Council link
Fire Safety Strategy
Supporting Documentation
Not downloaded
· Council link
Fire strategy
Supporting Documentation
Not downloaded
· Council link
HCA Appraisal
Supporting Documentation
Not downloaded
· Council link
HCA Appraisal Model
Supporting Documentation
Not downloaded
· Council link
Refurbishment Costs
Supporting Documentation
Not downloaded
· Council link
Revised Plans
Existing & Proposed Plans
Not downloaded
· Council link
Sales Comparisons
Supporting Documentation
Not downloaded
· Council link
Savills Housing Market Update
Supporting Documentation
Not downloaded
· Council link
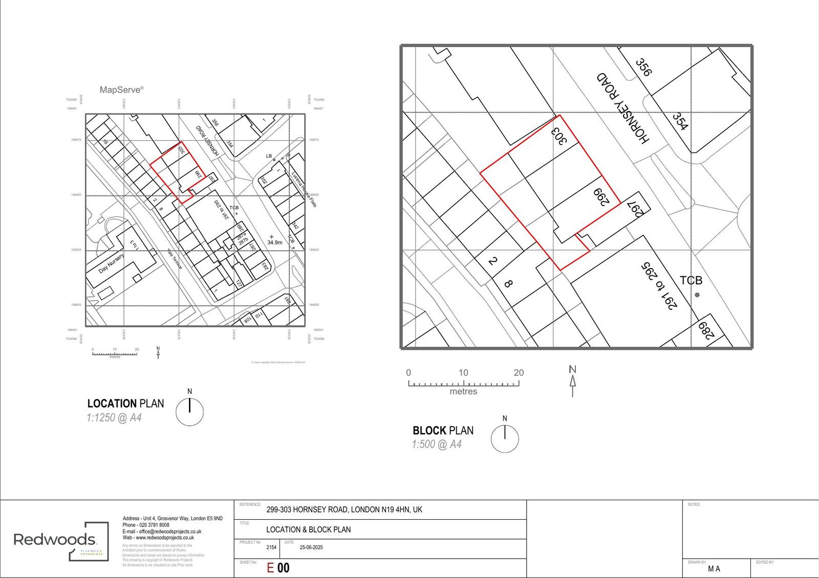
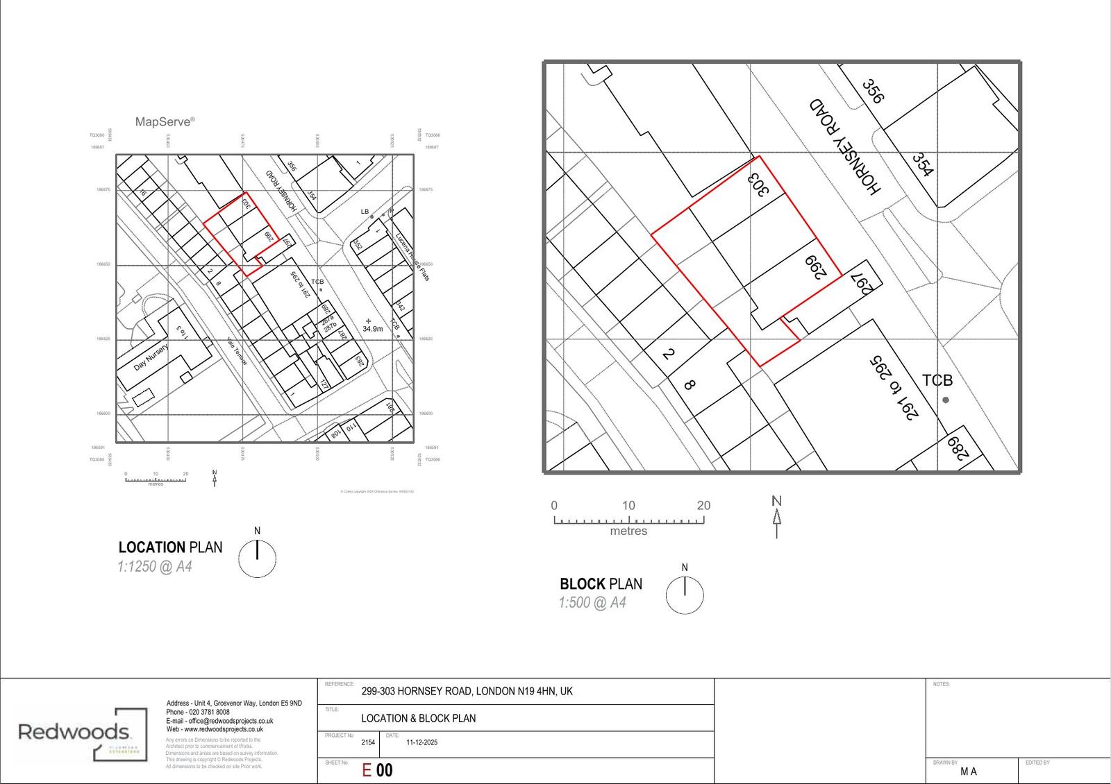
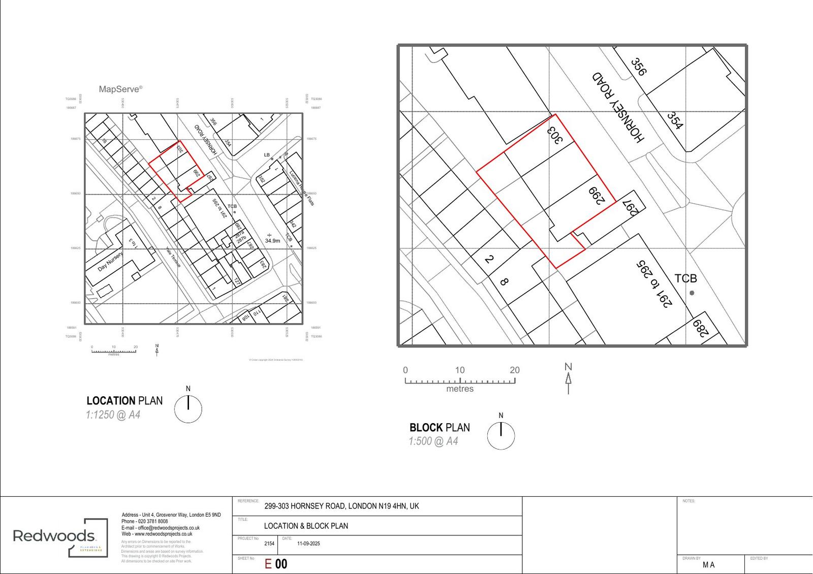
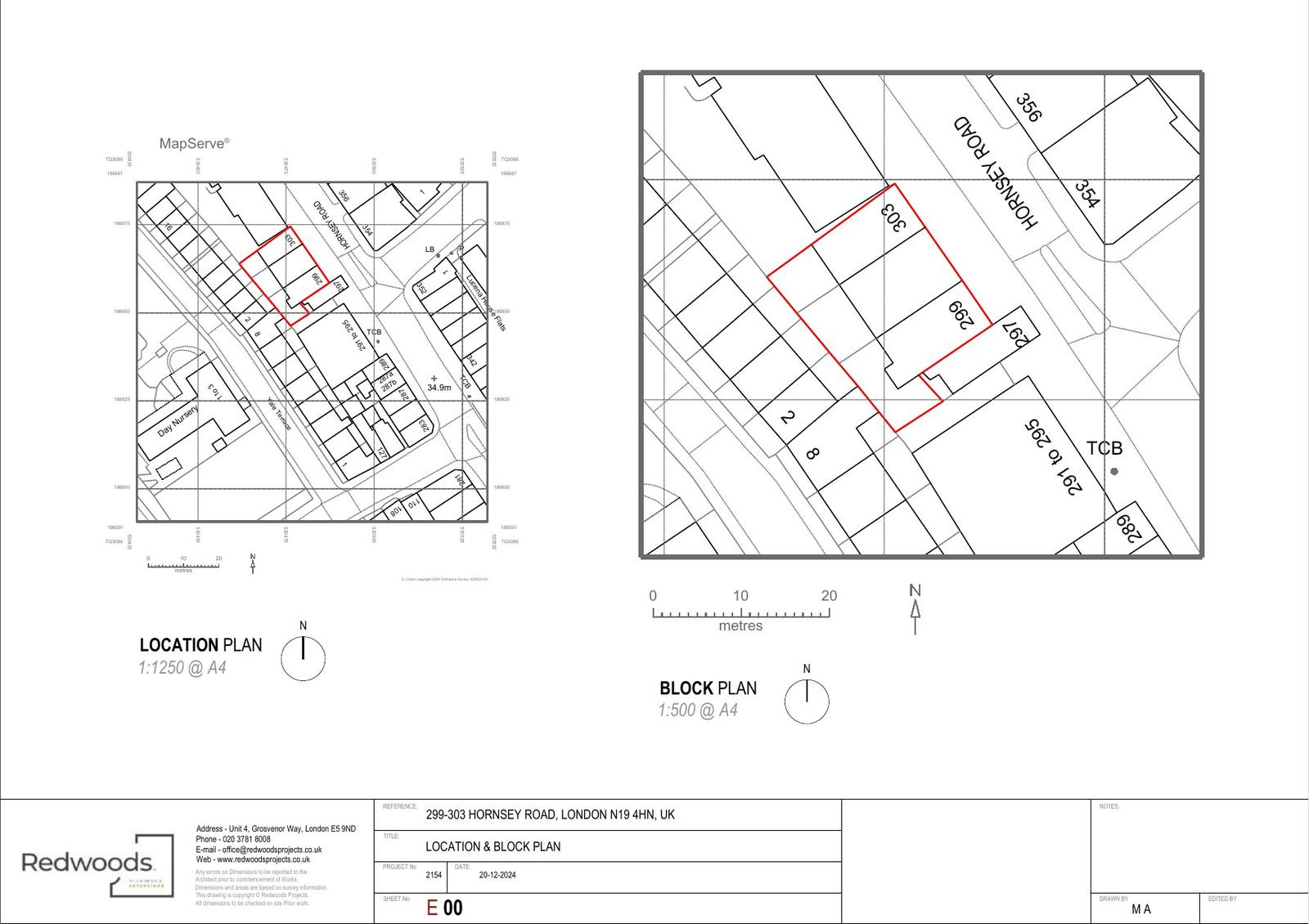
Site location Plan
Drawings - Existing
Archived copy
· Council link
Sustainability assessment
Supporting Documentation
Not downloaded
· Council link