← Islington Council

Status

WITHDRAWN AFTER VALID House extension
Received
08 Apr 2025
New homes
0

Full proposal

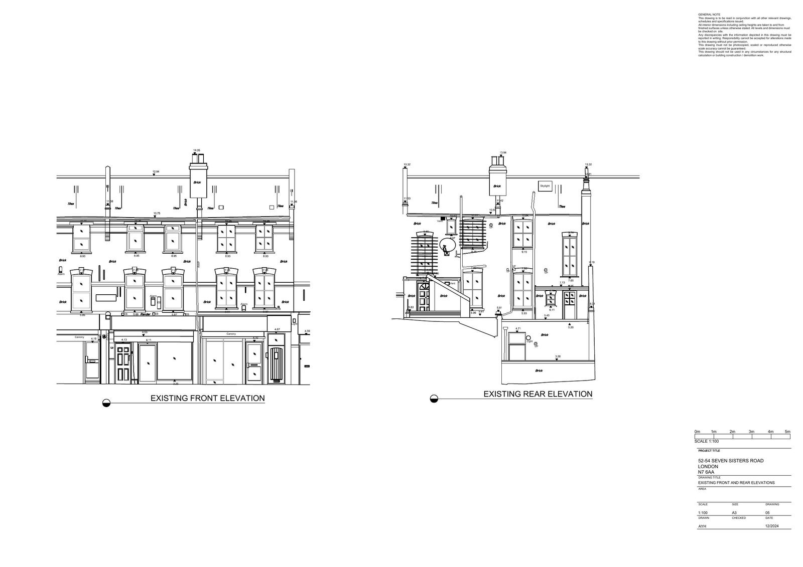
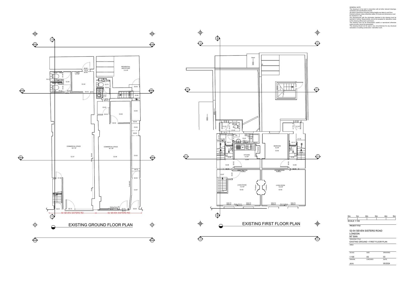
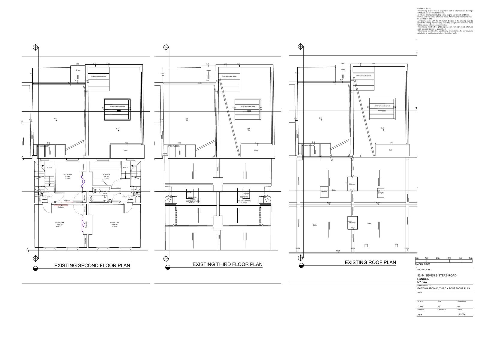
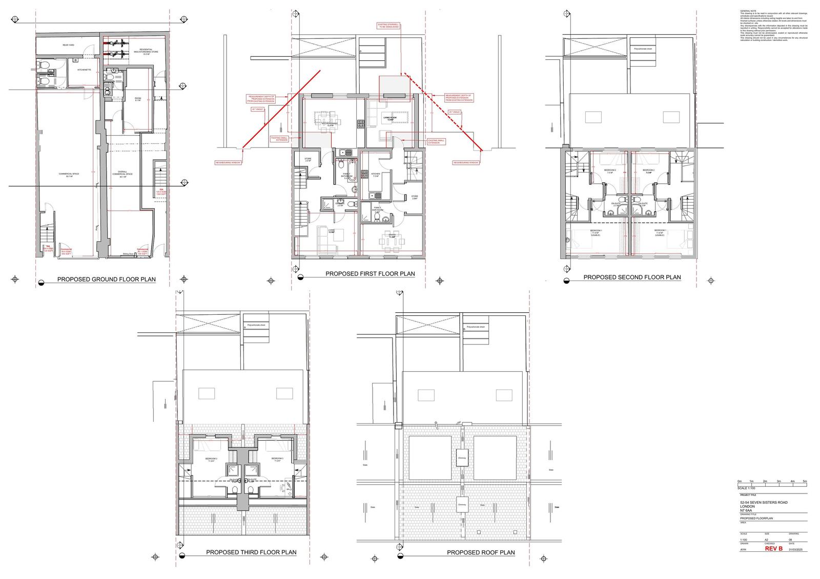
Erection of full width rear first-floor extension (with set-ins from neighbouring boundaries) and dormer extensions with associated alterations

Have your say

Your comment matters. Councils must consider every representation that raises material planning considerations.

Write a comment