← Islington Council

Status

APPEAL LODGED House extension
Received
29 Apr 2025
New homes
0

Full proposal

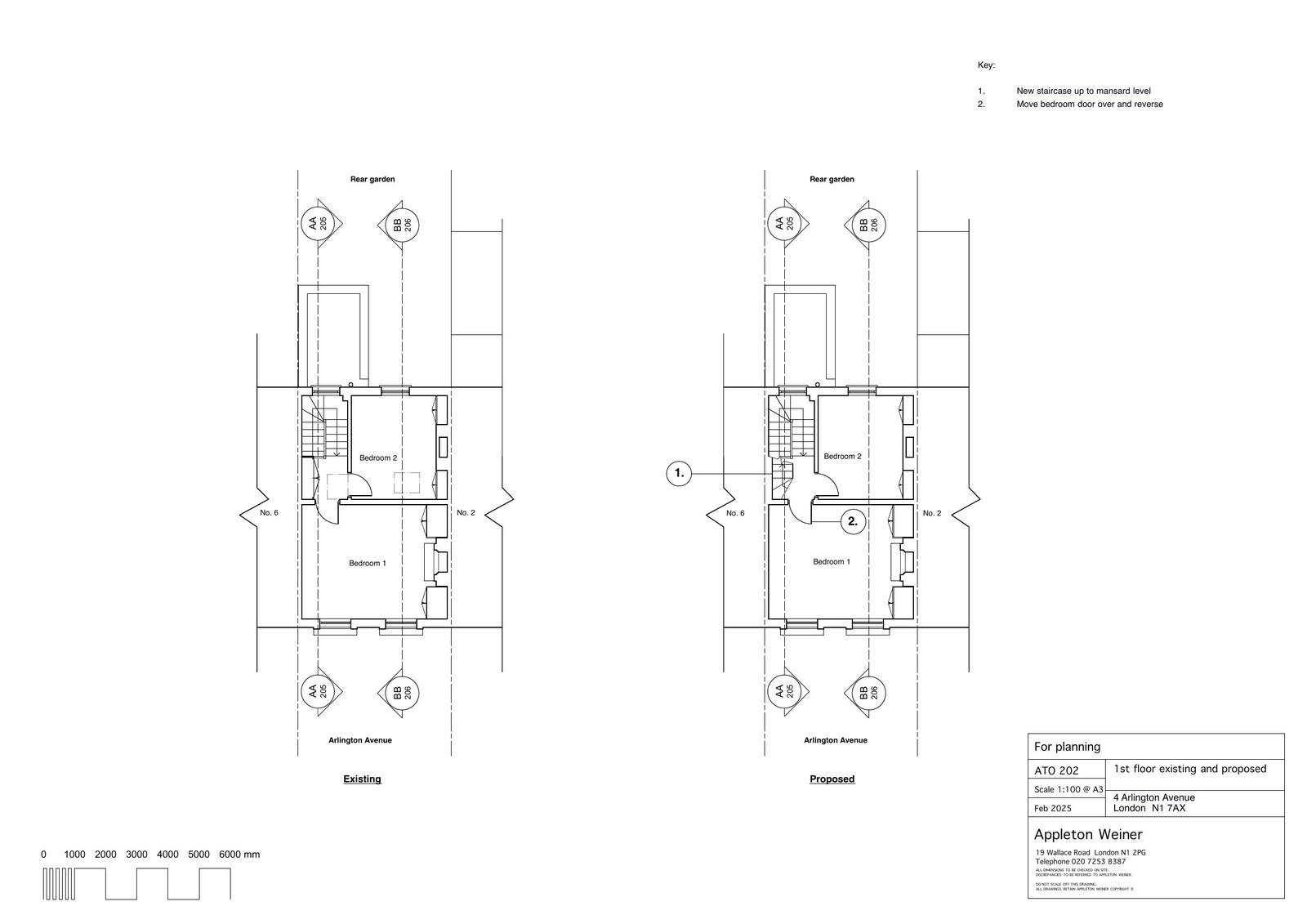
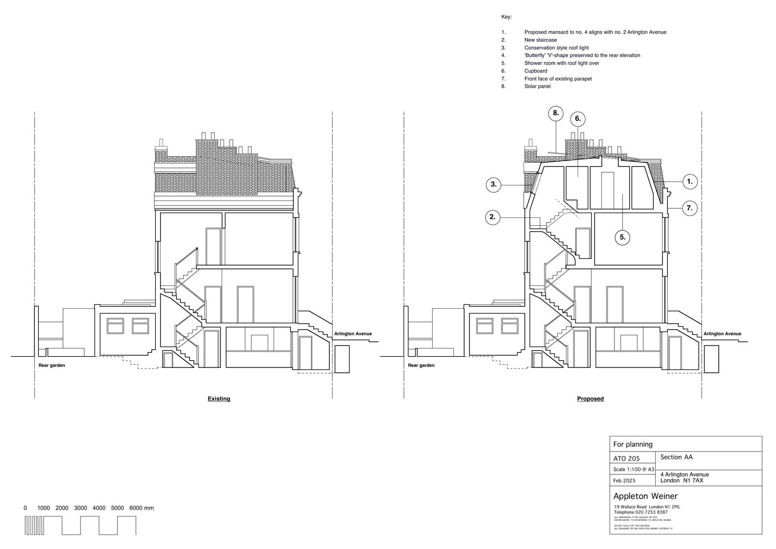
Erection of mansard roof extension with solar panels

Documents

Appeal Form
Archived · Original link
Application Form - Redacted
Archived · Original link
Decision Notice
Archived · Original link
Delegated Report
Archived · Original link
Design and Access Statement
Archived · Original link
Existing & Proposed
Archived · Original link
Existing & Proposed
Archived · Original link
Existing & Proposed
Archived · Original link
Existing & Proposed
Archived · Original link
Existing & Proposed
Archived · Original link
Existing & Proposed
Archived · Original link
Drawings - Existing
Archived · Original link
Location Plan
Archived · Original link
Drawings - Proposed
Archived · Original link
Application Supporting Documents
Archived · Original link
Application Drawings - Superseded
Archived · Original link

Have your say

Your comment matters. Councils must consider every representation that raises material planning considerations.

Write a comment