← Islington Council

Status

VALIDATED Commercial
Received
15 May 2025
New homes
0

Summary

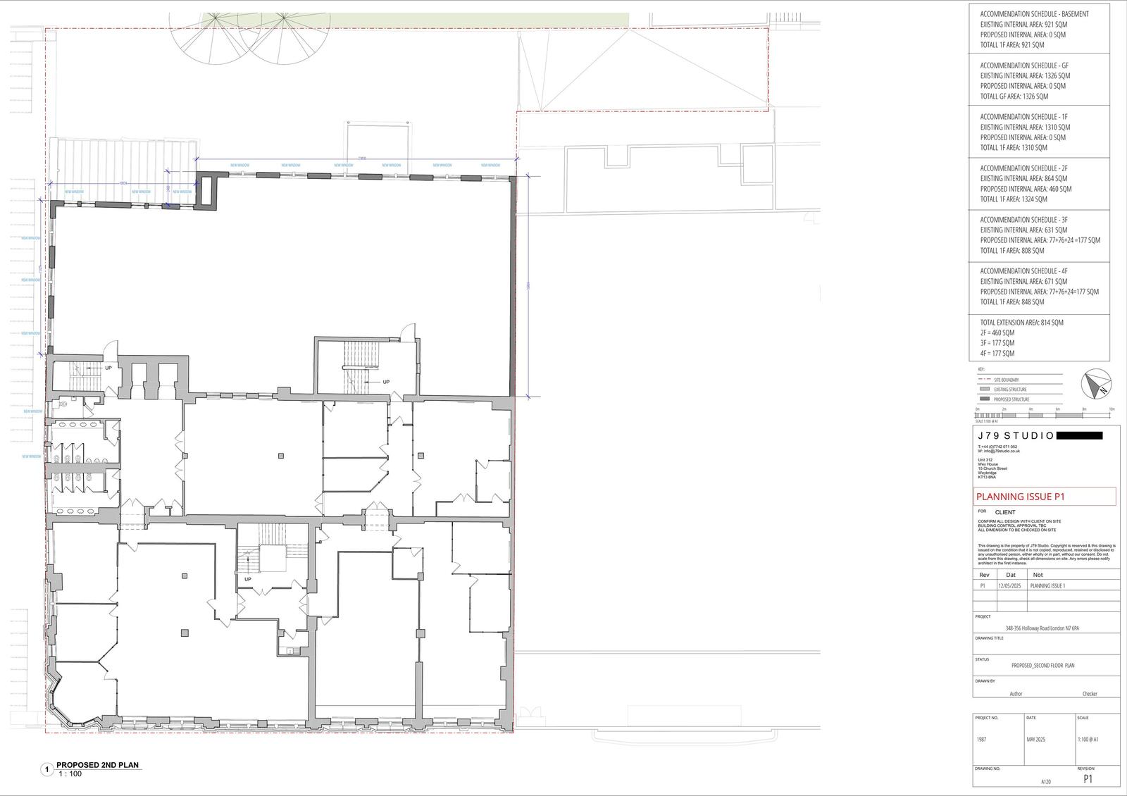
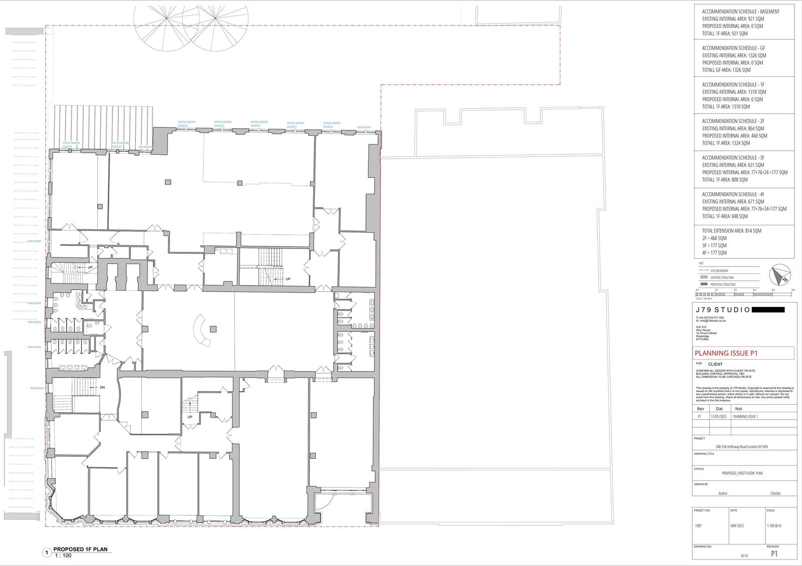
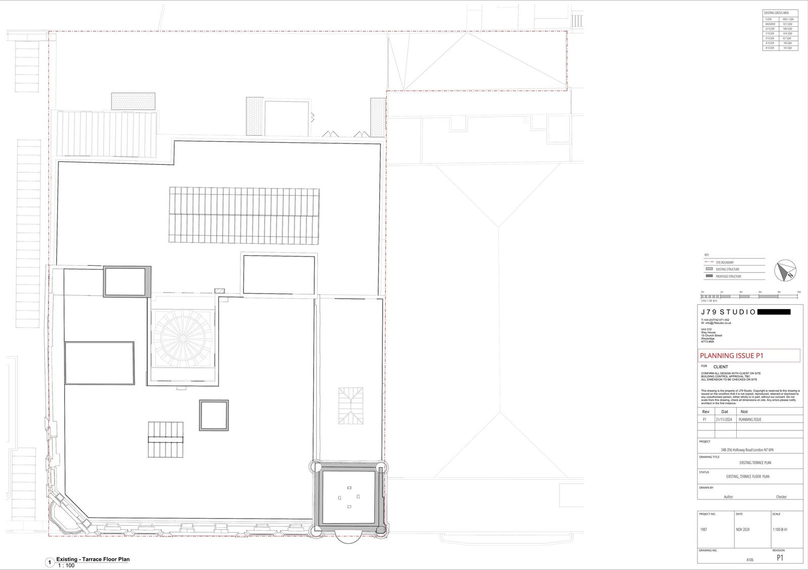
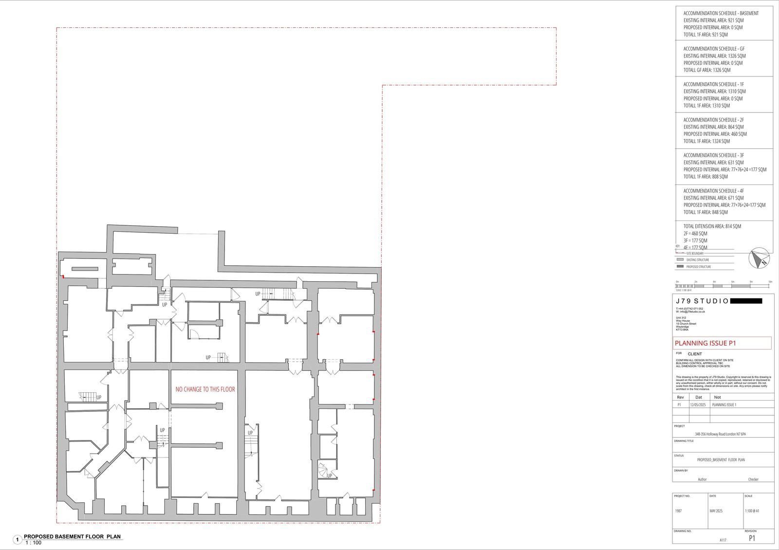
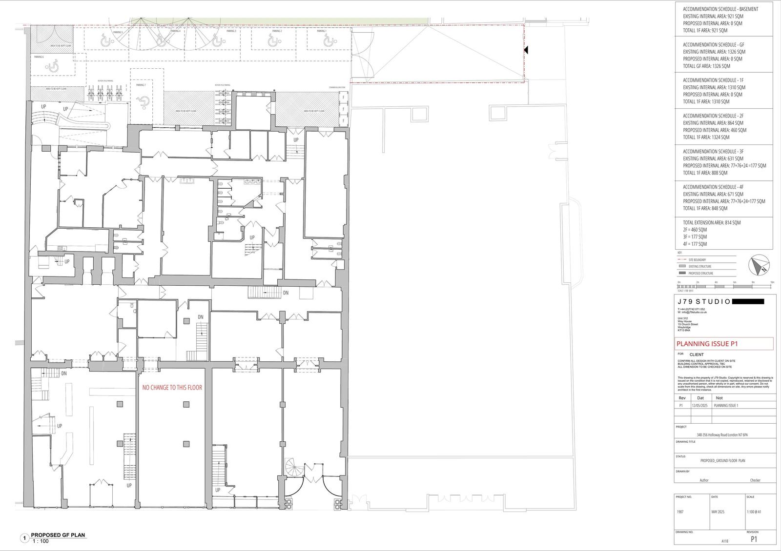
Rear extensions to provide additional office floorspace, new fenestration and landscaping.

Full proposal

Erection of rear extensions to existing building to provide additional office floorspace, new fenestrations to side/rear elevations, landscaping including planters and green roof areas.

Documents

Application Form
Archived · Original link
Application Form - Redacted
Archived · Original link
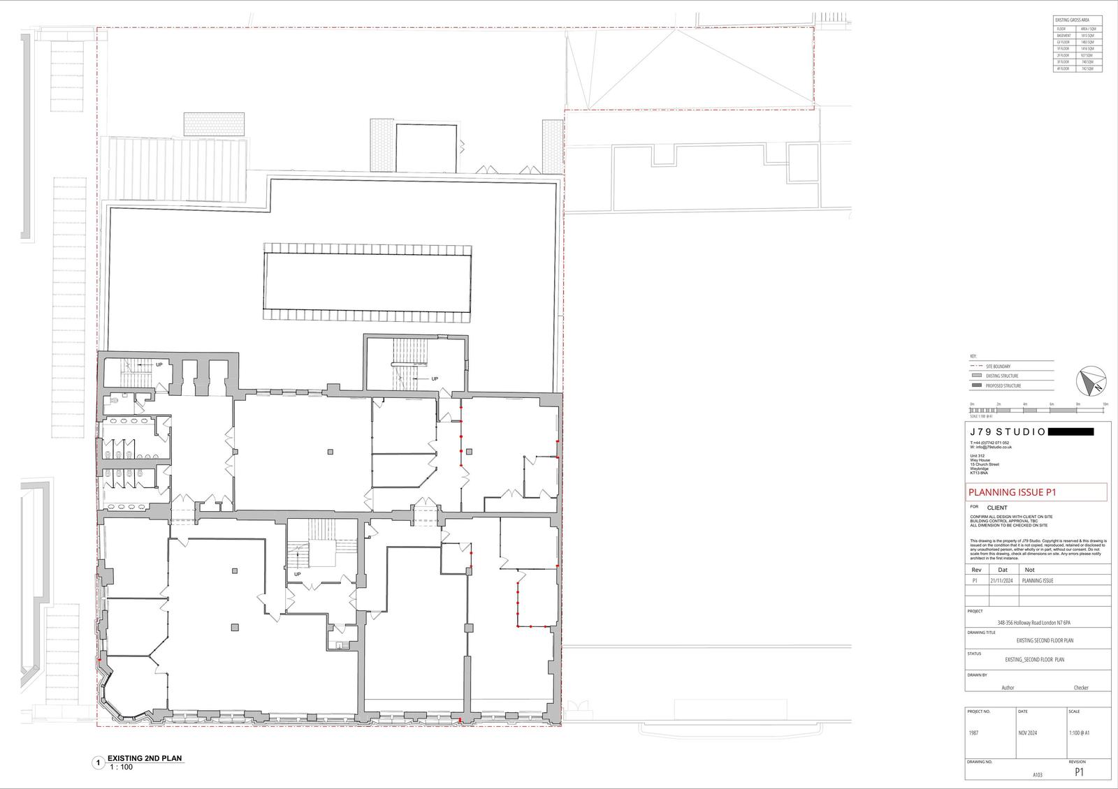
Drawings - Existing
Archived · Original link
Drawings - Proposed
Archived · Original link
Supporting Documentation
Archived · Original link
Supporting Documentation
Archived · Original link
Supporting Documentation
Archived · Original link
Supporting Documentation
Archived · Original link
Drawings - Existing
Archived · Original link
Drawings - Existing
Archived · Original link
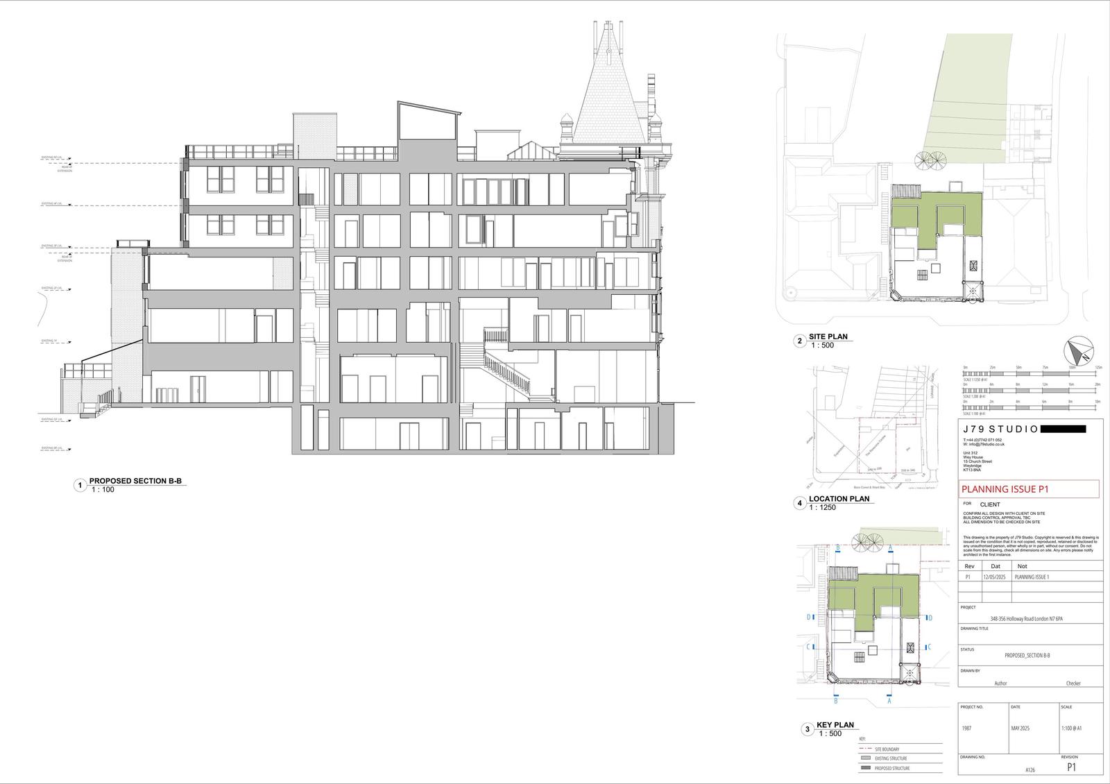
Drawings - Proposed
Archived · Original link
Drawings - Proposed
Archived · Original link
Drawings - Existing
Archived · Original link
Drawings - Proposed
Archived · Original link
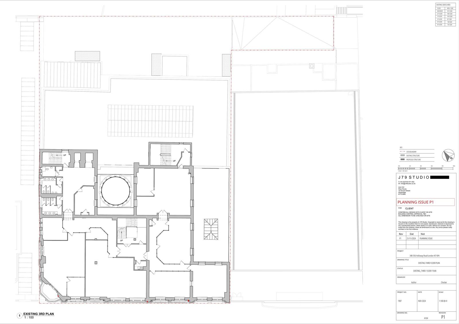
Drawings - Existing
Archived · Original link
Drawings - Existing
Archived · Original link
Drawings - Proposed
Archived · Original link
Drawings - Proposed
Archived · Original link
Supporting Documentation
Archived · Original link
Supporting Documentation
Archived · Original link
Drawings - Existing
Archived · Original link
Drawings - Proposed
Archived · Original link
Supporting Documentation
Archived · Original link
Drawings - Existing
Archived · Original link
Drawings - Proposed
Archived · Original link
Drawings - Existing
Archived · Original link
Drawings - Proposed
Archived · Original link
Supporting Documentation
Archived · Original link
Supporting Documentation
Archived · Original link
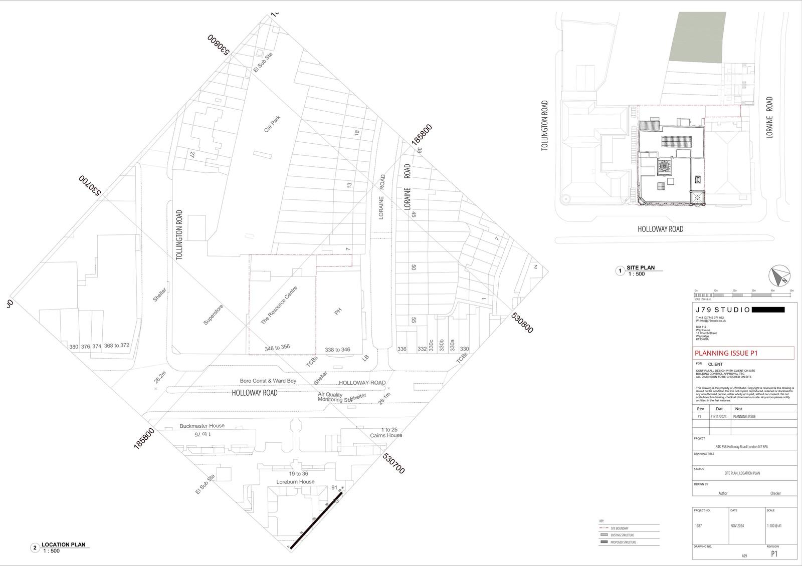
Location Plan
Archived · Original link
Supporting Documentation
Archived · Original link
Supporting Documentation
Archived · Original link
Supporting Documentation
Archived · Original link
Drawings - Existing
Archived · Original link
Drawings - Proposed
Archived · Original link
Drawings - Existing
Archived · Original link
Drawings - Proposed
Archived · Original link
Drawings - Existing
Archived · Original link
Drawings - Proposed
Archived · Original link
Drawings - Existing
Archived · Original link
Drawings - Proposed
Archived · Original link
Drawings - Existing
Archived · Original link
Drawings - Proposed
Archived · Original link
Drawings - Existing
Archived · Original link
Drawings - Proposed
Archived · Original link
Drawings - Proposed
Archived · Original link
Supporting Documentation
Archived · Original link
Drawings - Existing
Archived · Original link
Drawings - Proposed
Archived · Original link
Drawings - Existing
Archived · Original link
Drawings - Proposed
Archived · Original link

Have your say

Your comment matters. Councils must consider every representation that raises material planning considerations.

Write a comment