P2025/1570/FUL
Islington Council
Status
OFFICER REVIEW
House extension
Received
30 May 2025
New homes
0
Full proposal
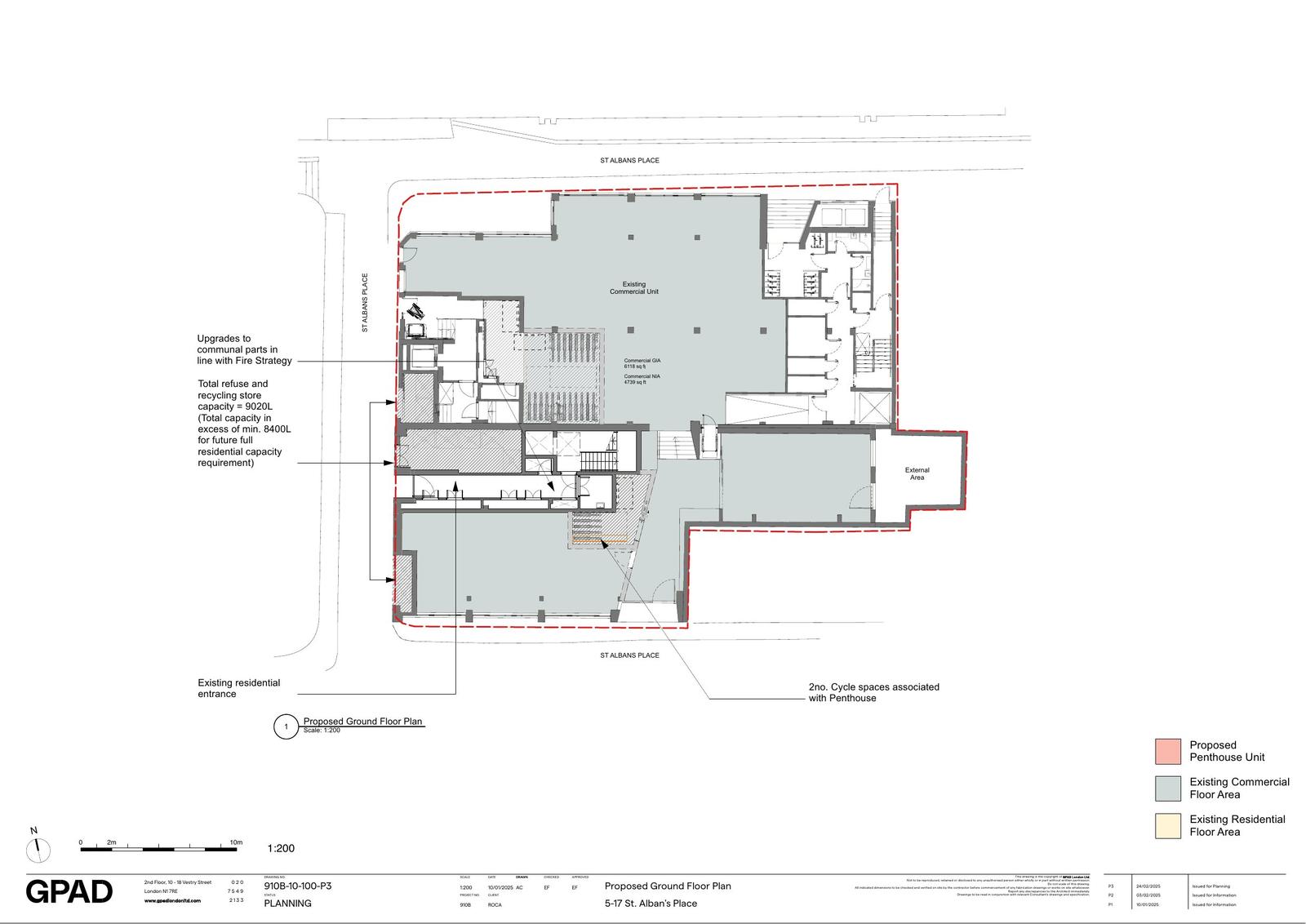
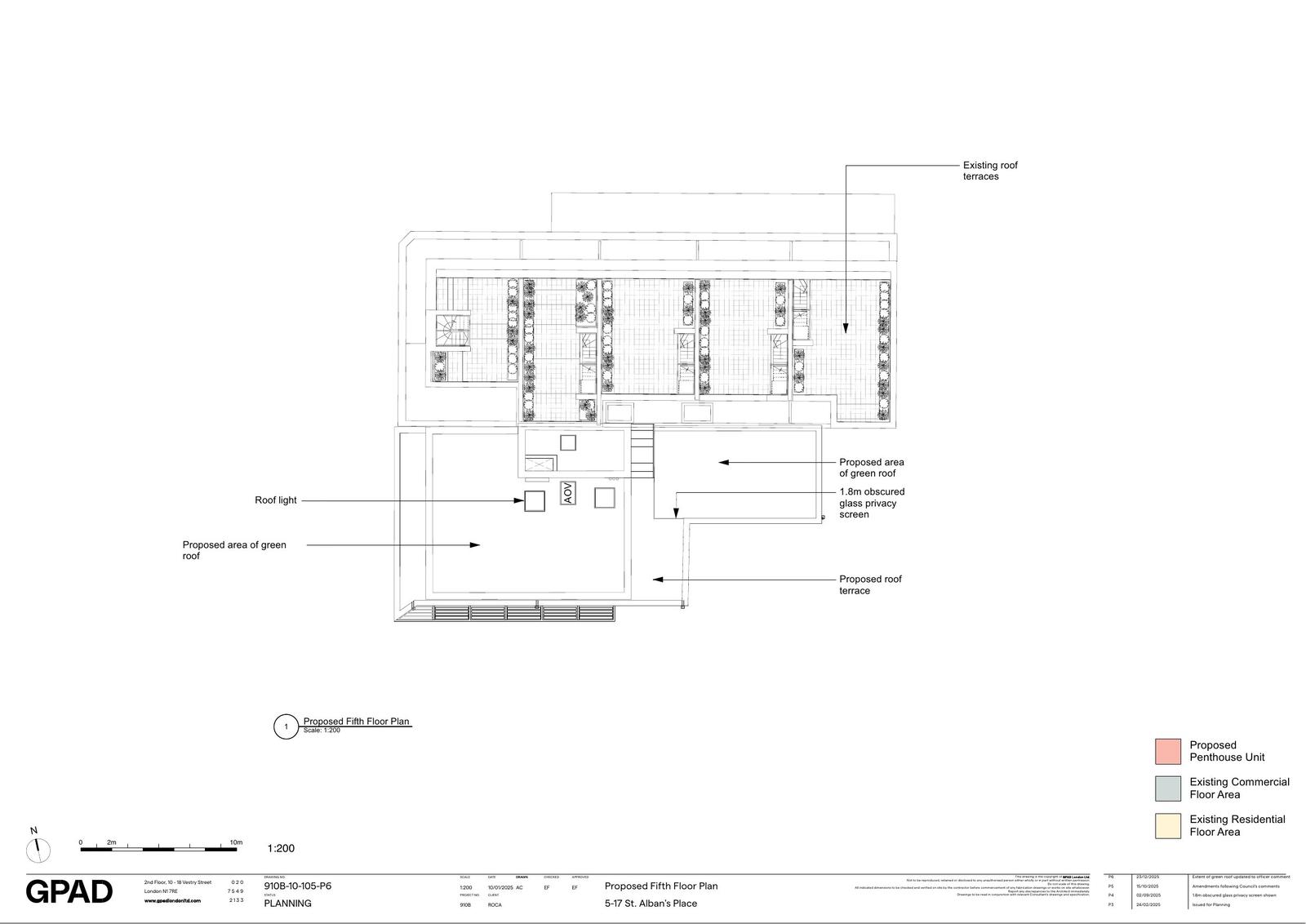
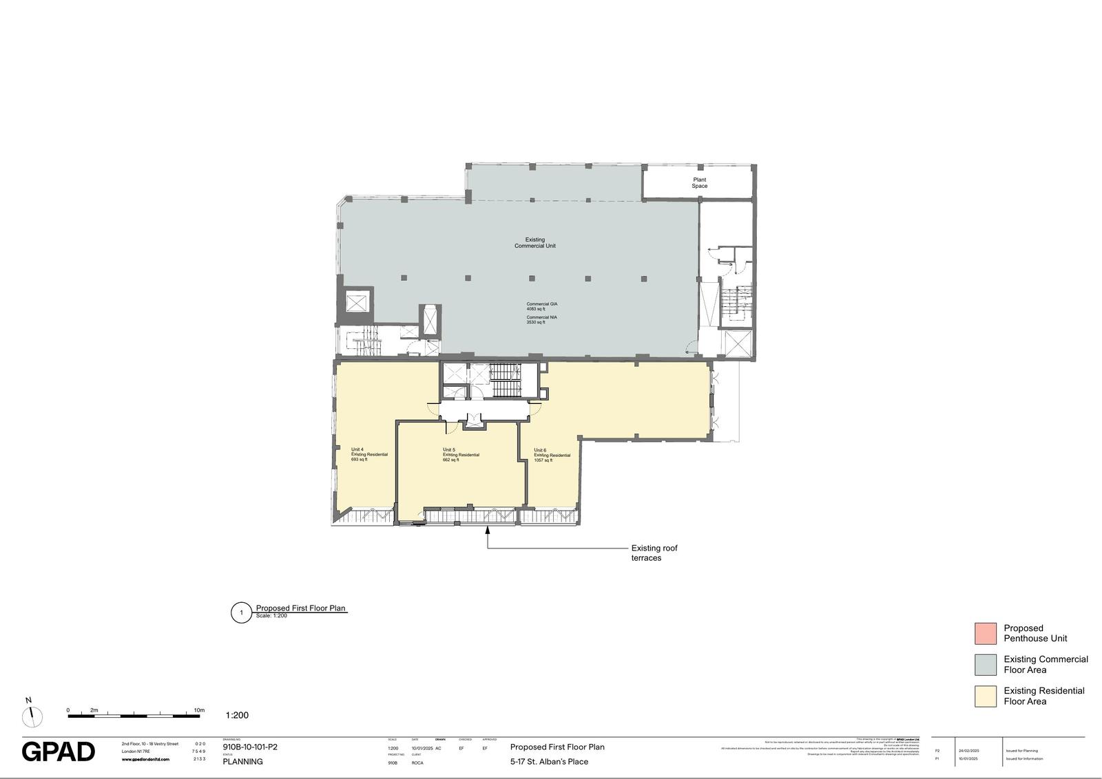
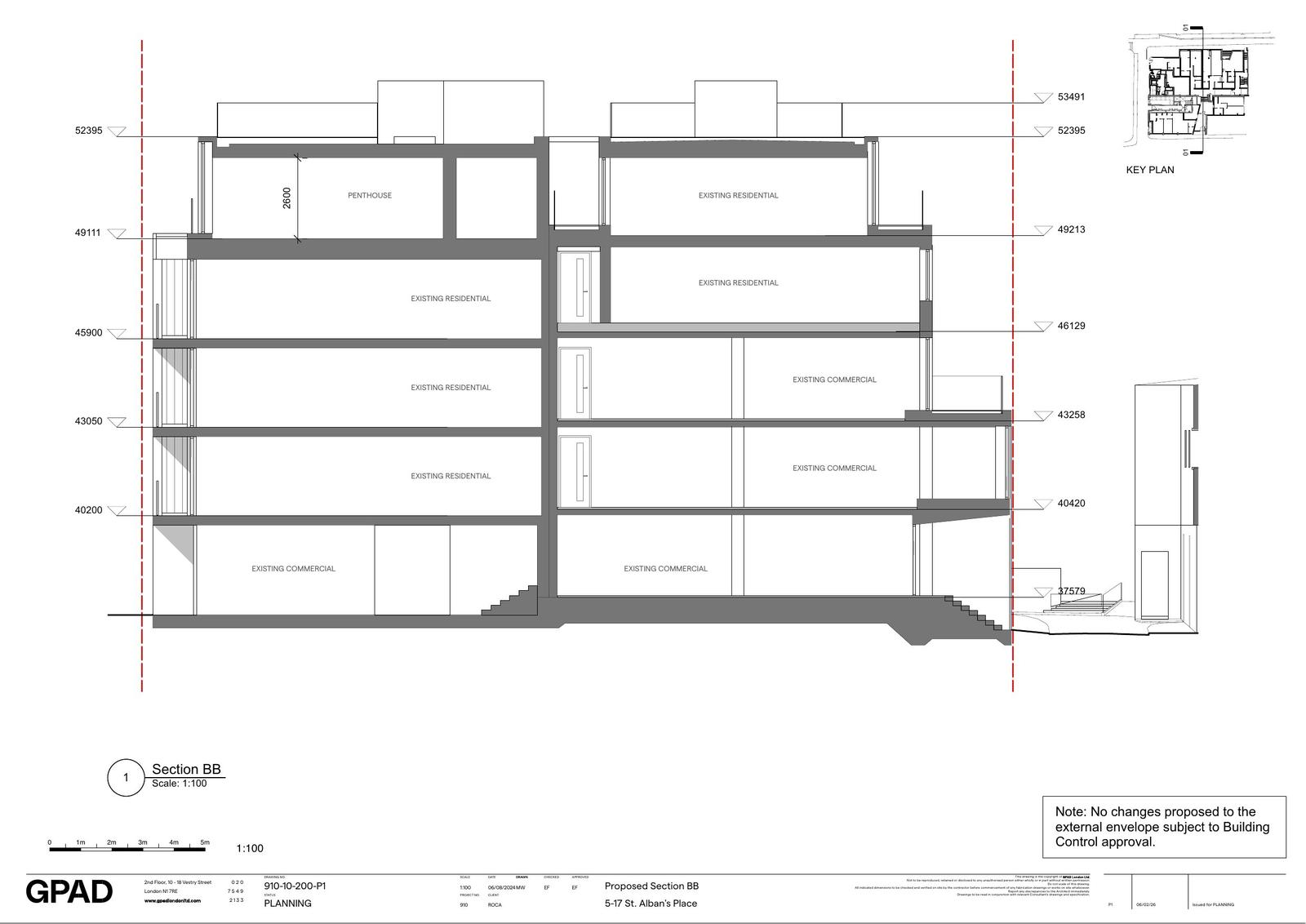
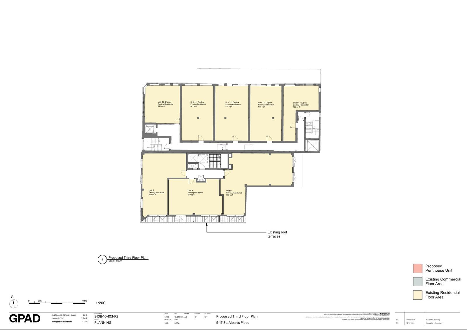
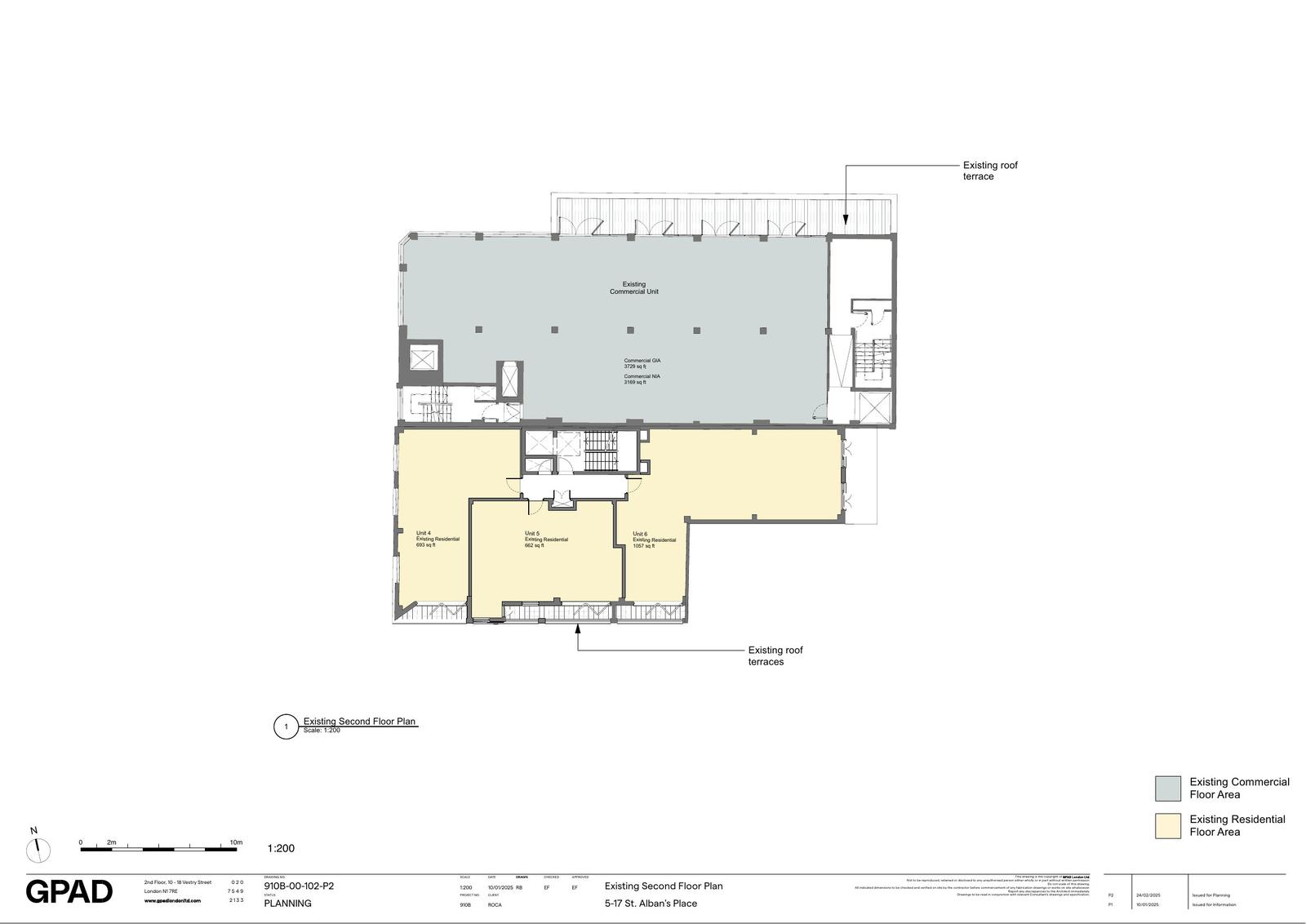
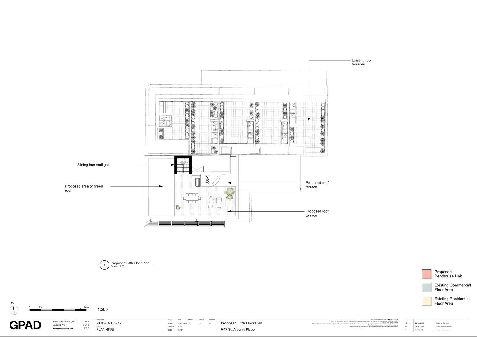
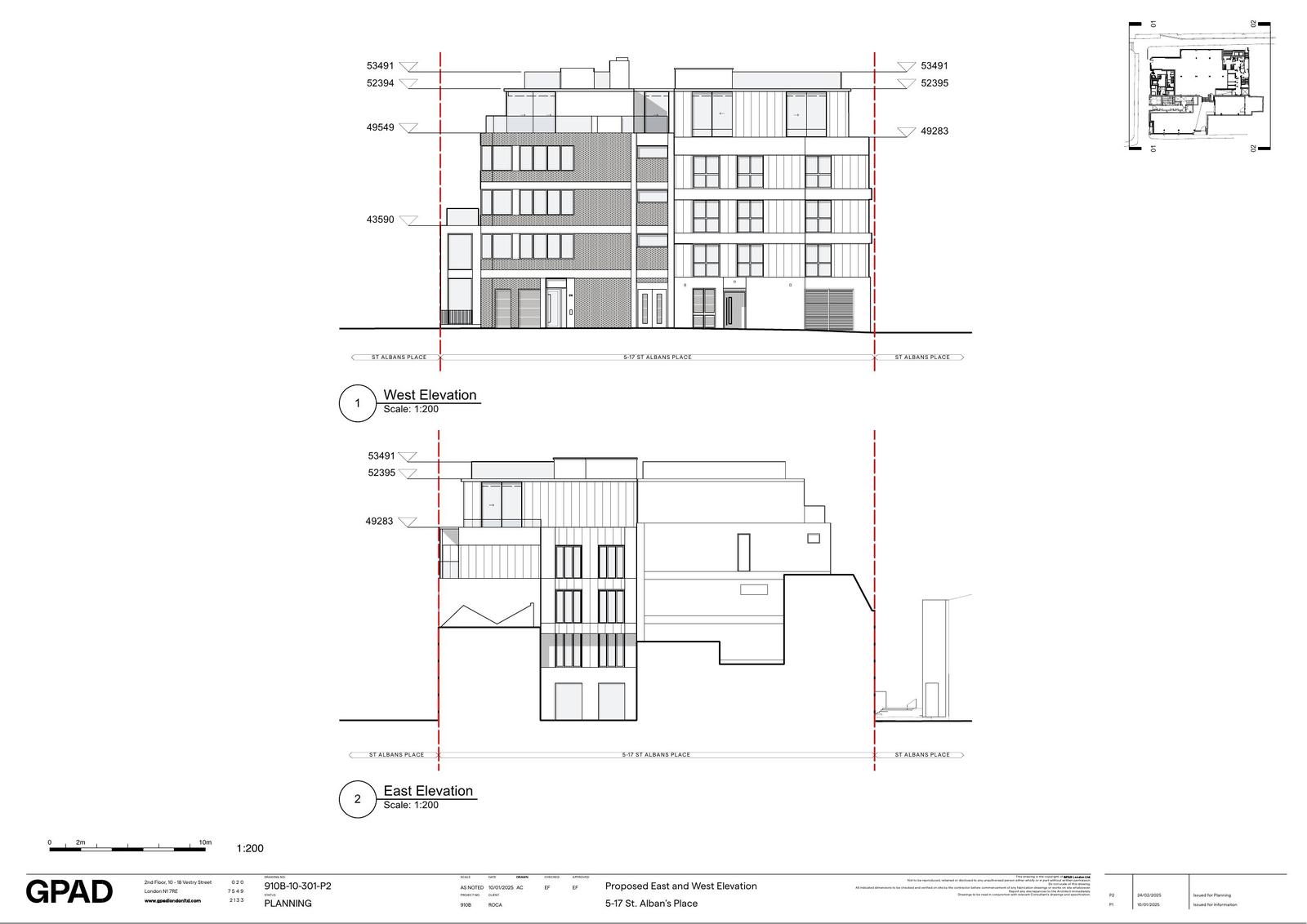
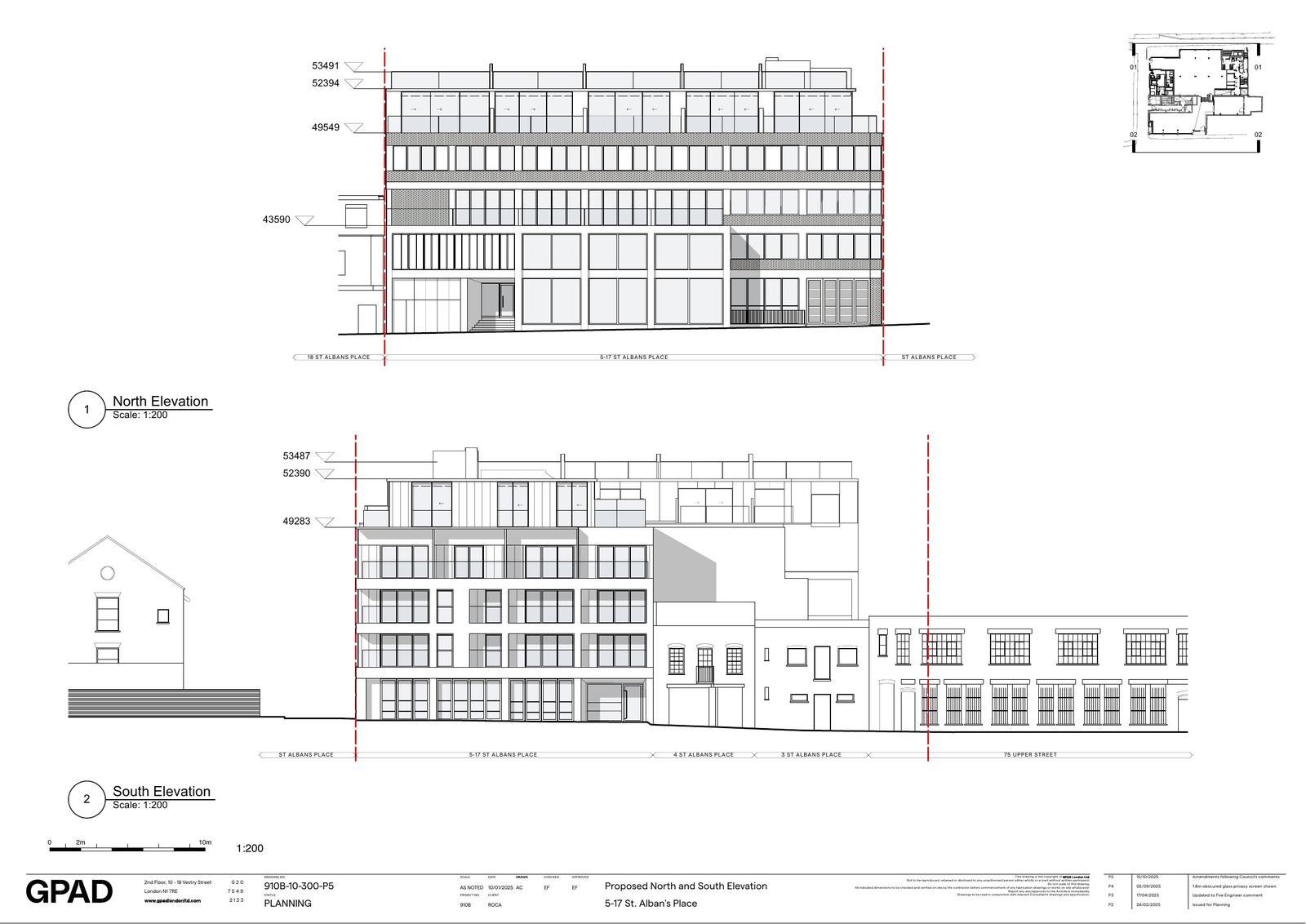
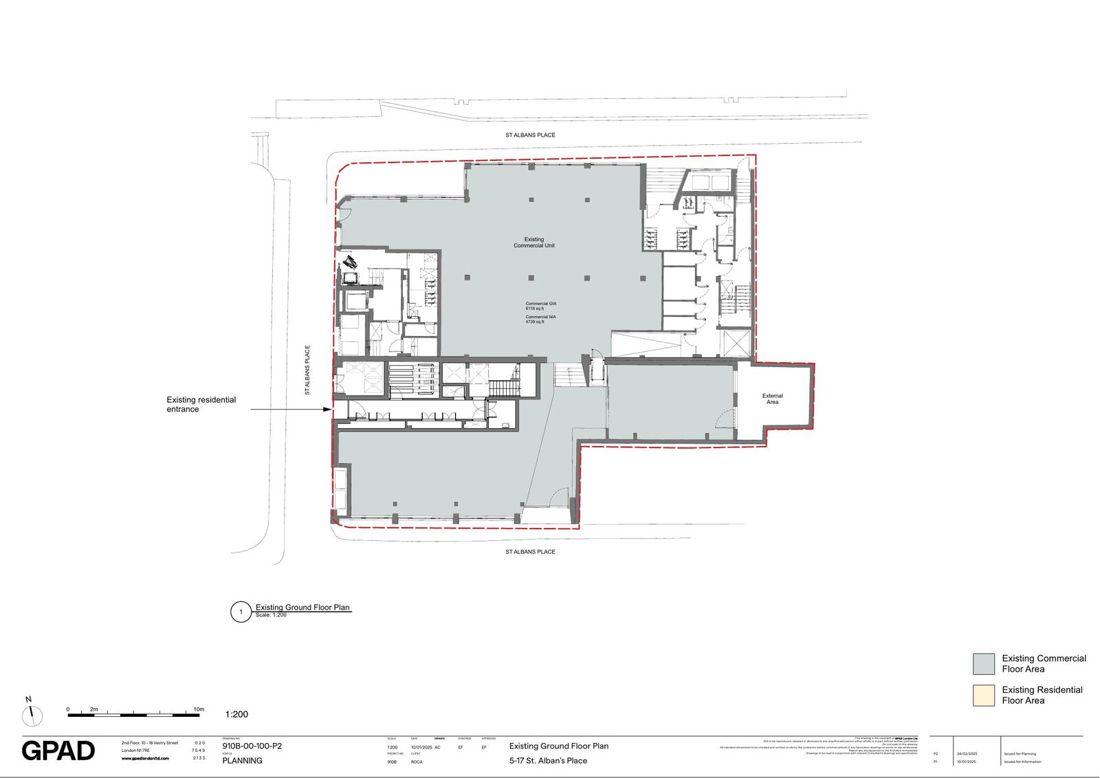
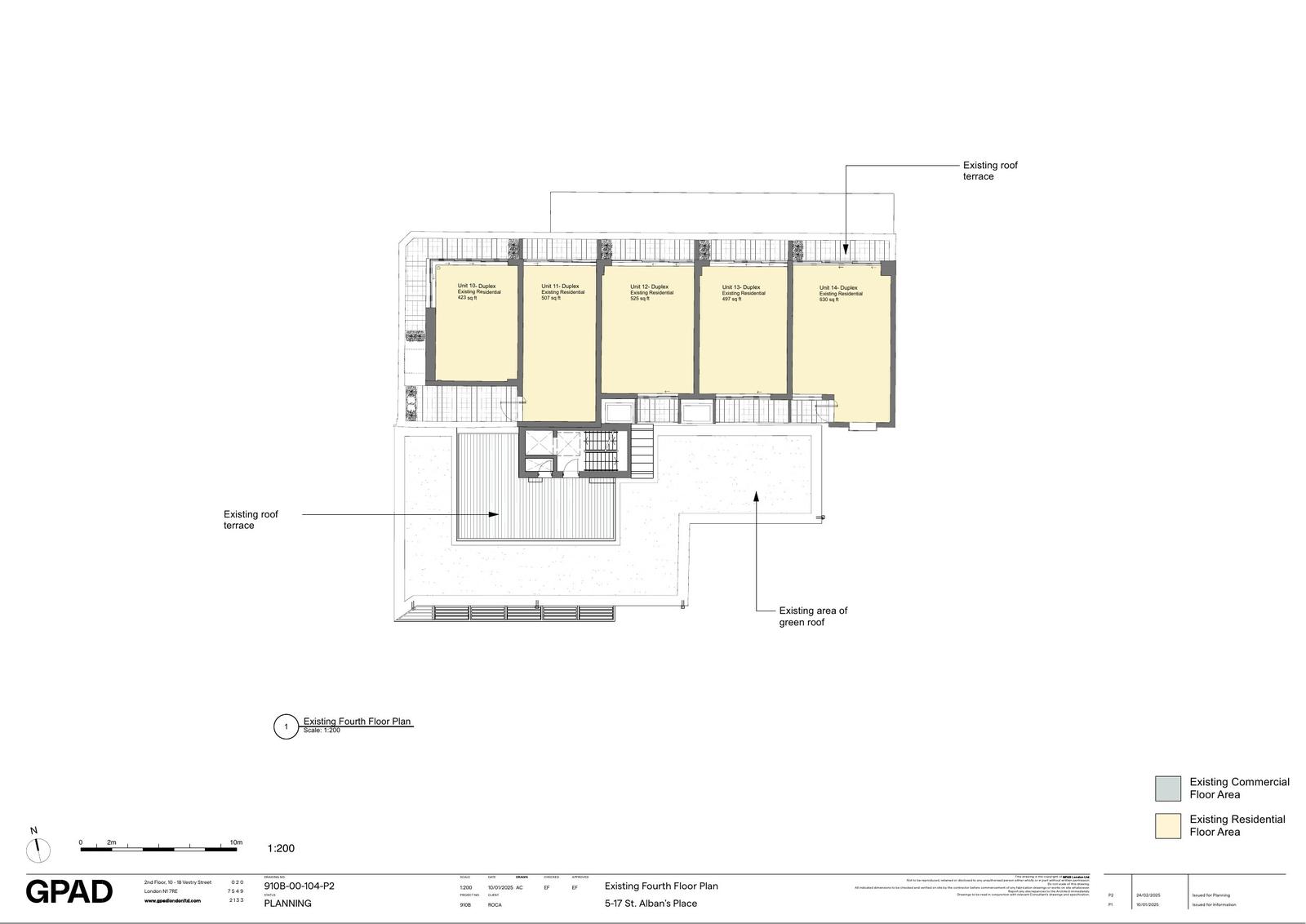
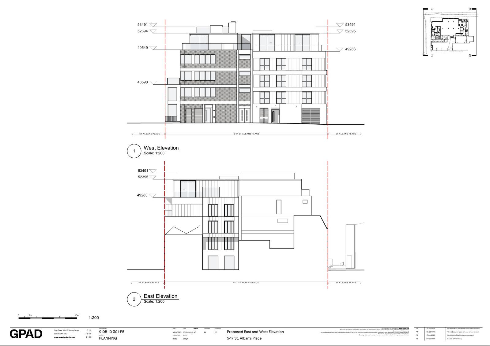
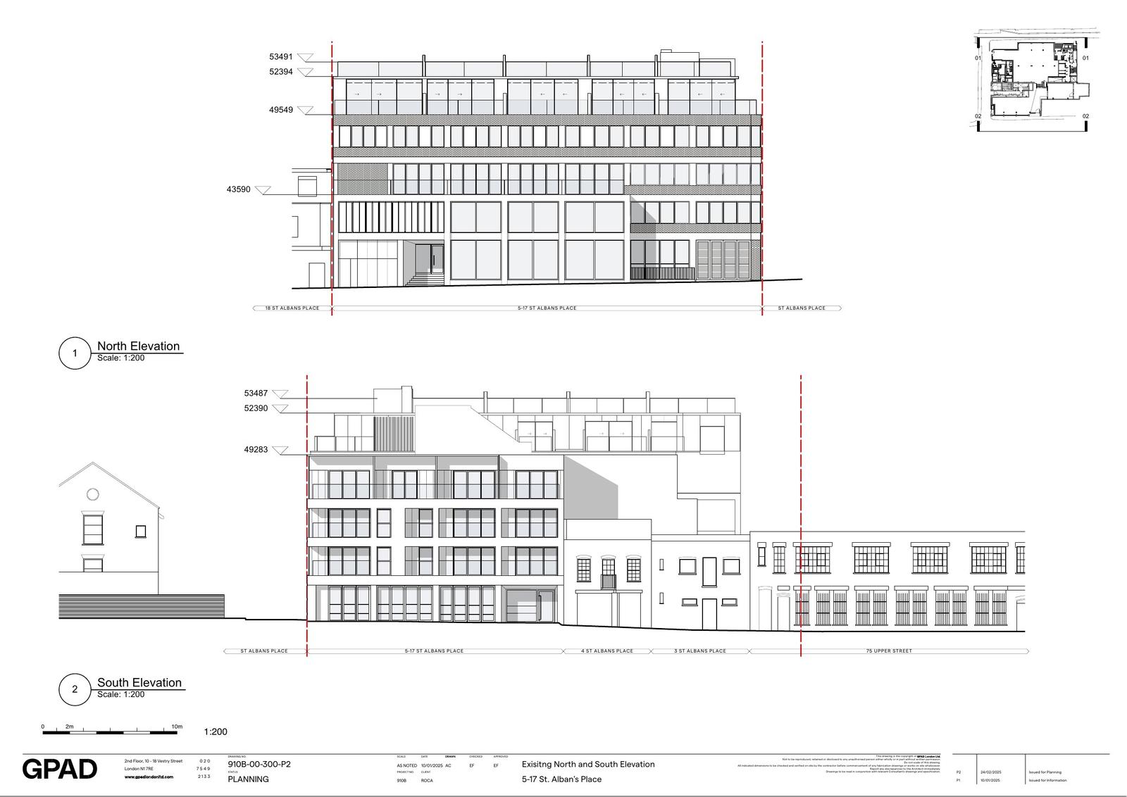
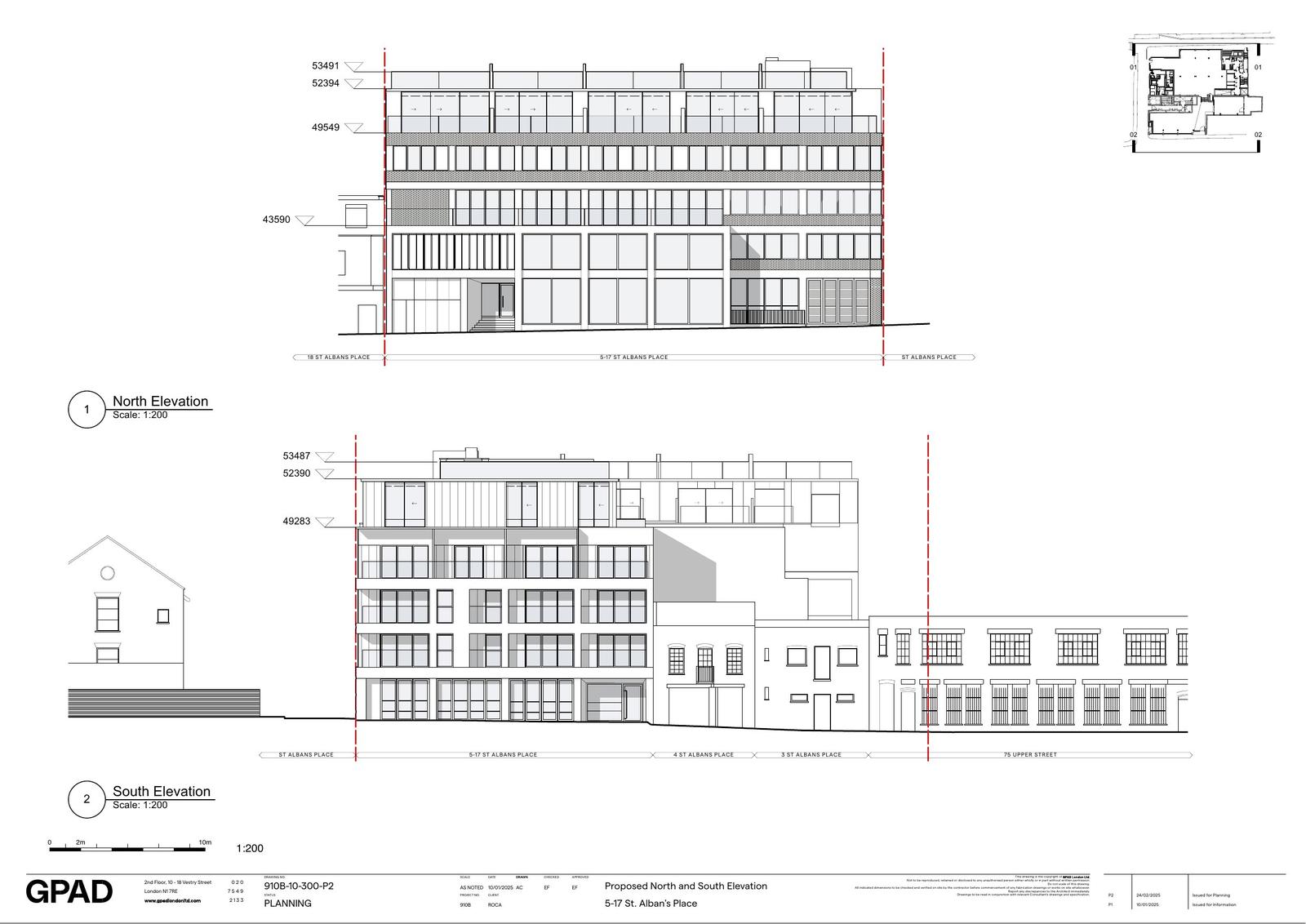
Erection of 1-storey roof extension containing 1x 2 bed unit and associated cycle parking and refuse storage
Documents
Have your say
Your comment matters. Councils must consider every representation that raises material planning considerations.