← Islington Council

Status

VALIDATED House extension
Received
04 Feb 2026
New homes
0

Full proposal

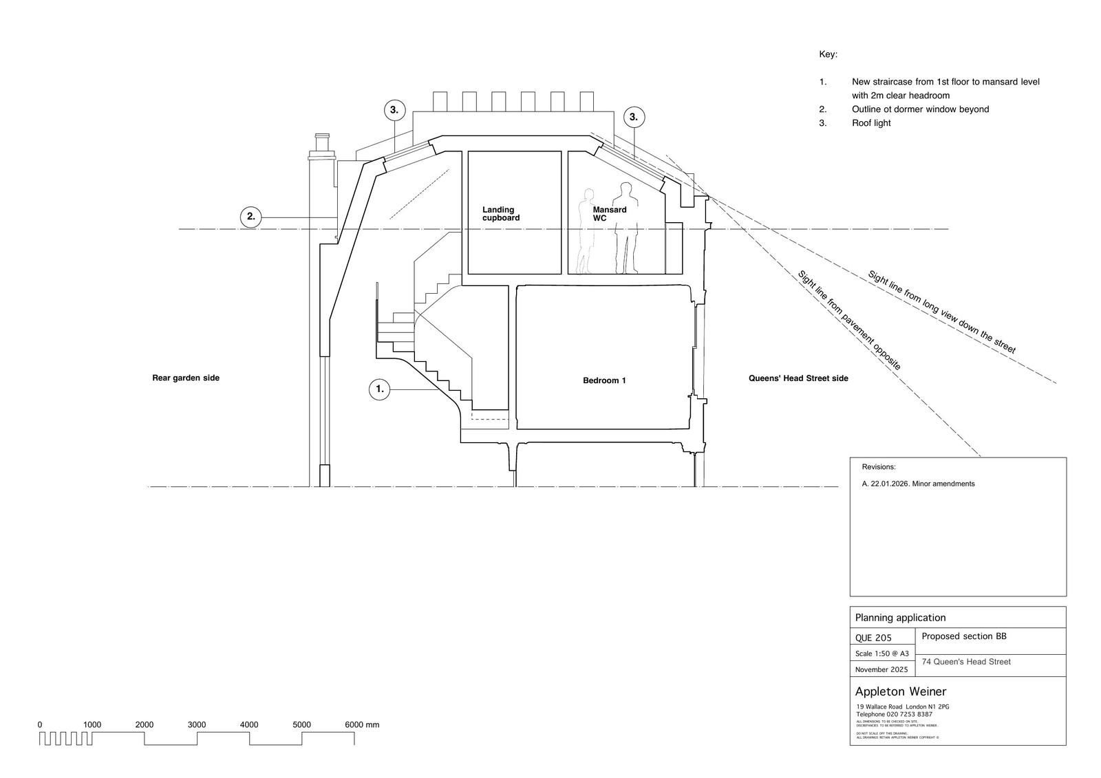
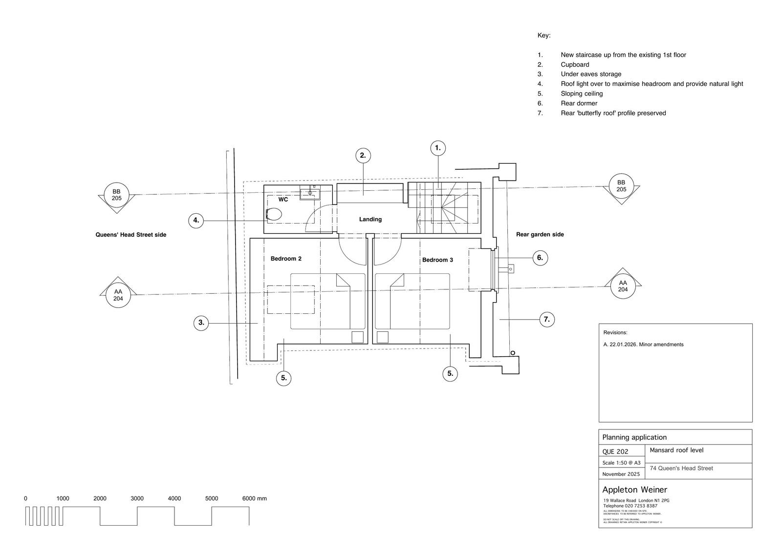
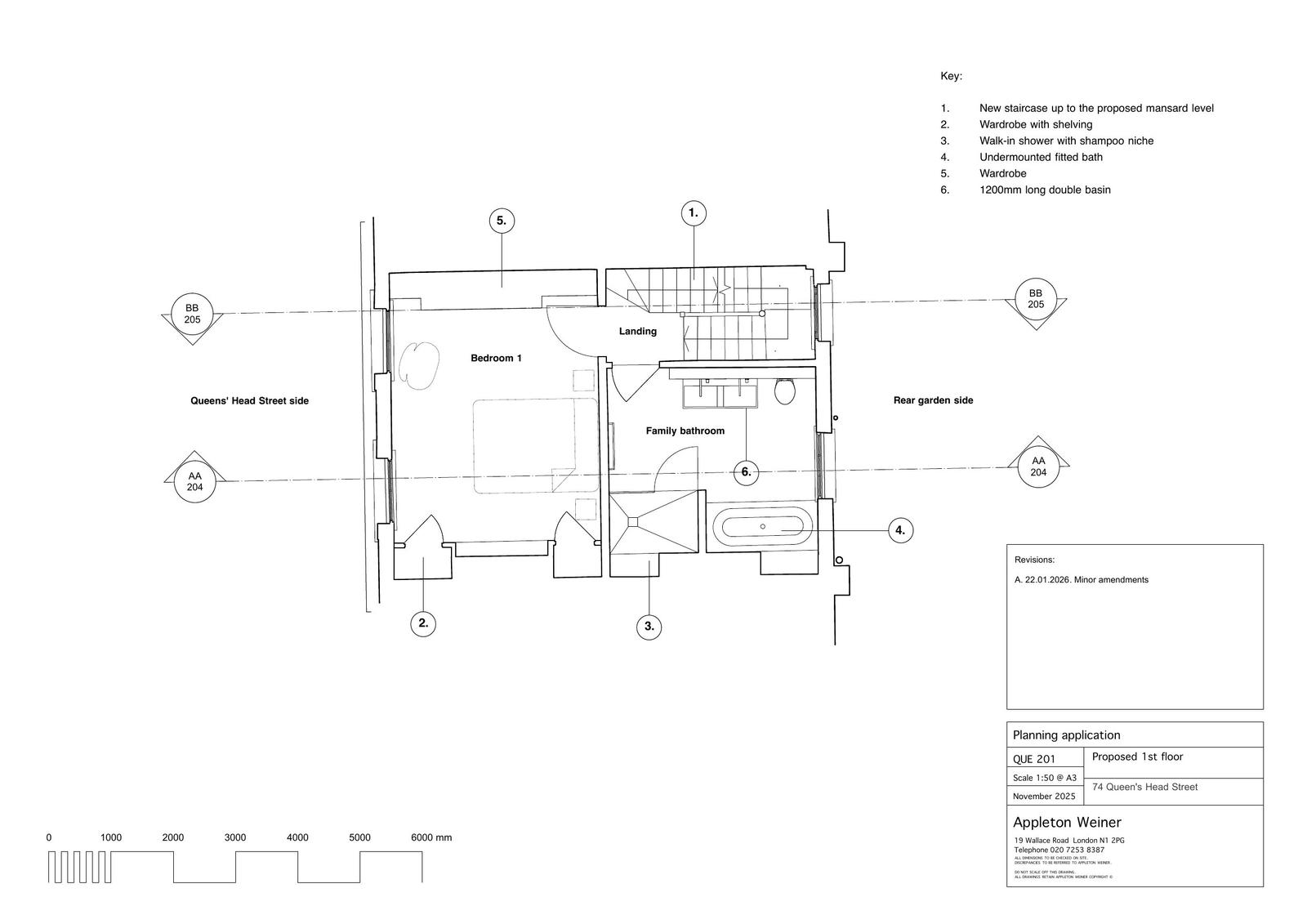
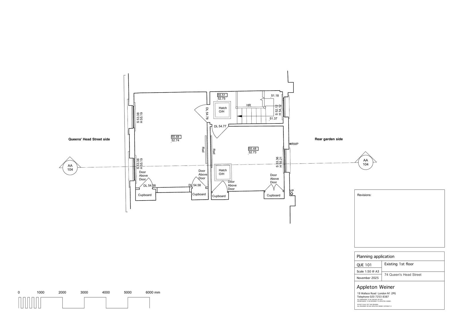
Construction of mansard roof extension.

Documents

Application Form - Redacted
Archived · Original link
Design and Access Statement
Archived · Original link
Drawings - Existing
Archived · Original link
Drawings - Proposed
Archived · Original link
Drawings - Existing
Archived · Original link
Drawings - Proposed
Archived · Original link
Drawings - Existing
Archived · Original link
Drawings - Proposed
Archived · Original link
Drawings - Proposed
Archived · Original link
Supporting Documentation
Archived · Original link
Drawings - Existing
Archived · Original link
Drawings - Proposed
Archived · Original link
Drawings - Proposed
Archived · Original link
Location Plan
Archived · Original link

Have your say

Your comment matters. Councils must consider every representation that raises material planning considerations.

Write a comment