← Islington Council

Status

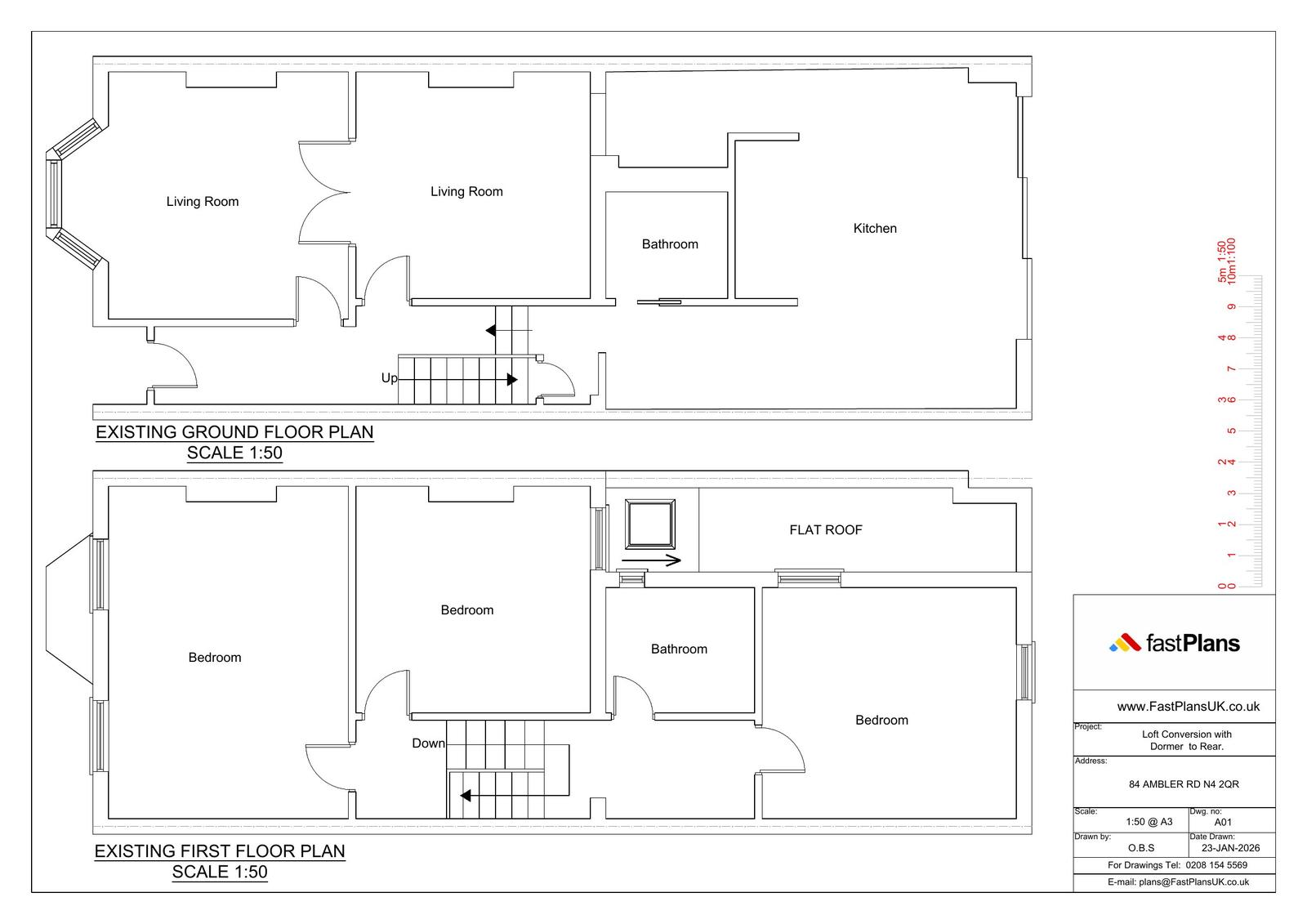
VALIDATED House extension
Received
05 Feb 2026
New homes
0

Full proposal

Erection of L-Shaped rear dormer with installation of rooflights to front slope.

Documents

Application Form - Redacted
Archived · Original link
Block plan of the site
Archived · Original link
Supporting Documentation
Archived · Original link
Drawings - Proposed - Combined
Archived · Original link
Fire Risk Assessment
Archived · Original link
Design and Access Statement
Archived · Original link
Location Plan
Archived · Original link

Have your say

Your comment matters. Councils must consider every representation that raises material planning considerations.

Write a comment