← Islington Council

Status

VALIDATED Change of use
Received
05 Feb 2026
New homes
0

Full proposal

Proposed change of use of first, second and third floor from offices (Use Class E) to residential (Use Class C3), replacement rooftop stair enclosure and associated alterations.

Documents

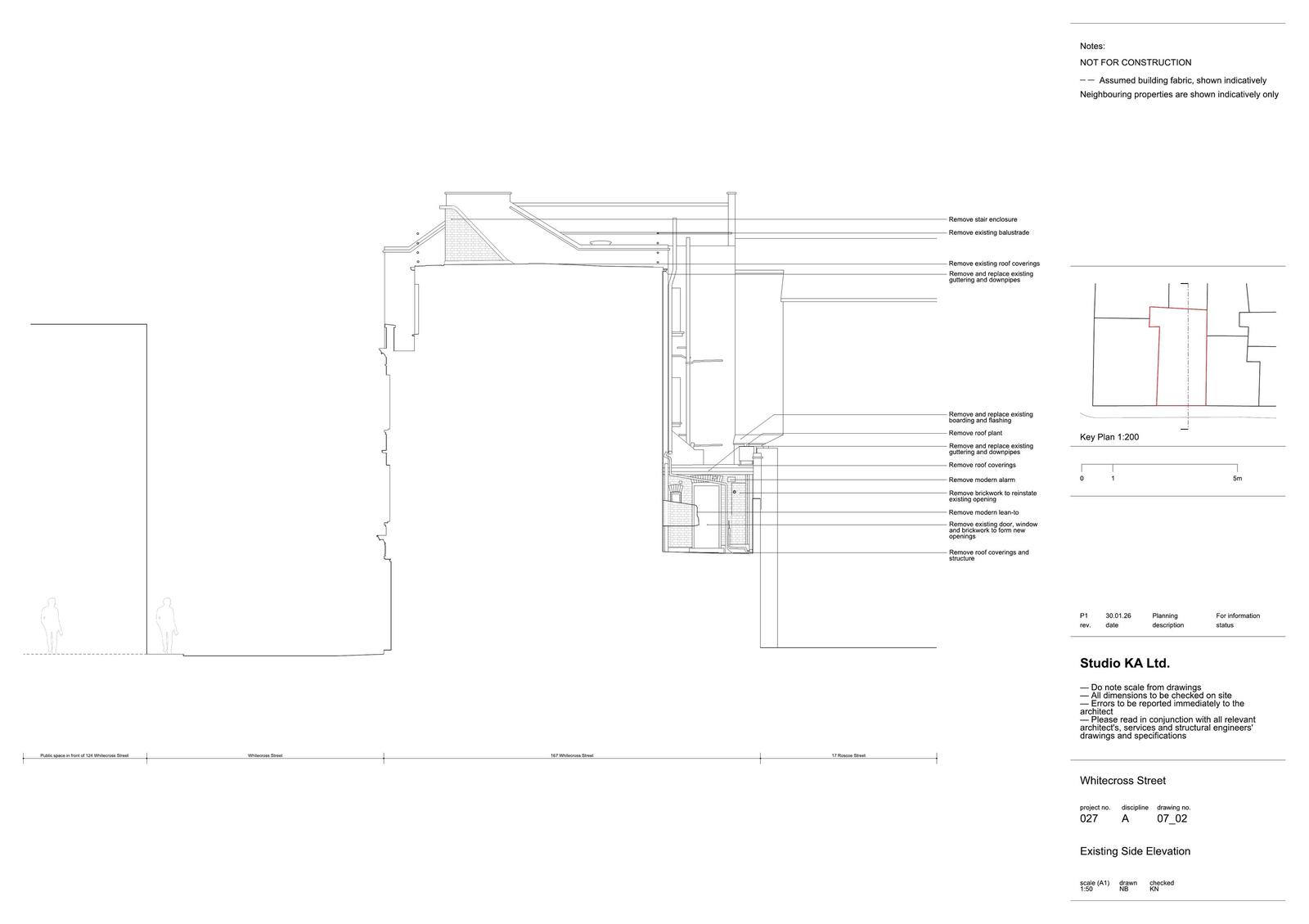
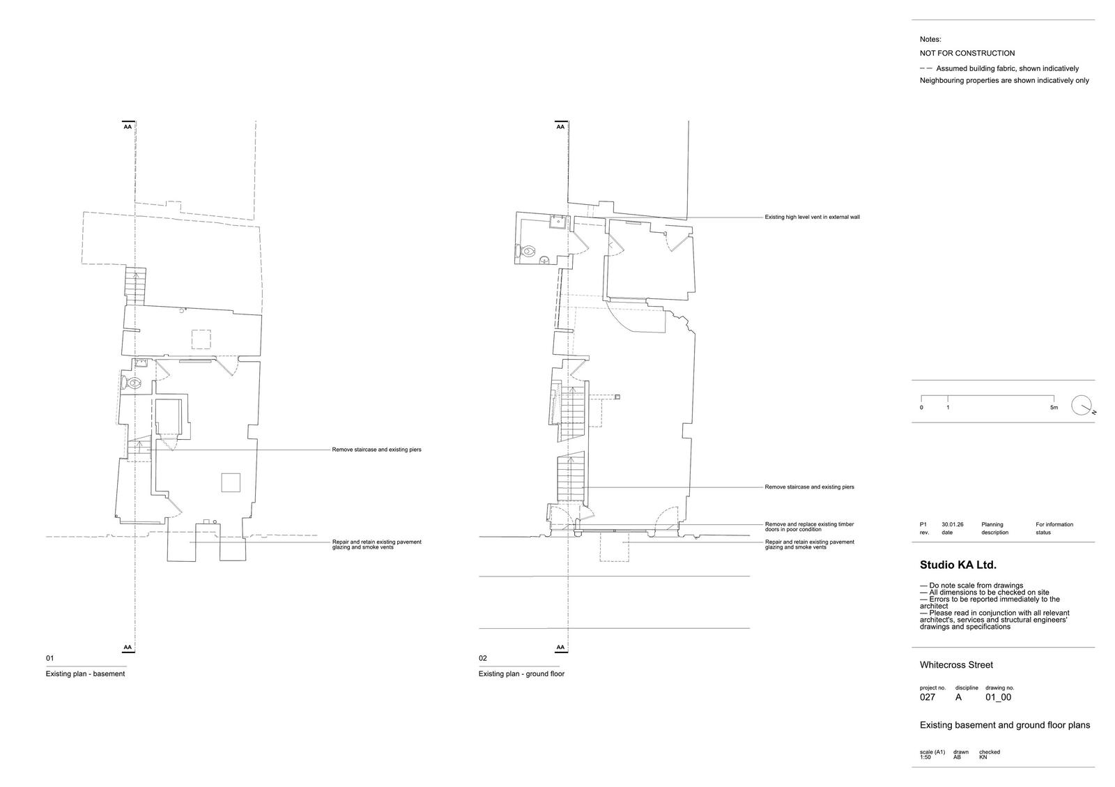
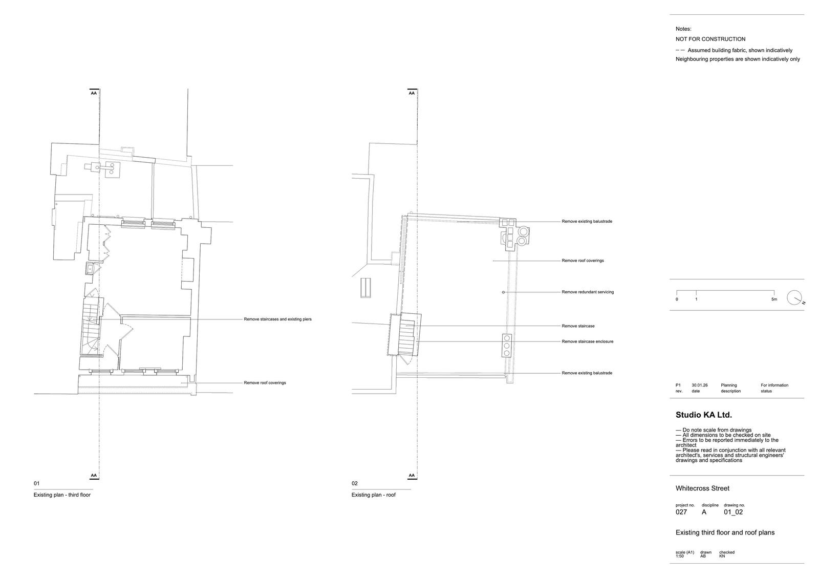
Drawings - Existing
Archived · Original link
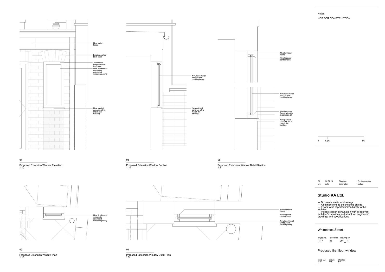
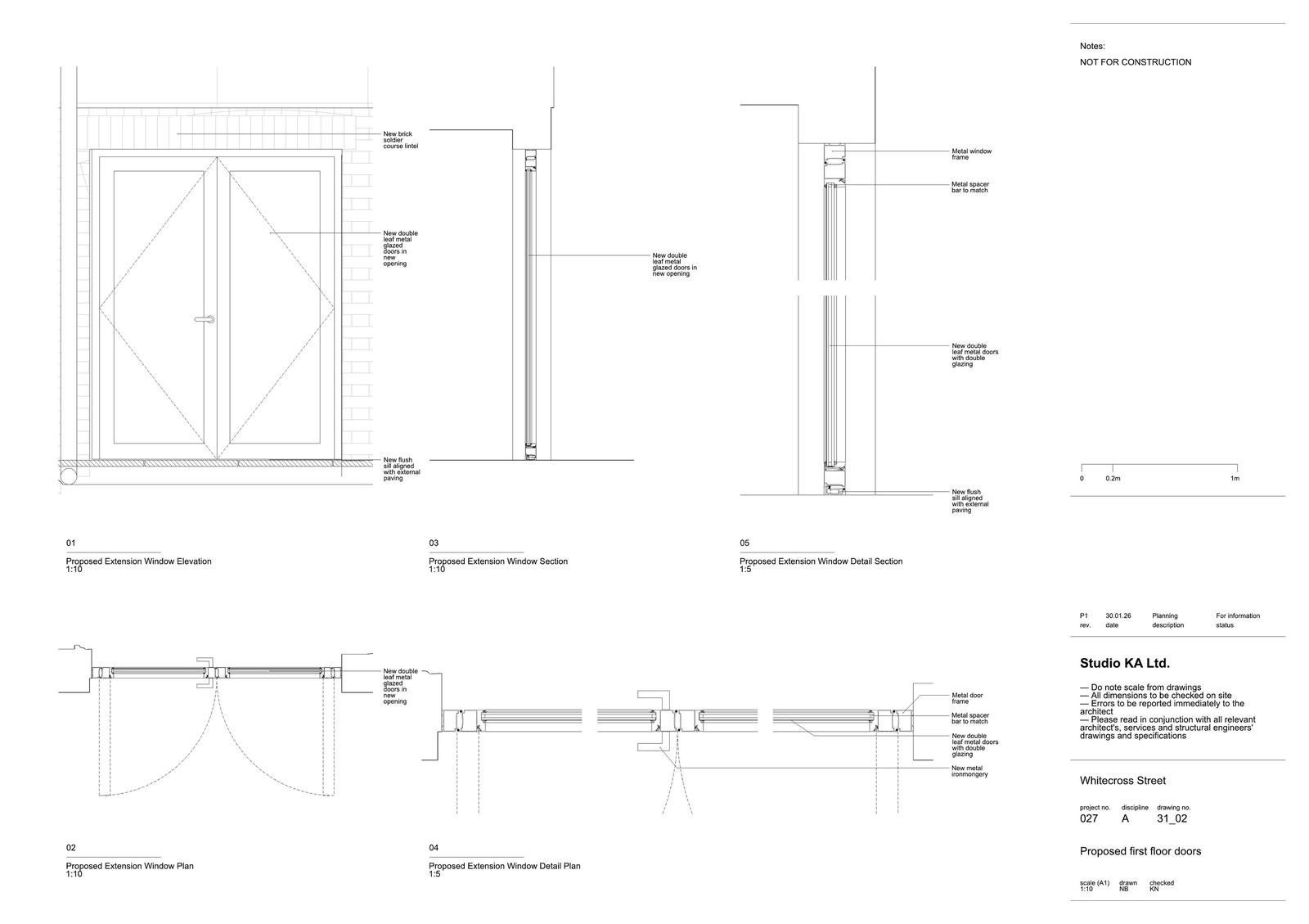
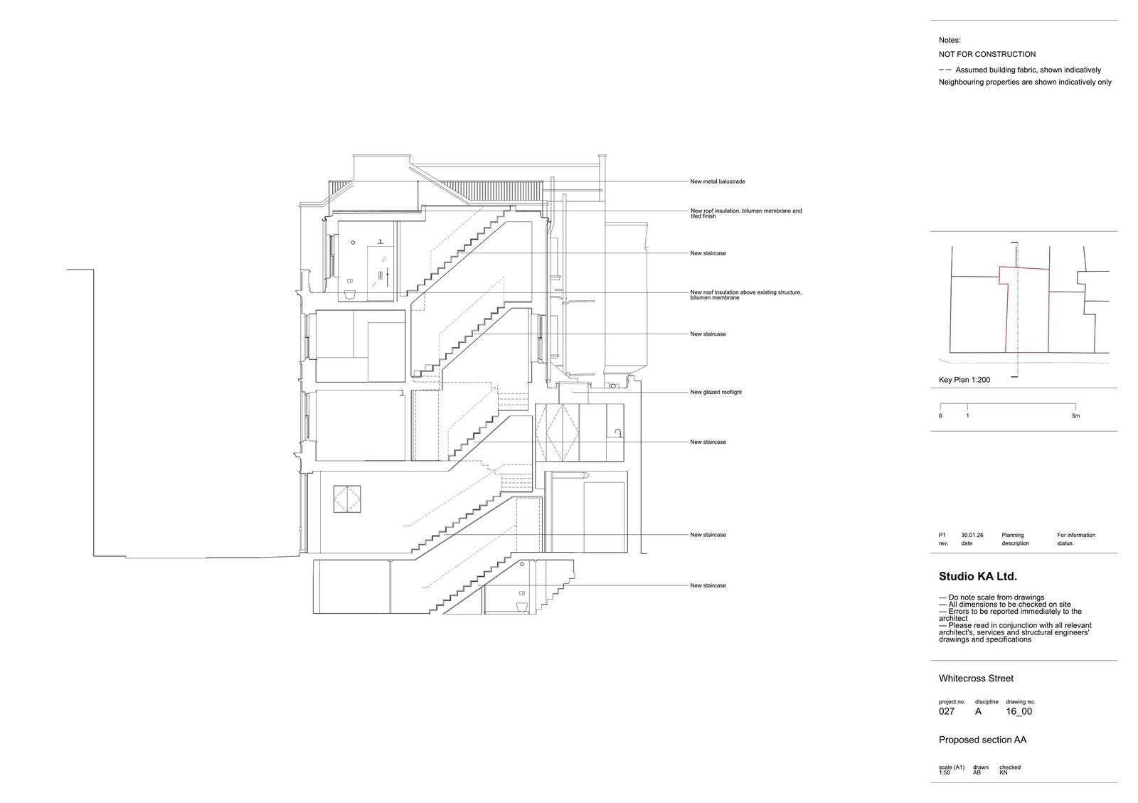
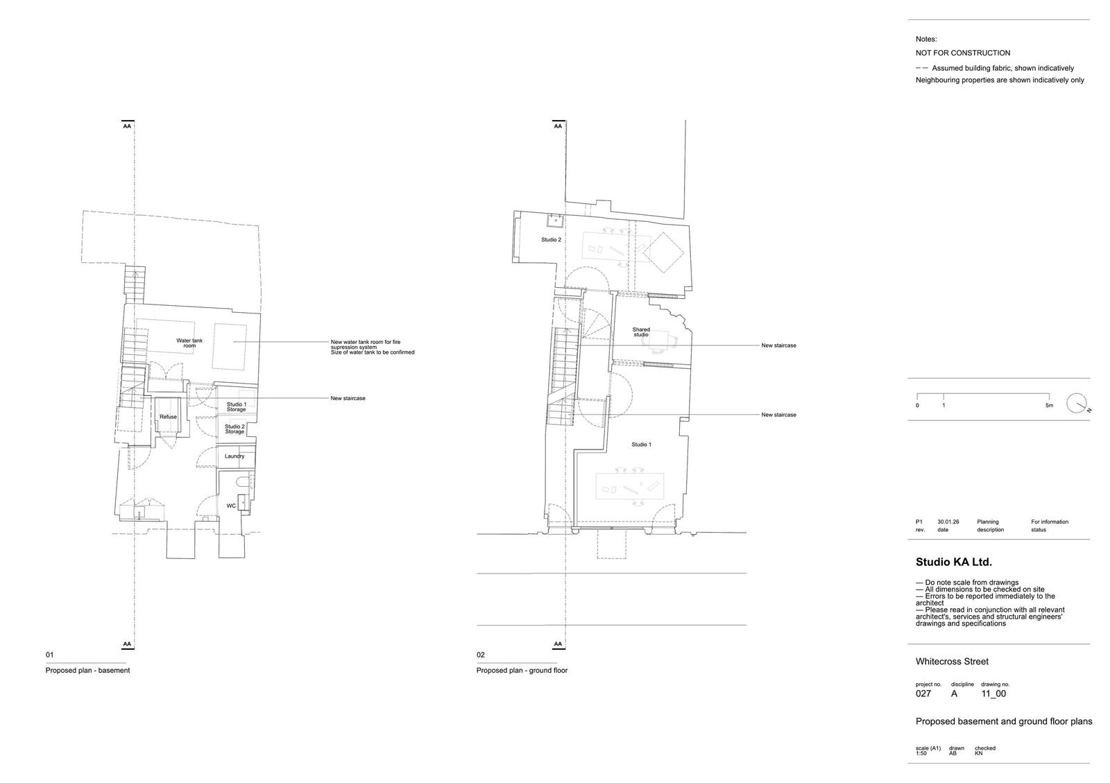
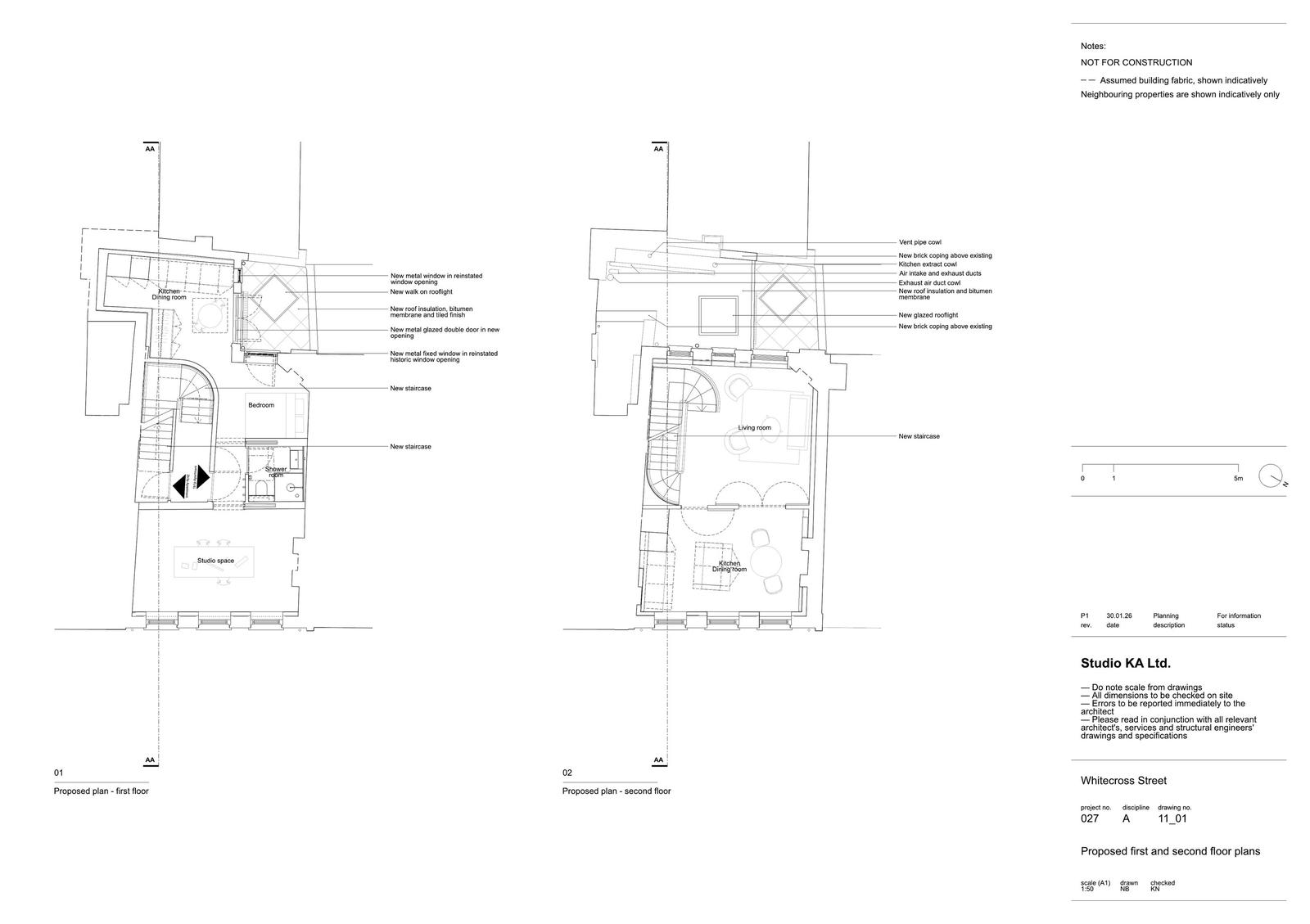
Drawings - Proposed
Archived · Original link
Supporting Documentation
Archived · Original link
Design and Access Statement
Archived · Original link
Design and Access Statement
Archived · Original link
Design and Access Statement
Archived · Original link
Design and Access Statement
Archived · Original link
Supporting Documentation
Archived · Original link
Drawings - Existing
Archived · Original link
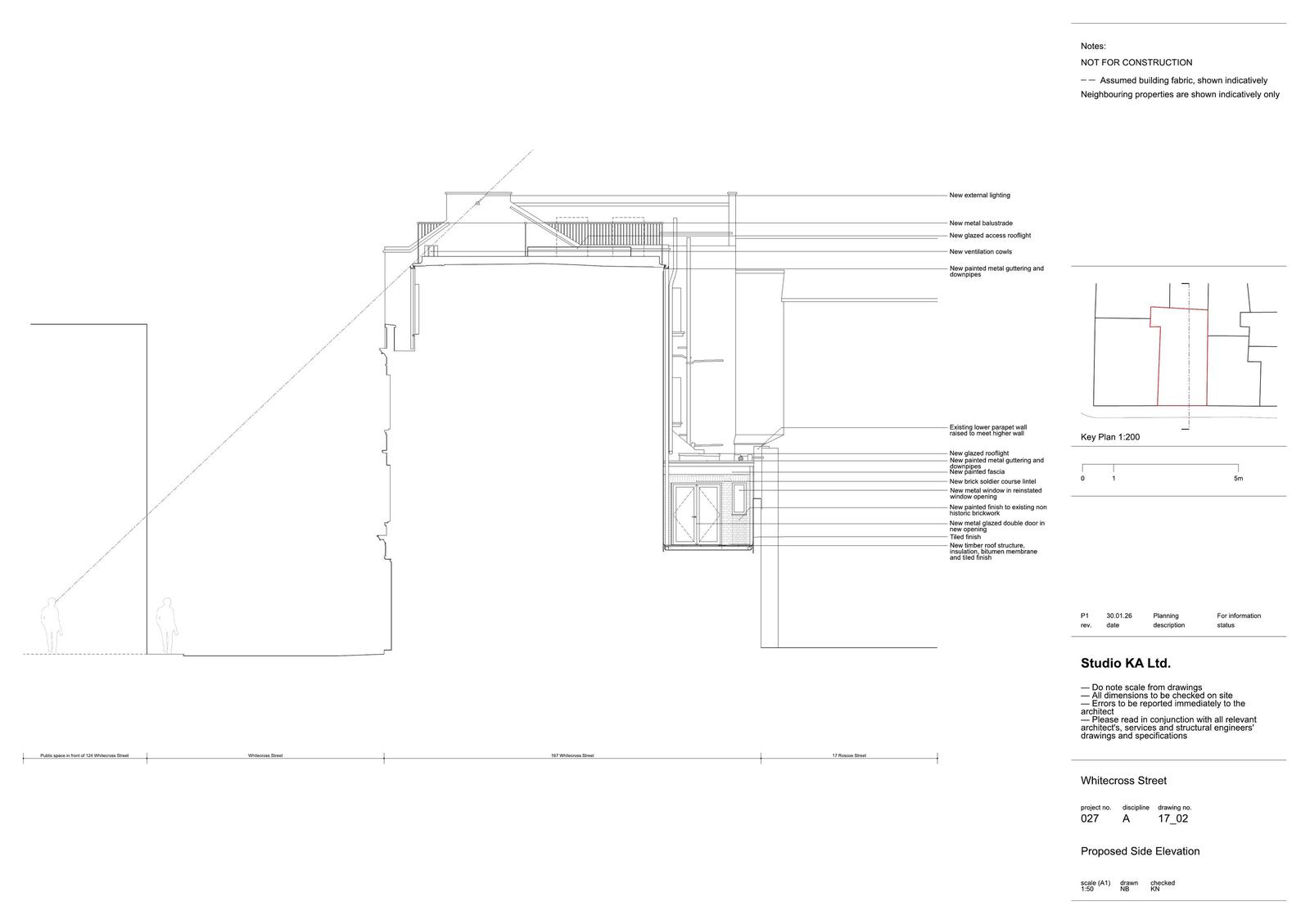
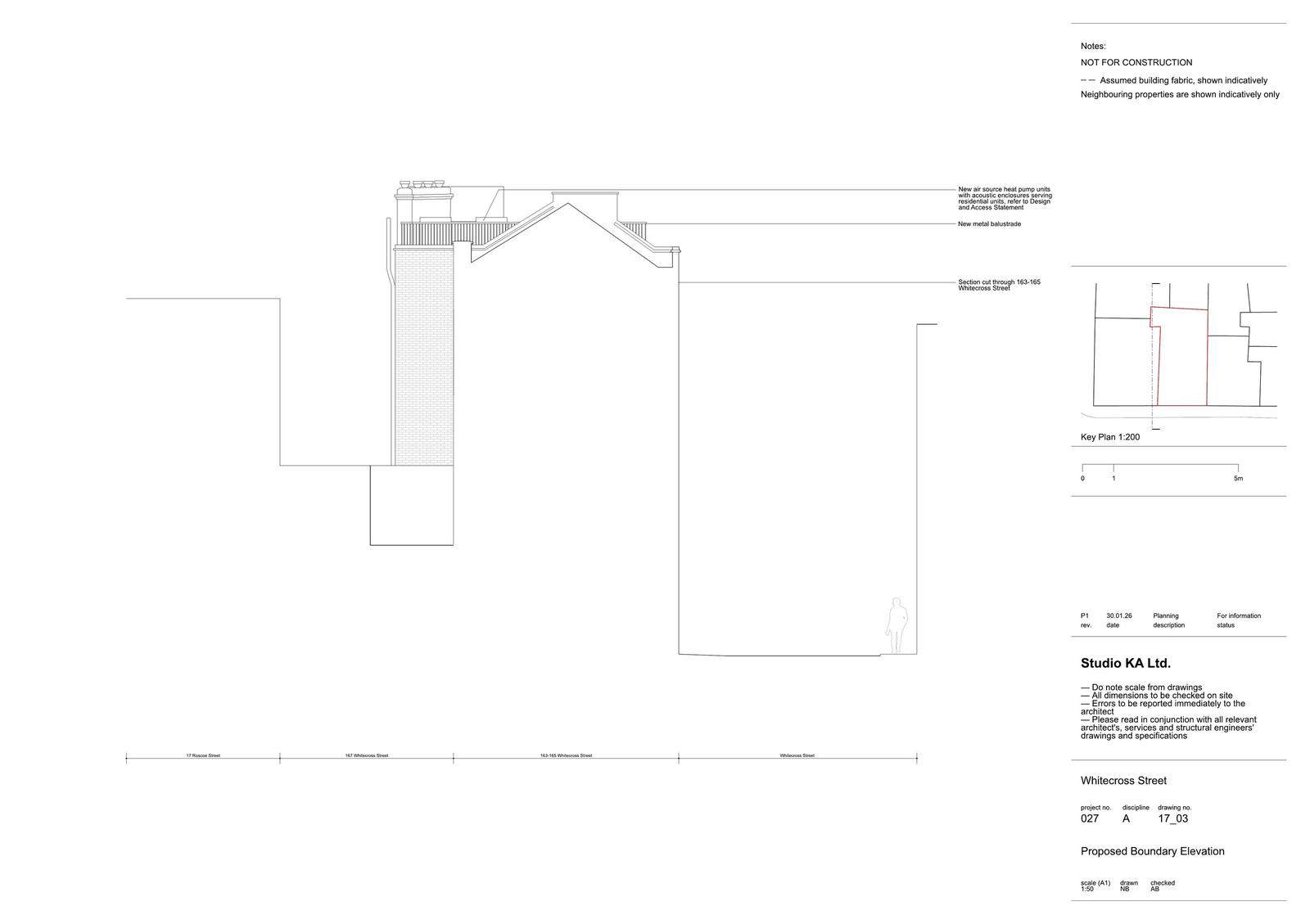
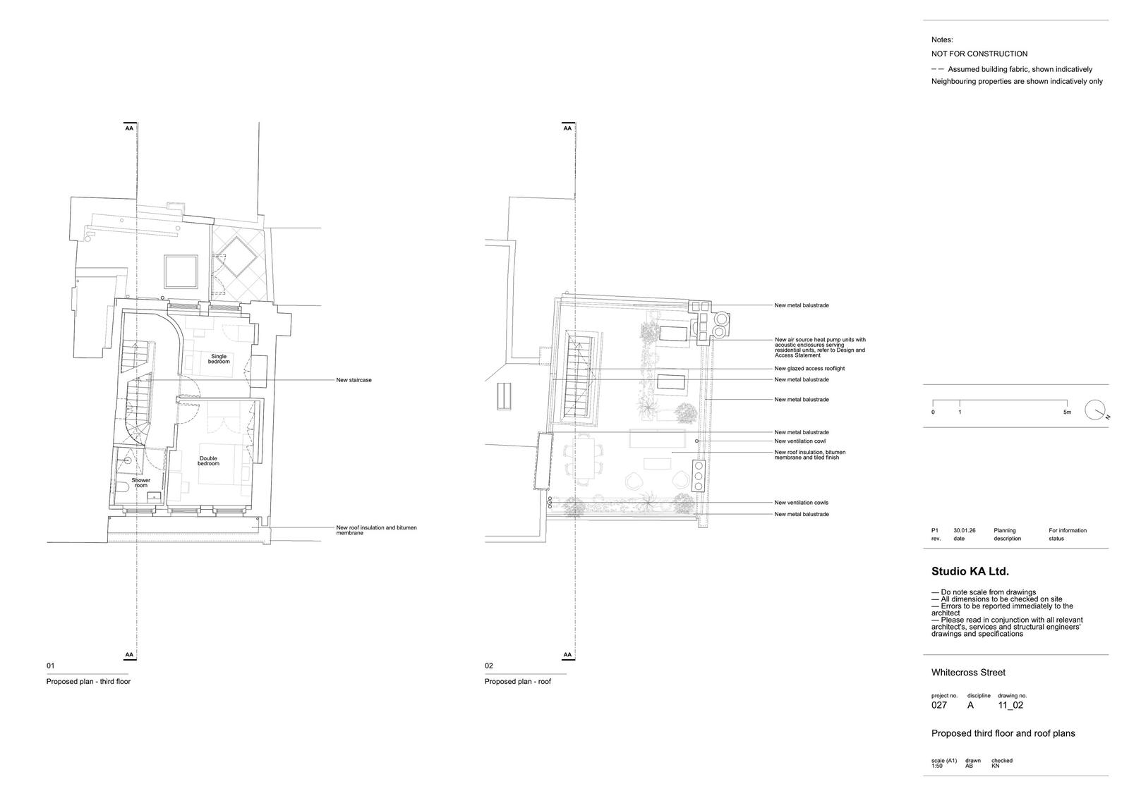
Drawings - Proposed
Archived · Original link
Drawings - Proposed
Archived · Original link
Drawings - Existing
Archived · Original link
Drawings - Proposed
Archived · Original link
Drawings - Existing
Archived · Original link
Drawings - Existing
Archived · Original link
Drawings - Proposed
Archived · Original link
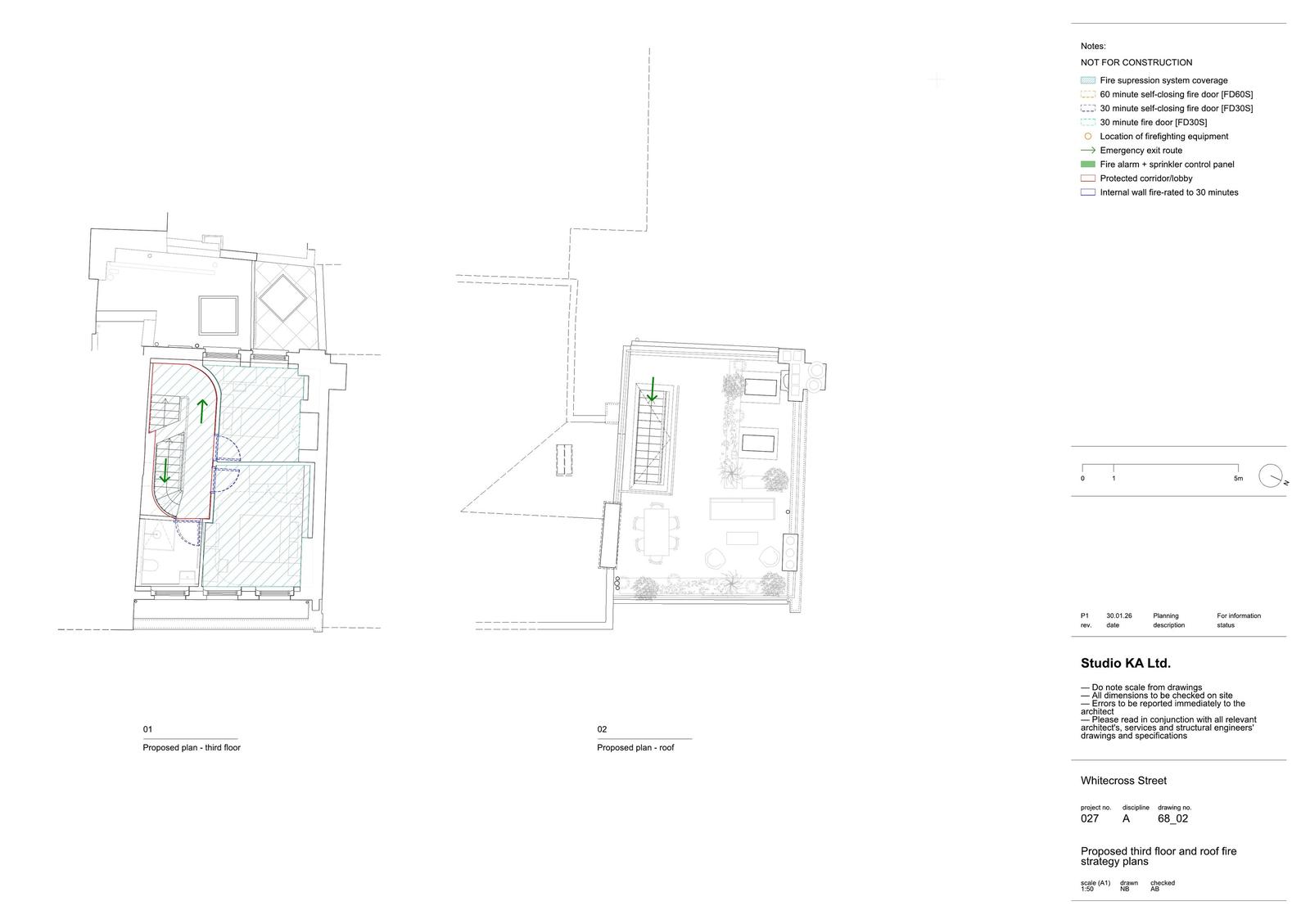
Fire Strategy
Archived · Original link
Drawings - Existing
Archived · Original link
Drawings - Proposed
Archived · Original link
Supporting Documentation
Archived · Original link
Supporting Documentation
Archived · Original link
Drawings - Proposed
Archived · Original link
Drawings - Proposed
Archived · Original link
Drawings - Proposed
Archived · Original link
Drawings - Proposed
Archived · Original link
Drawings - Proposed
Archived · Original link
Drawings - Proposed
Archived · Original link
Drawings - Proposed
Archived · Original link
Drawings - Proposed
Archived · Original link
Drawings - Existing
Archived · Original link
Drawings - Proposed
Archived · Original link
Drawings - Existing
Archived · Original link
Supporting Documentation
Archived · Original link
Drawings - Existing
Archived · Original link
Drawings - Existing
Archived · Original link
Drawings - Proposed
Archived · Original link

Have your say

Your comment matters. Councils must consider every representation that raises material planning considerations.

Write a comment