P2026/0339/LBC
Islington Council
Status
VALIDATED
Listed building
Received
Last month
New homes
0
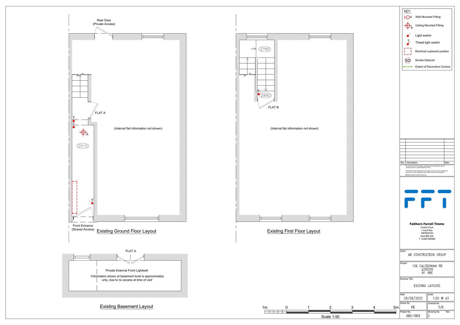
Full proposal
Replacement of internal flat entrance doors, architraves and fanlights, installation of new fire alarm system, and replacement electrical cupboard.
Documents
Have your say
Your comment matters. Councils must consider every representation that raises material planning considerations.