← Islington Council

Status

FIRST STAGE REVIEW Listed building
Received
Last month
New homes
0

Full proposal

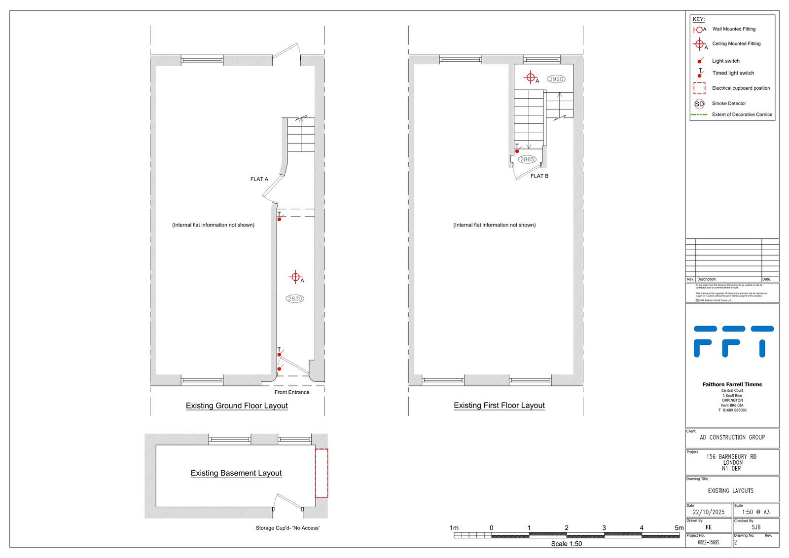
Replacement of internal flat entrance doors, architraves and fanlights, installation of new fire alarm system, and replacement electrical cupboard.

Have your say

Your comment matters. Councils must consider every representation that raises material planning considerations.

Write a comment