← Islington Council

Status

OFFICER REVIEW House extension
Received
Last month
New homes
0

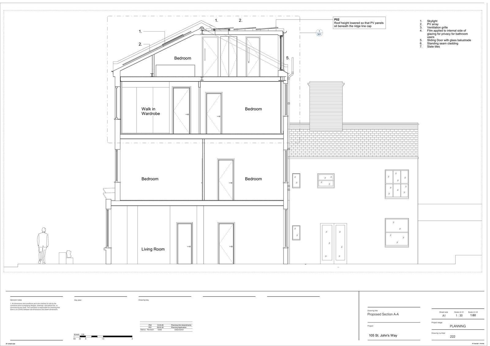
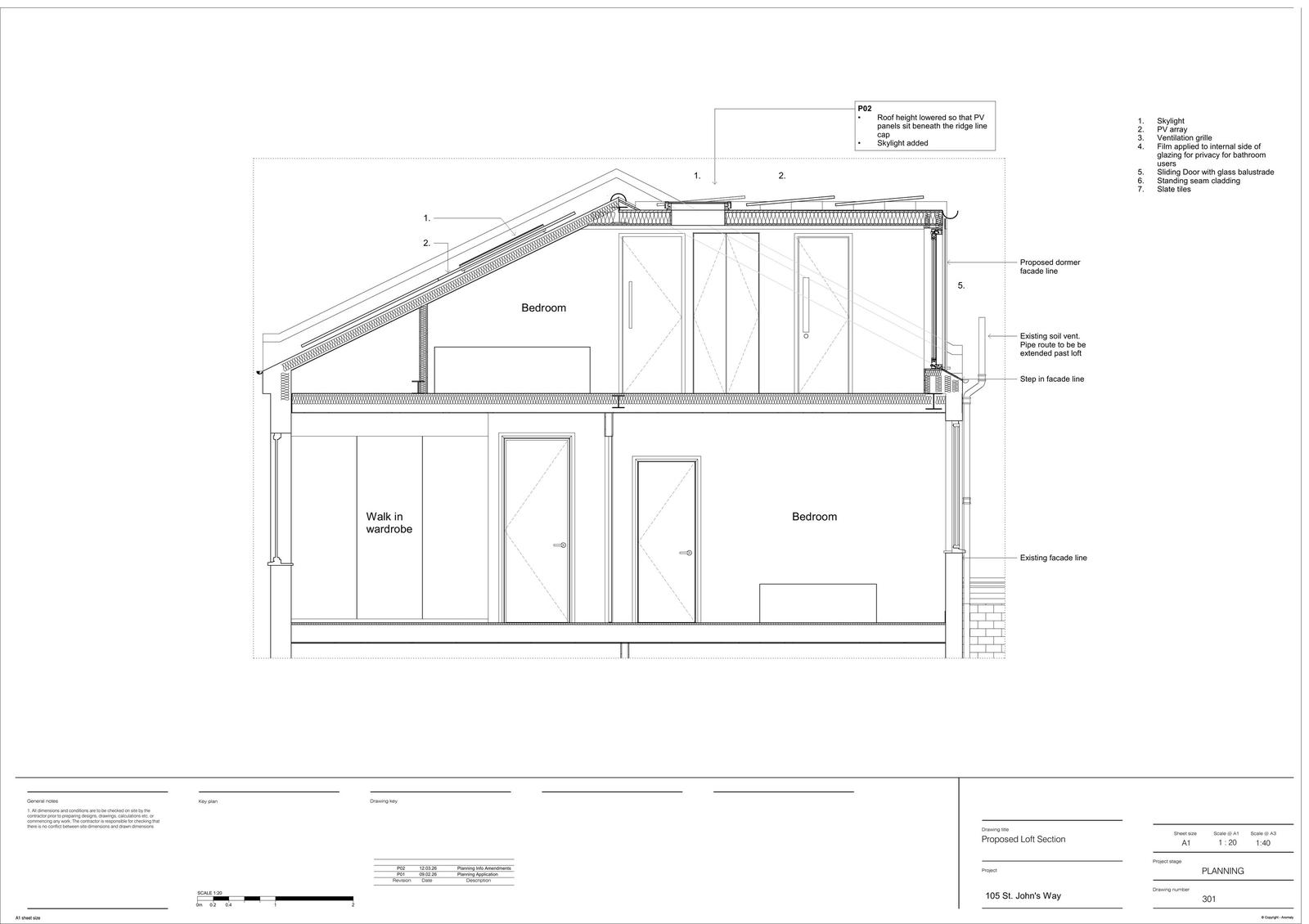
Full proposal

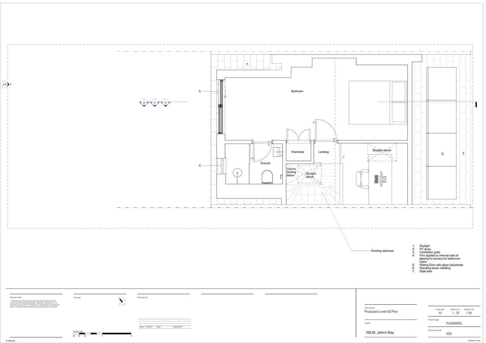
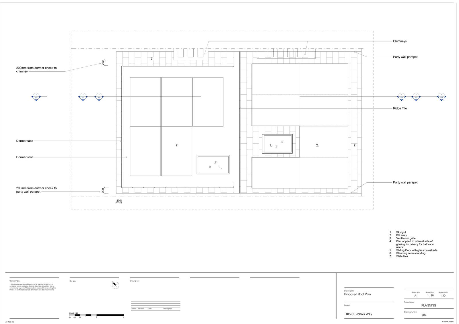
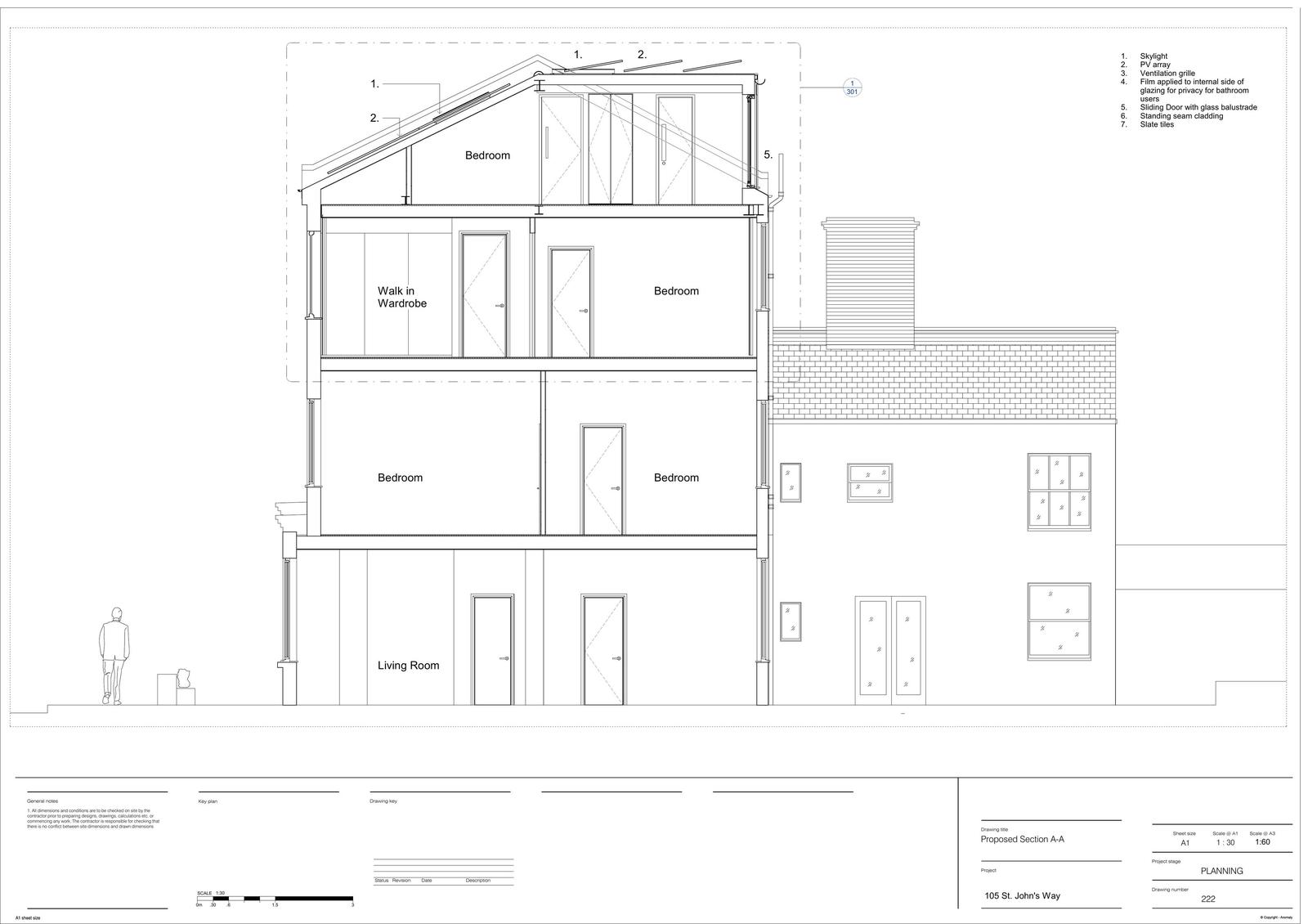
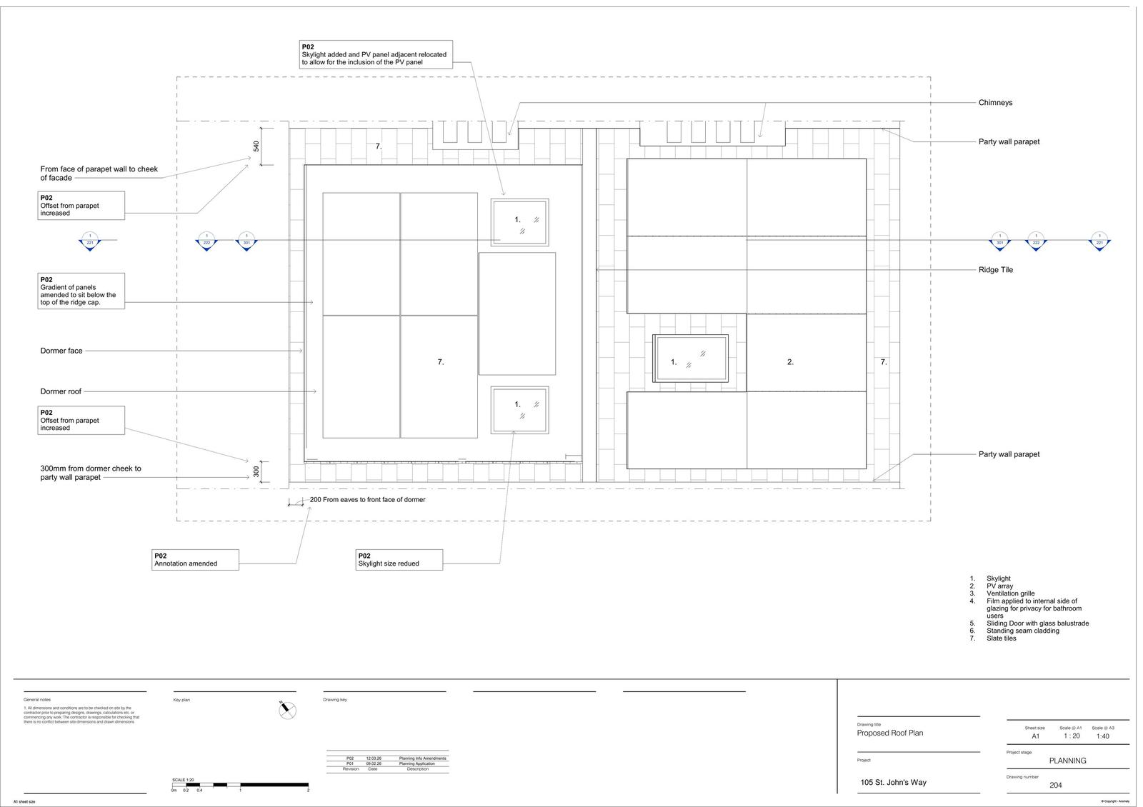
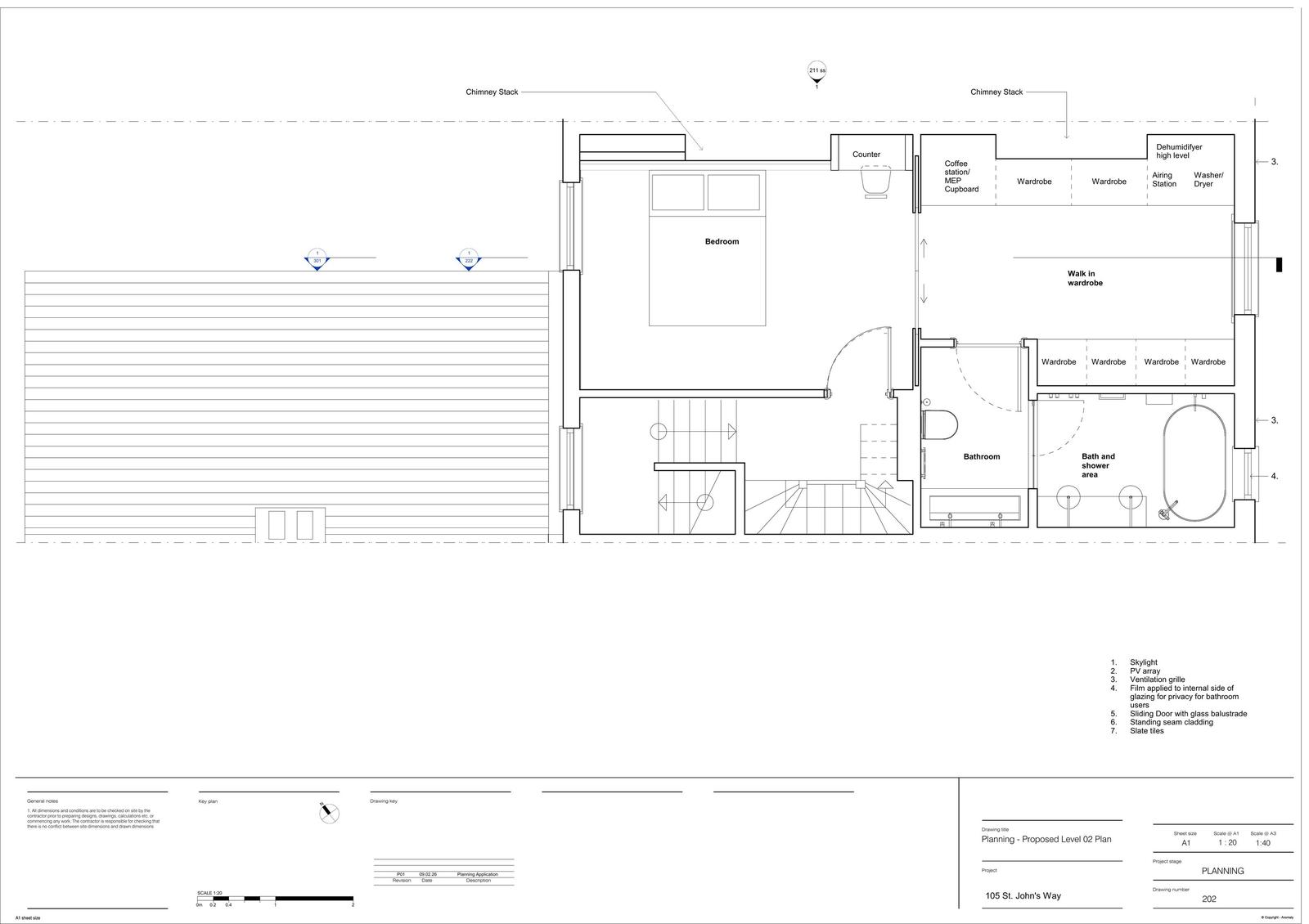
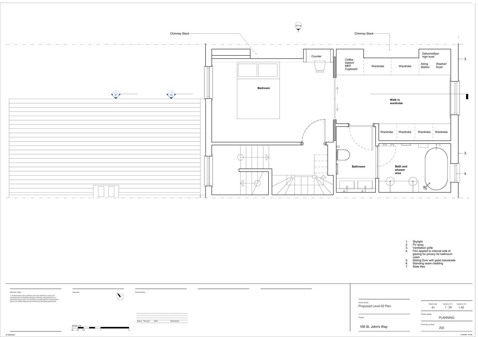
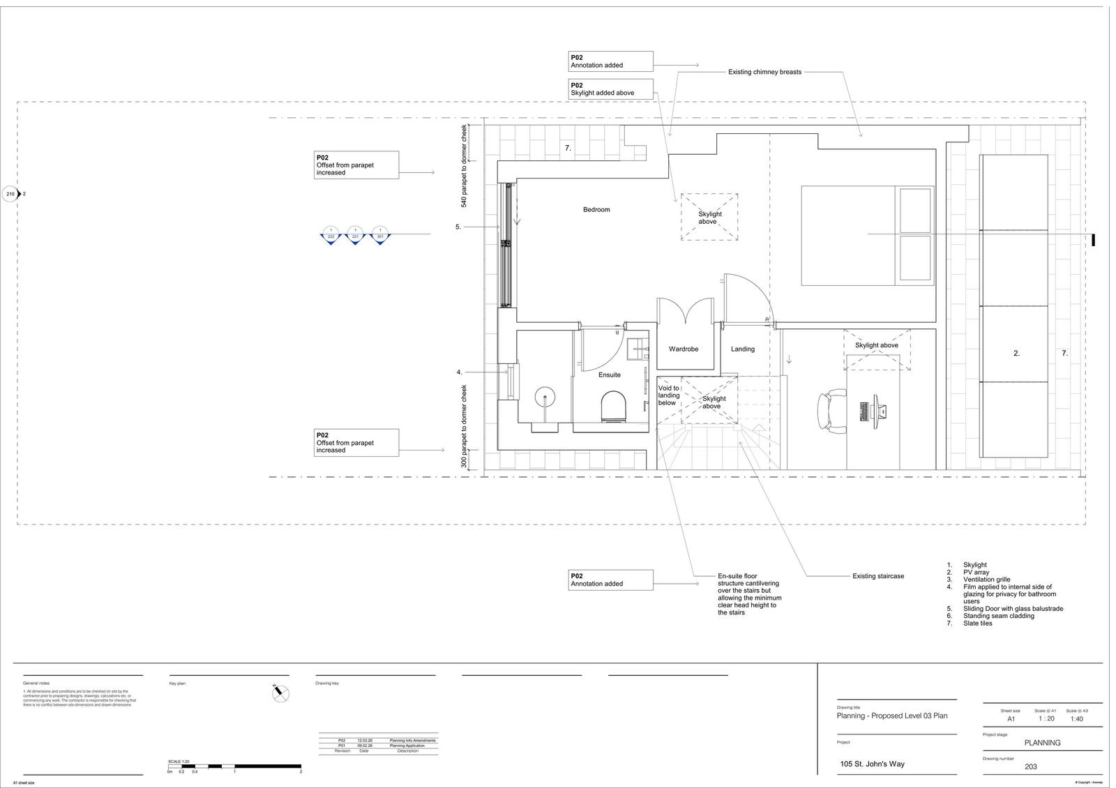
Erection of a rear dormer roof extension with associated PV panels and rooflights; installation of PV panels to the front roof slope; installation of two ventilation grilles to the front façade.

Documents

Supporting Documentation
Archived · Original link
Drawings - Proposed
Archived · Original link
Drawings - Proposed
Archived · Original link
Drawings - Proposed
Archived · Original link
Drawings - Proposed
Archived · Original link
Default
Archived · Original link
Drawings - Proposed
Archived · Original link
Drawings - Proposed
Archived · Original link
Default
Archived · Original link
Default
Archived · Original link
Default
Archived · Original link
Drawings - Proposed
Archived · Original link
Default
Archived · Original link
Default
Archived · Original link
Default
Archived · Original link

Have your say

Your comment matters. Councils must consider every representation that raises material planning considerations.

Write a comment