← Islington Council

Status

VALIDATED Change of use
Received
Last month
New homes
1

Full proposal

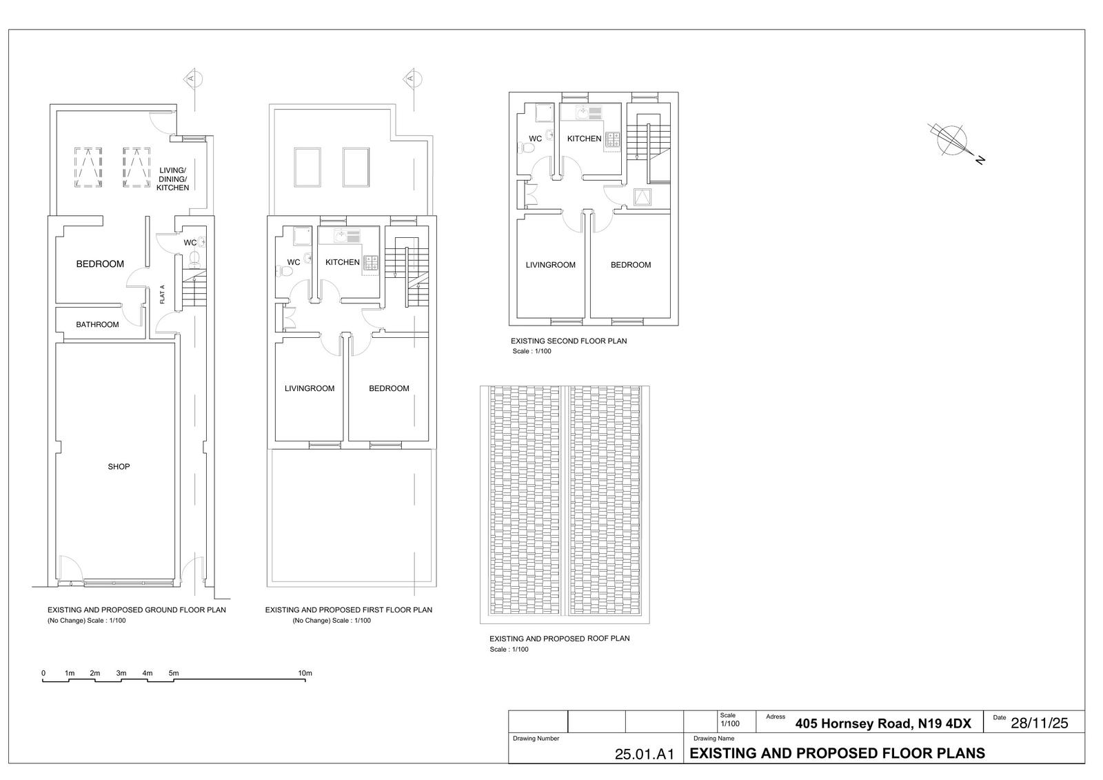
Retrospective change of use of the rear portion of the ground floor of the existing property from commercial (Class E) to residential use (Class C3) to form 1no. 1 bedroom flat.

Documents

Supporting Documentation
Archived · Original link
Design and Access Statement
Archived · Original link
Supporting Documentation
Archived · Original link
Existing & Proposed Plans
Archived · Original link
Supporting Documentation
Archived · Original link
Drawings - Existing
Archived · Original link

Have your say

Your comment matters. Councils must consider every representation that raises material planning considerations.

Write a comment