← Islington Council

Status

VALIDATED Other
Received
Last month
New homes
0

Full proposal

Replacement of single glazed timber windows with double glazed timber windows to front and rear elevations for Flats 141 & 141A

Documents

Supporting Documentation
Archived · Original link
Drawings - Existing
Archived · Original link
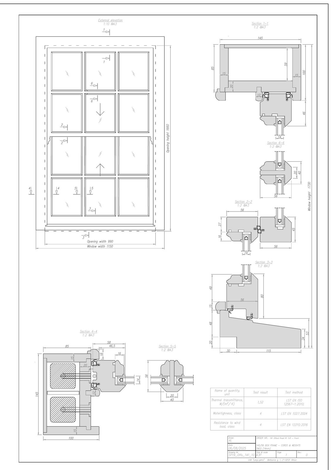
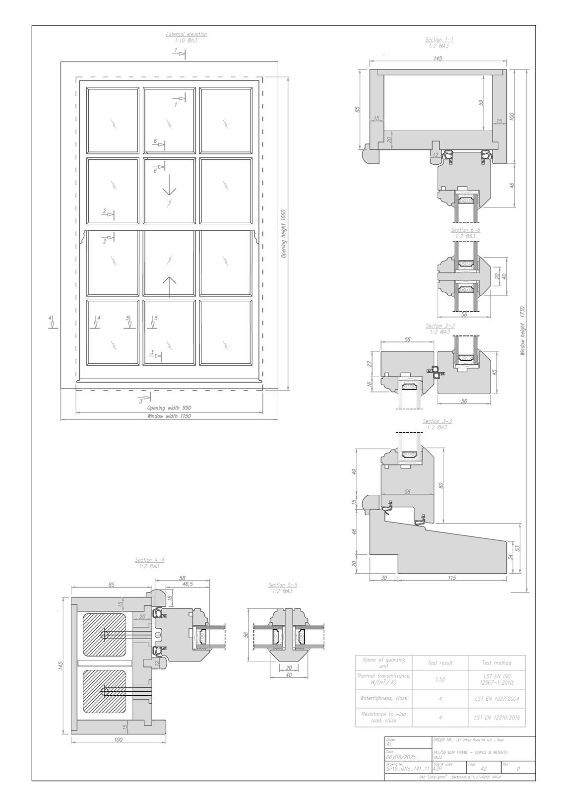
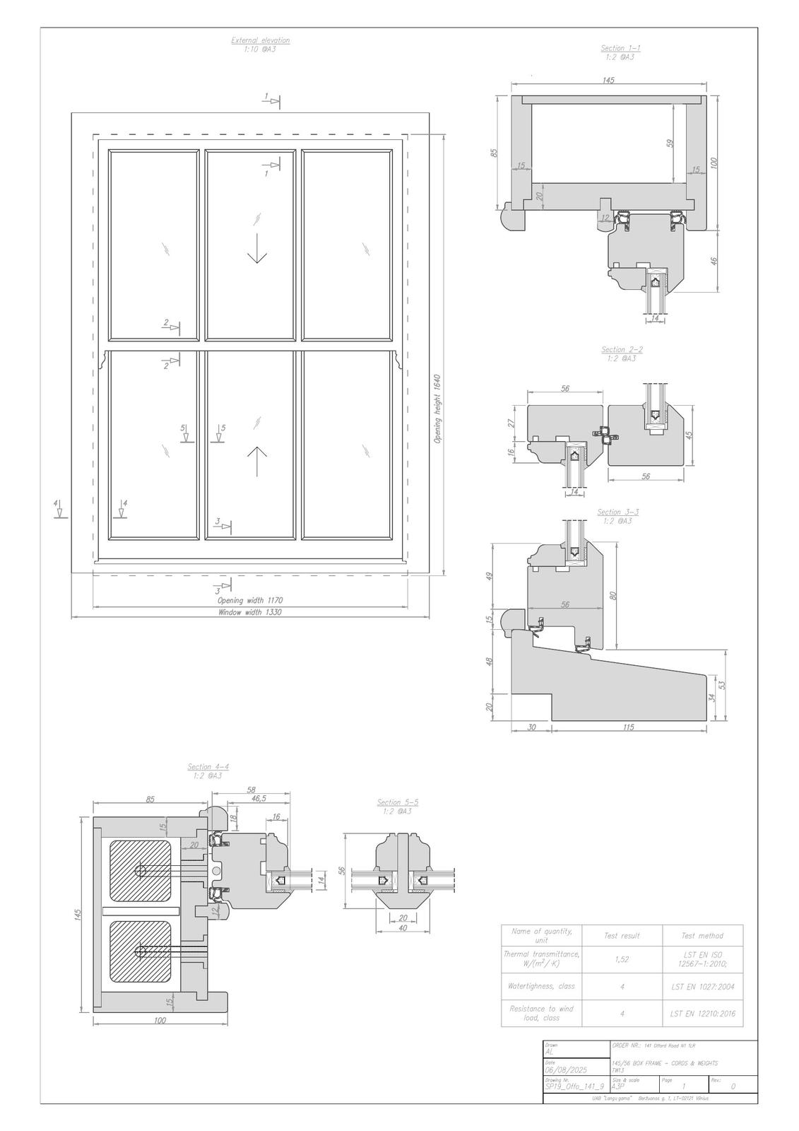
Drawings - Proposed
Archived · Original link
Drawings - Existing
Archived · Original link
Drawings - Proposed
Archived · Original link
Drawings - Existing
Archived · Original link
Drawings - Existing
Archived · Original link
Drawings - Existing
Archived · Original link
Supporting Documentation
Archived · Original link
Supporting Documentation
Archived · Original link
Drawings - Proposed
Archived · Original link
Drawings - Proposed
Archived · Original link
Drawings - Proposed
Archived · Original link
Drawings - Proposed
Archived · Original link
Supporting Documentation
Archived · Original link

Have your say

Your comment matters. Councils must consider every representation that raises material planning considerations.

Write a comment