← Islington Council

Status

VALIDATED Other
Received
Last month
New homes
0

Full proposal

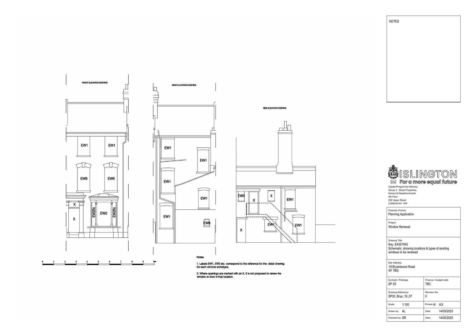
Replacement of single glazed timber windows with double glazed timber windows, to front, side and rear elevations of two flats

Documents

Application Form - Redacted
Archived · Original link
Supporting Documentation
Archived · Original link
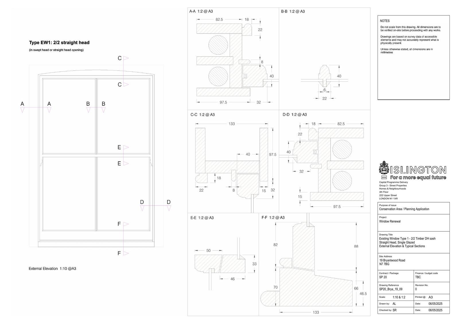
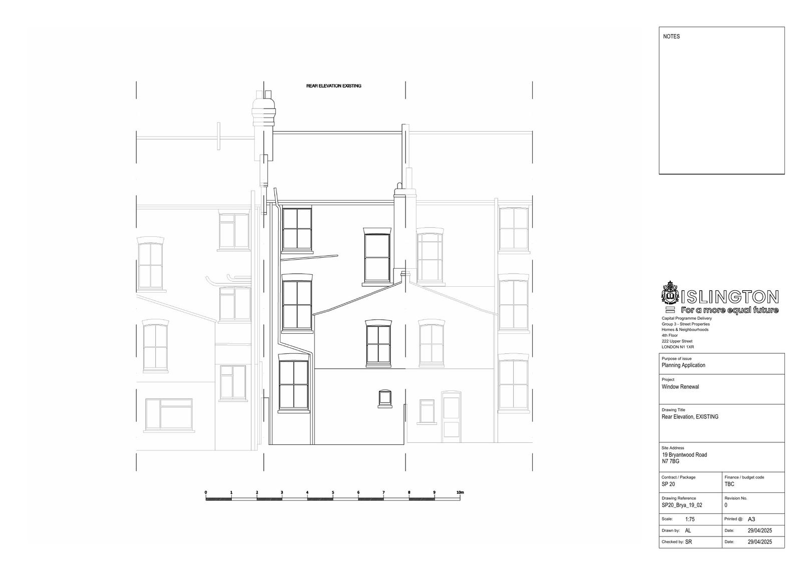
Drawings - Existing
Archived · Original link
Drawings - Existing
Archived · Original link
Drawings - Existing
Archived · Original link
Drawings - Existing
Archived · Original link
Drawings - Existing
Archived · Original link
Drawings - Existing
Archived · Original link
Drawings - Existing
Archived · Original link
Drawings - Existing
Archived · Original link
Drawings - Existing
Archived · Original link
Drawings - Existing
Archived · Original link
Supporting Documentation
Archived · Original link
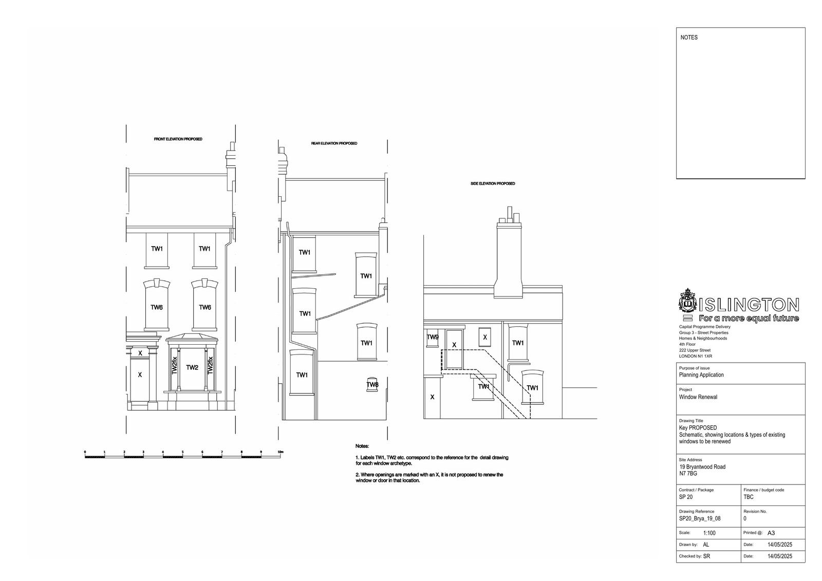
Drawings - Proposed
Archived · Original link
Drawings - Proposed
Archived · Original link
Drawings - Proposed
Archived · Original link
Drawings - Proposed
Archived · Original link
Drawings - Proposed
Archived · Original link
Drawings - Proposed
Archived · Original link
Drawings - Proposed
Archived · Original link
Drawings - Proposed
Archived · Original link
Supporting Documentation
Archived · Original link
Location Plan
Archived · Original link

Have your say

Your comment matters. Councils must consider every representation that raises material planning considerations.

Write a comment