← Islington Council

Status

VALIDATED House extension
Received
Last month
New homes
0

Full proposal

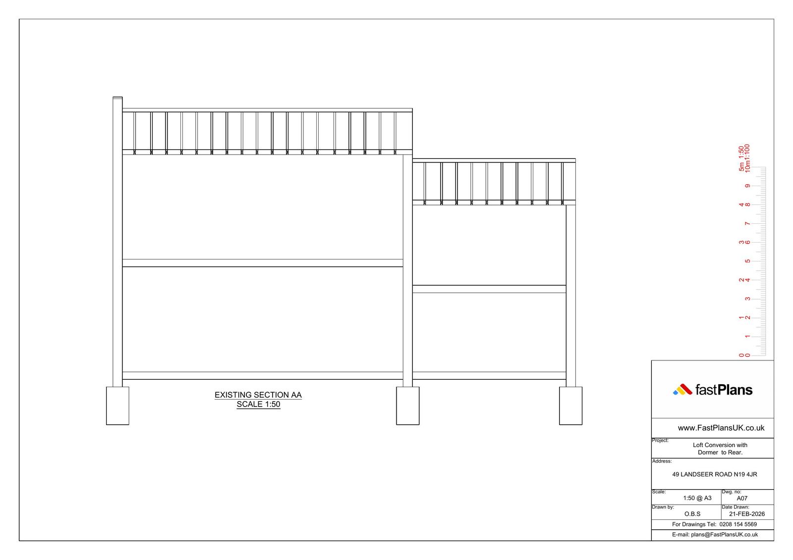
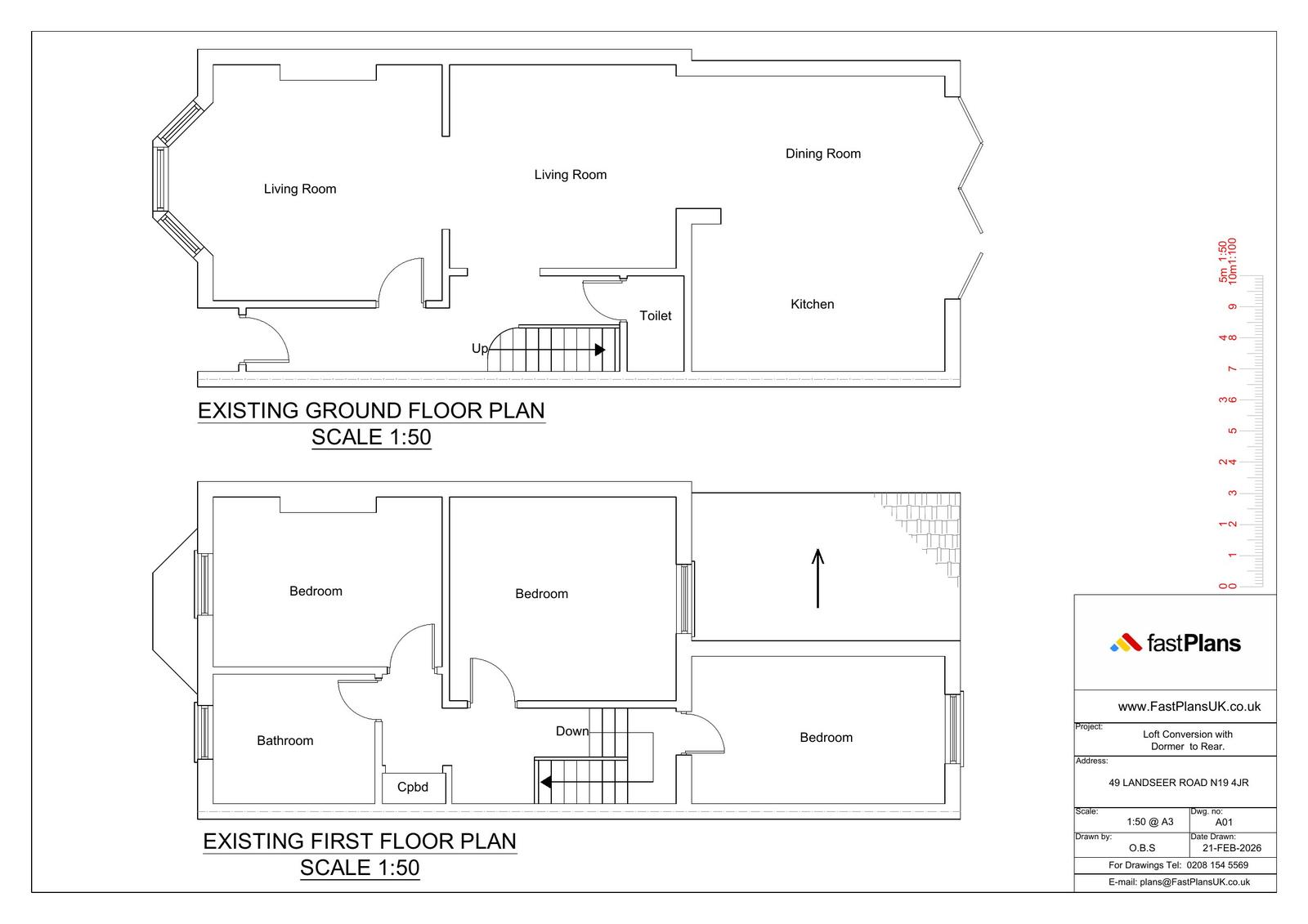
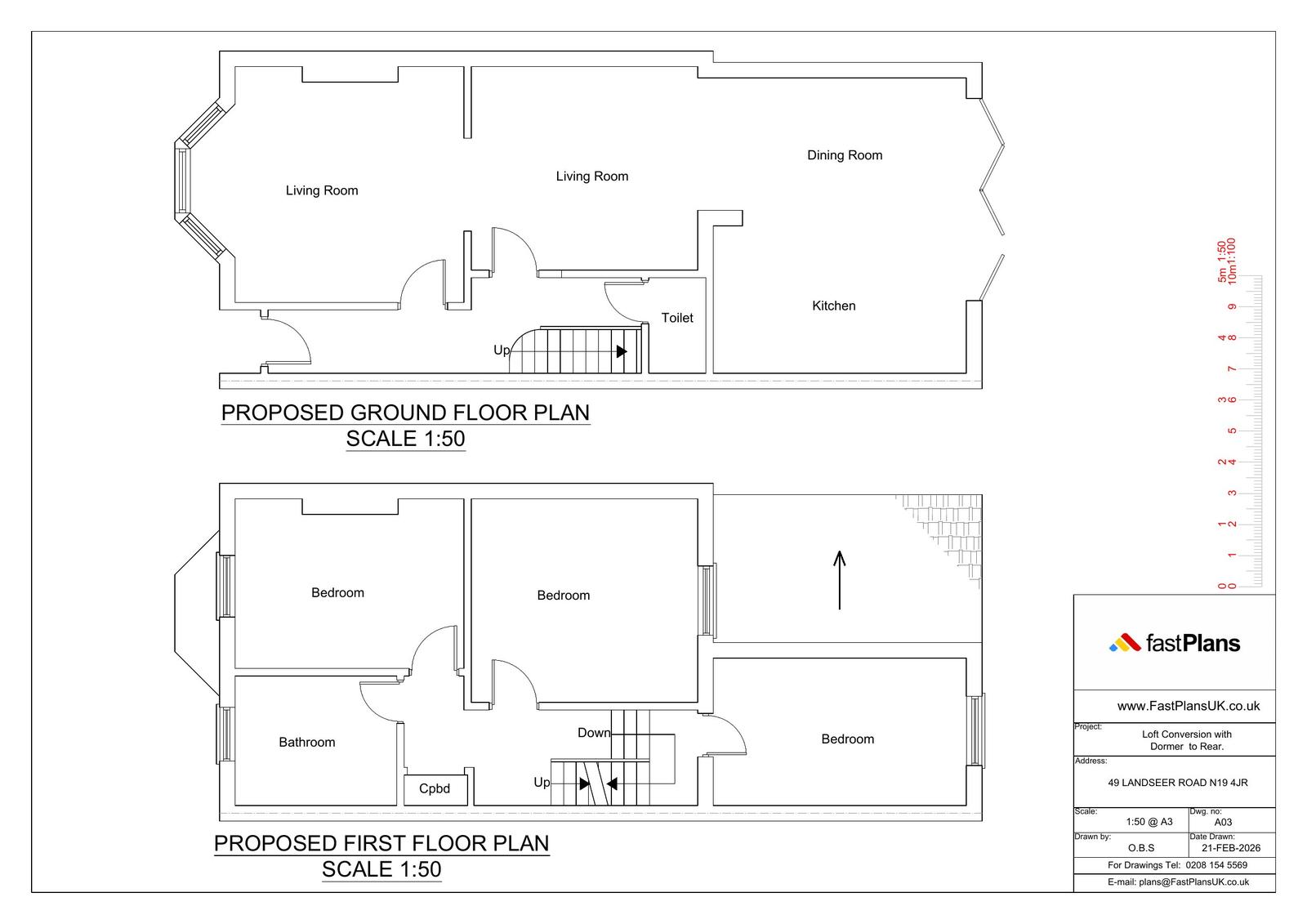
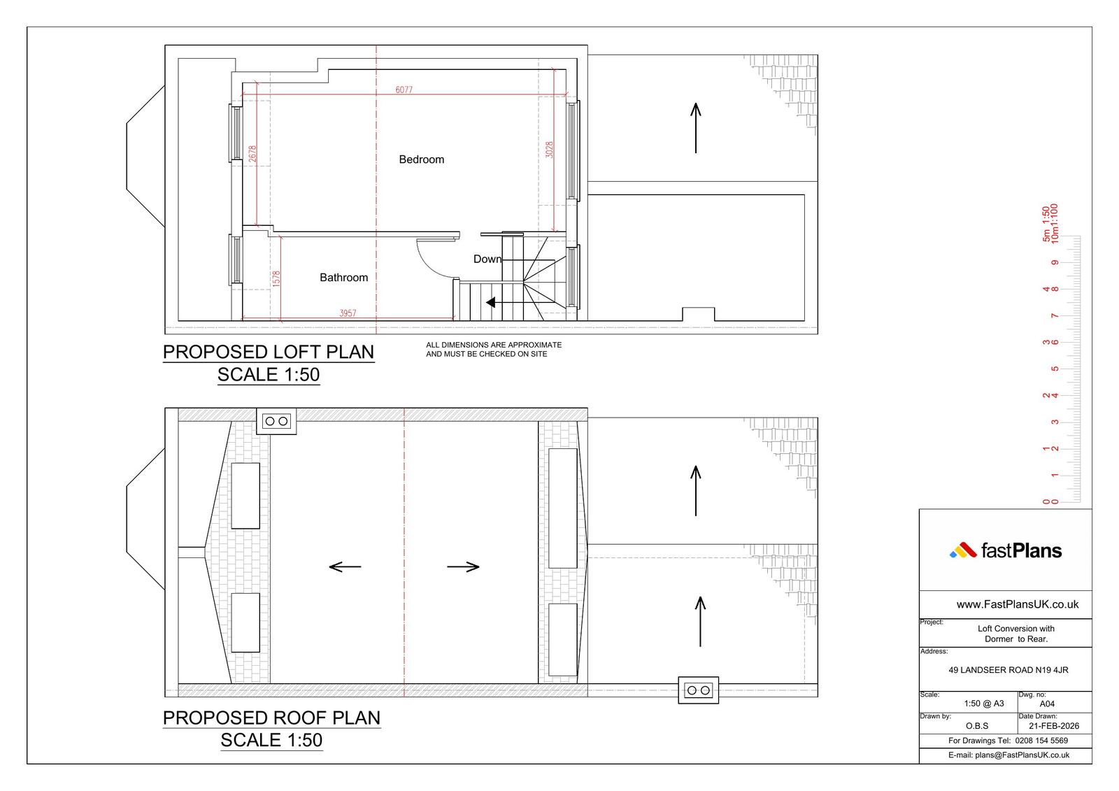
Erection of mansard roof extension and associated works

Documents

Application Supporting Documents
Archived · Original link
Drawings - Existing
Archived · Original link
Drawings - Existing
Archived · Original link
Drawings - Existing
Archived · Original link
Drawings - Existing
Archived · Original link
Location Plan
Archived · Original link
Drawings - Proposed
Archived · Original link
Drawings - Proposed
Archived · Original link
Drawings - Proposed
Archived · Original link
Drawings - Proposed
Archived · Original link
Application Supporting Documents
Archived · Original link
Application Supporting Documents
Archived · Original link

Have your say

Your comment matters. Councils must consider every representation that raises material planning considerations.

Write a comment