← Borough Council of King's Lynn & West Norfolk

Status

Awaiting decision Change of use
Received
09 Apr 2025
New homes
0

Summary

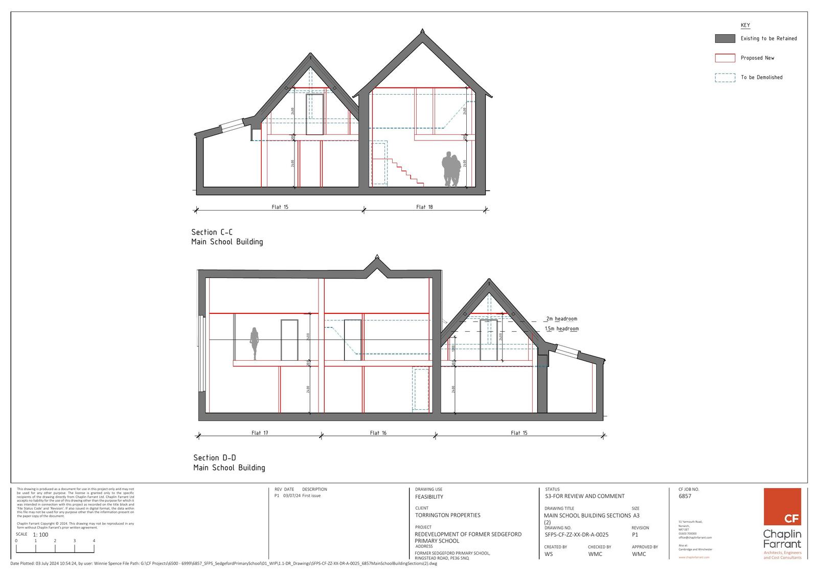
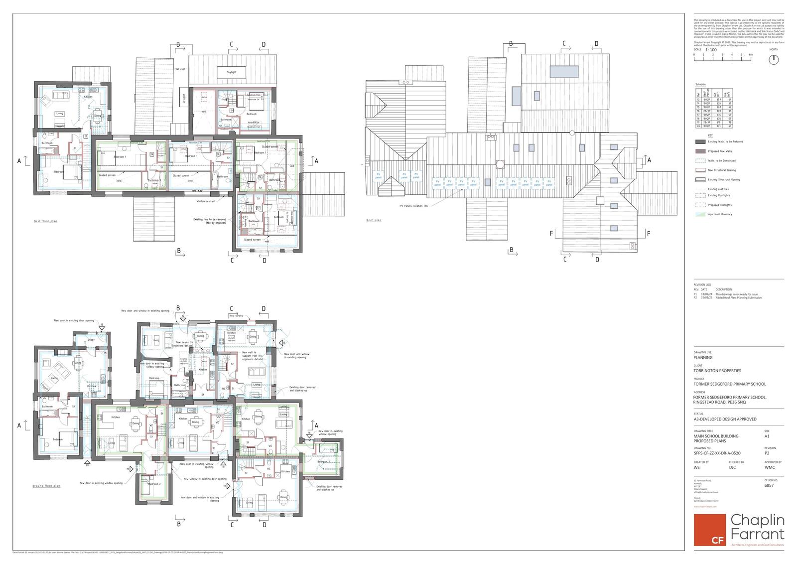
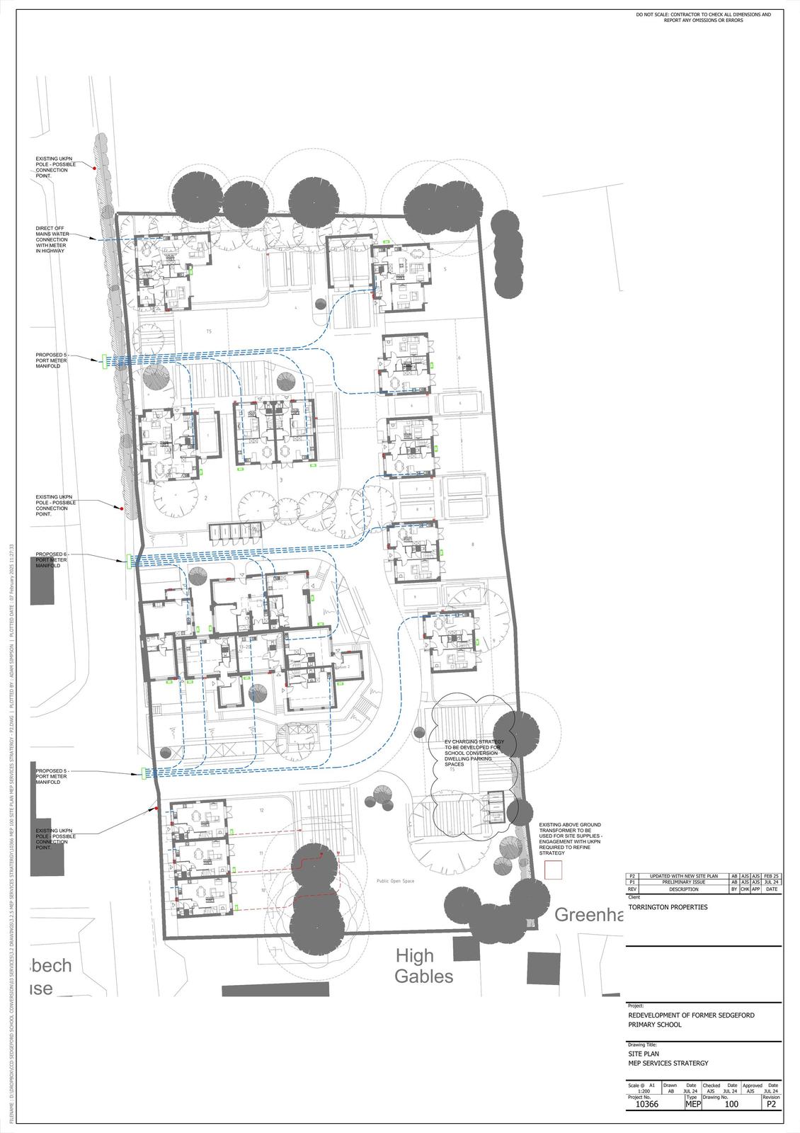
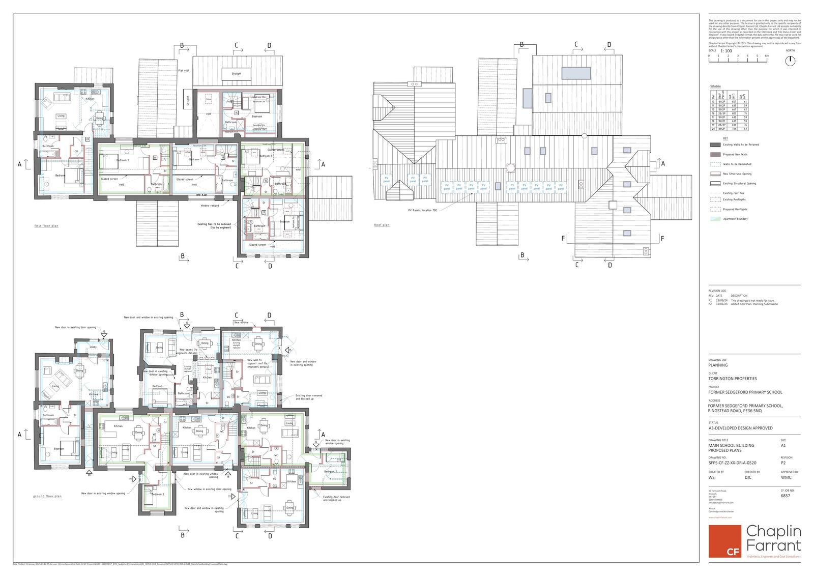
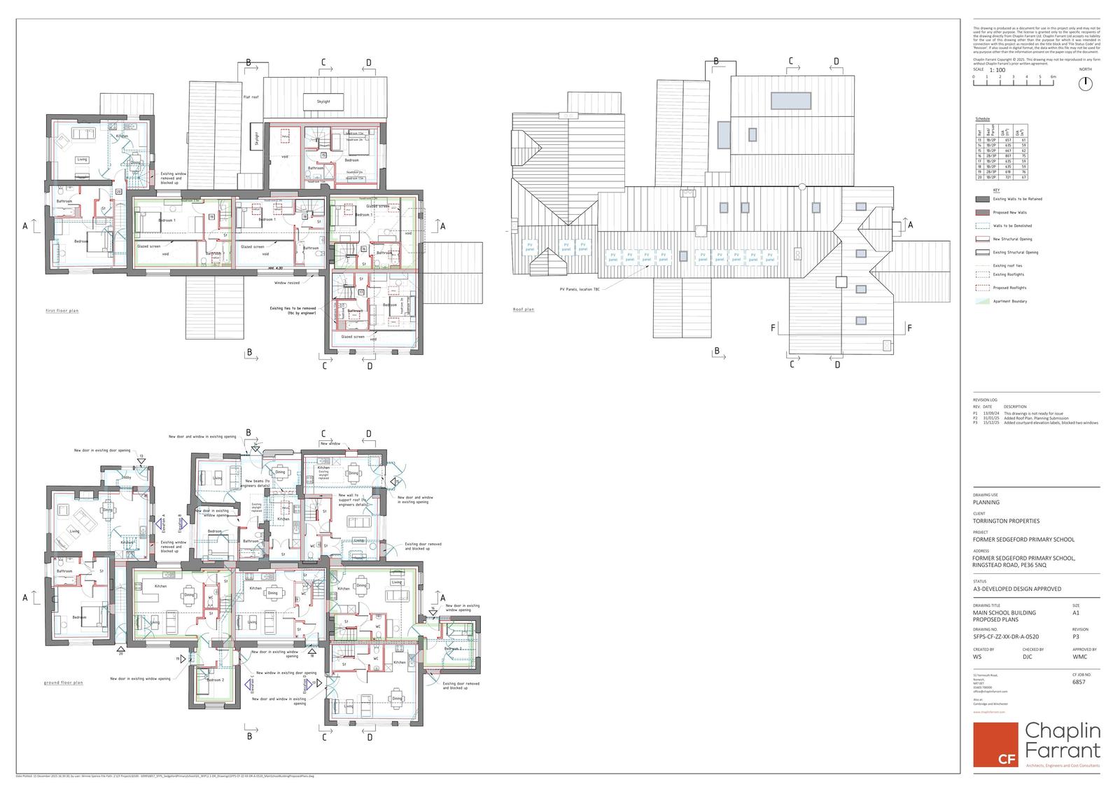
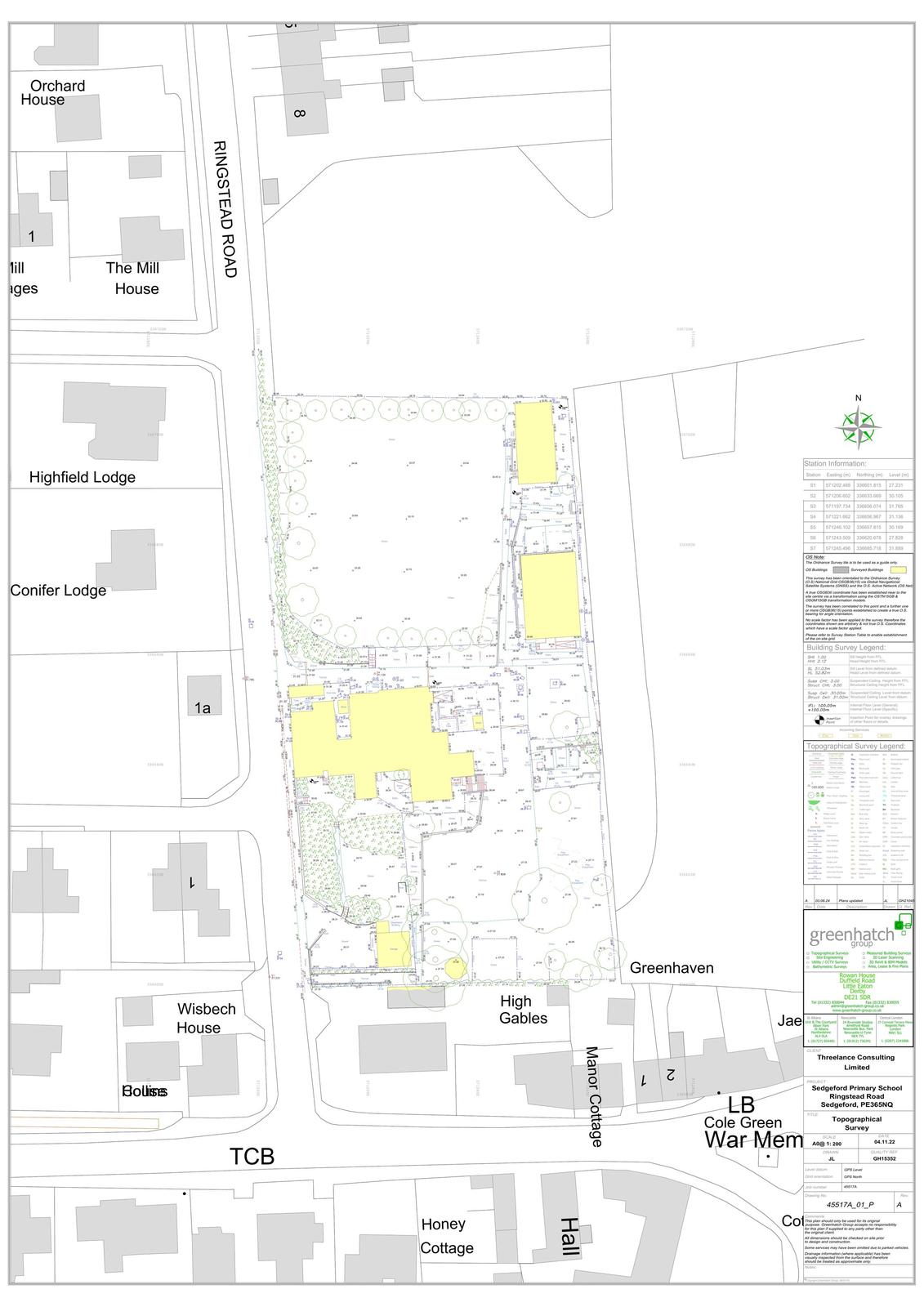
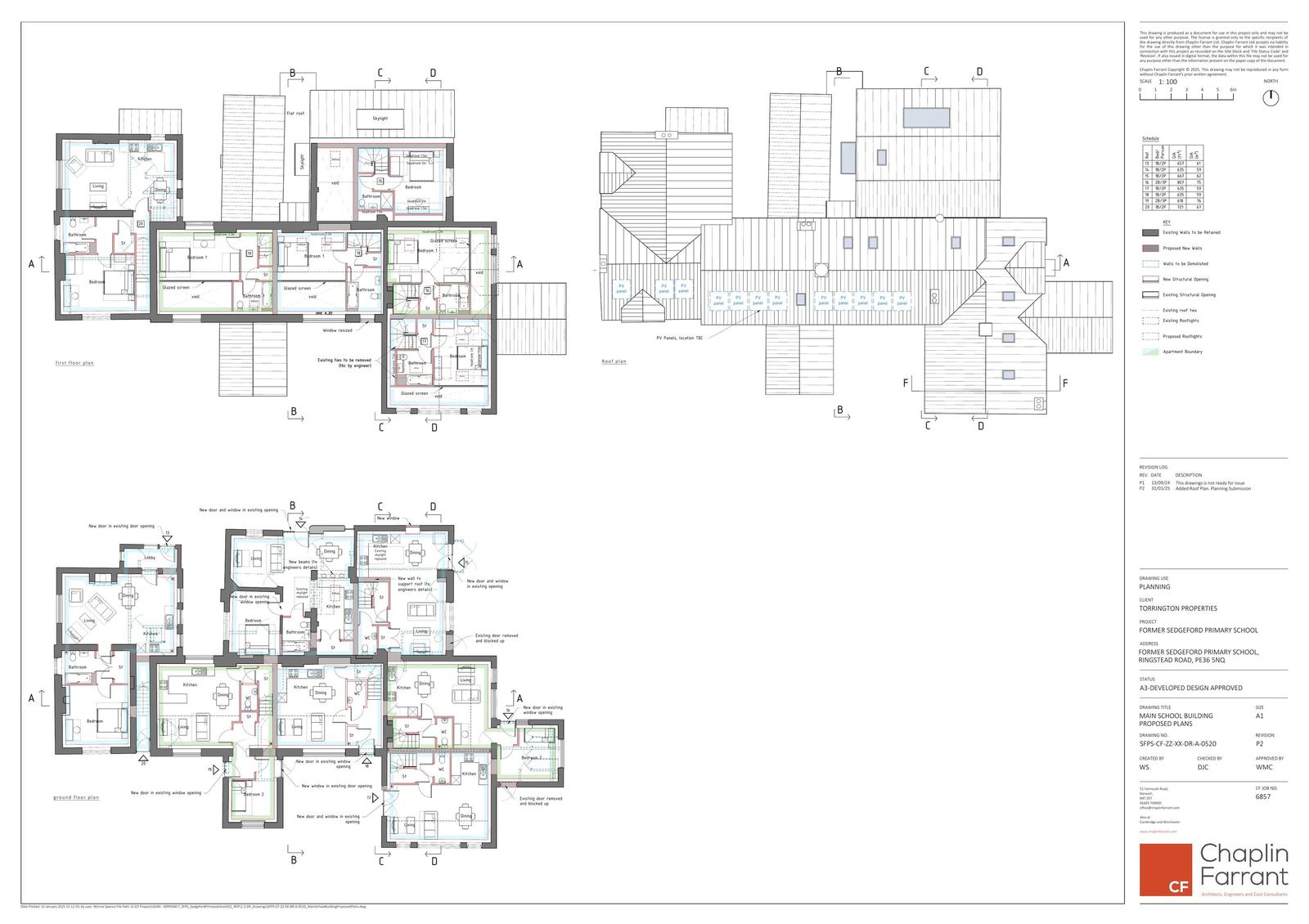
Conversion of former primary school to residential, subdividing cottage and erecting new dwellings with parking.

Full proposal

Change of use of Former Sedgeford Primary School from education (Class F1a) to residential use (Class C3), subdivision of headteachers cottage, alongside demolition of ancillary structures, erection of new dwellings, creation of new access, cycle parking, car parking, hard and soft landscaping, plant, and associated works.

Documents

Report
Archived · Original link
Correspondence
Archived · Original link
Correspondence
Archived · Original link
Correspondence
Archived · Original link
Correspondence
Archived · Original link
Correspondence
Archived · Original link
Correspondence
Archived · Original link
Correspondence
Archived · Original link
Correspondence
Archived · Original link
Correspondence
Archived · Original link
Consultee Comment
Archived · Original link
Consultee Comment
Archived · Original link
Consultee Comment
Archived · Original link
Correspondence
Archived · Original link
Correspondence
Archived · Original link
Correspondence
Archived · Original link
Application Form
Archived · Original link
Consultee Comment
Archived · Original link
Consultee Comment
Archived · Original link
Correspondence
Archived · Original link
Correspondence
Archived · Original link
Correspondence
Archived · Original link
BNG CONDITION ASSESSMENT
Report
Not yet archived · Original link
Correspondence
Archived · Original link
Correspondence
Archived · Original link
Correspondence
Archived · Original link
Correspondence
Archived · Original link
Correspondence
Archived · Original link
Correspondence
Archived · Original link
Report
Archived · Original link
Correspondence
Archived · Original link
Correspondence
Archived · Original link
Consultee Comment
Archived · Original link
Correspondence
Archived · Original link
Correspondence
Archived · Original link
Correspondence
Archived · Original link
Report
Archived · Original link
Consultee Comment
Archived · Original link
Consultee Comment
Archived · Original link
Drawing
Archived · Original link
CIL Correspondence
Archived · Original link
Consultee Comment
Archived · Original link
Correspondence
Archived · Original link
Correspondence
Archived · Original link
Correspondence
Archived · Original link
Correspondence
Archived · Original link
Correspondence
Archived · Original link
Correspondence
Archived · Original link
GIRAMS SHADOW HRA
Correspondence
Not yet archived · Original link
Correspondence
Archived · Original link
Consultee Comment
Archived · Original link
Drawing
Archived · Original link
Report
Archived · Original link
Report
Archived · Original link
Correspondence
Archived · Original link
Drawing
Archived · Original link
Correspondence
Archived · Original link
Consultee Comment
Archived · Original link
Correspondence
Archived · Original link
Consultee Comment
Archived · Original link
Correspondence
Archived · Original link
Consultee Comment
Archived · Original link
Consultee Comment
Archived · Original link
Consultee Comment
Archived · Original link
Drawing
Archived · Original link
Drawing
Archived · Original link
Correspondence
Archived · Original link
Correspondence
Archived · Original link
Correspondence
Archived · Original link
Correspondence
Archived · Original link
Consultee Comment
Archived · Original link
Consultee Comment
Archived · Original link
Drawing
Archived · Original link
Correspondence
Archived · Original link
Correspondence
Archived · Original link
Correspondence
Archived · Original link
Correspondence
Archived · Original link
Correspondence
Archived · Original link
Correspondence
Archived · Original link
Correspondence
Archived · Original link
Correspondence
Archived · Original link
Revised Drawing
Archived · Original link
Drawing
Archived · Original link
Drawing
Archived · Original link
Drawing
Archived · Original link
Revised Drawing
Archived · Original link
Revised Drawing
Archived · Original link
Drawing
Archived · Original link
Drawing
Archived · Original link
Revised Drawing
Archived · Original link
Correspondence
Archived · Original link
Correspondence
Archived · Original link
Correspondence
Archived · Original link
Report
Archived · Original link
Correspondence
Archived · Original link
Correspondence
Archived · Original link
Consultee Comment
Archived · Original link
Drawing
Archived · Original link
Report
Archived · Original link
Drawing
Archived · Original link
Drawing
Archived · Original link
Revised Drawing
Archived · Original link
Revised Drawing
Archived · Original link
Revised Drawing
Archived · Original link
Revised Drawing
Archived · Original link
Report
Archived · Original link
Consultee Comment
Archived · Original link
Consultee Comment
Archived · Original link

Have your say

Your comment matters. Councils must consider every representation that raises material planning considerations.

Write a comment