← Borough Council of King's Lynn & West Norfolk
25/00836/F
Borough Council of King's Lynn & West Norfolk
Status
Application Permitted
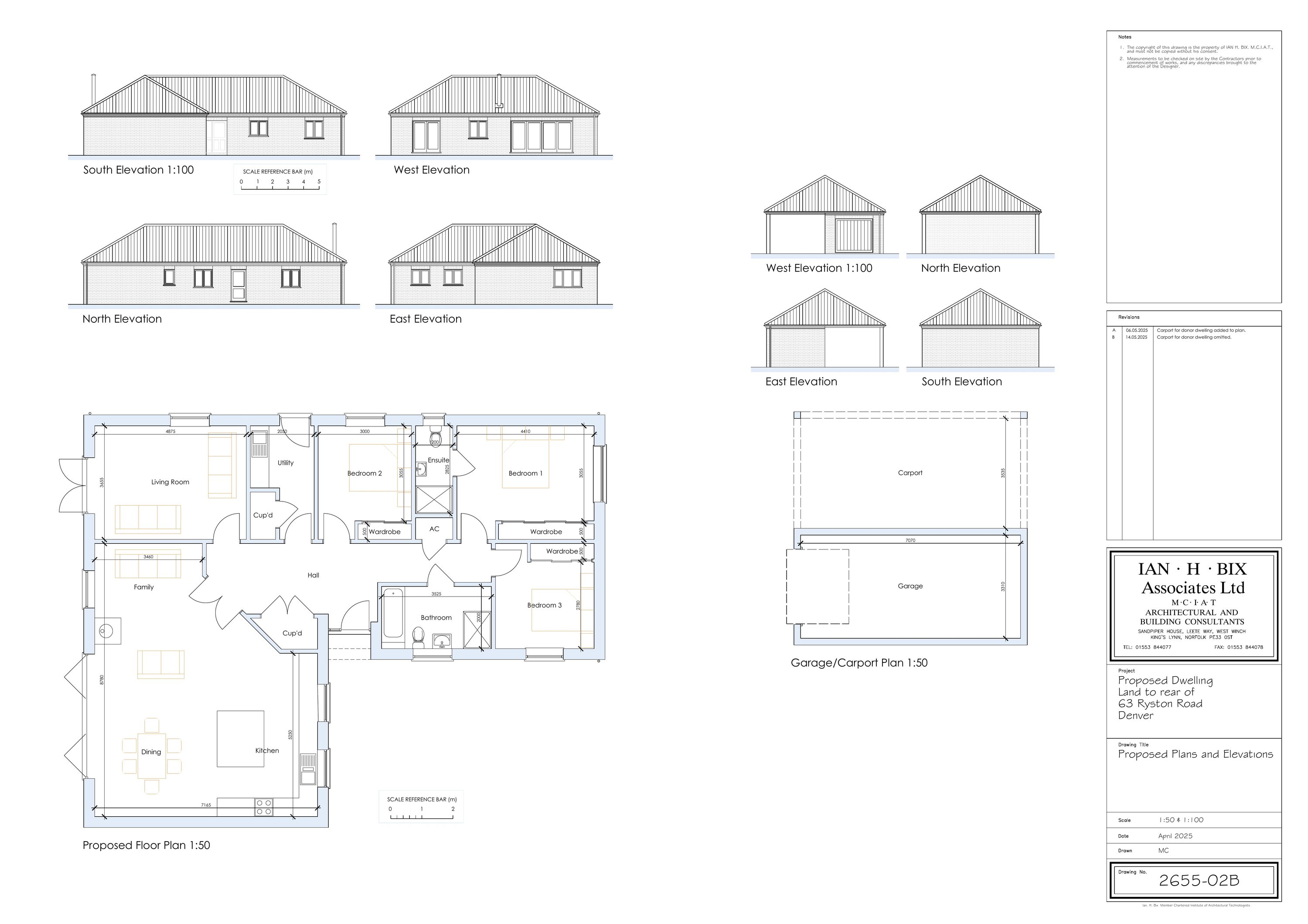
New housing
Received
19 May 2025
New homes
1
Full proposal
SELF-BUILD- Proposed Self Building Dwelling and Garage
Documents
Have your say
Your comment matters. Councils must consider every representation that raises material planning considerations.