← Borough Council of King's Lynn & West Norfolk

Status

Application Permitted House extension
Received
27 May 2025
New homes
0

Full proposal

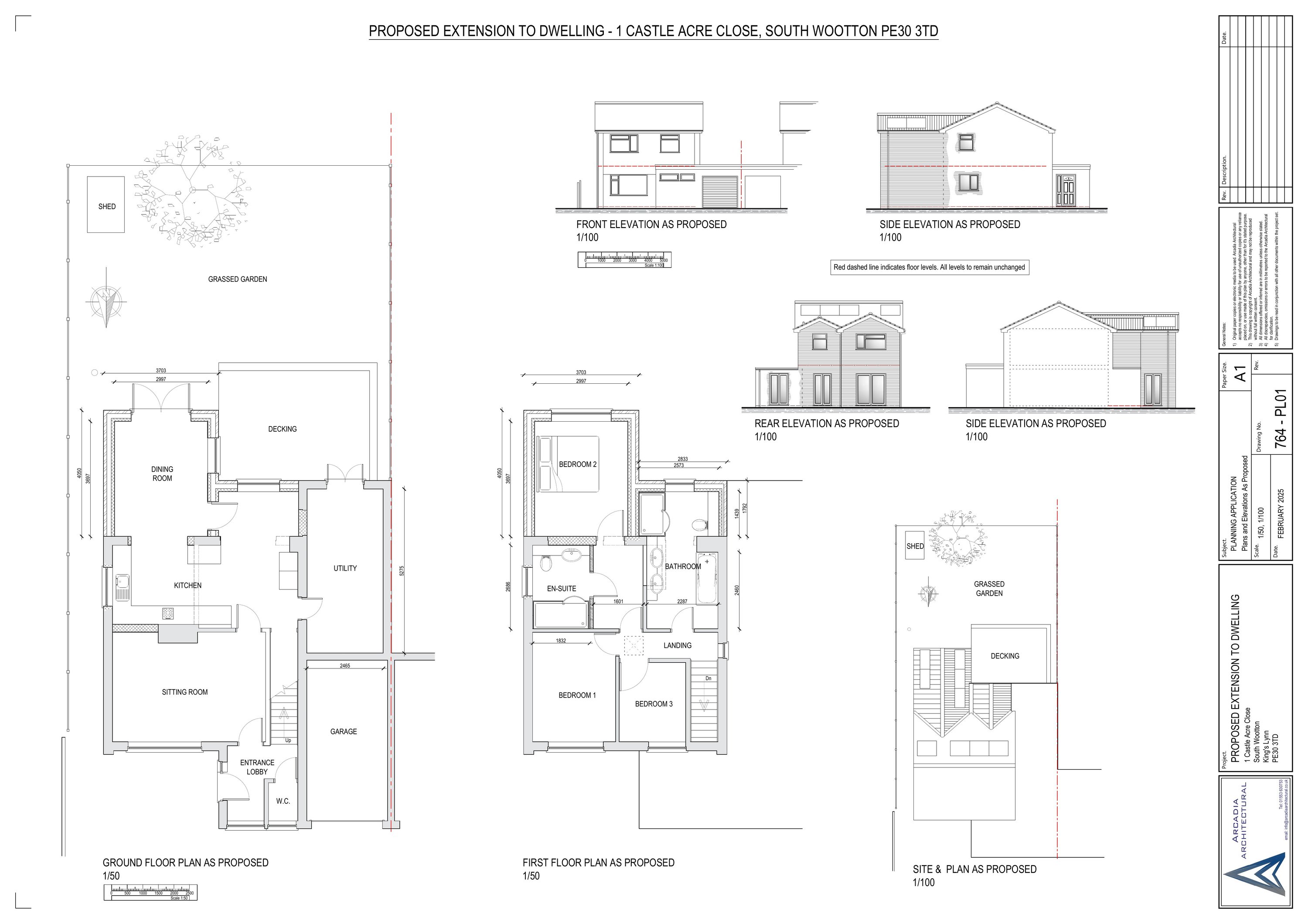
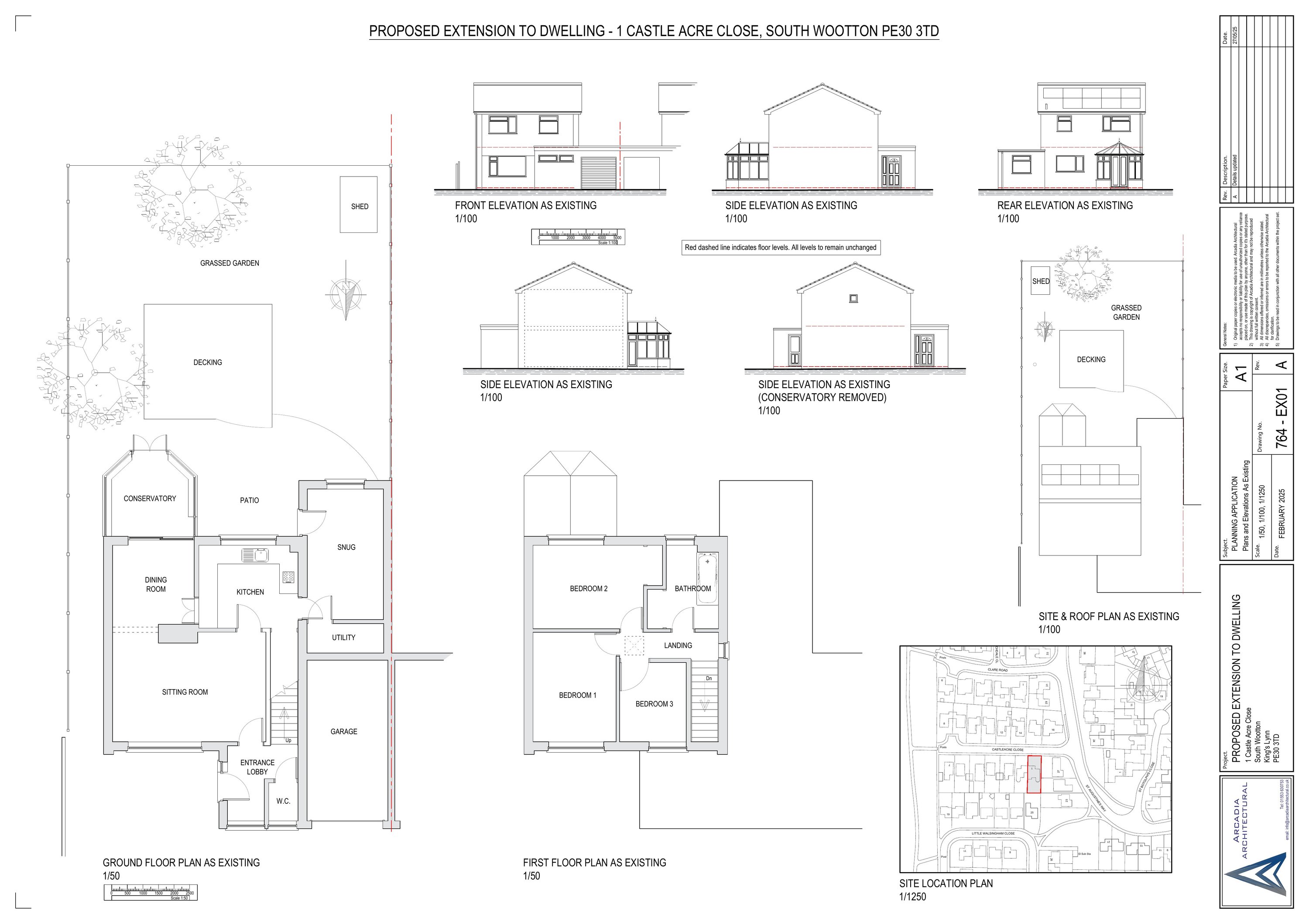
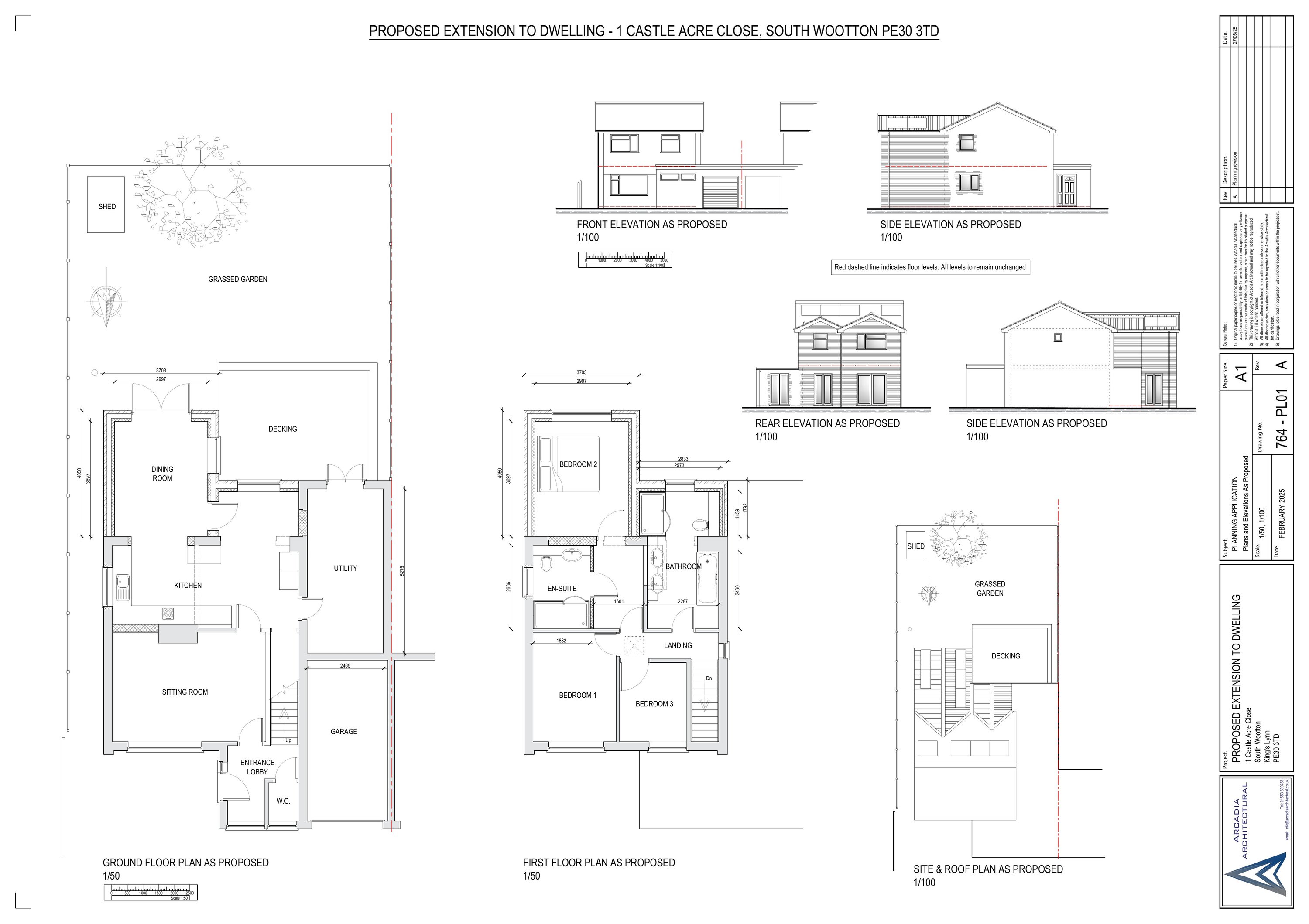
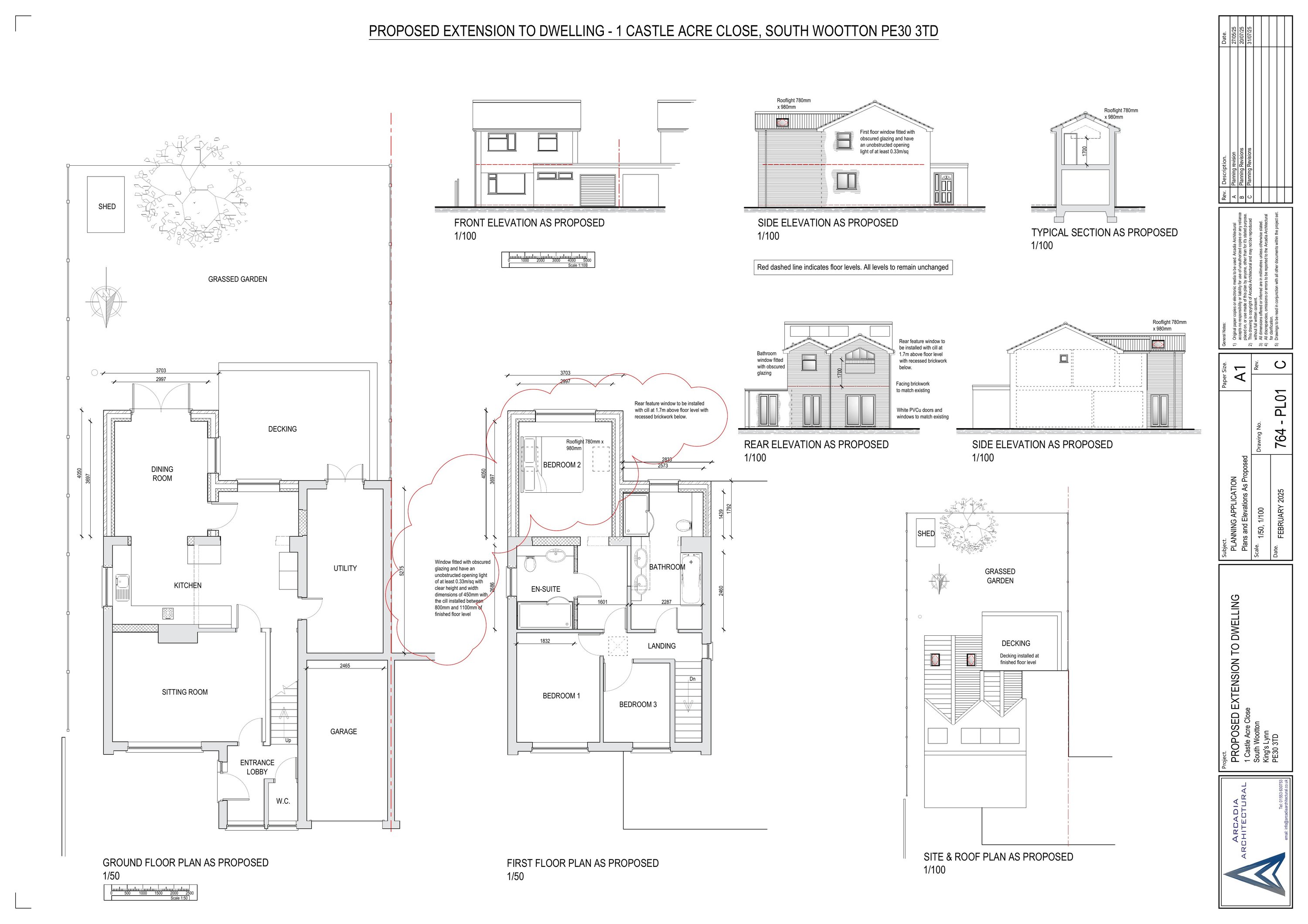
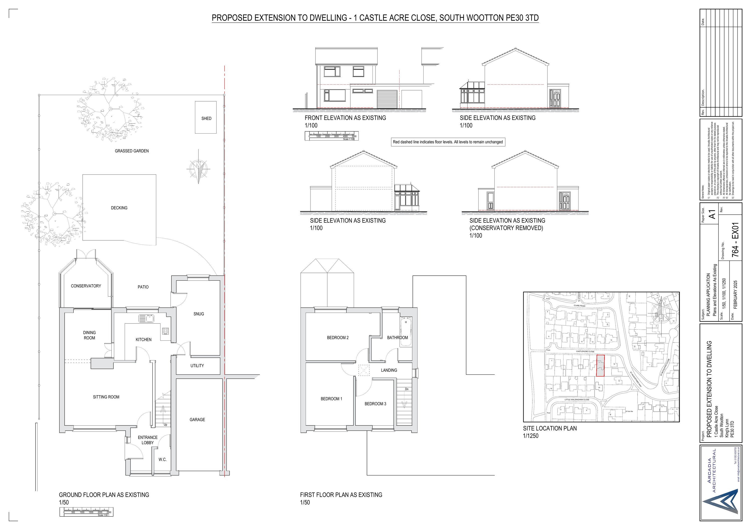
Householder: Rear extension to dwelling.

Documents

Correspondence
Archived · Original link
Correspondence
Archived · Original link
CIL Form
Archived · Original link
Correspondence
Archived · Original link
Correspondence
Archived · Original link
Correspondence
Archived · Original link
Correspondence
Archived · Original link
Correspondence
Archived · Original link
Application Form
Archived · Original link
Correspondence
Archived · Original link
Correspondence
Archived · Original link
Correspondence
Archived · Original link
Correspondence
Archived · Original link
Consultee Comment
Archived · Original link
Consultee Comment
Archived · Original link
Correspondence
Archived · Original link
Correspondence
Archived · Original link
Revised Drawing
Archived · Original link
Revised Drawing
Archived · Original link
Revised Drawing
Archived · Original link
Correspondence
Archived · Original link
Correspondence
Archived · Original link

Have your say

Your comment matters. Councils must consider every representation that raises material planning considerations.

Write a comment