← Borough Council of King's Lynn & West Norfolk
26/00108/F
Borough Council of King's Lynn & West Norfolk
Status
Application Permitted
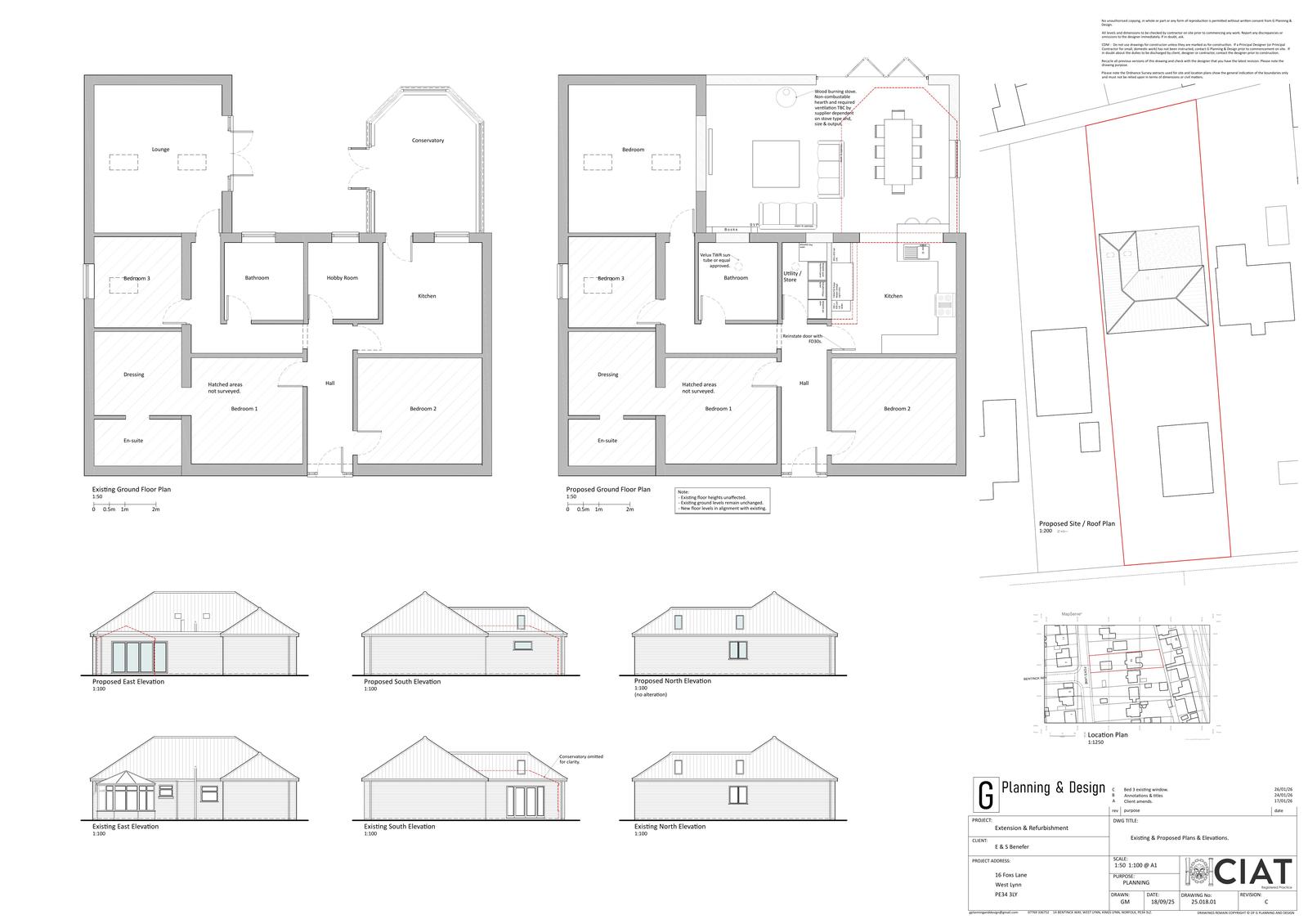
House extension
Received
21 Jan 2026
New homes
0
Full proposal
HOUSEHOLDER: Single storey rear extension to bungalow.
Documents
Have your say
Your comment matters. Councils must consider every representation that raises material planning considerations.