← Borough Council of King's Lynn & West Norfolk

Status

Awaiting decision House extension
Received
Last month
New homes
0

Full proposal

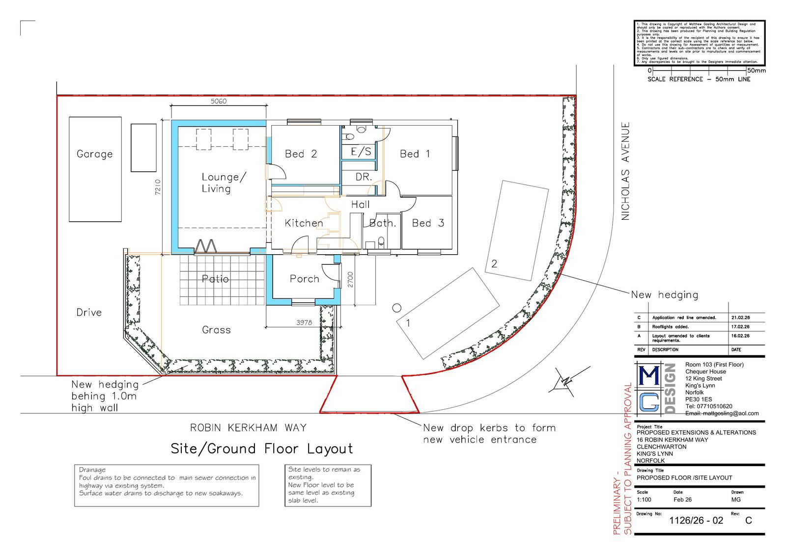
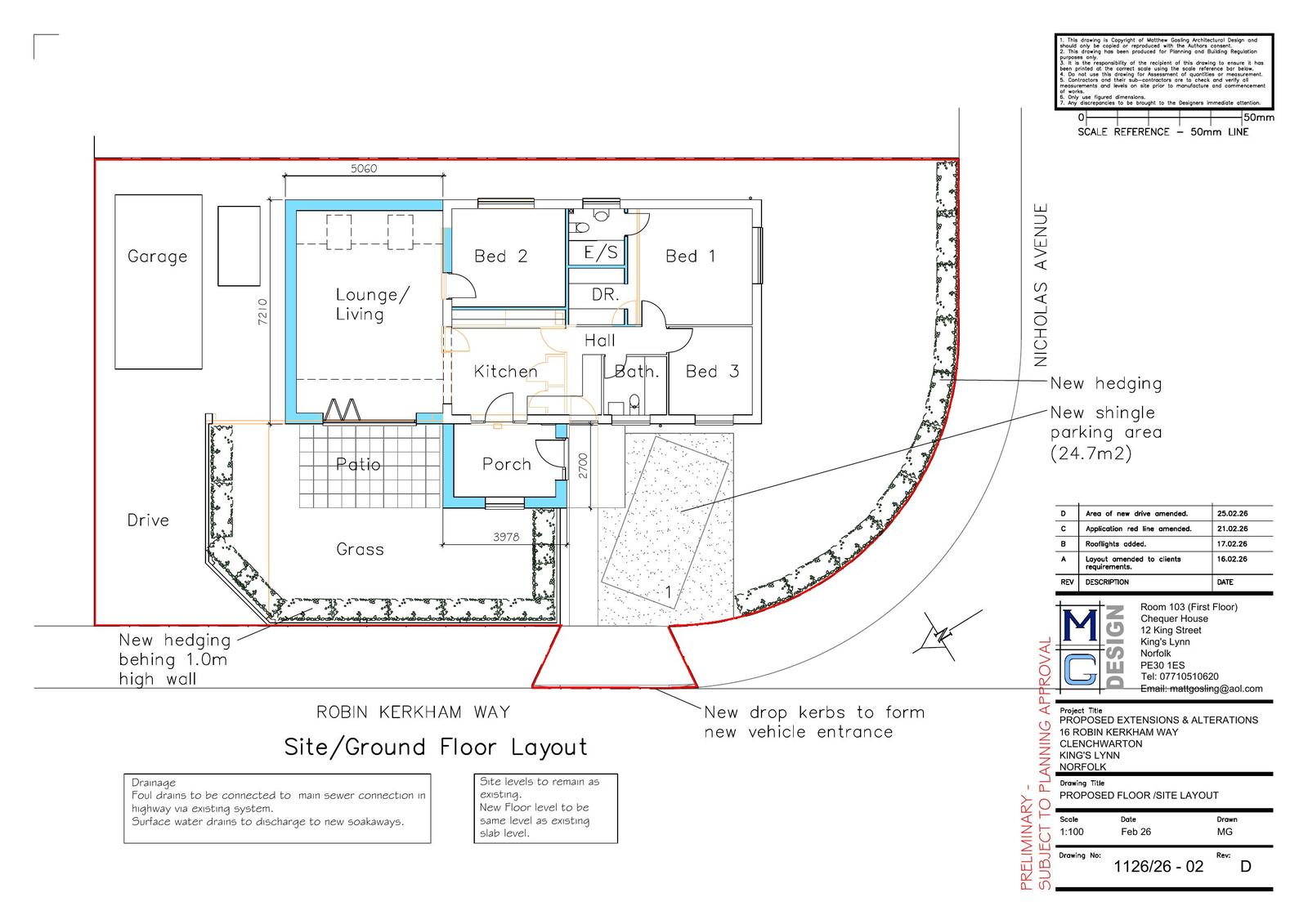
Single storey front and side extensions to existing dwelling with alterations and new vehicular access.

Documents

Correspondence
Archived · Original link
Correspondence
Archived · Original link
Application Form
Archived · Original link
Application Form
Archived · Original link
Consultee Comment
Archived · Original link
Drawing
Archived · Original link
Correspondence
Archived · Original link
Drawing
Archived · Original link
Revised Drawing
Archived · Original link
Correspondence
Archived · Original link

Have your say

Your comment matters. Councils must consider every representation that raises material planning considerations.

Write a comment