← Borough Council of King's Lynn & West Norfolk
26/00341/CHSR17
Borough Council of King's Lynn & West Norfolk
Status
Awaiting decision
Change of use
Received
Last month
New homes
1
Full proposal
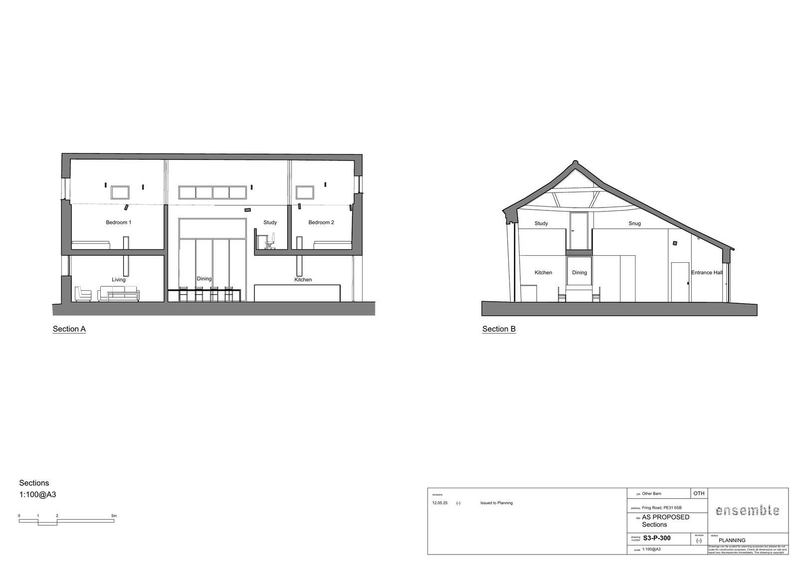
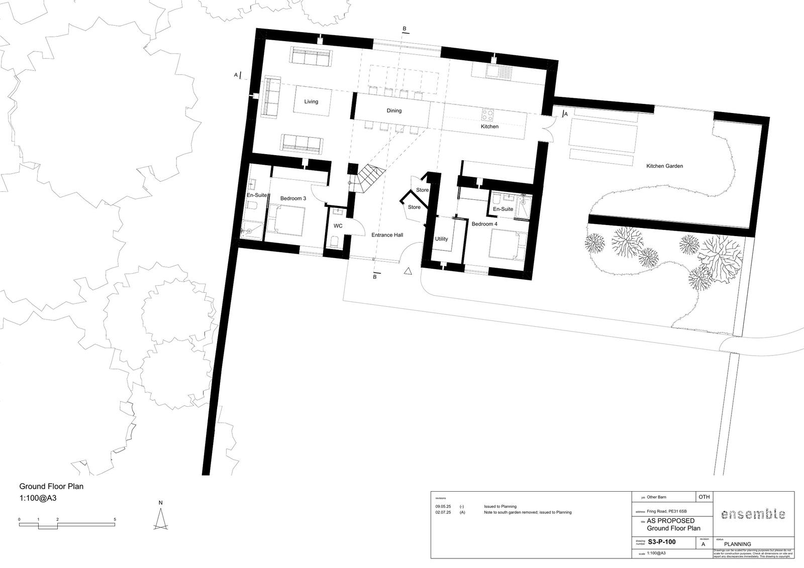
Application under the Habitats Regulations 2017: Change of use and conversion of an existing agricultural building to provide 1no. dwellinghouse under Part 3 Class Q - 25/00798/PACU3
Documents
Have your say
Your comment matters. Councils must consider every representation that raises material planning considerations.