← Back to Kingston upon Thames
Application
25/02151/FUL
Kingston upon Thames · IDOX
Status
Pending Consideration
Received
15 Aug 2025
New dwellings
n/a
What you can do
Take Action
Make your voice heard. Authorities need to hear from people who support new homes.
Summary
Mixed-use building with ground-floor Class E and 34 flats, public realm improvements and solar panels.
Full Proposal
Demolition of the existing buildings including boundary fencing. Erection of a mixed use building of 3 to 5 storeys (Use Class E and C3) with the Class E space at ground floor level and 34nos flats with works to the public realm in front of the building and along the boundary to the neighbouring open space. Installation of solar panels.
Detail pages
- View live detail on council site
- No archived detail page available.
Documents
Air Quality Assessment
Supporting Documents
Not downloaded
· Council link
Application Form (No Personal Data)
Application Form
Not downloaded
· Council link
Biodiversity Checklist
Supporting Documents
Not downloaded
· Council link
Biodiversity Net Gain Assessment
Supporting Documents
Not downloaded
· Council link
Cil Form
Supporting Documents
Not downloaded
· Council link
Construction Management Plan
Supporting Documents
Not downloaded
· Council link
Daylight and Sunlight Report
Supporting Documents
Not downloaded
· Council link
Design and Access Statement Part 1
Supporting Documents
Not downloaded
· Council link
Design and Access Statement Part 2
Supporting Documents
Not downloaded
· Council link
Drawing Issue Sheet
Supporting Documents
Not downloaded
· Council link
Ecologicial Impact Assessment -Part2
Supporting Documents
Not downloaded
· Council link
Ecologicial Impact Assessment Part-1
Supporting Documents
Not downloaded
· Council link
Energy Strategy
Supporting Documents
Not downloaded
· Council link
Existing Block Plan
Drawing
Not downloaded
· Council link
Existing Elevations
Drawing
Not downloaded
· Council link
Existing Ground Floor Plan
Drawing
Not downloaded
· Council link
Existing Roof Plan
Drawing
Not downloaded
· Council link
Existing Sections
Drawing
Not downloaded
· Council link
Existing Site Location Plan
Drawing
Archived copy
· Council link
Existing Site Plan
Drawing
Archived copy
· Council link
Fire Strategy Report
Supporting Documents
Not downloaded
· Council link
Health Impact Assessment
Supporting Documents
Not downloaded
· Council link
Highways Search Map
Supporting Documents
Not downloaded
· Council link
Level1 Flood Risk Assessment and SuDS Drainage Strategy Part 2
Supporting Documents
Not downloaded
· Council link
Level1 Flood Risk Assessment and SuDS Drainage StrategyPart 1
Supporting Documents
Not downloaded
· Council link
MEP Utilities Statement
Supporting Documents
Not downloaded
· Council link
Noise Impact Assessment Report
Supporting Documents
Not downloaded
· Council link
Parking Survey
Supporting Documents
Not downloaded
· Council link
Part O and CIBSE Overheating Analysis
Supporting Documents
Not downloaded
· Council link
Phase 1 Enviromental Assesment Part 1
Supporting Documents
Not downloaded
· Council link
Phase 1 Enviromental Assesment Part 2
Supporting Documents
Not downloaded
· Council link
Proposed Block Plan
Drawing
Not downloaded
· Council link
Proposed Ground Floor Plan
Drawing
Not downloaded
· Council link
Proposed Level 1 Plan
Drawing
Not downloaded
· Council link
Proposed Level 2 Plan
Drawing
Not downloaded
· Council link
Proposed Level 3 Plan
Drawing
Not downloaded
· Council link
Proposed Level 4 Plan
Drawing
Not downloaded
· Council link
Proposed North and East Elevations
Drawing
Not downloaded
· Council link
Proposed Roof Plan
Drawing
Not downloaded
· Council link
Proposed Sections
Drawing
Not downloaded
· Council link
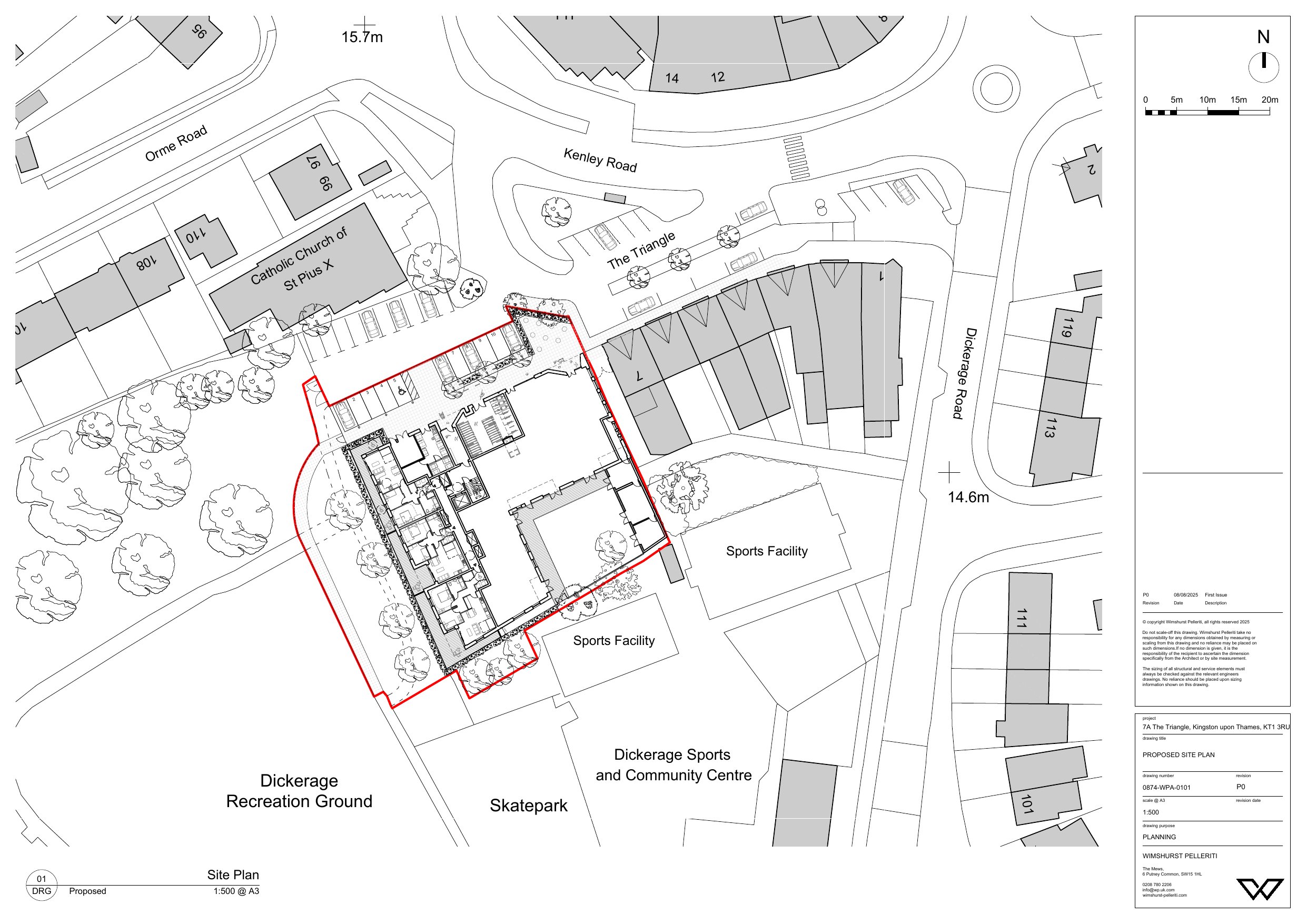
Proposed Site Plan
Drawing
Archived copy
· Council link
Proposed South and South Elevations
Drawing
Not downloaded
· Council link
Proposed Typical Flat Layouts 1B2P Unit
Drawing
Not downloaded
· Council link
Proposed Typical Flat Layouts 2B3P Unit
Drawing
Not downloaded
· Council link
Proposed Typical Flat Layouts 2B4P Unit
Drawing
Not downloaded
· Council link
Proposed Typical Flat Layouts 2B4P Unit
Drawing
Not downloaded
· Council link
Proposed Typical Flat Layouts 3B5P Unit
Drawing
Not downloaded
· Council link
Proposed Typical Flat Layouts 3B5P Unit
Drawing
Not downloaded
· Council link
Proposed Typical Wheel Chair Adaptable Unit
Drawing
Not downloaded
· Council link
Statutory Biodiversity Metric Calculation Tool
Supporting Documents
Not downloaded
· Council link
Transport Statement - REV E
Supporting Documents
Not downloaded
· Council link
Travel Plan Statement
Supporting Documents
Not downloaded
· Council link
Tree Survey
Supporting Documents
Not downloaded
· Council link
Validation Checklist
Supporting Documents
Not downloaded
· Council link
Viability Assessment - REV 1
Supporting Documents
Not downloaded
· Council link
Water Consumption Statement
Supporting Documents
Not downloaded
· Council link