← Back to Kingston upon Thames
Application
25/02249/FUL
Kingston upon Thames · IDOX
Status
Pending Consideration
Received
27 Aug 2025
New dwellings
n/a
What you can do
Take Action
Make your voice heard. Authorities need to hear from people who support new homes.
Summary
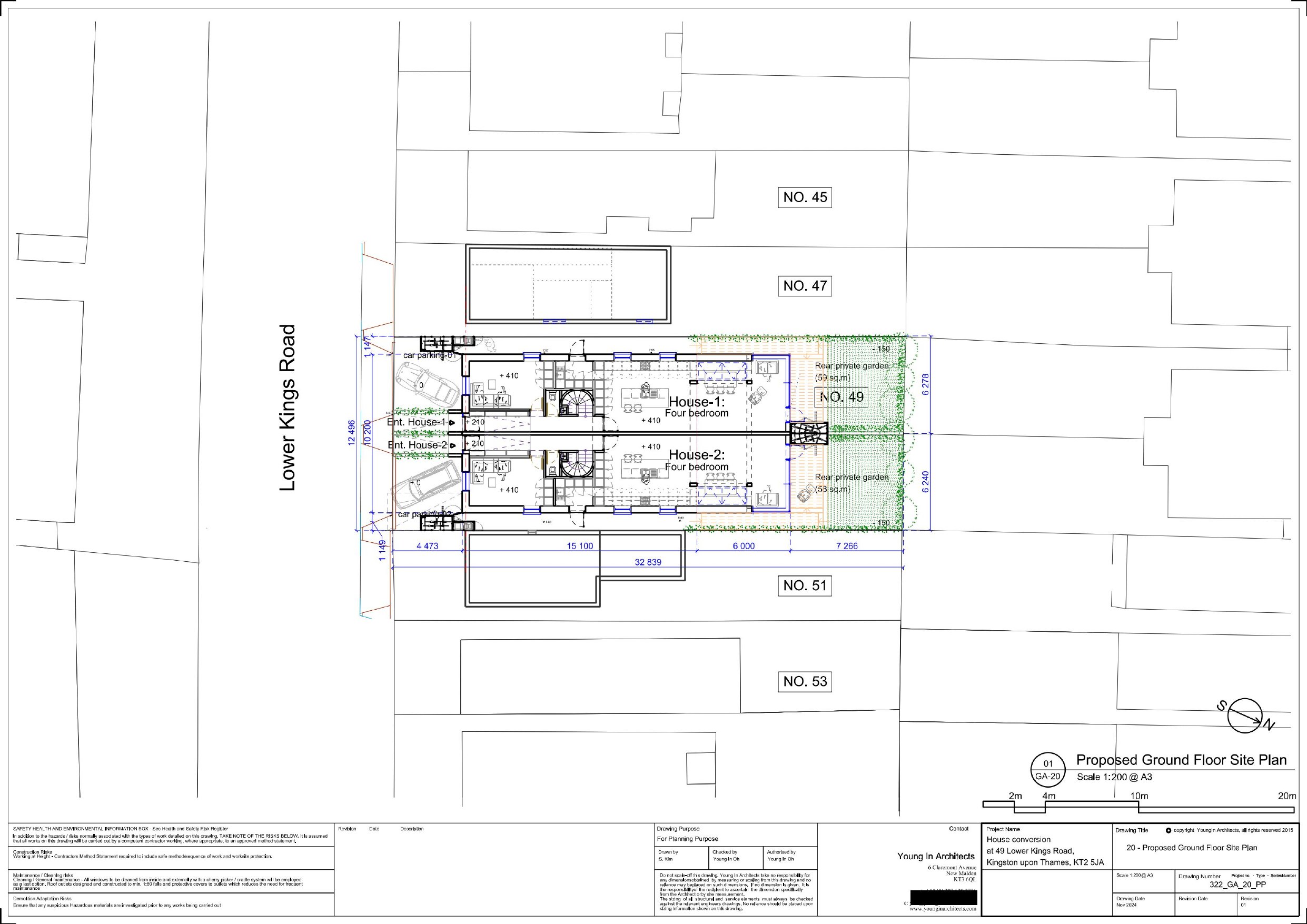
Change of use from nursery to two four-bedroom residential units with extensions and loft conversion.
Full Proposal
Change of use of an existing nursery to 2nos 4bed residential units. Alterations to front entrance, erection of single storey rear and first floor rear extensions. Roof extension with 4nos side dormers and 8nos side rooflights to facilitate loft conversion. With associated parking to the front of the site, private amenity space, cycle and refuse stores.
Detail pages
- View live detail on council site
- No archived detail page available.
Documents
Application Form (No personal data)
Application Form
Not downloaded
· Council link
Biodiversity Checklist
Supporting Documents
Not downloaded
· Council link
BNG Exemption Statement
Supporting Documents
Not downloaded
· Council link
Cycle and Refuse Storage Plans and Elevations
Drawing
Not downloaded
· Council link
Daylight and Sunlight Impact Assessment - 1 of 2
Supporting Documents
Not downloaded
· Council link
Daylight and Sunlight Impact Assessment - 2 of 2
Supporting Documents
Not downloaded
· Council link
Design and Access Statement - 1-2
Supporting Documents
Not downloaded
· Council link
Design and Access Statement - 3-3.4
Supporting Documents
Not downloaded
· Council link
Design and Access Statement - 3.5-4.1
Supporting Documents
Not downloaded
· Council link
Design and Access Statement - 4.12-5.1
Supporting Documents
Not downloaded
· Council link
Design and Access Statement - 4.2-4.6
Supporting Documents
Not downloaded
· Council link
Design and Access Statement - 4.7-4.11
Supporting Documents
Not downloaded
· Council link
Design and Access Statement - 5.1-5.2
Supporting Documents
Not downloaded
· Council link
Design and access statement - 5.2-1
Supporting Documents
Not downloaded
· Council link
Design and Access Statement - 5.2-2
Supporting Documents
Not downloaded
· Council link
Design and Access Statement - 5.2-3
Supporting Documents
Not downloaded
· Council link
Design and Access Statement - 5.2-4
Supporting Documents
Not downloaded
· Council link
Drainage Survey
Supporting Documents
Not downloaded
· Council link
Existig Long Section - 01
Drawing
Not downloaded
· Council link
Existing and Proposed Front Window Detail
Drawing
Not downloaded
· Council link
Existing and Proposed Street Front and Rear Elevation
Drawing
Not downloaded
· Council link
Existing First Floor Plan
Drawing
Not downloaded
· Council link
Existing Front Elevation
Drawing
Not downloaded
· Council link
Existing Ground Floor Plan
Drawing
Not downloaded
· Council link
Existing Ground Floor Site Plan
Drawing
Archived copy
· Council link
Archived copy
· Council link
Existing Rear Elevation
Drawing
Not downloaded
· Council link
Existing Roof Plan
Drawing
Not downloaded
· Council link
Existing Short Section - 01
Drawing
Not downloaded
· Council link
Existing Side Elevation 1
Drawing
Not downloaded
· Council link
Existing Side Elevation 2
Drawing
Not downloaded
· Council link
Fire Safety Strategy
Supporting Documents
Not downloaded
· Council link
Flood Risk Assessment
Supporting Documents
Not downloaded
· Council link
Flood Risk Assessment - Appendices B to C
Supporting Documents
Not downloaded
· Council link
Flood Risk Assessment - Appendices E to H
Supporting Documents
Not downloaded
· Council link
Flood Risk Assessment - Appendix A
Supporting Documents
Not downloaded
· Council link
Flood Risk Assessment - Appendix D
Supporting Documents
Not downloaded
· Council link
Flood Risk Assessment - Appendix E
Supporting Documents
Not downloaded
· Council link
Highways Technical Note
Supporting Documents
Not downloaded
· Council link
Marketing Letter
Supporting Documents
Not downloaded
· Council link
Marketing Report
Supporting Documents
Not downloaded
· Council link
Preliminary Ecological Appraisal and Roost Assessment
Supporting Documents
Not downloaded
· Council link
Proposed First Floor Plan
Drawing
Not downloaded
· Council link
Proposed Front Elevation
Drawing
Not downloaded
· Council link
Proposed Ground Floor Block Plan
Drawing
Not downloaded
· Council link
Proposed Ground Floor Plan
Drawing
Not downloaded
· Council link
Proposed Ground Floor Site Plan
Drawing
Archived copy
· Council link
Proposed Loft Plan
Drawing
Not downloaded
· Council link
Proposed Long Section - 1
Drawing
Not downloaded
· Council link
Proposed Long Section - 2
Drawing
Not downloaded
· Council link
Proposed Rear Elevation
Drawing
Not downloaded
· Council link
Proposed Roof Plan
Drawing
Not downloaded
· Council link
Proposed Short Section - 02
Drawing
Not downloaded
· Council link
Proposed Short Section 01
Drawing
Not downloaded
· Council link
Proposed Short Section 02
Drawing
Not downloaded
· Council link
Proposed Short Section 03
Drawing
Not downloaded
· Council link
Proposed Short Section 04
Drawing
Not downloaded
· Council link
Proposed Short Section 05
Drawing
Not downloaded
· Council link
Proposed Side Elevation 1
Drawing
Not downloaded
· Council link
Proposed Side Elevation 2
Drawing
Not downloaded
· Council link
Roof, Wall and Patio Door Section Detail
Drawing
Not downloaded
· Council link
Site Location Plan
Drawing
Archived copy
· Council link
Sustainability and Energy Statement
Supporting Documents
Not downloaded
· Council link
Sustainability and Energy Statement - Appendix A
Supporting Documents
Not downloaded
· Council link
Unilateral Undertaking - Car
Supporting Documents
Not downloaded
· Council link
Unilateral Undertaking Letter
Supporting Documents
Not downloaded
· Council link
Validation Checklist
Supporting Documents
Not downloaded
· Council link