← Kingston upon Thames

Status

Pending Consideration House extension
Received
18 Sep 2025
New homes
0

Full proposal

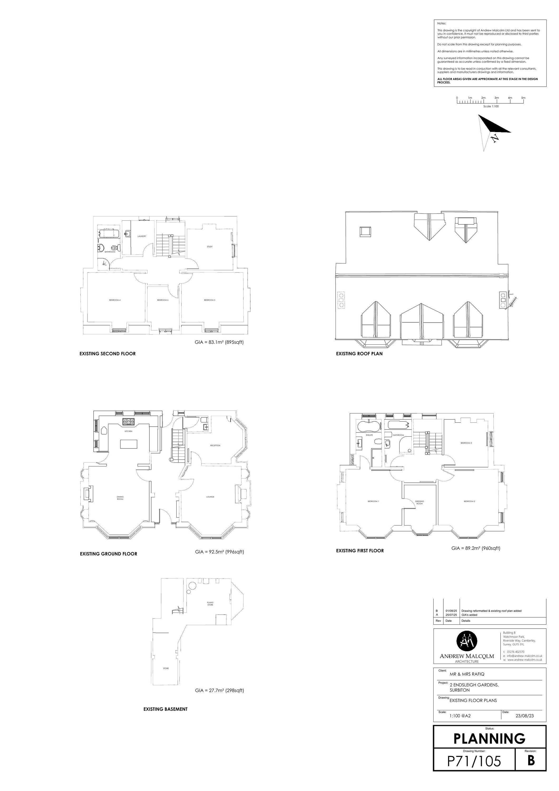
Erection of part two storey side extension to west elevation; single storey side extension to east elevation, basement extension and changes to fenestrations. Removal of rear chimney stack and dormer and installation of 1no. rear rooflight.

Have your say

Your comment matters. Councils must consider every representation that raises material planning considerations.

Write a comment