← Kingston upon Thames

Status

Pending Consideration House extension
Received
25 Sep 2025
New homes
0

Full proposal

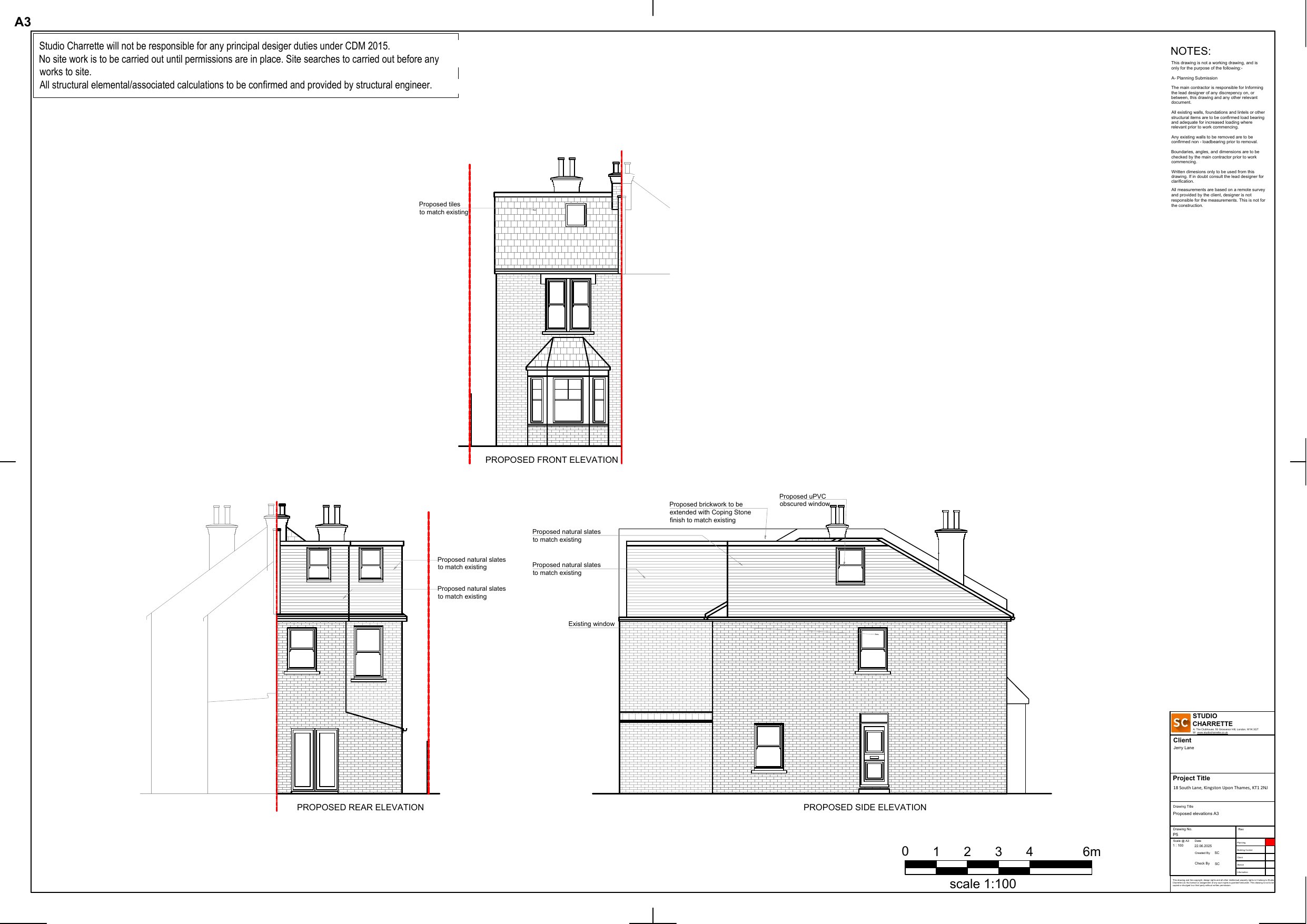
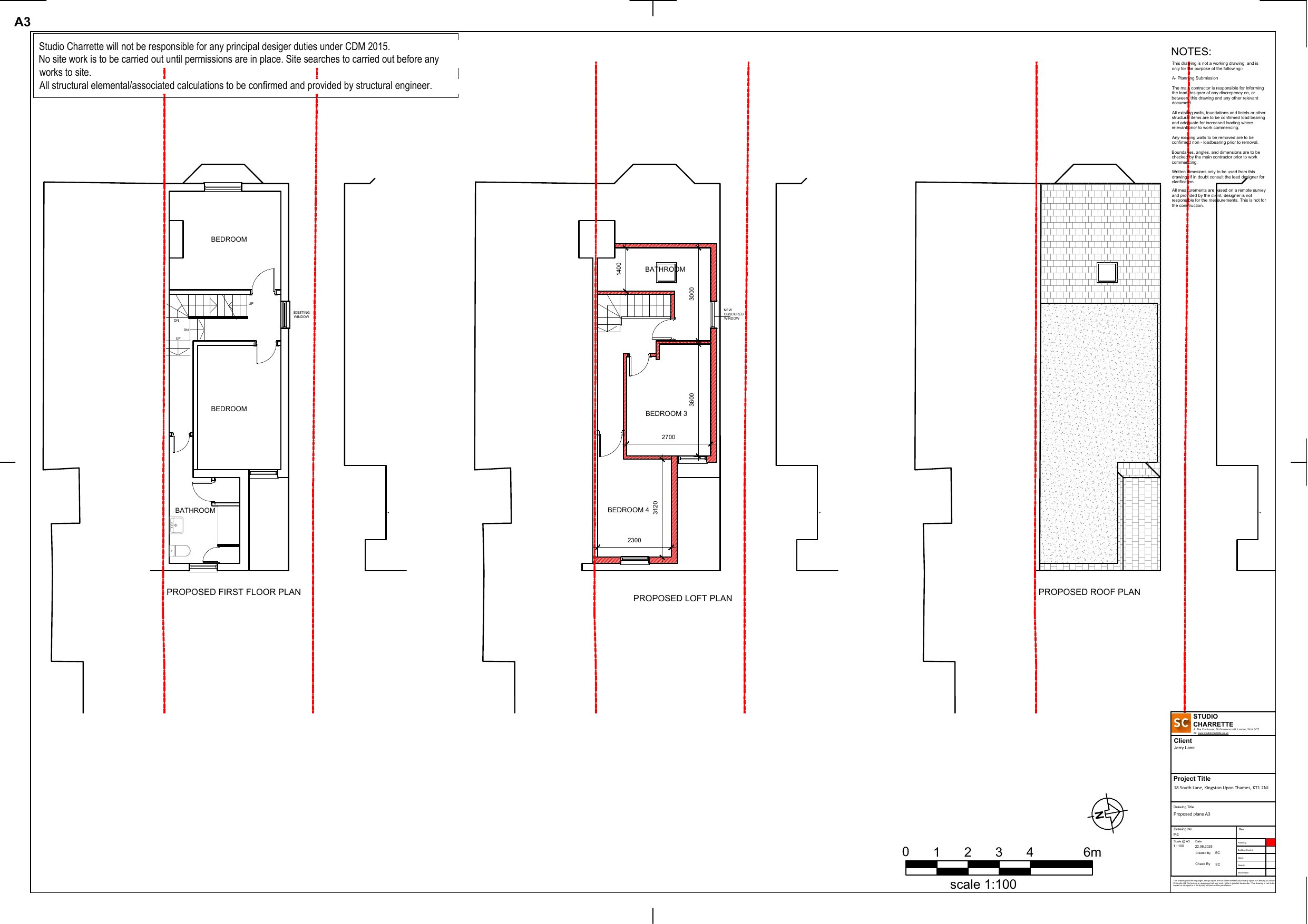
Erection of hip to gable roof extension with rear dormer and installation of 1no front rooflight.

Documents

Application Form
Archived · Original link
Supporting Documents
Archived · Original link
Drawing
Archived · Original link
Drawing
Archived · Original link
Supporting Documents
Archived · Original link
Supporting Documents
Archived · Original link
Drawing
Archived · Original link
Drawing
Archived · Original link
Supporting Documents
Archived · Original link

Have your say

Your comment matters. Councils must consider every representation that raises material planning considerations.

Write a comment