← Kingston upon Thames

Status

Pending Consideration Change of use
Received
29 Oct 2025
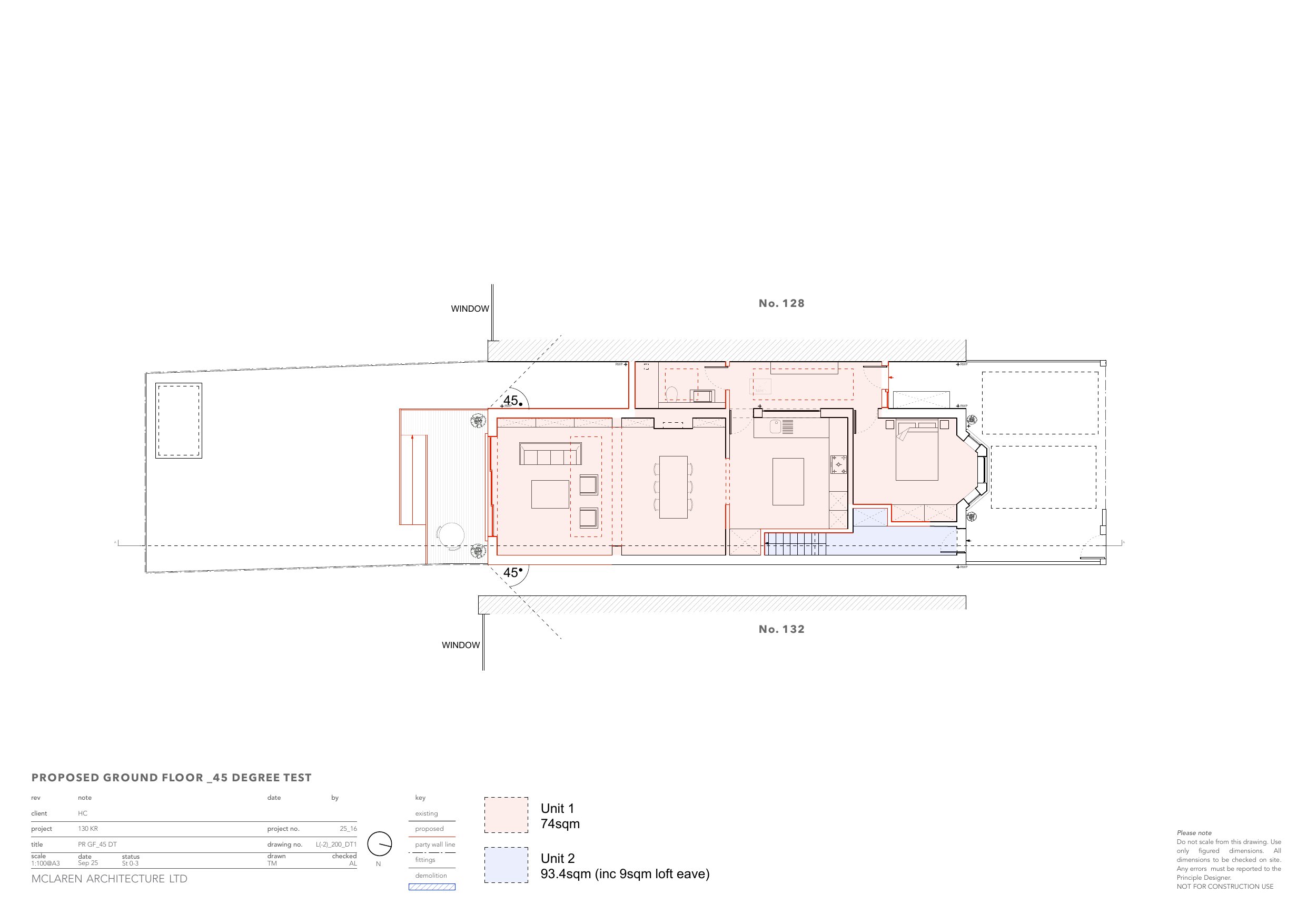
New homes
2

Full proposal

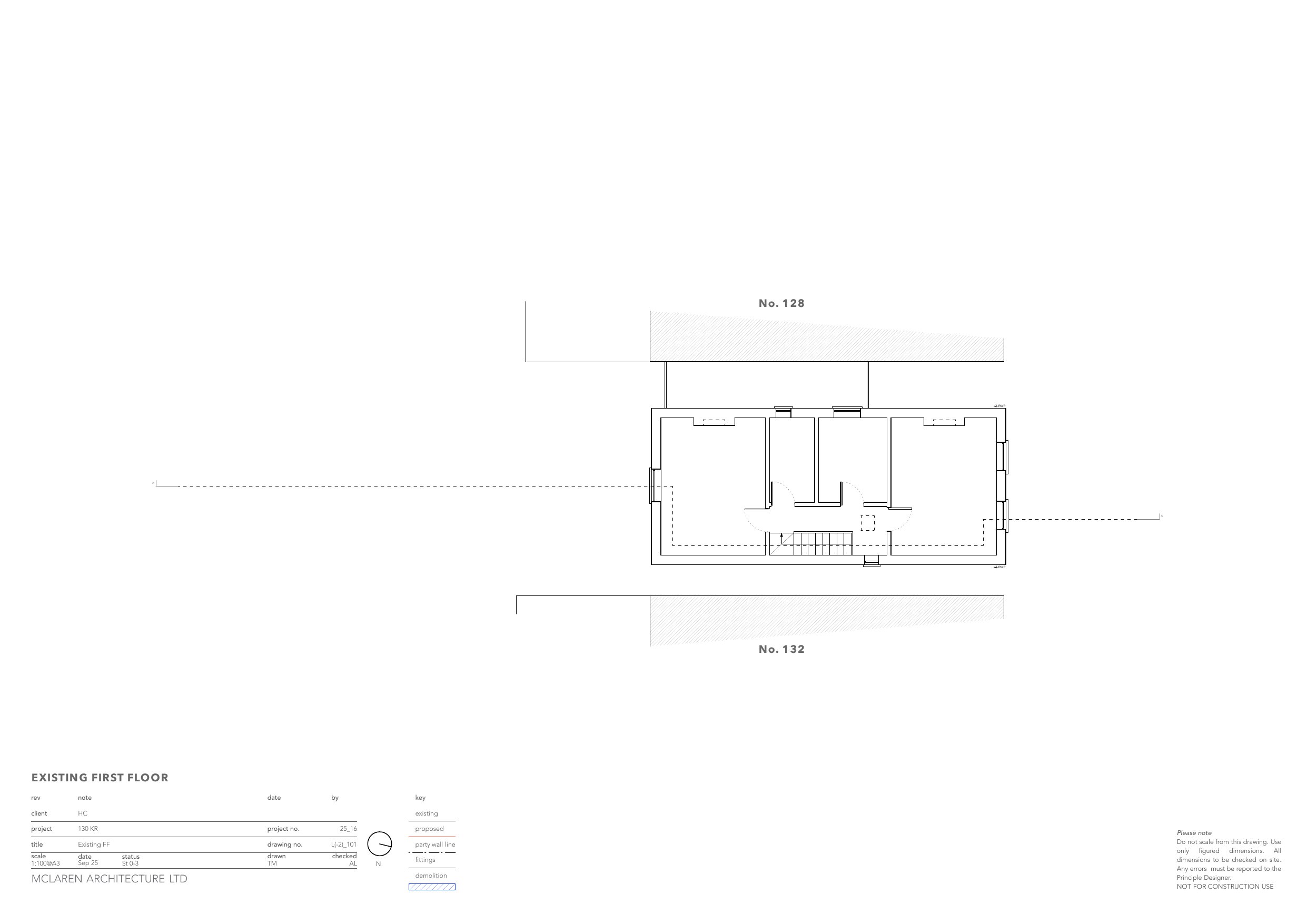
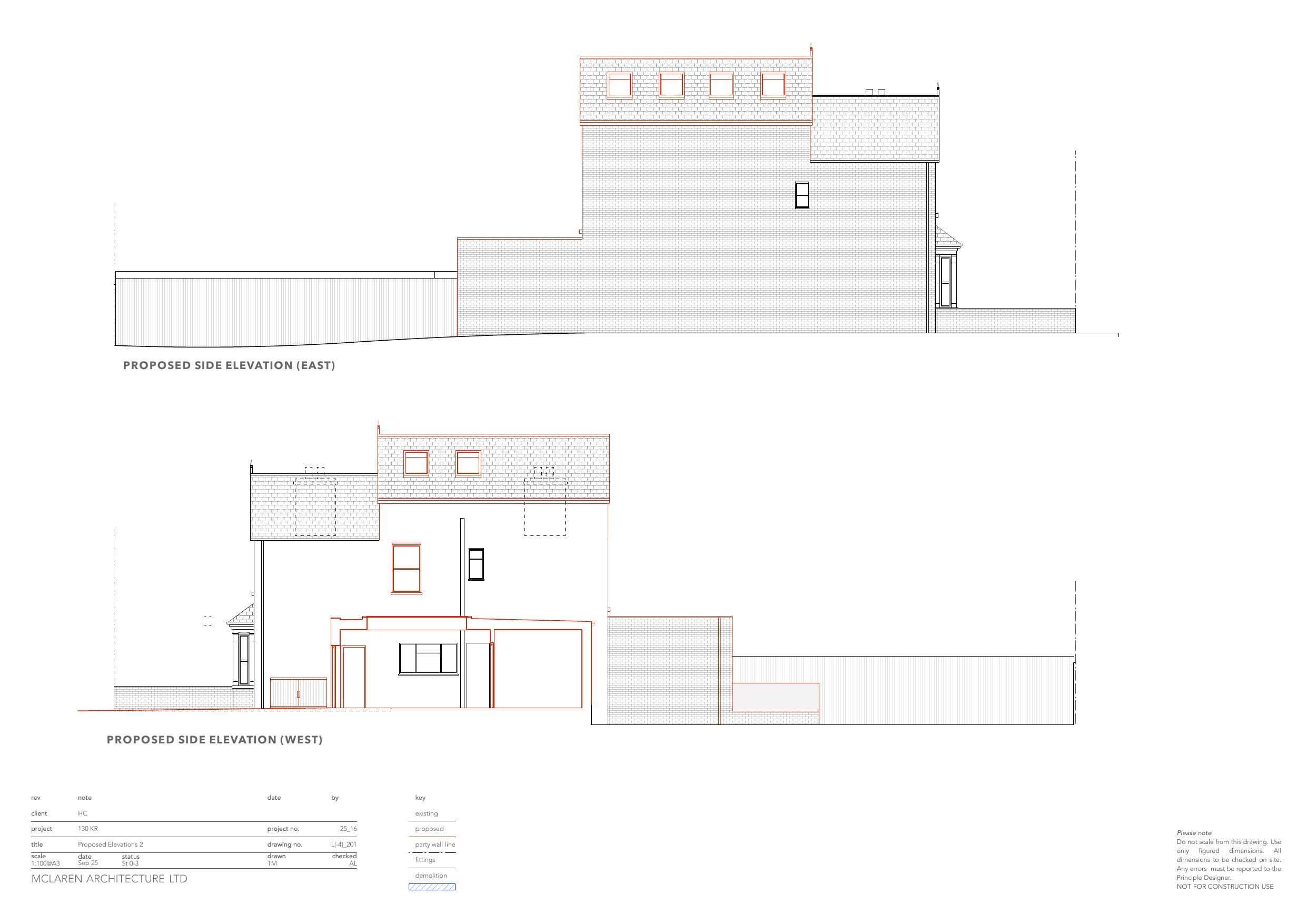
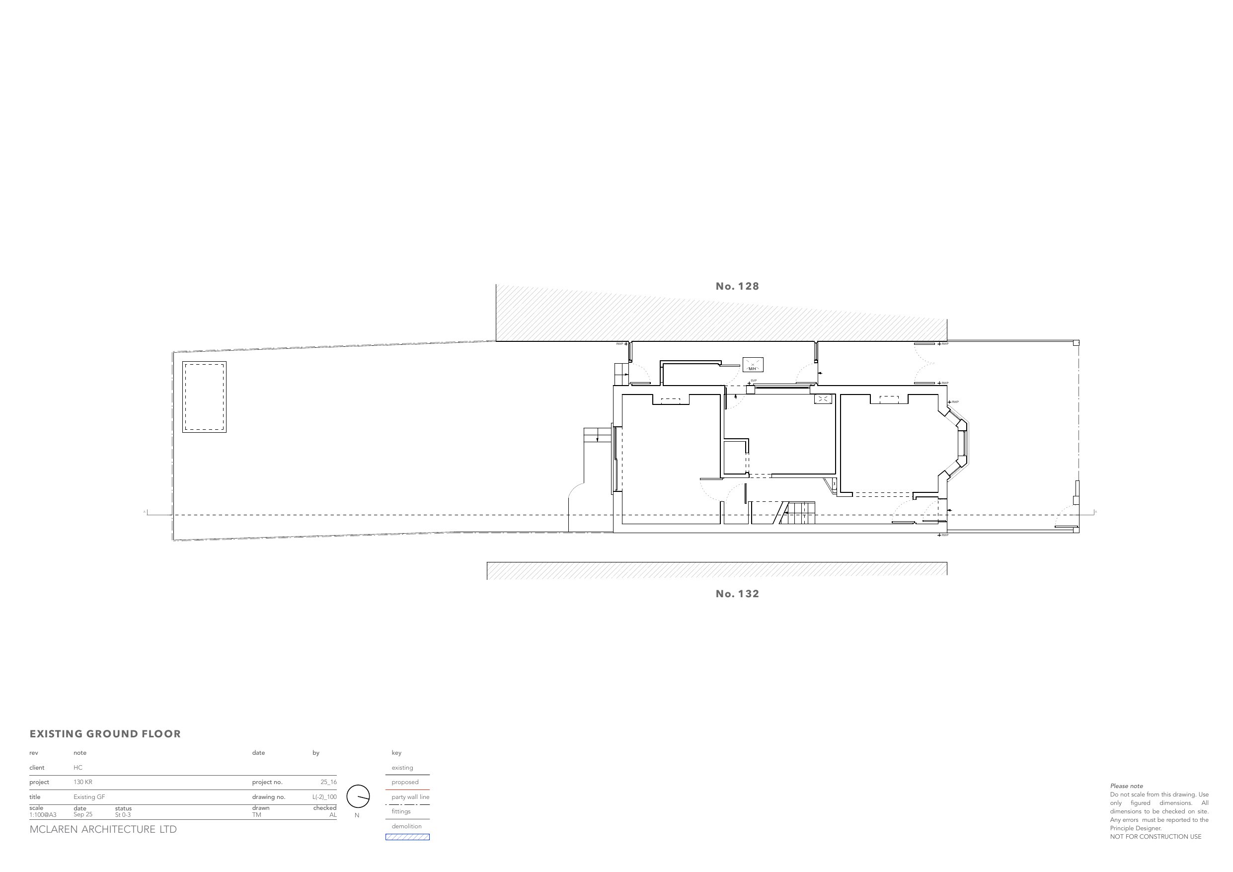
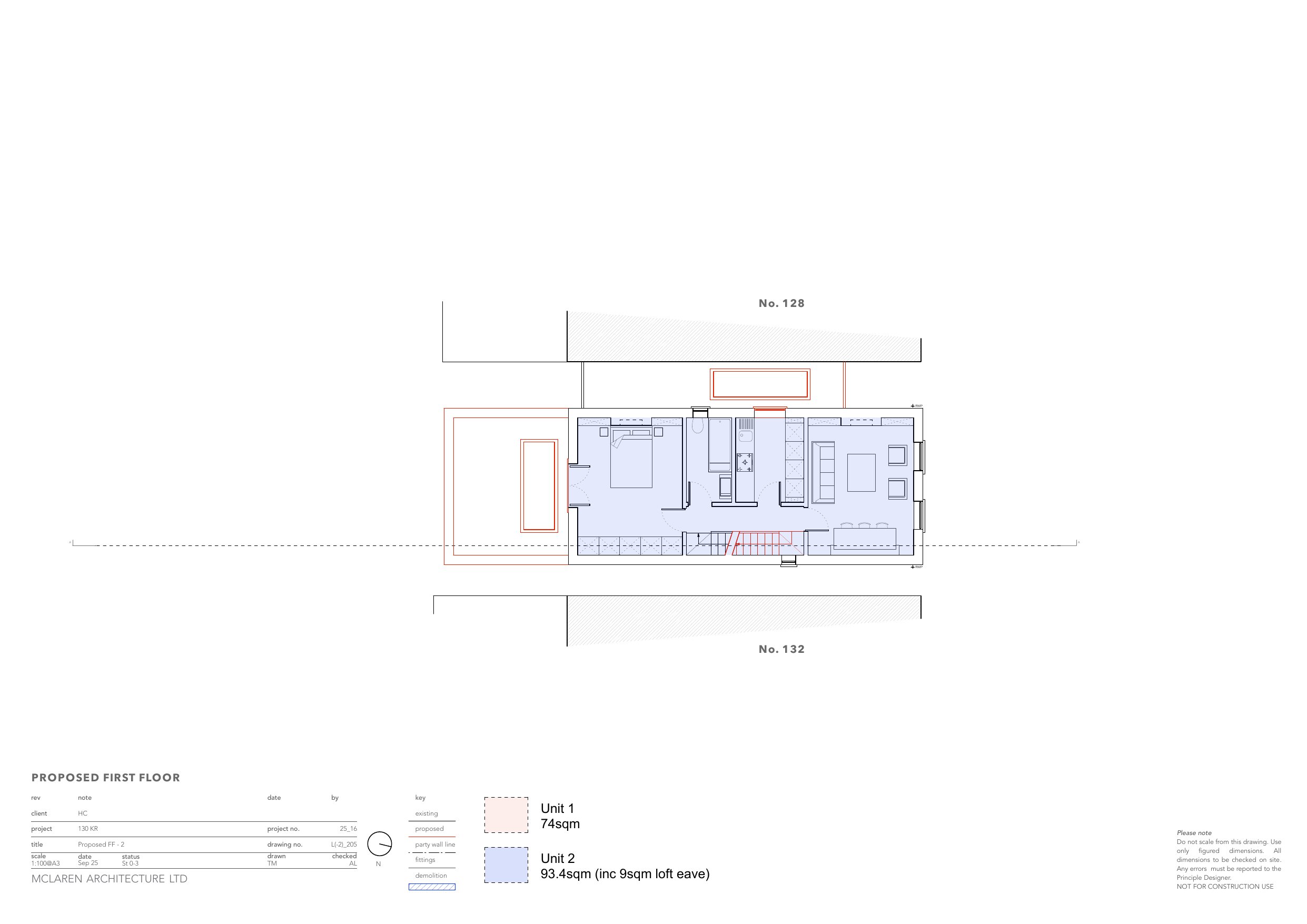
Conversion of dwelling to 2nos. self contained flats. Erection of single storey rear and side infill extensions, and rear piggy back roof extension with installation of side rooflights to facilitate loft conversion. Changes to fenestrations. Internal reconfiguration.

Documents

Supporting Documents
Archived · Original link
Application Form
Archived · Original link
Supporting Documents
Archived · Original link
Supporting Documents
Archived · Original link
Drawing
Archived · Original link
Supporting Documents
Archived · Original link
Supporting Documents
Archived · Original link
Drawing
Archived · Original link
Drawing
Archived · Original link
Drawing
Archived · Original link
Supporting Documents
Archived · Original link
Drawing
Archived · Original link
Supporting Documents
Archived · Original link
Drawing
Archived · Original link
Drawing
Archived · Original link
Drawing
Archived · Original link
Supporting Documents
Archived · Original link
Supporting Documents
Archived · Original link

Have your say

Your comment matters. Councils must consider every representation that raises material planning considerations.

Write a comment