← Kingston upon Thames

Status

Pending Consideration Commercial
Received
18 Nov 2025
New homes
0

Full proposal

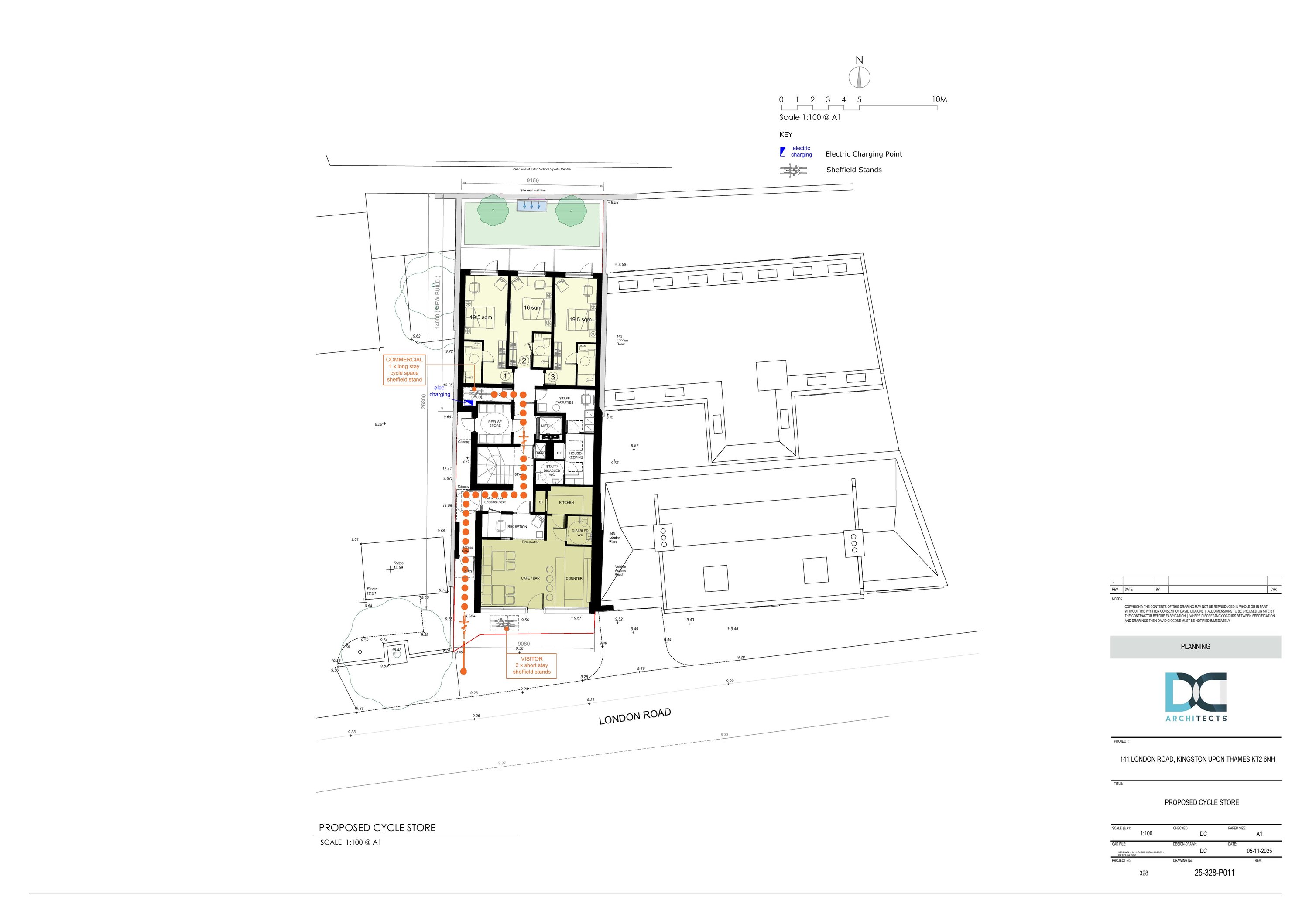
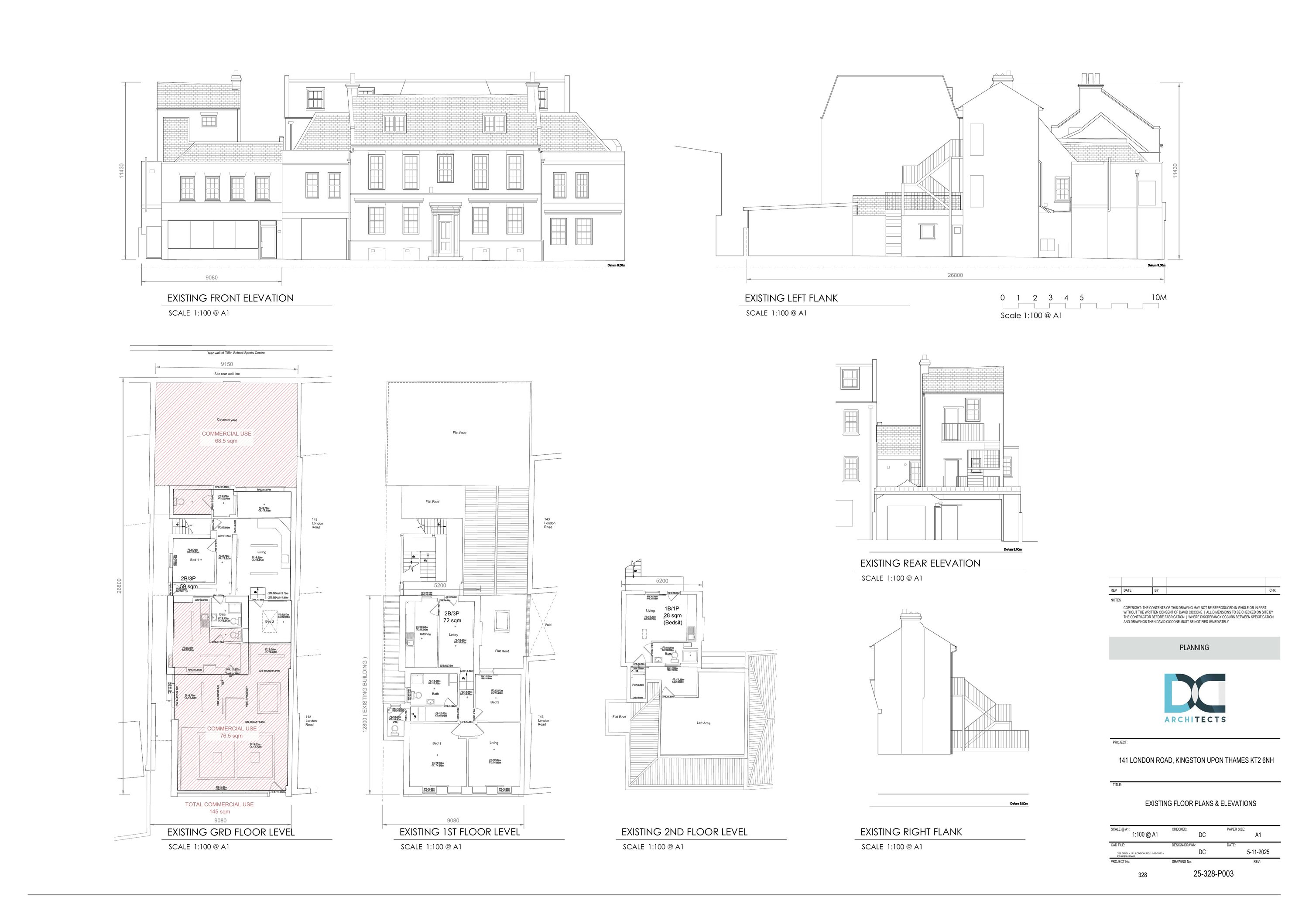
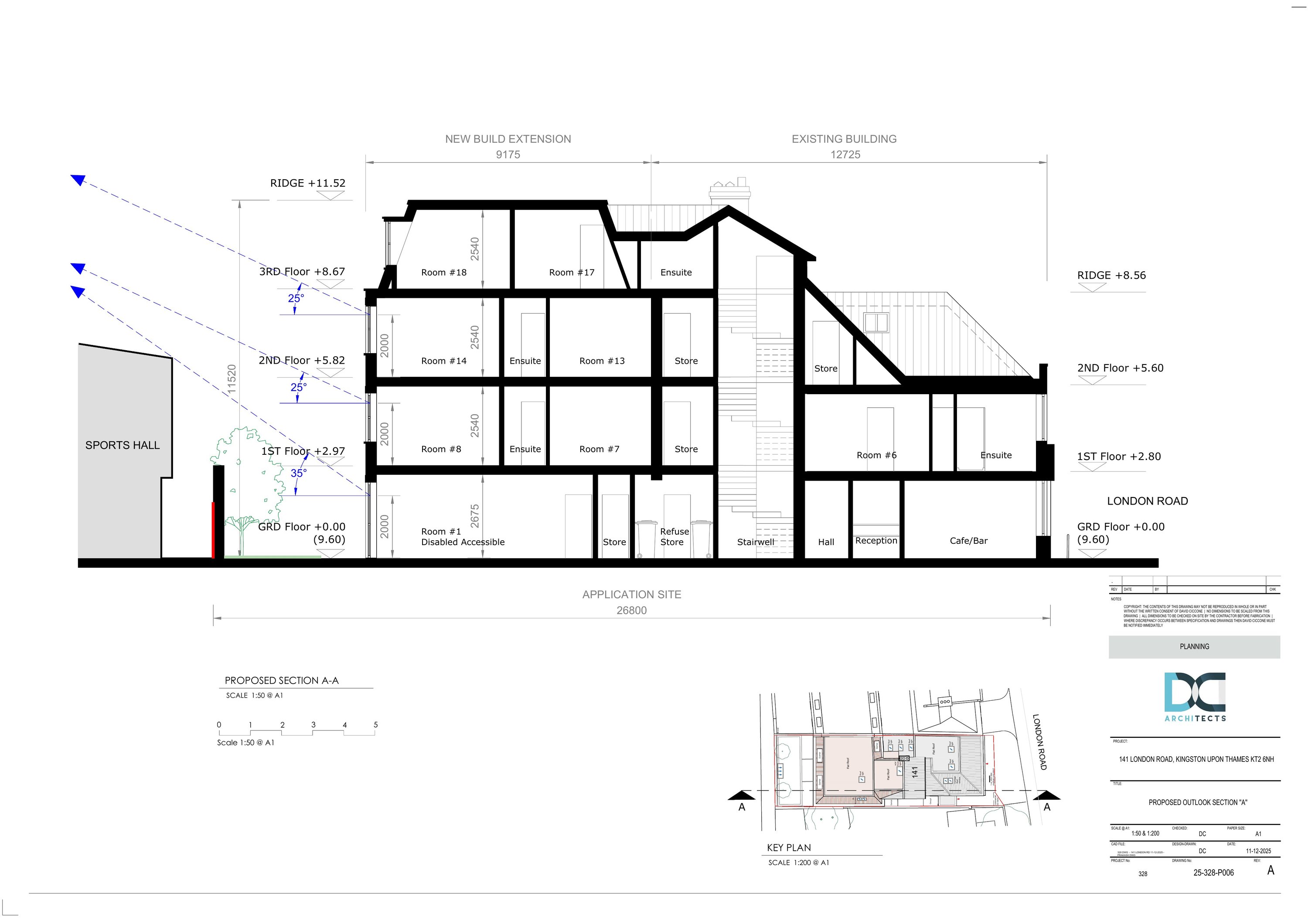
Loft extension and internal alterations to existing commercial property. Erection of 4 storey rear extension and internal alterations to provide ground floor retail and a 19 room hotel, with associated cycle parking, refuse storage and landscaping

Have your say

Your comment matters. Councils must consider every representation that raises material planning considerations.

Write a comment