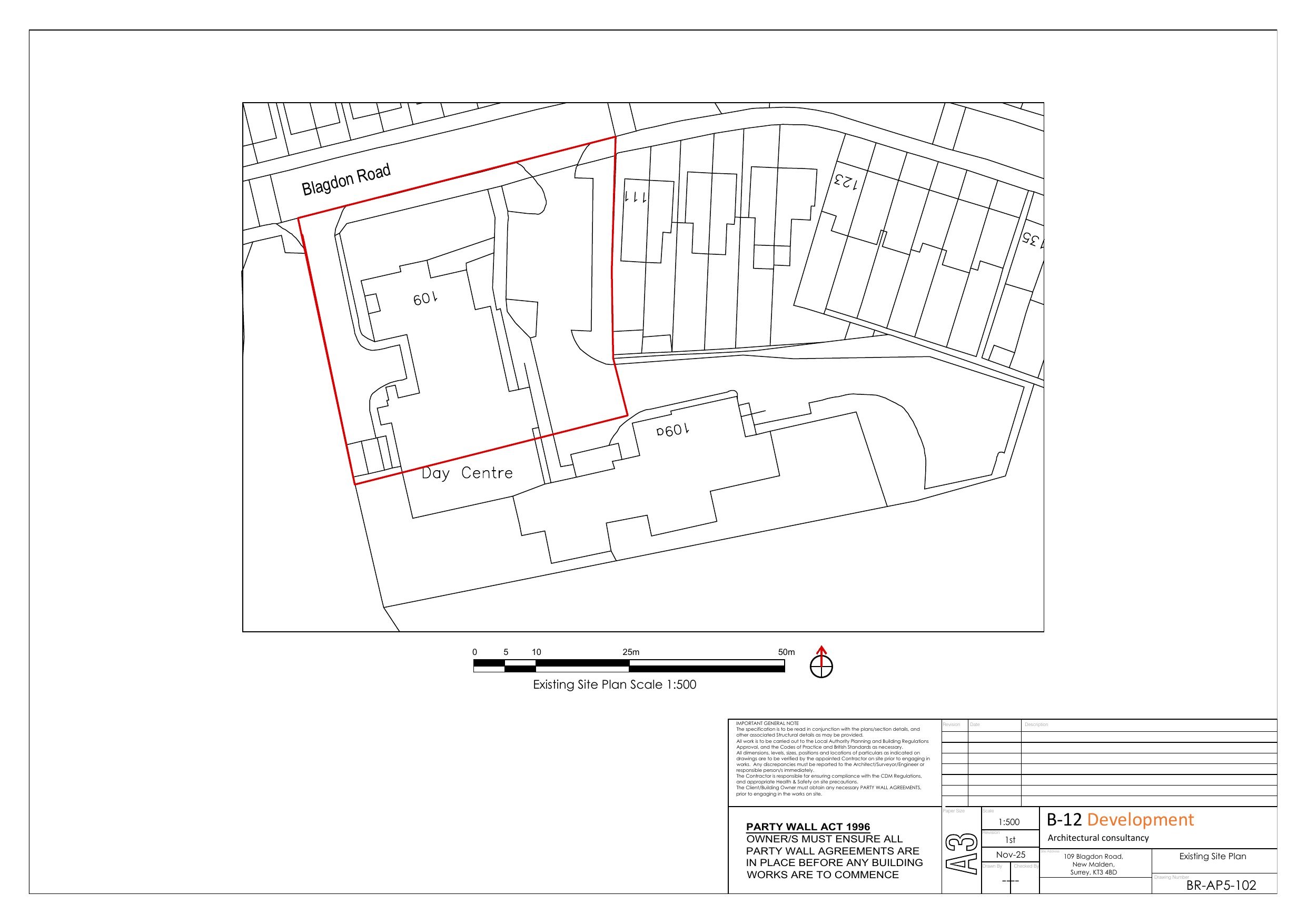
← Kingston upon Thames

Status

Pending Consideration Commercial
Received
01 Dec 2025
New homes
0

Full proposal

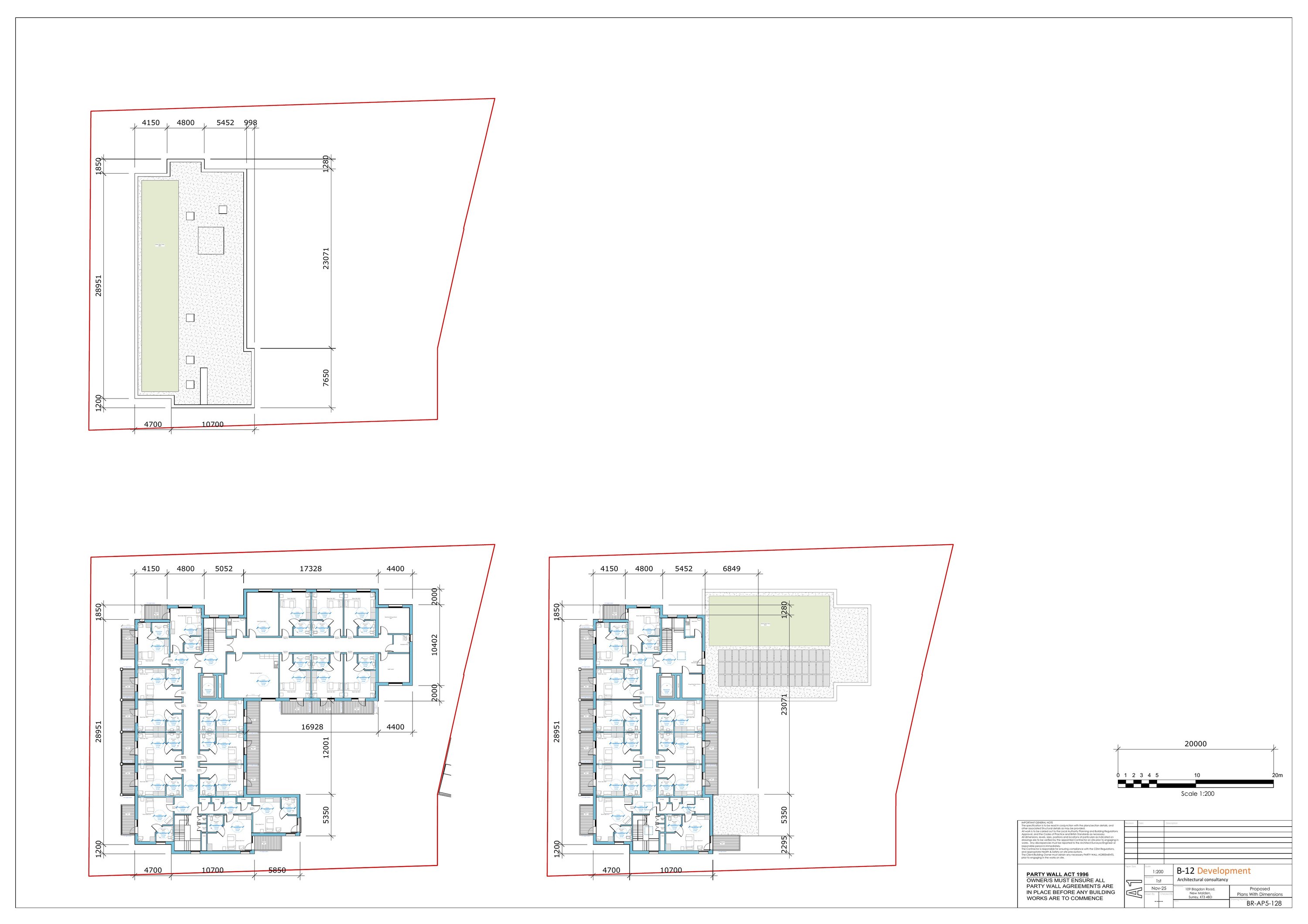
Outline planning permission for demolition of vacant residential care home and erection of 80 bed residential care home with associated bins and cycle provision. Resitting of accesses (Landscaping Matter Reserve)

Documents

24/00668/OUT APPEAL DECISION
Supporting Documents
Not yet archived · Original link
80 BED NEW CARE HOME SCHEDULE
Supporting Documents
Not yet archived · Original link
Air Quality Impact Assessment
Supporting Documents
Not yet archived · Original link
Application Form (No personal data)
Application Form
Not yet archived · Original link
Arboricultural Impact Assessment, Method Statement and Tree Protection Plan
Supporting Documents
Not yet archived · Original link
Area Calculation
Supporting Documents
Not yet archived · Original link
Biodiversity Checklist
Supporting Documents
Not yet archived · Original link
Biodiversity Net Gain Report
Supporting Documents
Not yet archived · Original link
BREEAM Pre Assessment
Supporting Documents
Not yet archived · Original link
BREEAM Report
Supporting Documents
Not yet archived · Original link
Construction Management Plan
Supporting Documents
Not yet archived · Original link
Daylight and Sunlight Assessment
Supporting Documents
Not yet archived · Original link
DELIVERY SERVICE PLAN
Supporting Documents
Not yet archived · Original link
Design Assessment
Supporting Documents
Not yet archived · Original link
Designing Out Crime Statement
Supporting Documents
Not yet archived · Original link
Disabled Access Plan
Drawing
Not yet archived · Original link
Ecological Appraisal Report
Supporting Documents
Not yet archived · Original link
Energy Statement
Supporting Documents
Not yet archived · Original link
Existing and Proposed Street Elevations
Drawing
Not yet archived · Original link
Existing Front and Side Elevation
Drawing
Not yet archived · Original link
Existing Ground and First Floor Plans
Drawing
Not yet archived · Original link
Existing Plan and Elevations with Dimensions
Drawing
Not yet archived · Original link
Existing Plans with Dimensions
Drawing
Not yet archived · Original link
Existing Rear and Side Elevation
Drawing
Not yet archived · Original link
Existing Second Floor and Roof Plan
Drawing
Not yet archived · Original link
Drawing
Archived · Original link
Drawing
Archived · Original link
Fire Safety Plan
Drawing
Not yet archived · Original link
FIRE STRATEGY
Supporting Documents
Not yet archived · Original link
Flood Risk Assessment
Supporting Documents
Not yet archived · Original link
GLA Carbon Emmission Reporting Spreadsheet
Supporting Documents
Not yet archived · Original link
Internal Daylight Assessment
Supporting Documents
Not yet archived · Original link
Noise Assessment
Supporting Documents
Not yet archived · Original link
Planning Design & Access Statement
Supporting Documents
Not yet archived · Original link
Proposed Cycle abd Disabled Parking Details
Drawing
Not yet archived · Original link
Proposed Elevations and Sections with Dimensions
Drawing
Not yet archived · Original link
Proposed Elevations Showing Boundary
Drawing
Not yet archived · Original link
PROPOSED FACING MATERIALS
Supporting Documents
Not yet archived · Original link
Proposed First Floor Plan
Drawing
Not yet archived · Original link
Proposed Fourth Floor Plan
Drawing
Not yet archived · Original link
Proposed Front and Side Elevations
Drawing
Not yet archived · Original link
Proposed Grouind Floor Plan
Drawing
Not yet archived · Original link
PROPOSED MATERIALS
Supporting Documents
Not yet archived · Original link
Proposed Plan with Distance
Drawing
Not yet archived · Original link
Proposed Rear and Side Elevations
Drawing
Not yet archived · Original link
Proposed Roof Plan
Drawing
Not yet archived · Original link
Proposed Second Floor Plan
Drawing
Not yet archived · Original link
Proposed Sectional Elevations
Drawing
Not yet archived · Original link
Proposed Sections
Drawing
Not yet archived · Original link
Proposed Third Floor Plan
Drawing
Not yet archived · Original link
Propsoed Location Plan
Drawing
Not yet archived · Original link
Drawing
Archived · Original link
Site Survey Plan
Drawing
Not yet archived · Original link
Small Sites Metric Calculation Tool (Biodiversity Metric 4.0)
Supporting Documents
Not yet archived · Original link
SuDS Strategy
Supporting Documents
Not yet archived · Original link
Supporting Information
Supporting Documents
Not yet archived · Original link
TRANSPORT STATEMENT
Supporting Documents
Not yet archived · Original link
Travel Plan Statement
Supporting Documents
Not yet archived · Original link
Urban Green Factoring Calculations
Supporting Documents
Not yet archived · Original link
Validation Checklist
Supporting Documents
Not yet archived · Original link
WASTE MANAGEMENT PLAN
Supporting Documents
Not yet archived · Original link

Have your say

Your comment matters. Councils must consider every representation that raises material planning considerations.

Write a comment