← Kingston upon Thames

Status

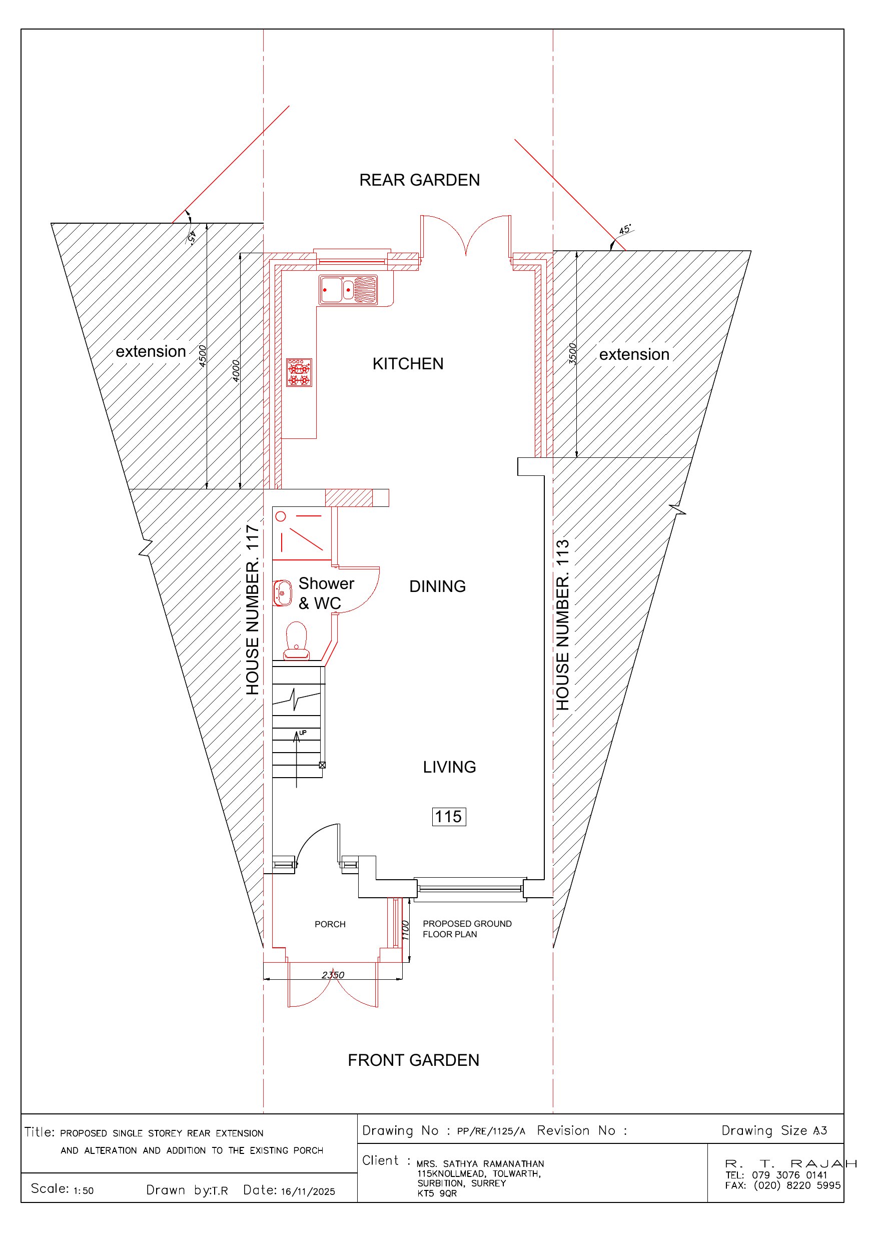
Pending Consideration House extension
Received
03 Dec 2025
New homes
0

Full proposal

Erection of single storey rear and single storey front porch extensions

Documents

Application Form
Archived · Original link
Application Form
Archived · Original link
Supporting Documents
Archived · Original link
Supporting Documents
Archived · Original link
Supporting Documents
Archived · Original link
Supporting Documents
Archived · Original link
Supporting Documents
Archived · Original link

Have your say

Your comment matters. Councils must consider every representation that raises material planning considerations.

Write a comment