← Back to Kingston upon Thames
Application
25/03172/FUL
Kingston upon Thames · IDOX
Status
Pending Consideration
Received
Last month
New dwellings
n/a
What you can do
Take Action
Make your voice heard. Authorities need to hear from people who support new homes.
Full Proposal
Enlargement of existing rear dormer roof window, conversion of single dwelling into 3nos. apartments over ground, first and second floors. Change of use of part ground floor rooms to ancillary admin space for existing veterinary surgery. Erection of rear balconies at ground and first floor. Changes to fenestrations.
Detail pages
- View live detail on council site
- No archived detail page available.
Documents
Acoustic Report
Supporting Documents
Not downloaded
· Council link
Application Form (No personal data)
Application Form
Not downloaded
· Council link
Approved 19/01117/FUL First Floor Plan
Drawing
Not downloaded
· Council link
Approved 19/01117/FUL Front Elevation
Drawing
Not downloaded
· Council link
Approved 19/01117/FUL Ground Floor Plan
Drawing
Not downloaded
· Council link
Approved 19/01117/FUL Lower Ground Floor Plan
Drawing
Not downloaded
· Council link
Approved 19/01117/FUL Rear Elevation
Drawing
Not downloaded
· Council link
Approved 19/01117/FUL Roof Plan
Drawing
Not downloaded
· Council link
Approved 19/01117/FUL Second Floor Plan
Drawing
Not downloaded
· Council link
Approved 19/01117/FUL Section AA
Drawing
Not downloaded
· Council link
Approved 19/01117/FUL Side Elevation
Drawing
Not downloaded
· Council link
Approved 19/01117/FUL Site Plan
Drawing
Archived copy
· Council link
Biodiversity Checklist
Supporting Documents
Not downloaded
· Council link
Block Plan
Drawing
Not downloaded
· Council link
Cover Letter
Supporting Documents
Not downloaded
· Council link
Design and Access Statement
Supporting Documents
Not downloaded
· Council link
Existing First Floor Plan
Drawing
Not downloaded
· Council link
Existing Front Elevation
Drawing
Not downloaded
· Council link
Existing Ground Floor Plan
Drawing
Not downloaded
· Council link
Existing Lower Ground Floor Plan
Drawing
Not downloaded
· Council link
Existing Rear Elevation
Drawing
Not downloaded
· Council link
Existing Roof Plan
Drawing
Not downloaded
· Council link
Existing Second Floor Plan
Drawing
Not downloaded
· Council link
Existing Section AA
Drawing
Not downloaded
· Council link
Existing Side Elevation
Drawing
Not downloaded
· Council link
Existing Site Plan
Drawing
Archived copy
· Council link
Heritage Statement
Supporting Documents
Not downloaded
· Council link
Planning Statement
Supporting Documents
Not downloaded
· Council link
Proposed First Floor Plan
Drawing
Not downloaded
· Council link
Proposed Front Elevation
Drawing
Not downloaded
· Council link
Proposed Ground Floor Plan
Drawing
Not downloaded
· Council link
Proposed Lower Ground Floor Plan
Drawing
Not downloaded
· Council link
Proposed Rear Elevation
Drawing
Not downloaded
· Council link
Proposed Roof Plan
Drawing
Not downloaded
· Council link
Proposed Second Floor Plan
Drawing
Not downloaded
· Council link
Proposed Section AA
Drawing
Not downloaded
· Council link
Proposed Side Elevation
Drawing
Not downloaded
· Council link
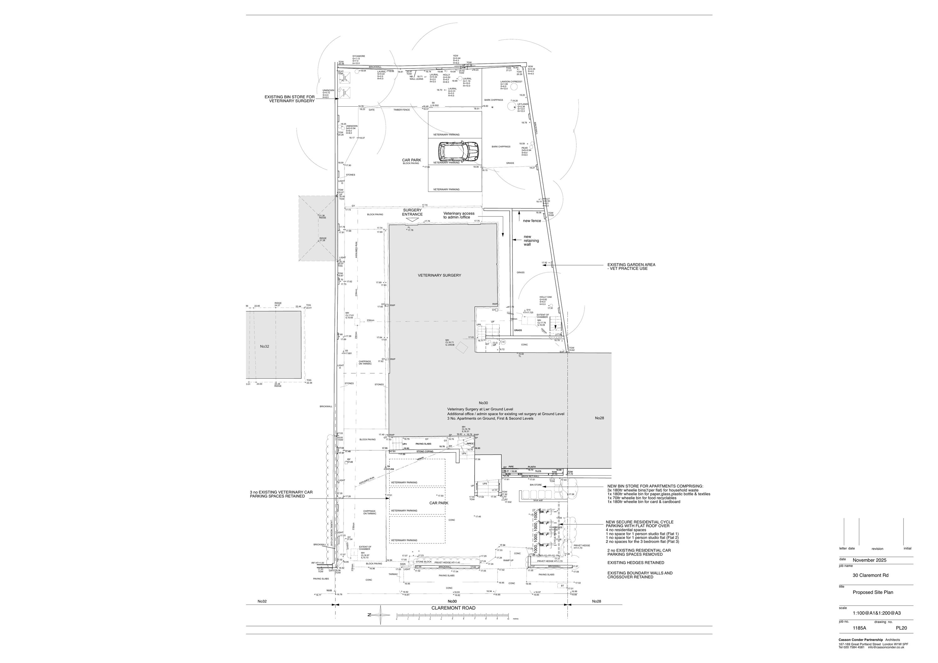
Proposed Site Plan
Drawing
Archived copy
· Council link
Schedule of Accommodation
Supporting Documents
Not downloaded
· Council link
Site Location Plan
Drawing
Archived copy
· Council link
Validation Checklist
Supporting Documents
Not downloaded
· Council link
Water Consumption Statement
Supporting Documents
Not downloaded
· Council link
Window Details
Drawing
Not downloaded
· Council link