← Kingston upon Thames

Status

Pending Consideration House extension
Received
29 Dec 2025
New homes
0

Full proposal

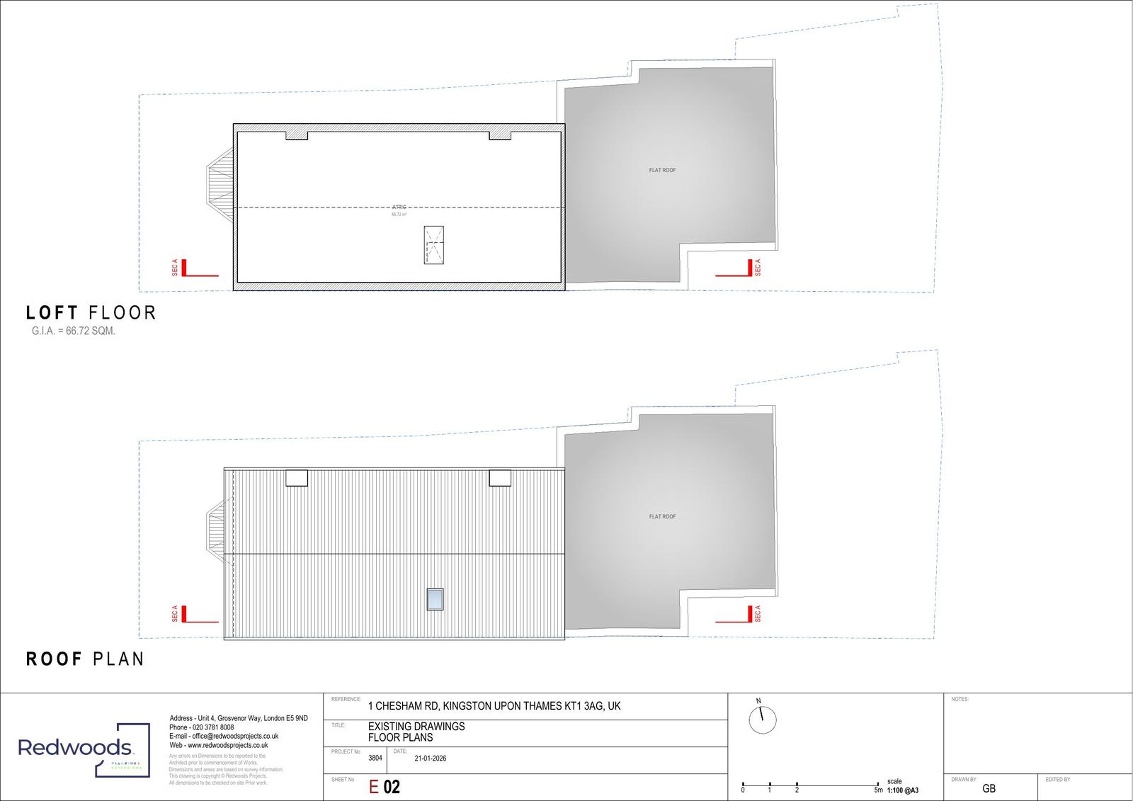
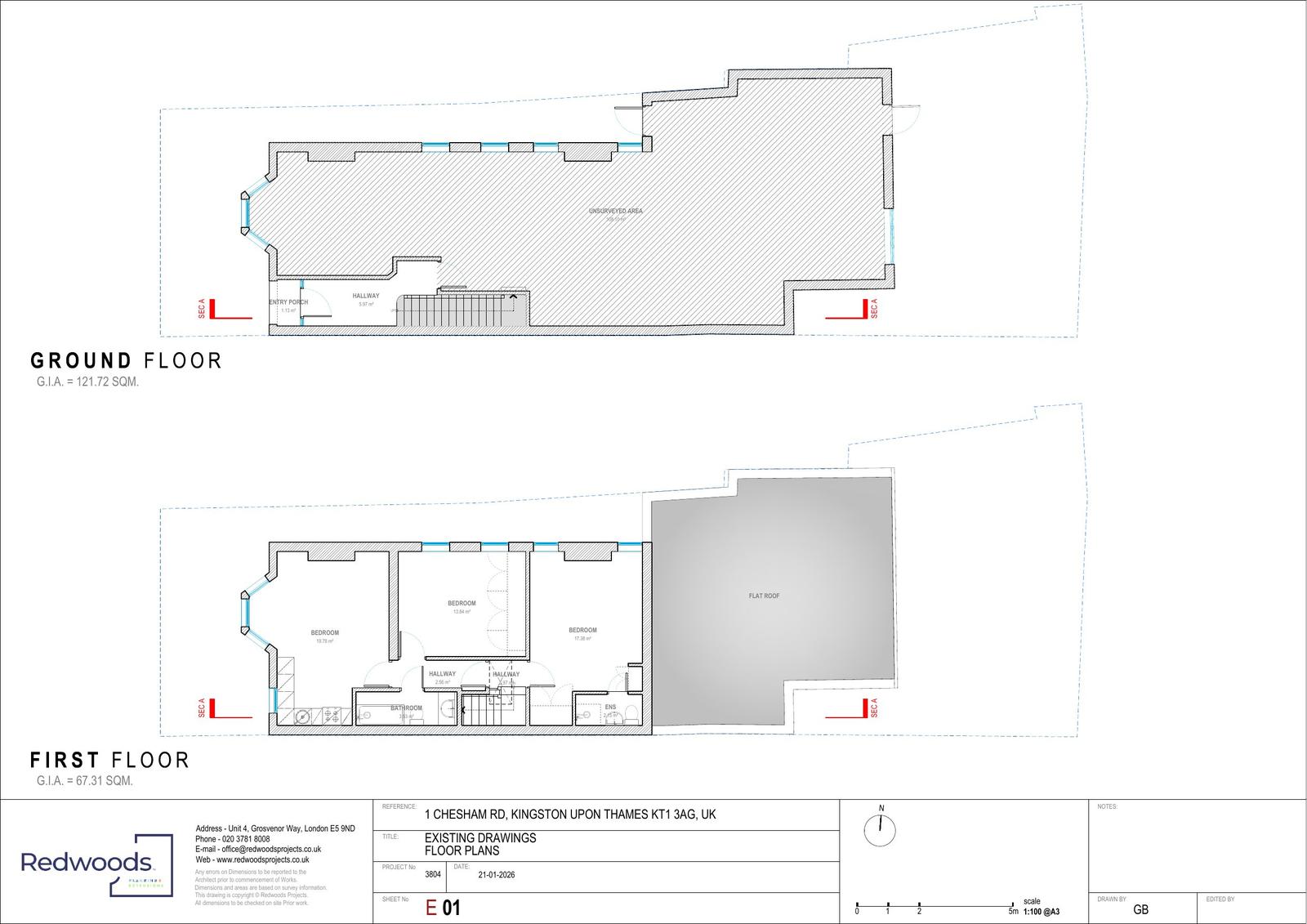
Erection of rear piggyback roof extension with Juliet balcony and installation of 6nos. side rooflights to facilitate loft conversion

Have your say

Your comment matters. Councils must consider every representation that raises material planning considerations.

Write a comment