← Kingston upon Thames

Status

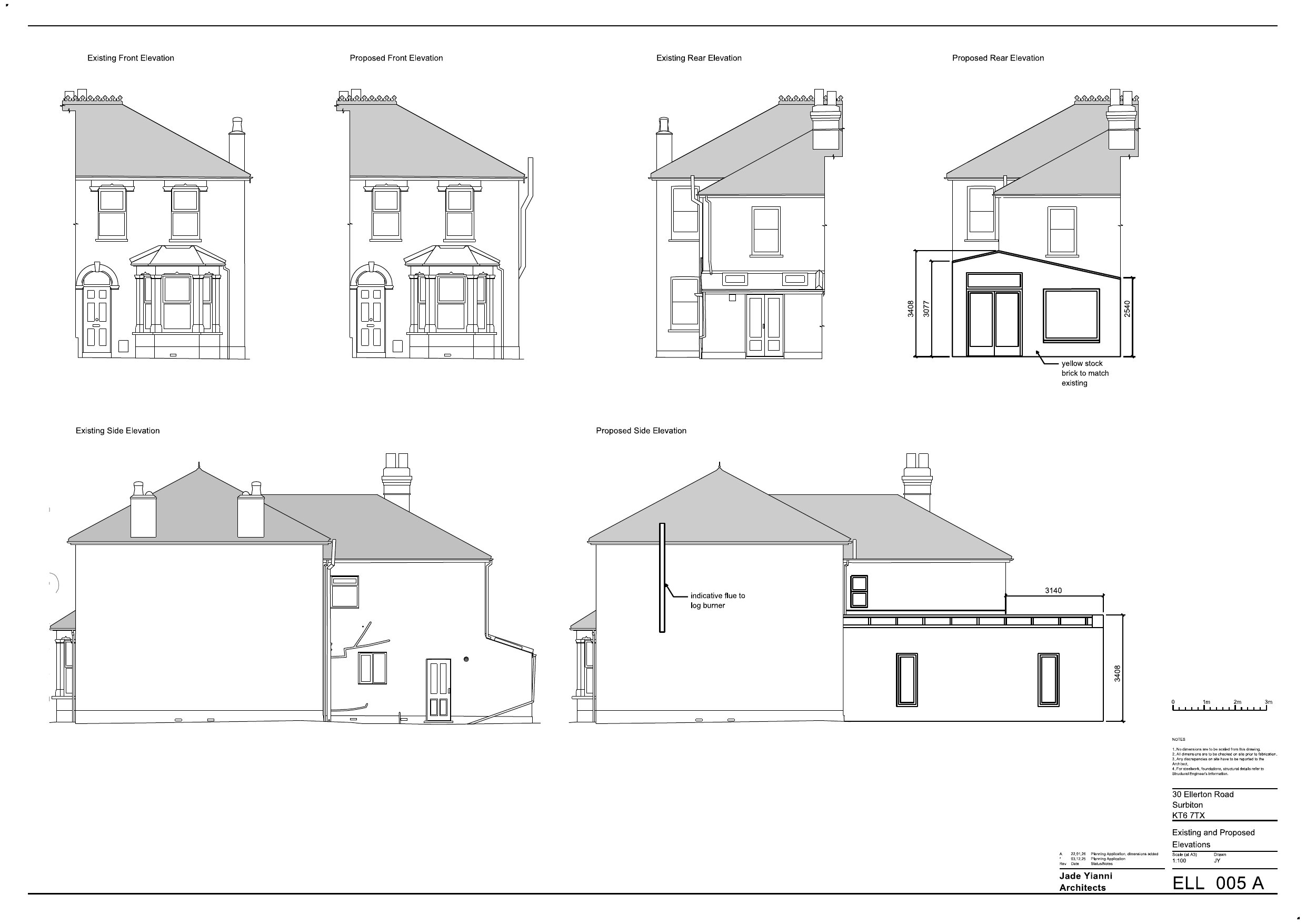
Pending Consideration House extension
Received
07 Jan 2026
New homes
0

Full proposal

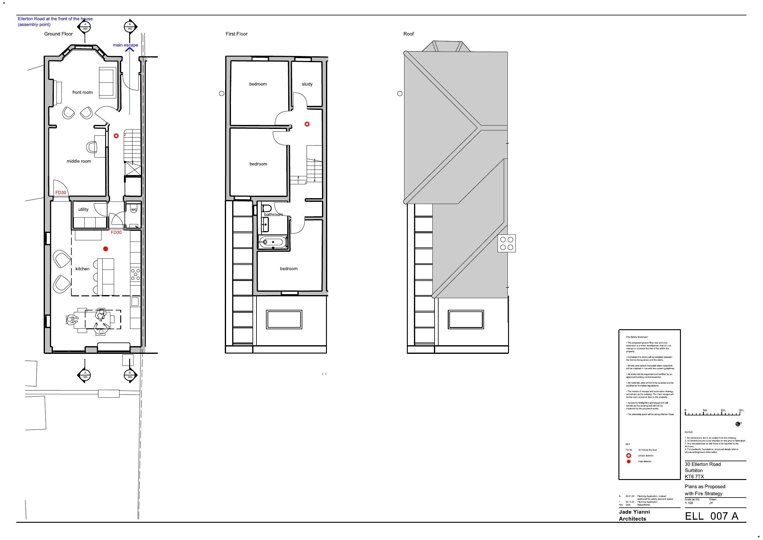
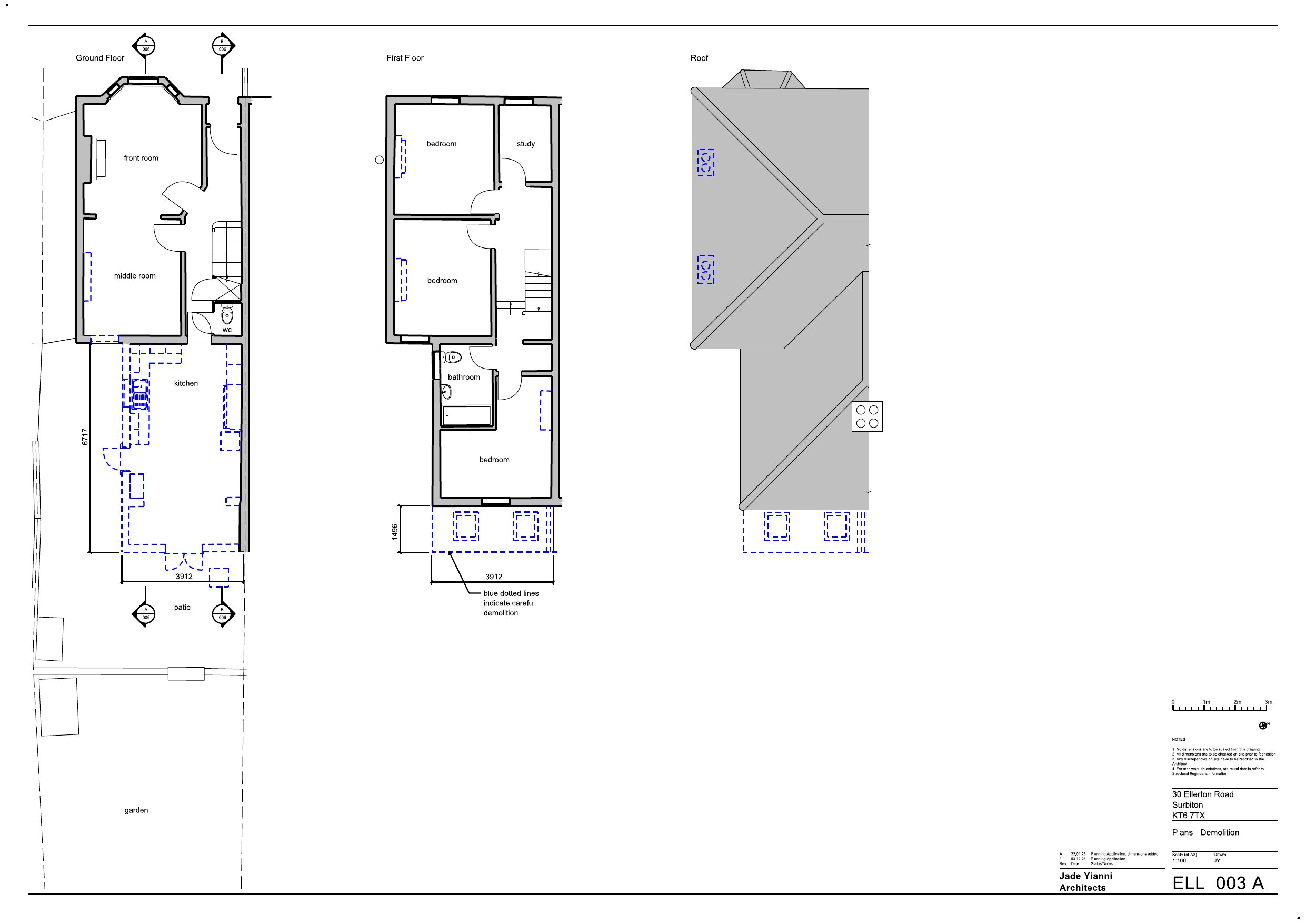
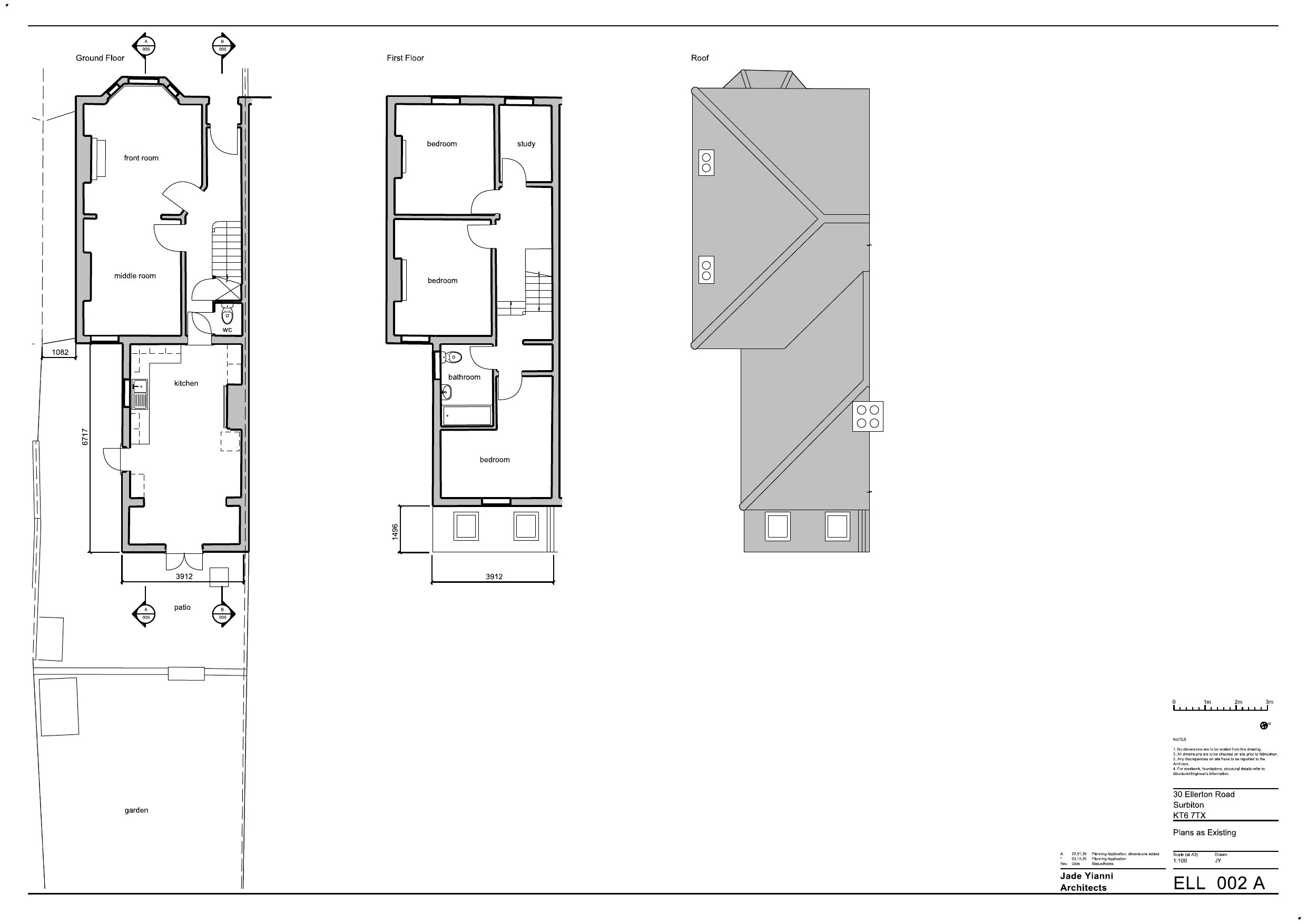
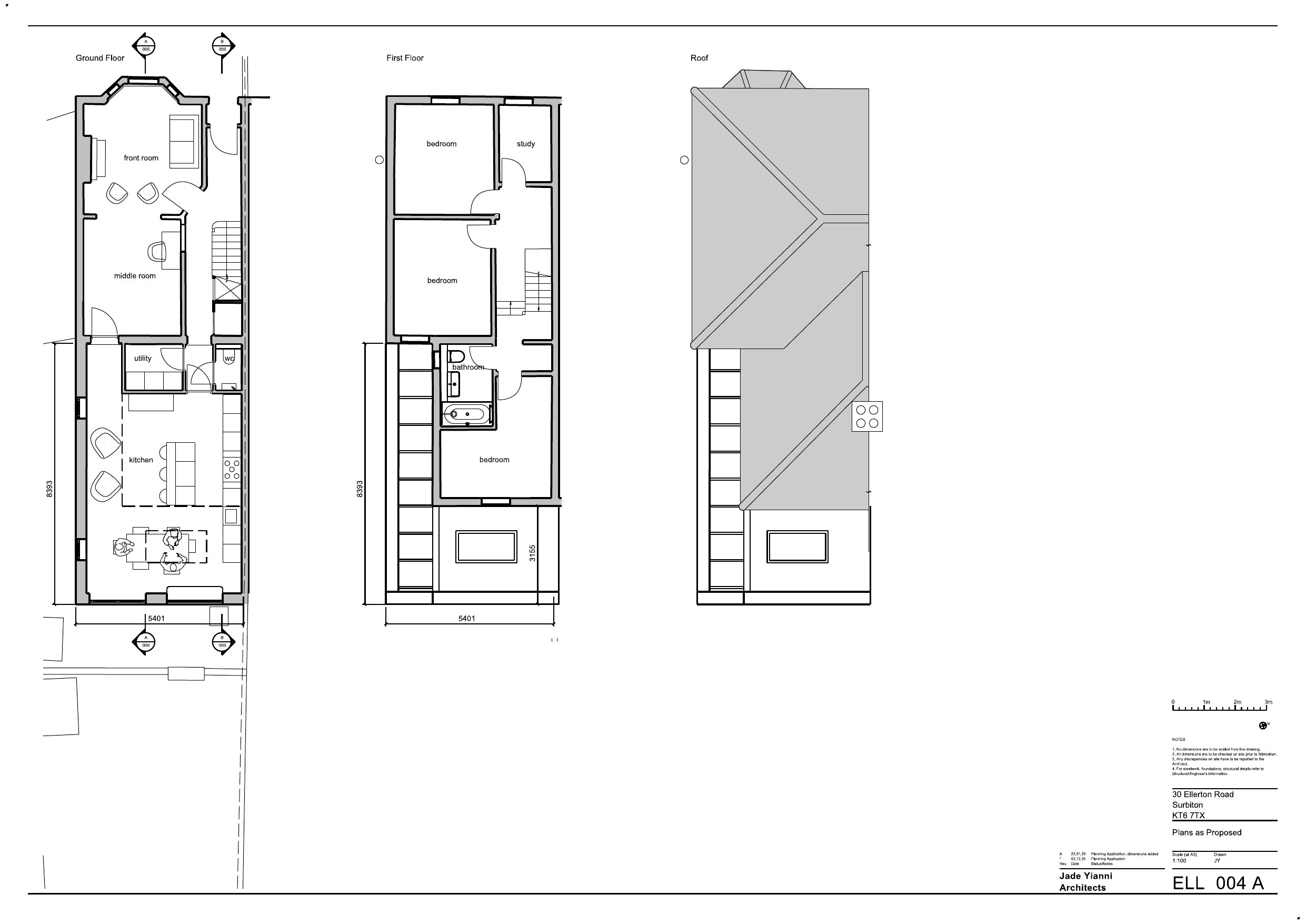
Demolition of single storey rear extension and erection of single storey rear and side extension.

Have your say

Your comment matters. Councils must consider every representation that raises material planning considerations.

Write a comment