← Kingston upon Thames

Status

Pending Consideration New housing
Received
20 Jan 2026
New homes
1

Full proposal

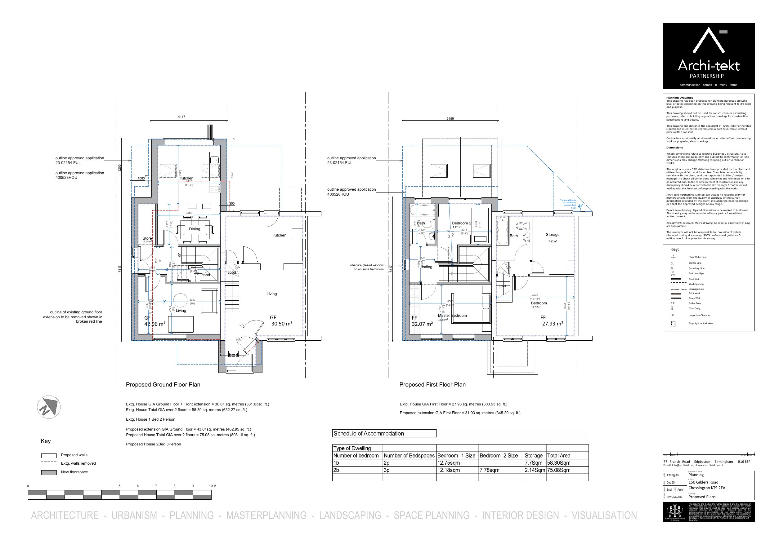
Demolition of single storey side extension and erection of part single/part two storey side extension to create 1no. two bed dwelling with access to the rear. Erection of single storey front porch to existing dwelling and conversion from two bed to one bed. Demolition of garage to rear.

Documents

Application Form
Archived · Original link
Supporting Documents
Archived · Original link
Supporting Documents
Archived · Original link
Supporting Documents
Archived · Original link
Drawing
Archived · Original link
Supporting Documents
Archived · Original link
Supporting Documents
Archived · Original link
Supporting Documents
Archived · Original link
Drawing
Archived · Original link
Drawing
Archived · Original link
Drawing
Archived · Original link
Drawing
Archived · Original link
Supporting Documents
Archived · Original link

Have your say

Your comment matters. Councils must consider every representation that raises material planning considerations.

Write a comment