← Kingston upon Thames

Status

Pending Consideration House extension
Received
28 Jan 2026
New homes
0

Full proposal

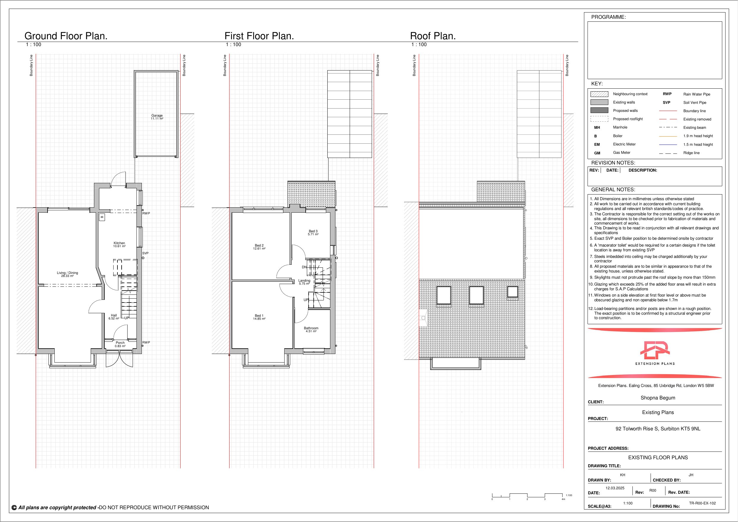
Demolition of an existing detached garage, erection of a single storey front porch, rear and side extension. Fenestration alteration

Documents

Application Form
Archived · Original link
Supporting Documents
Archived · Original link
Drawing
Archived · Original link
Drawing
Archived · Original link
Supporting Documents
Archived · Original link
Supporting Documents
Archived · Original link
Drawing
Archived · Original link
Drawing
Archived · Original link
Drawing
Archived · Original link

Have your say

Your comment matters. Councils must consider every representation that raises material planning considerations.

Write a comment