← Kingston upon Thames

Status

Pending Decision House extension
Received
02 Feb 2026
New homes
0

Full proposal

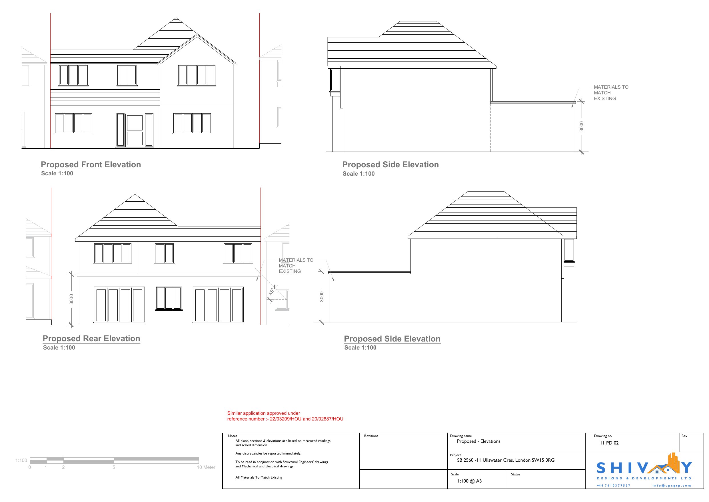
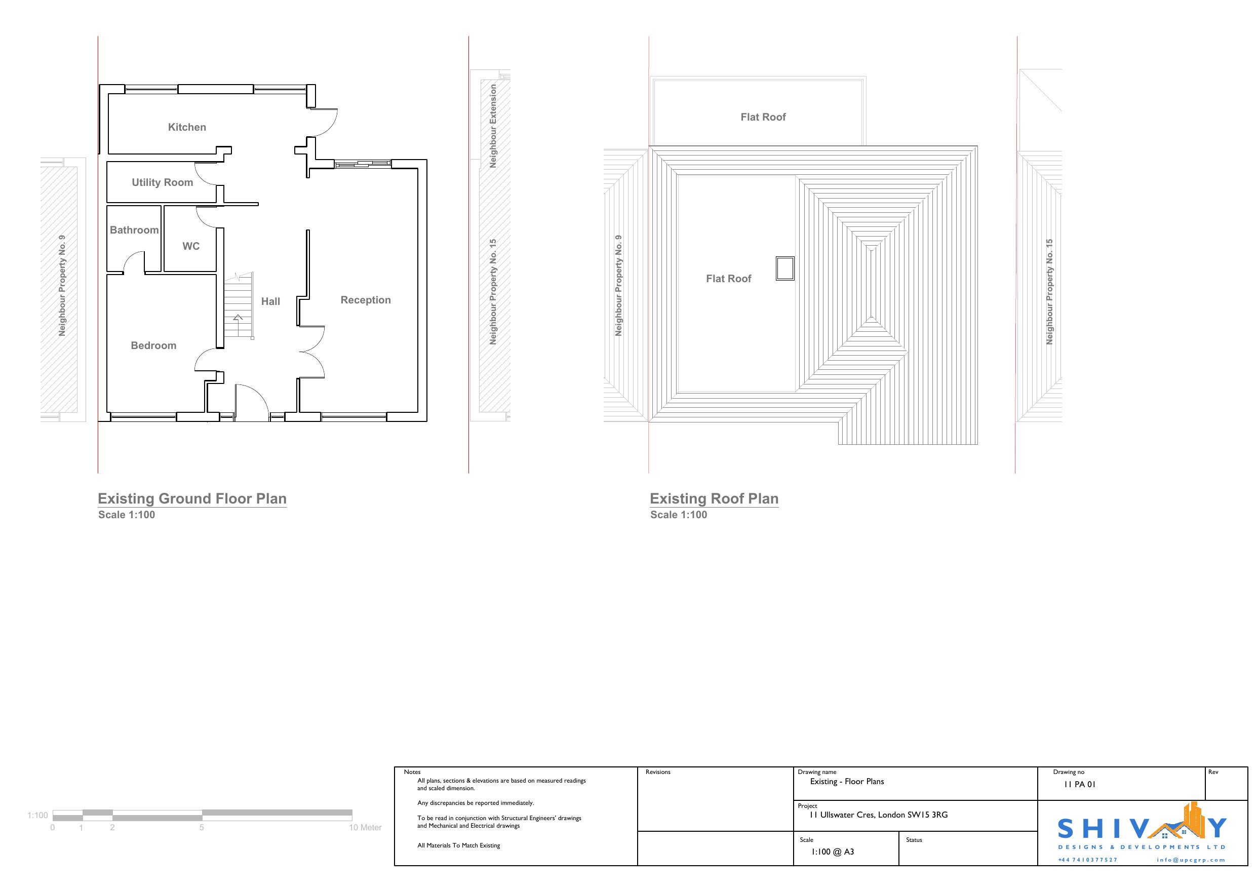
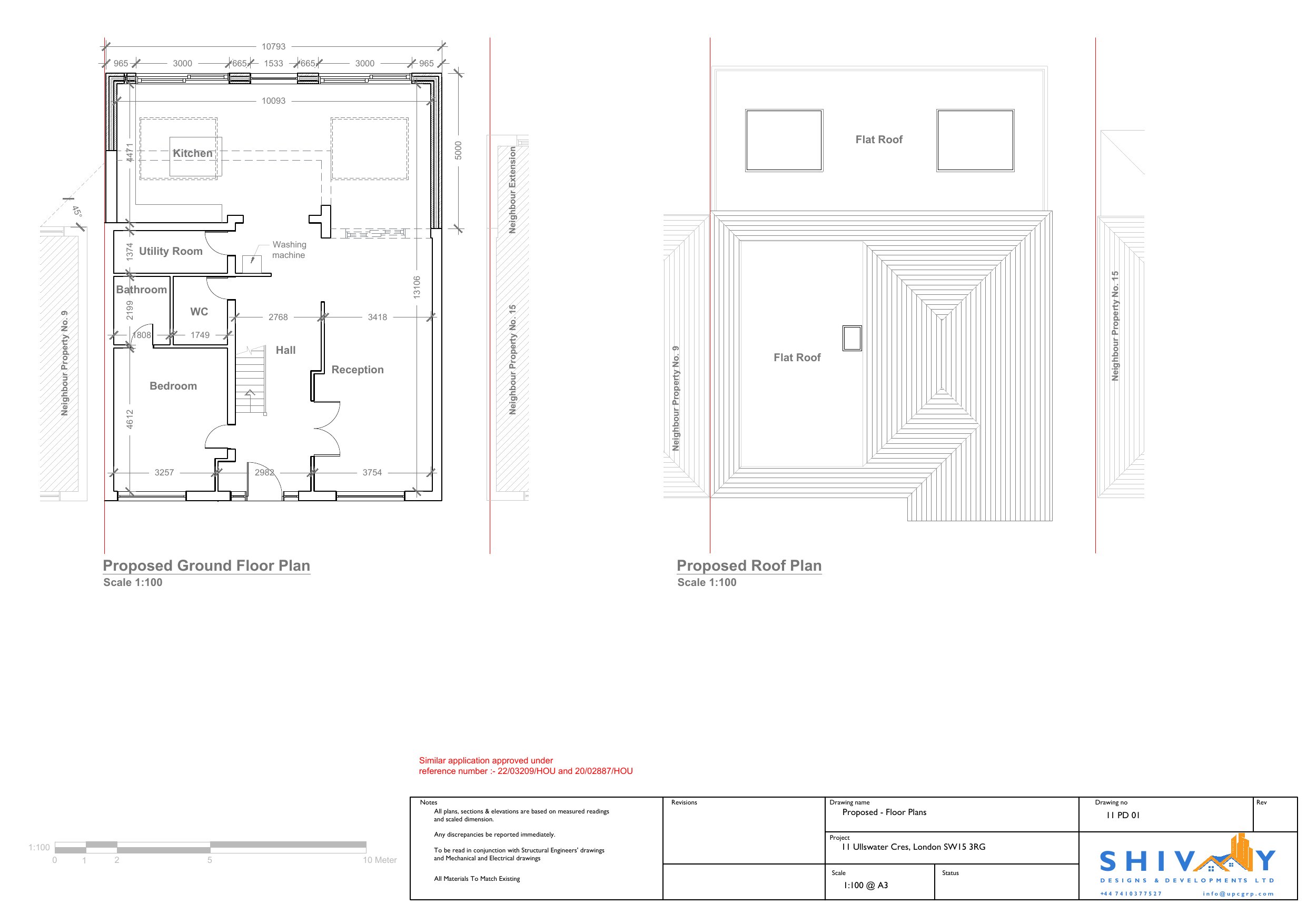
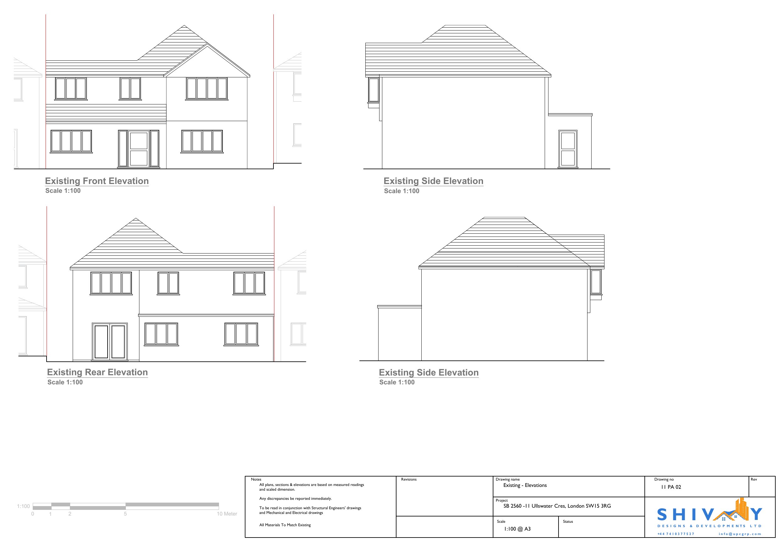
Erection of single storey rear extension

Have your say

Your comment matters. Councils must consider every representation that raises material planning considerations.

Write a comment