← Kingston upon Thames

Status

Pending Consideration House extension
Received
Last month
New homes
0

Full proposal

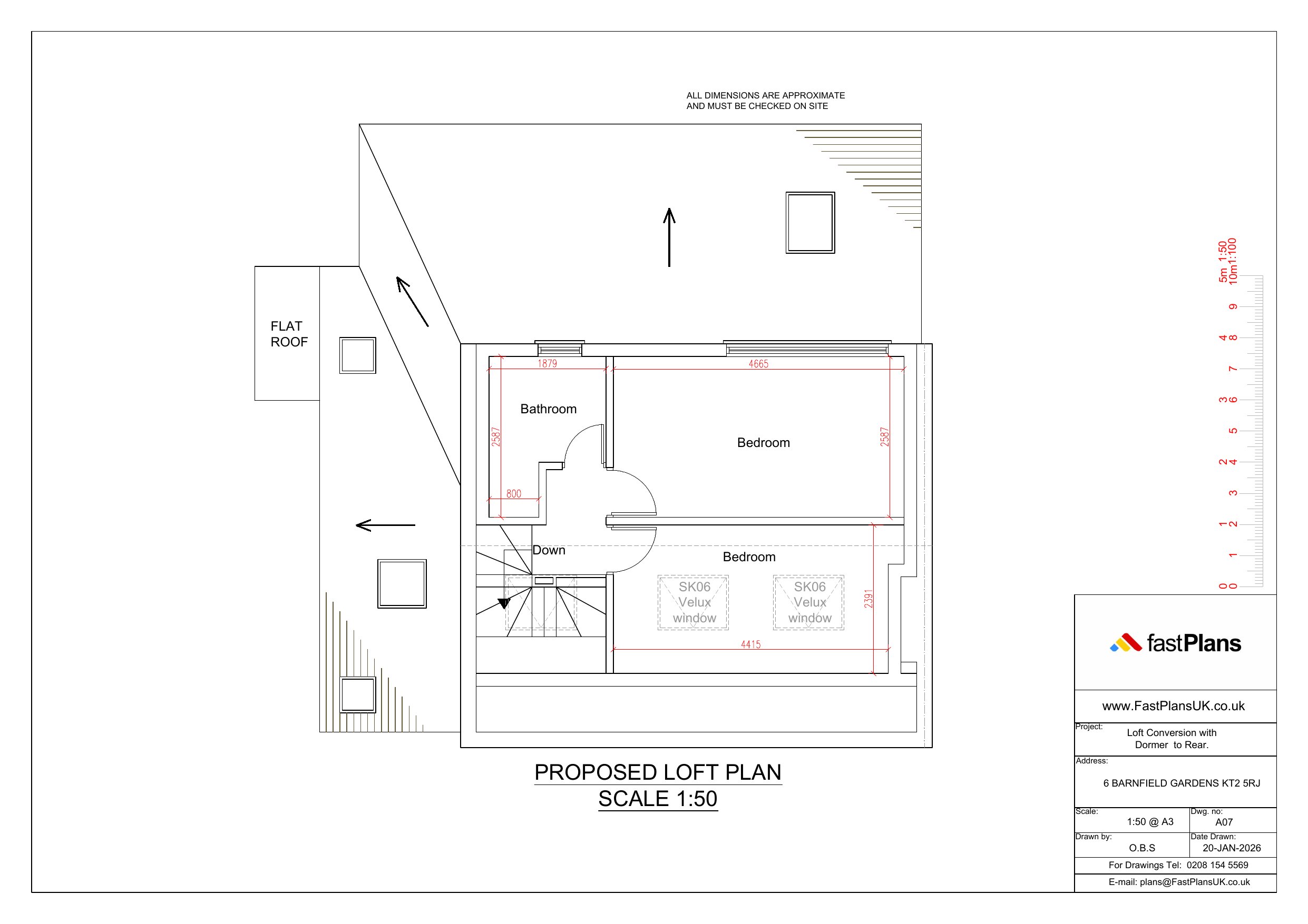
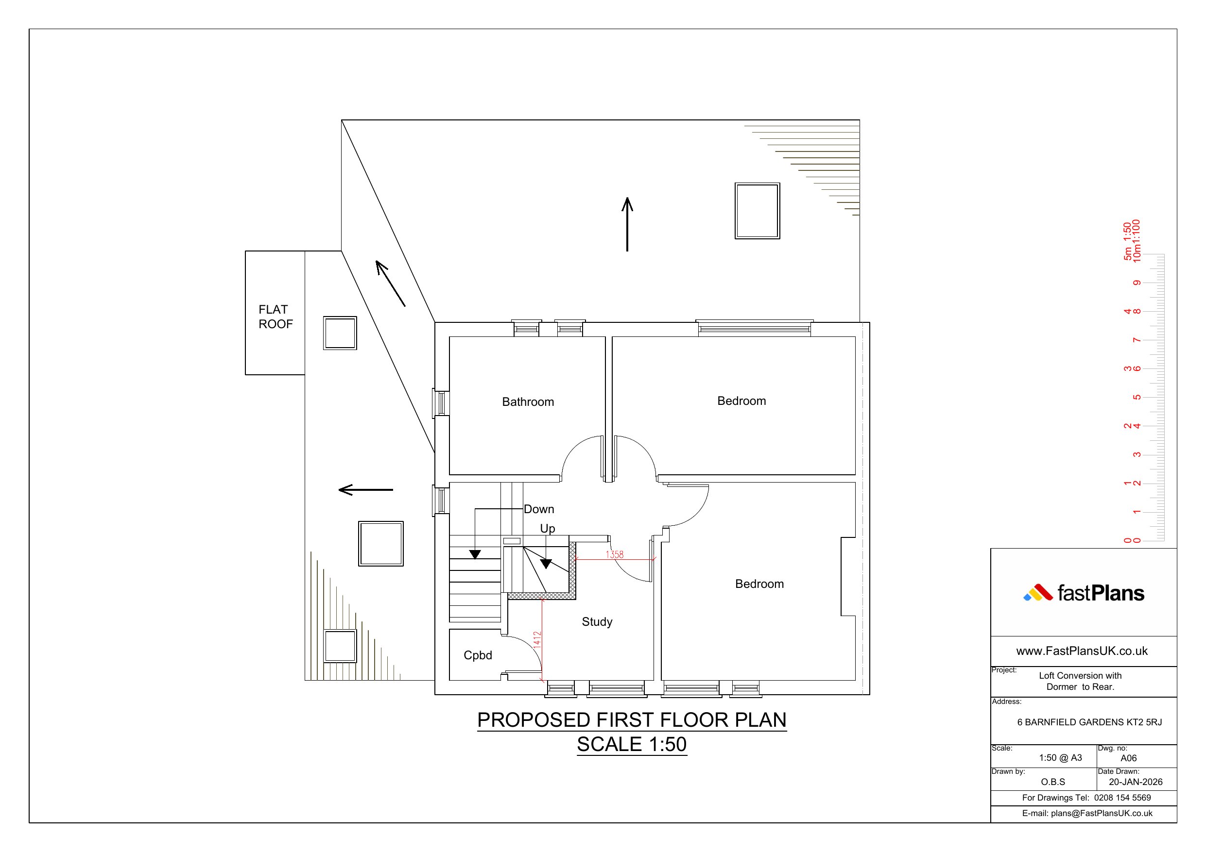
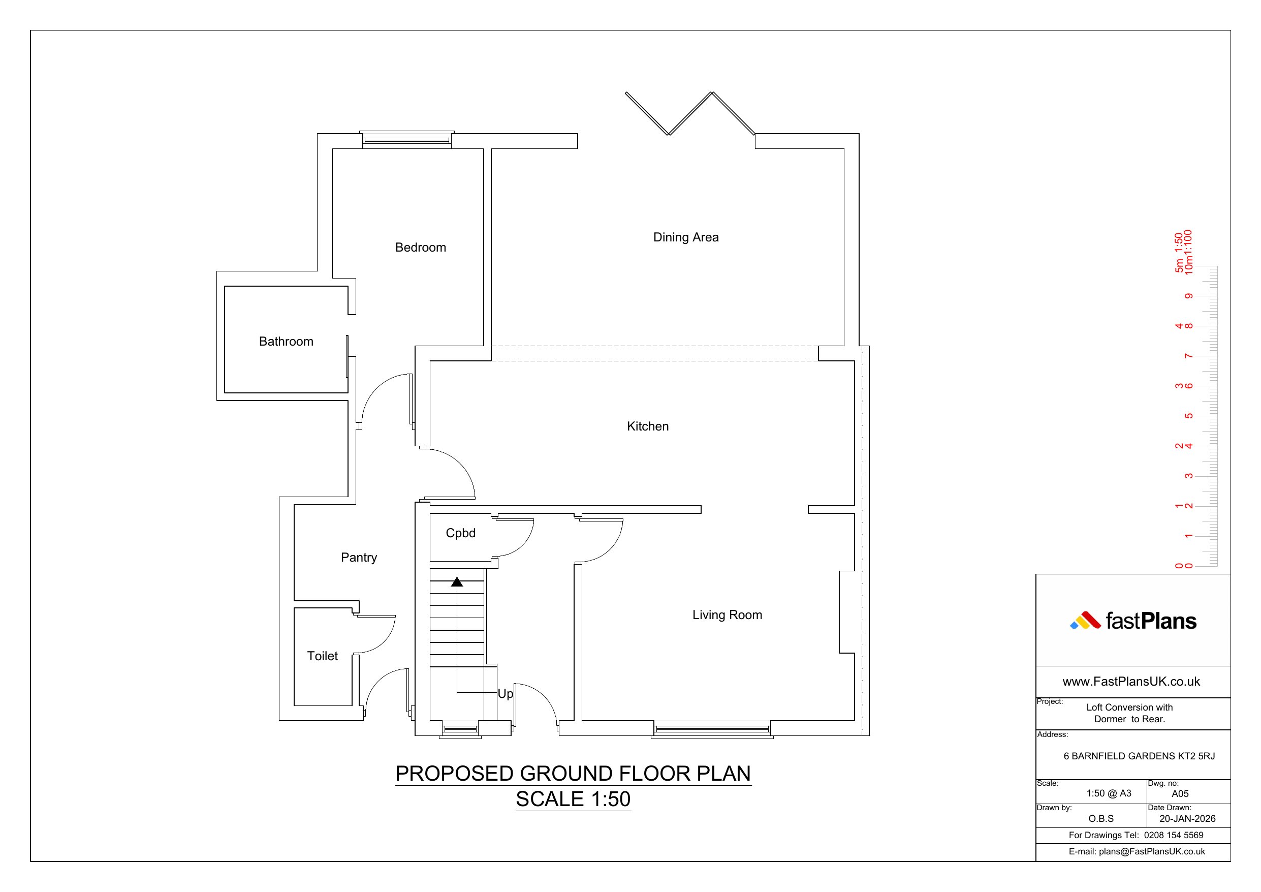
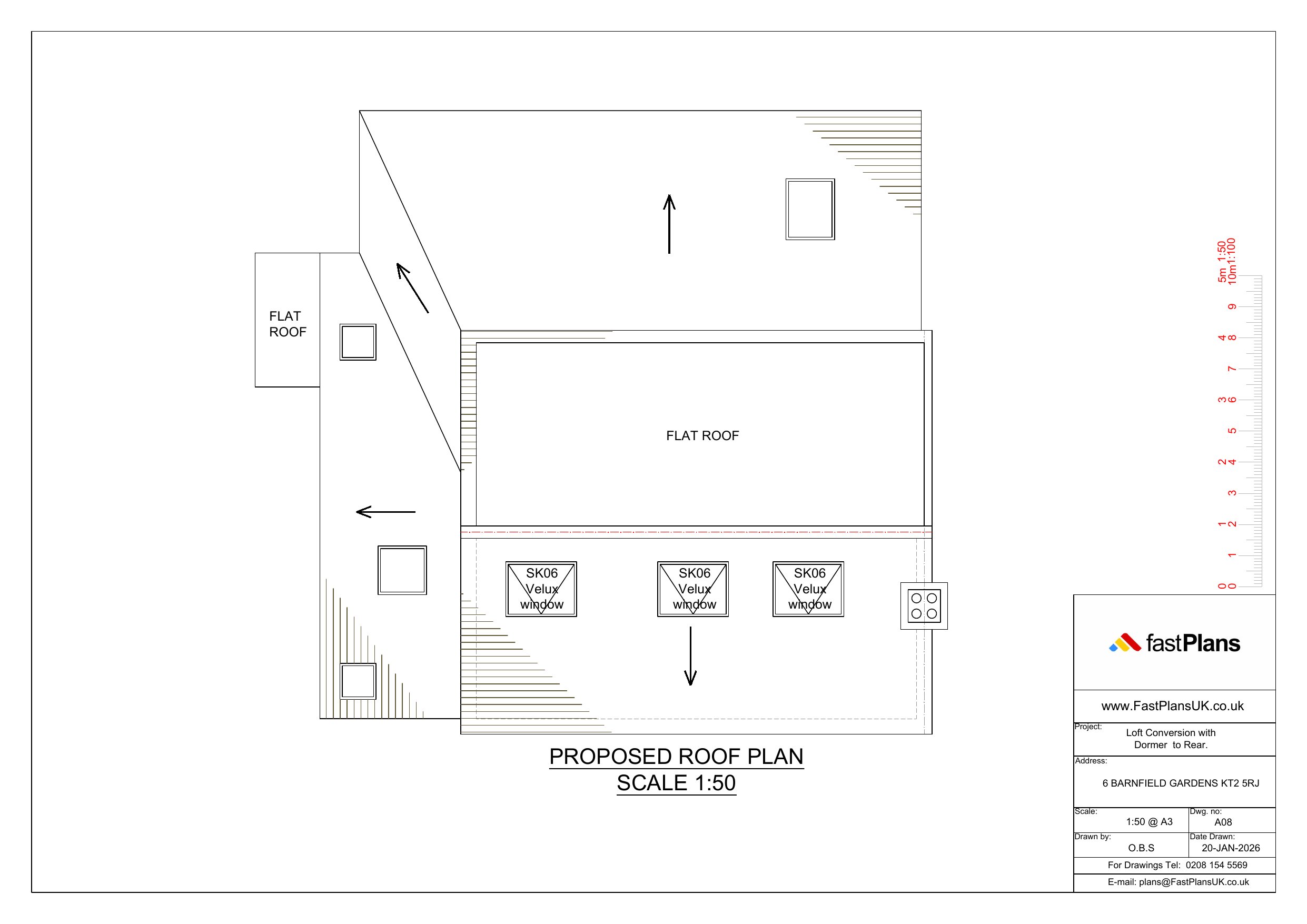
Erection of rear dormer with 3No. Roof lights on front elevation

Documents

Application Form (No personal data)
Application Form
Not yet archived · Original link
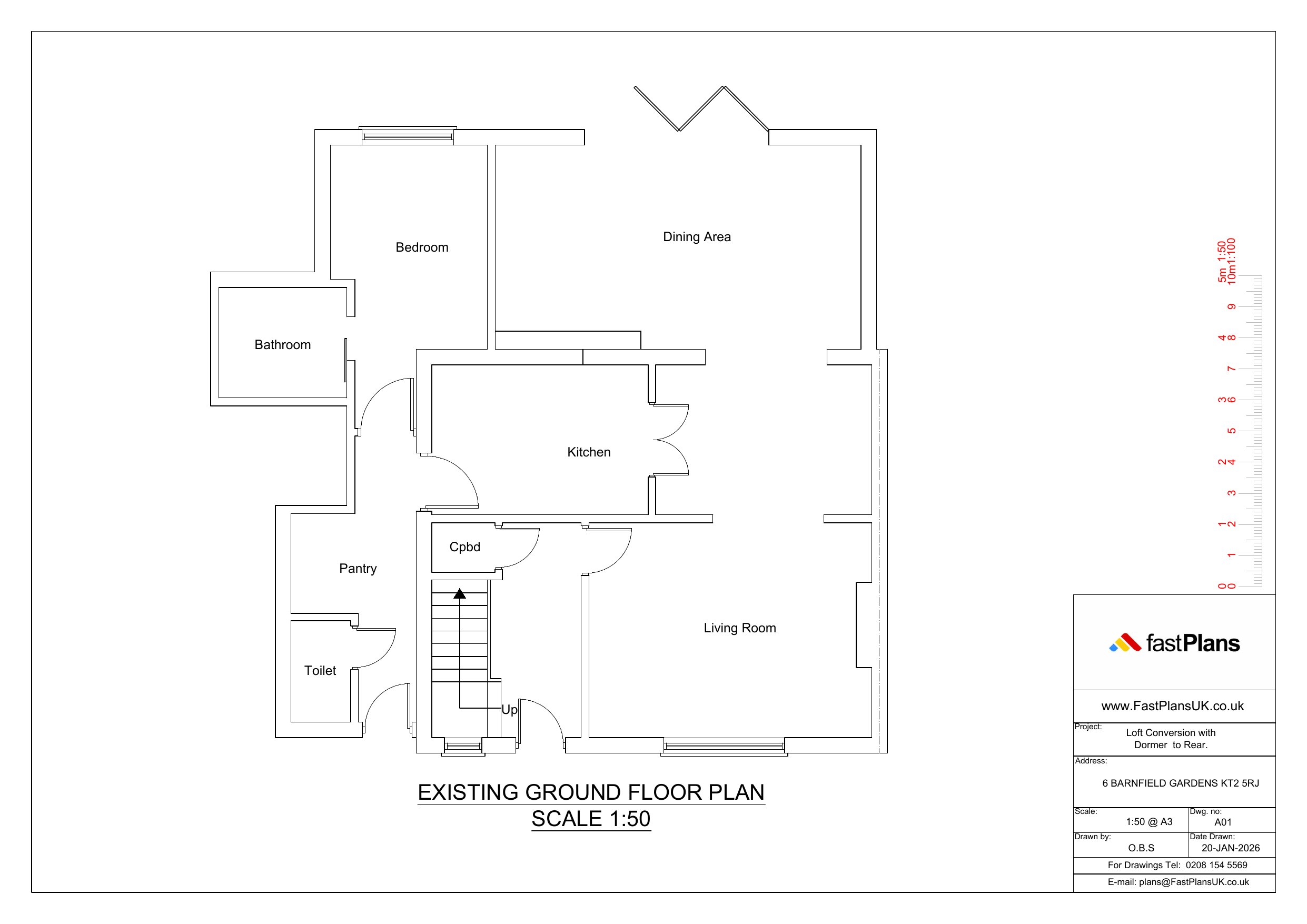
Block and Location Plans
Drawing
Not yet archived · Original link
Drawing
Archived · Original link
Drawing
Archived · Original link
Drawing
Archived · Original link
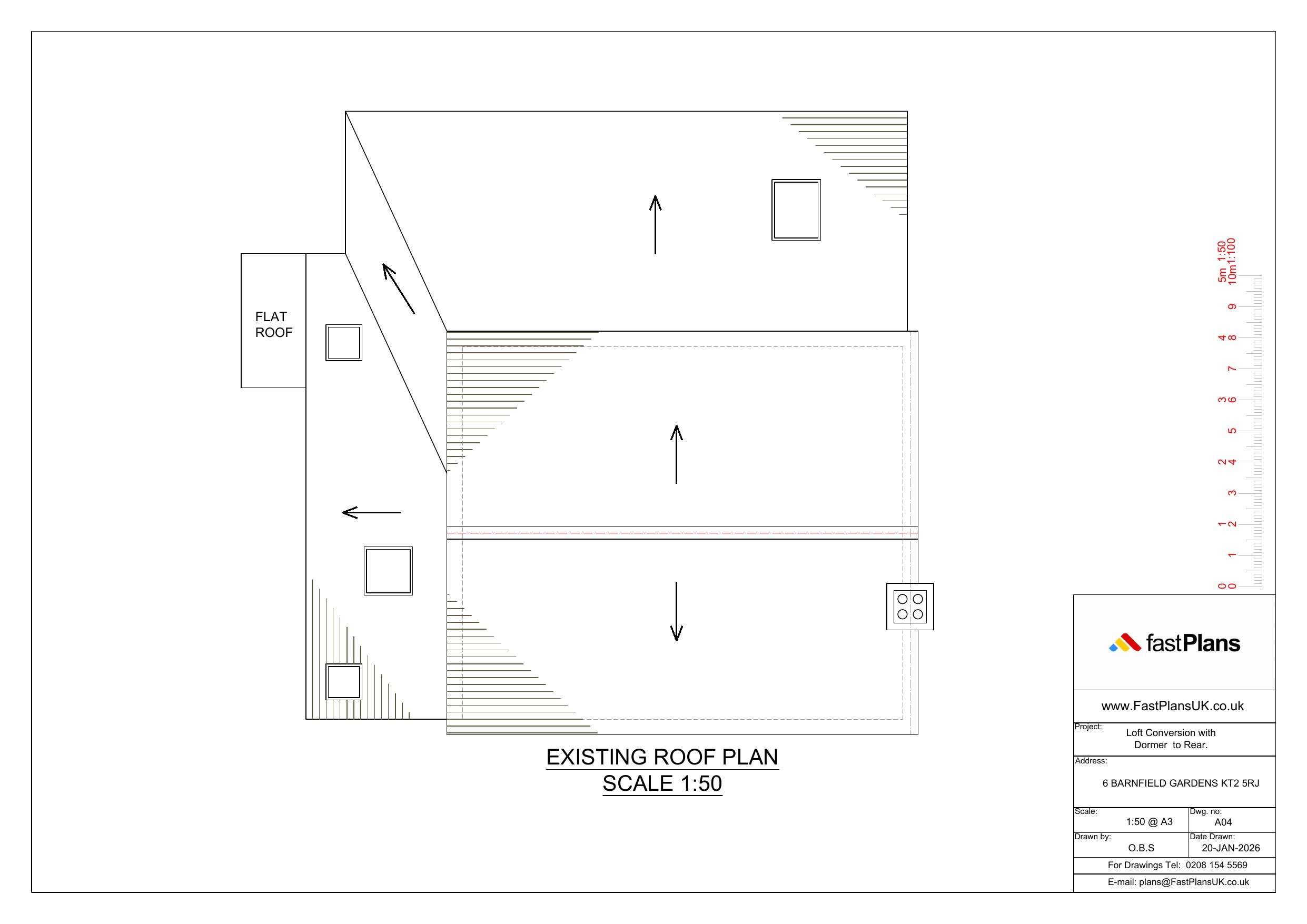
Existing Section AA
Drawing
Not yet archived · Original link
Fire Safety Strategy
Supporting Documents
Not yet archived · Original link
Location Plan
Drawing
Not yet archived · Original link
Proposed Elevations
Drawing
Not yet archived · Original link
Drawing
Archived · Original link
Drawing
Archived · Original link
Proposed Section AA
Drawing
Not yet archived · Original link

Have your say

Your comment matters. Councils must consider every representation that raises material planning considerations.

Write a comment