← Kingston upon Thames

Status

Pending Consideration House extension
Received
Last month
New homes
0

Full proposal

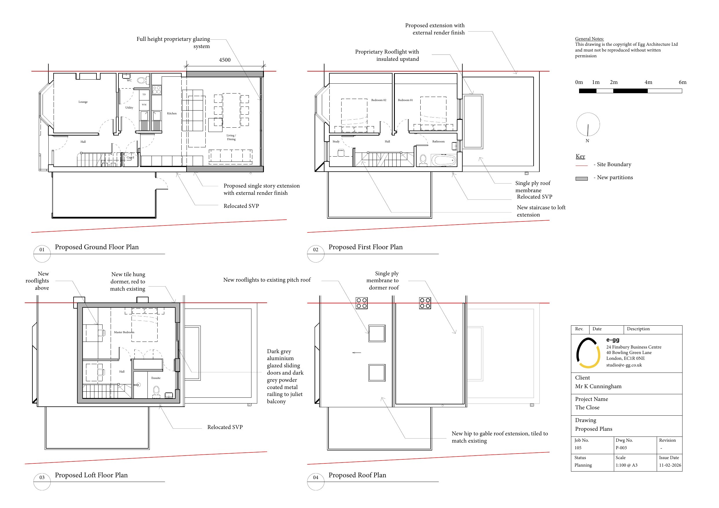
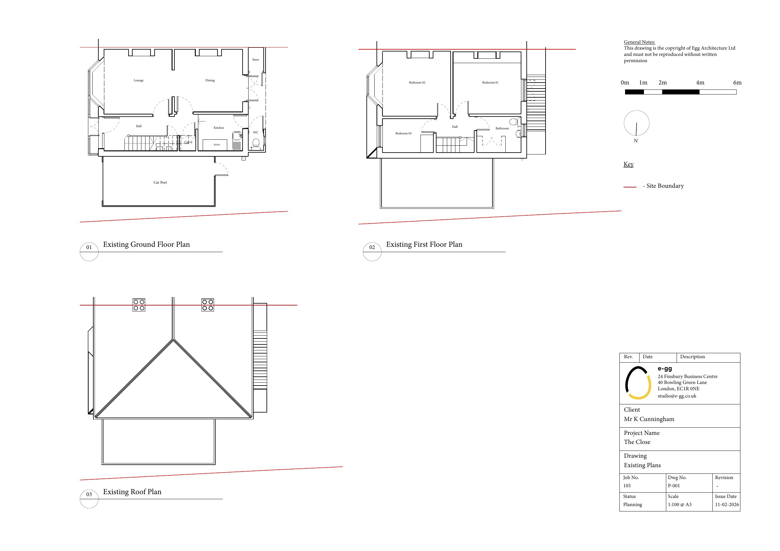
Erection of hip to gable loft extension and rear dormer with Juliet balcony. 2No. Roof lights to front & single storey rear extension and alterations to front porch

Have your say

Your comment matters. Councils must consider every representation that raises material planning considerations.

Write a comment