← Kingston upon Thames

Status

Pending Consideration House extension
Received
Last month
New homes
0

Full proposal

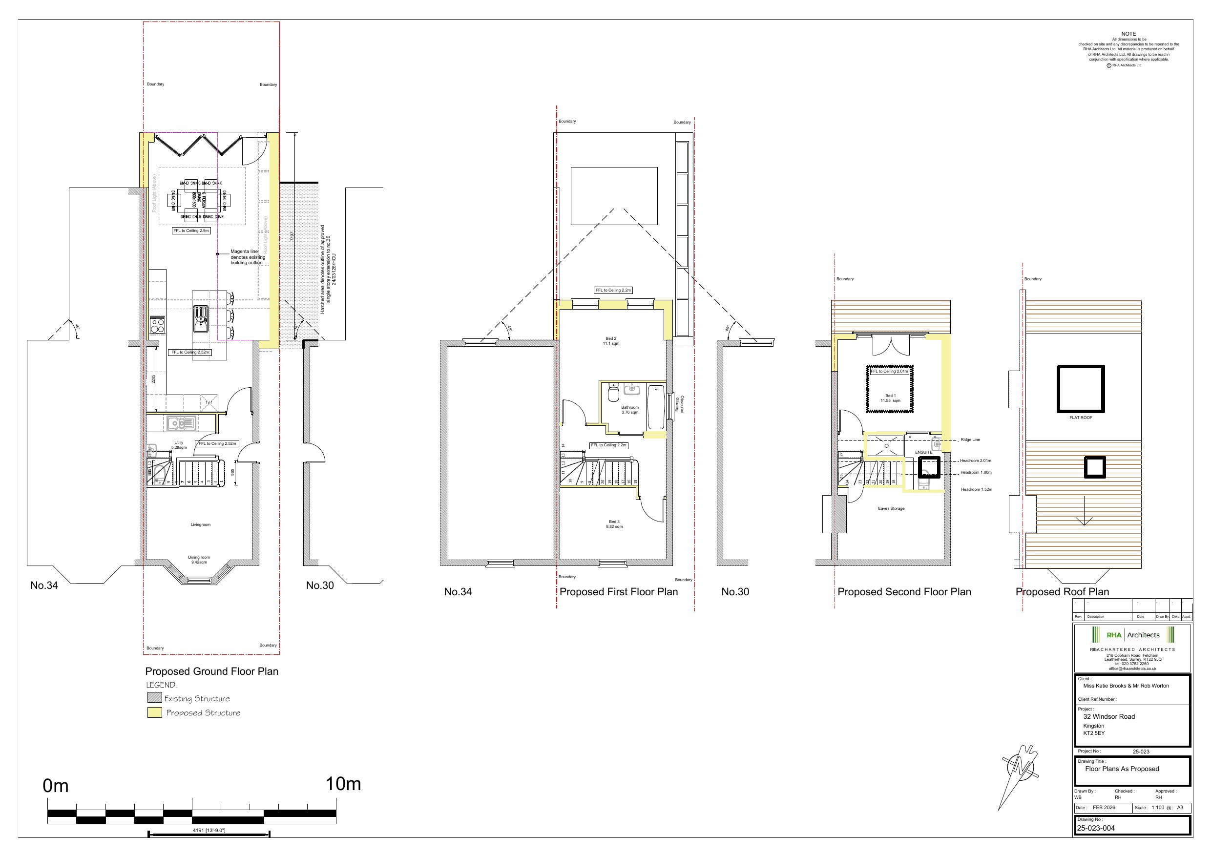
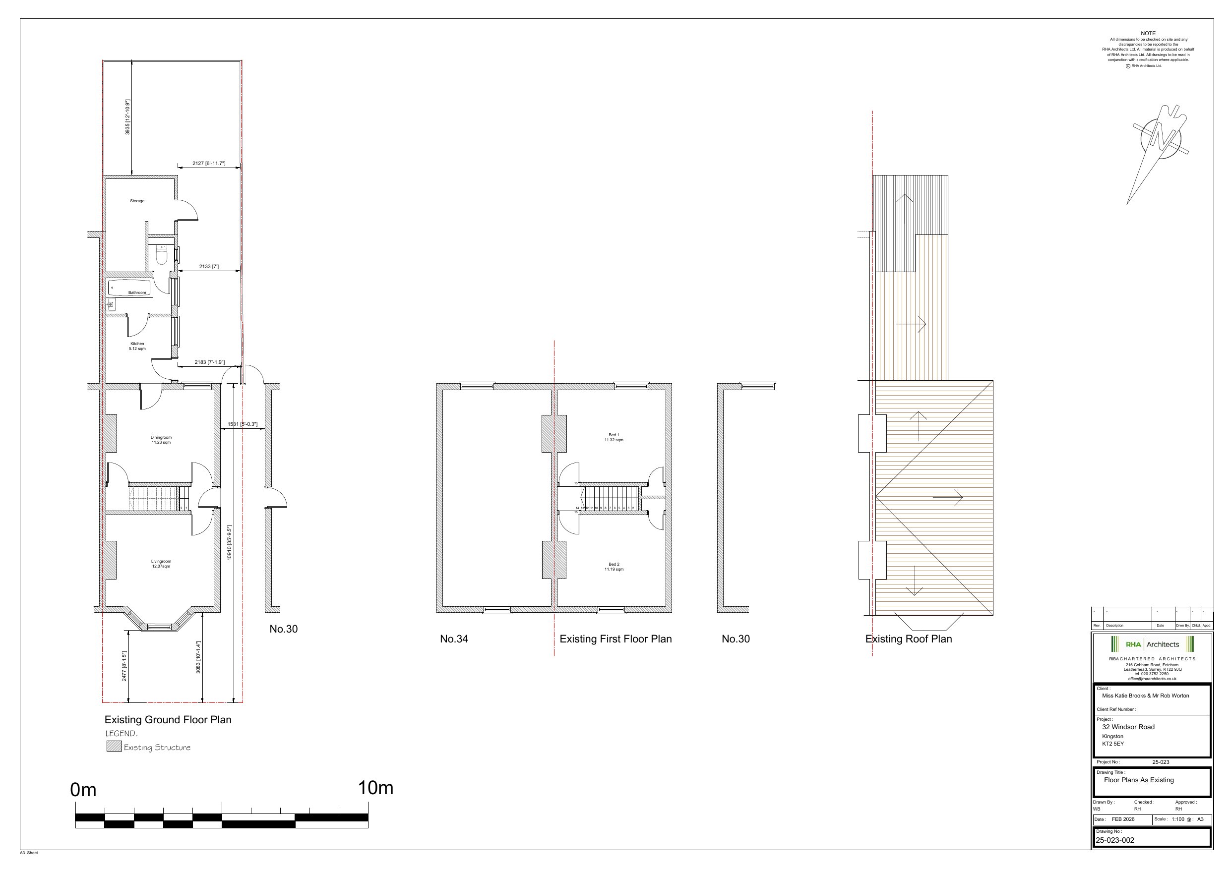
Erection of single storey rear and side, and part first floor rear extensions. Hip to gable and rear dormer roof extensions with Juliet balcony and installation of 1no. front rooflight to facilitate loft conversion

Documents

Application Form
Archived · Original link
Supporting Documents
Archived · Original link
Supporting Documents
Archived · Original link
Drawing
Archived · Original link
Supporting Documents
Archived · Original link
Supporting Documents
Archived · Original link
Drawing
Archived · Original link

Have your say

Your comment matters. Councils must consider every representation that raises material planning considerations.

Write a comment