← Kingston upon Thames

Status

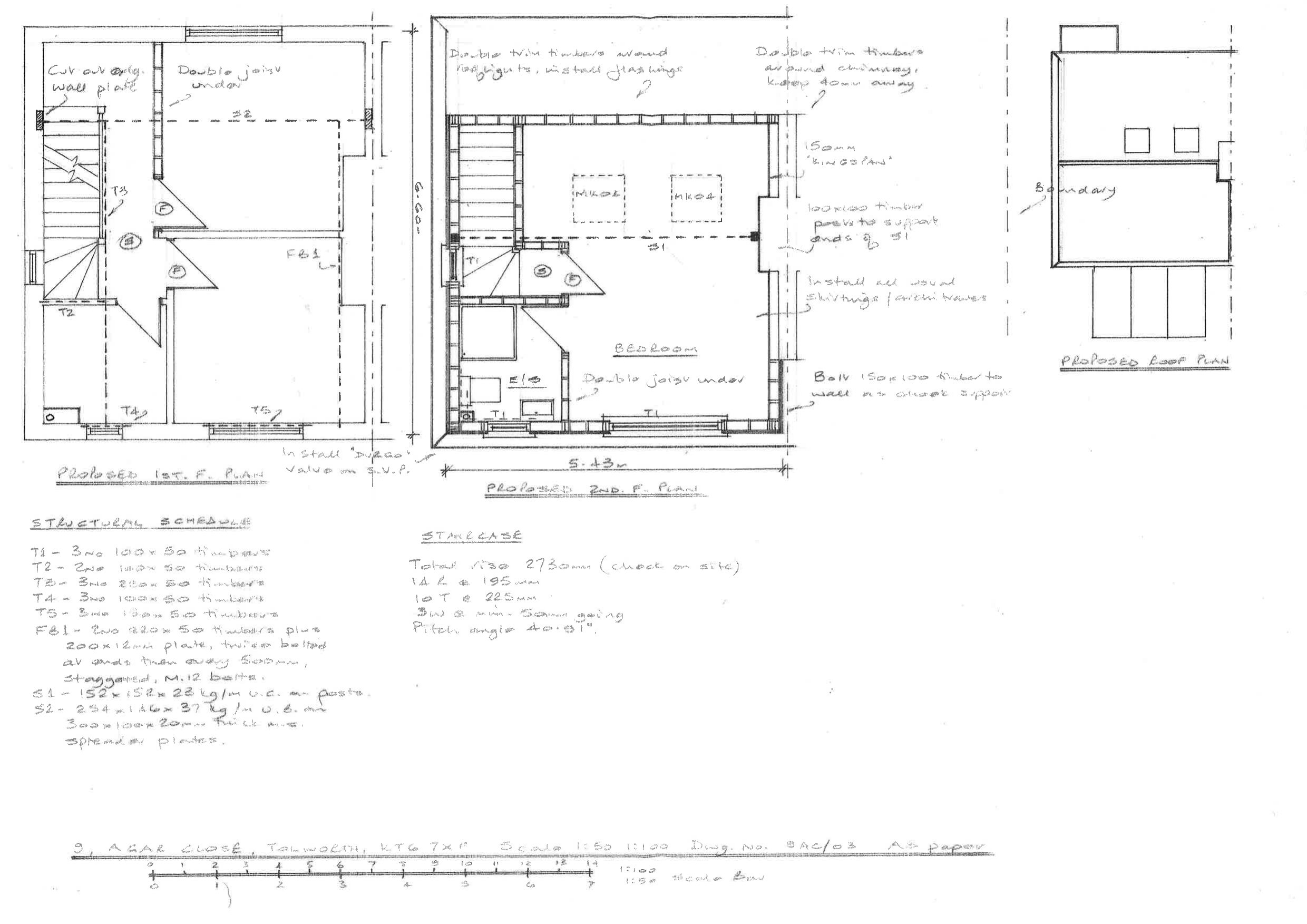
Pending Consideration House extension
Received
Last month
New homes
0

Full proposal

Erection of hip to gable roof extension and rear dormer with 2No. Roof lights to front elevation

Have your say

Your comment matters. Councils must consider every representation that raises material planning considerations.

Write a comment