← Kingston upon Thames

Status

Pending Consideration House extension
Received
Last month
New homes
0

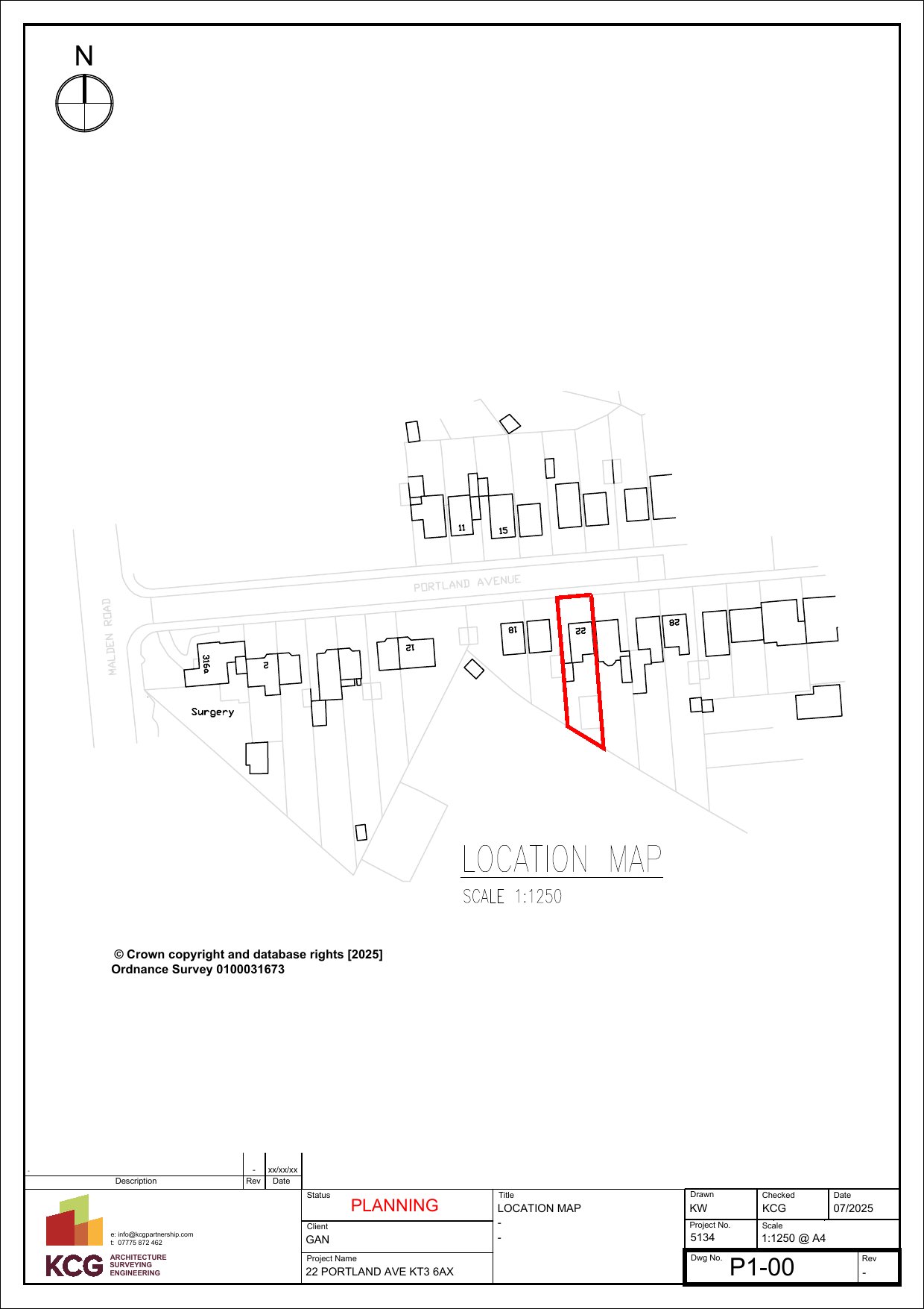
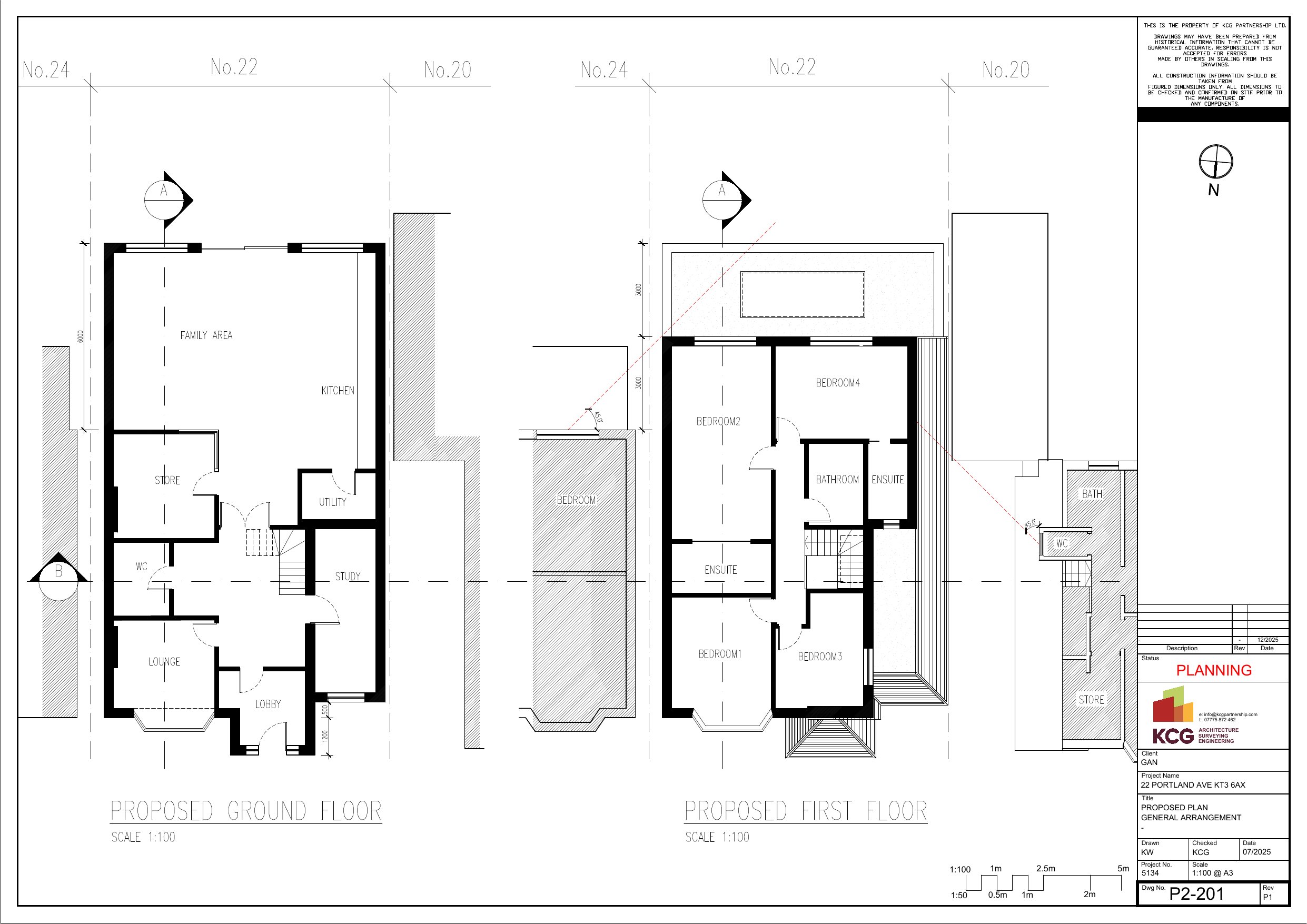
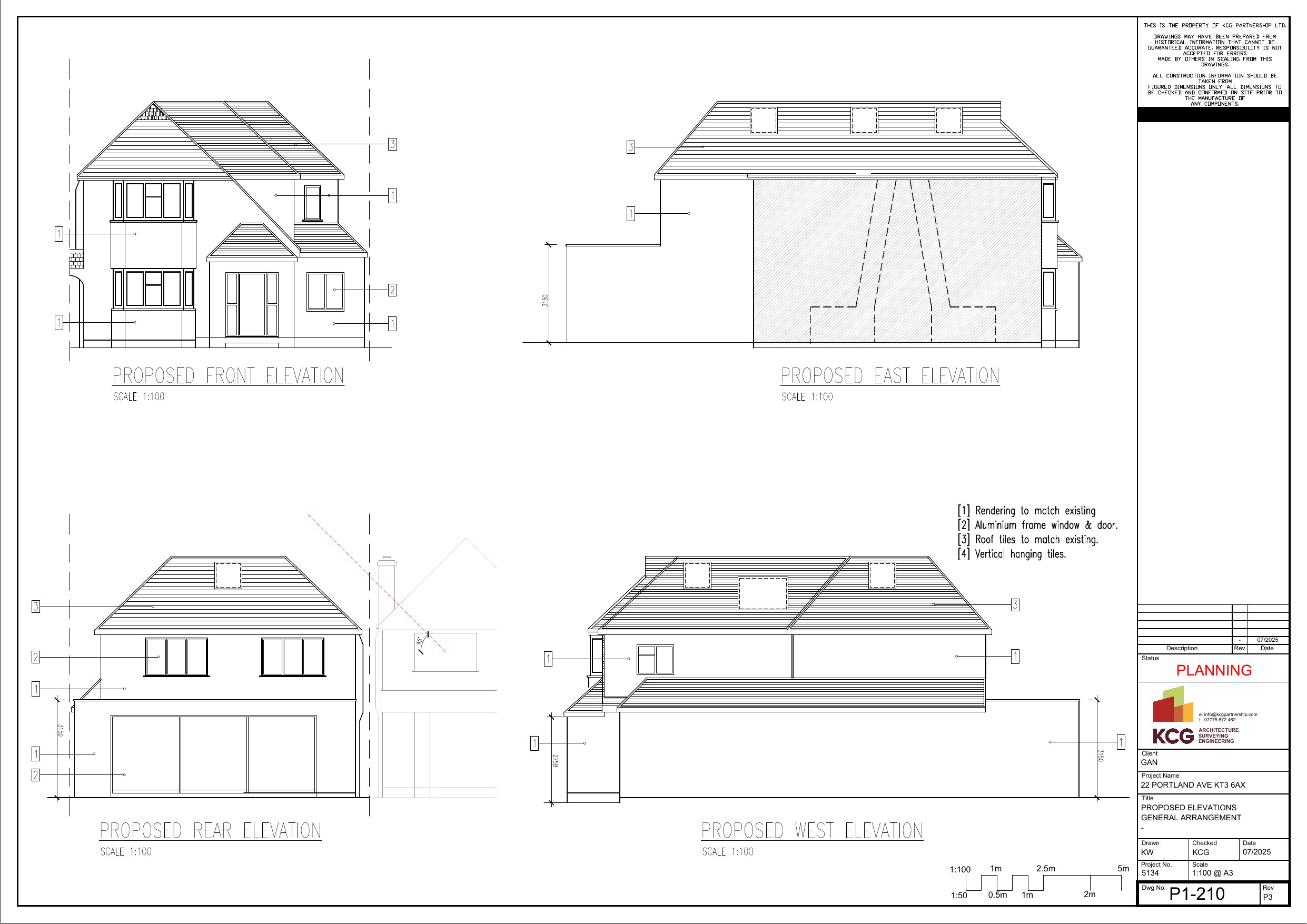
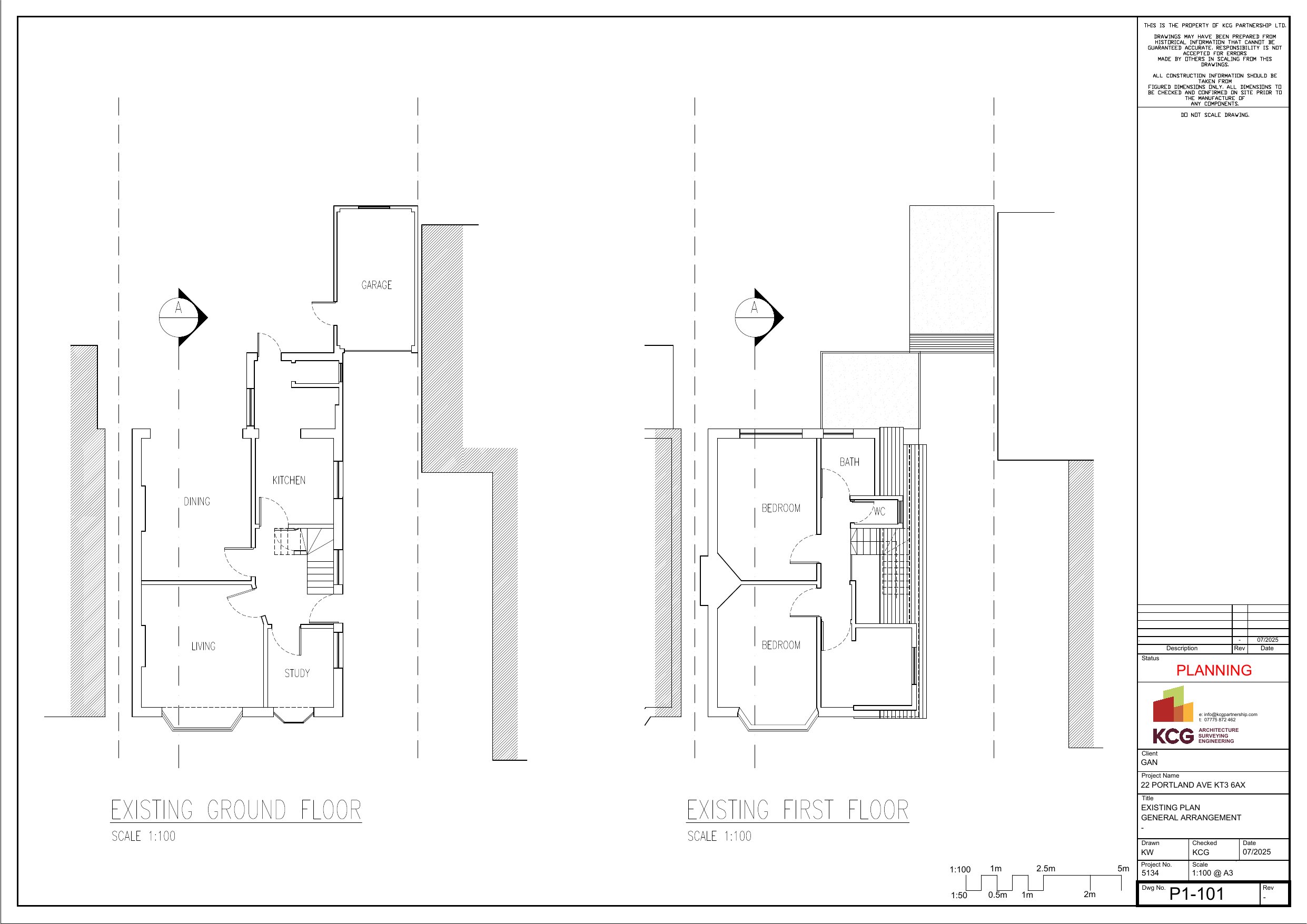
Full proposal

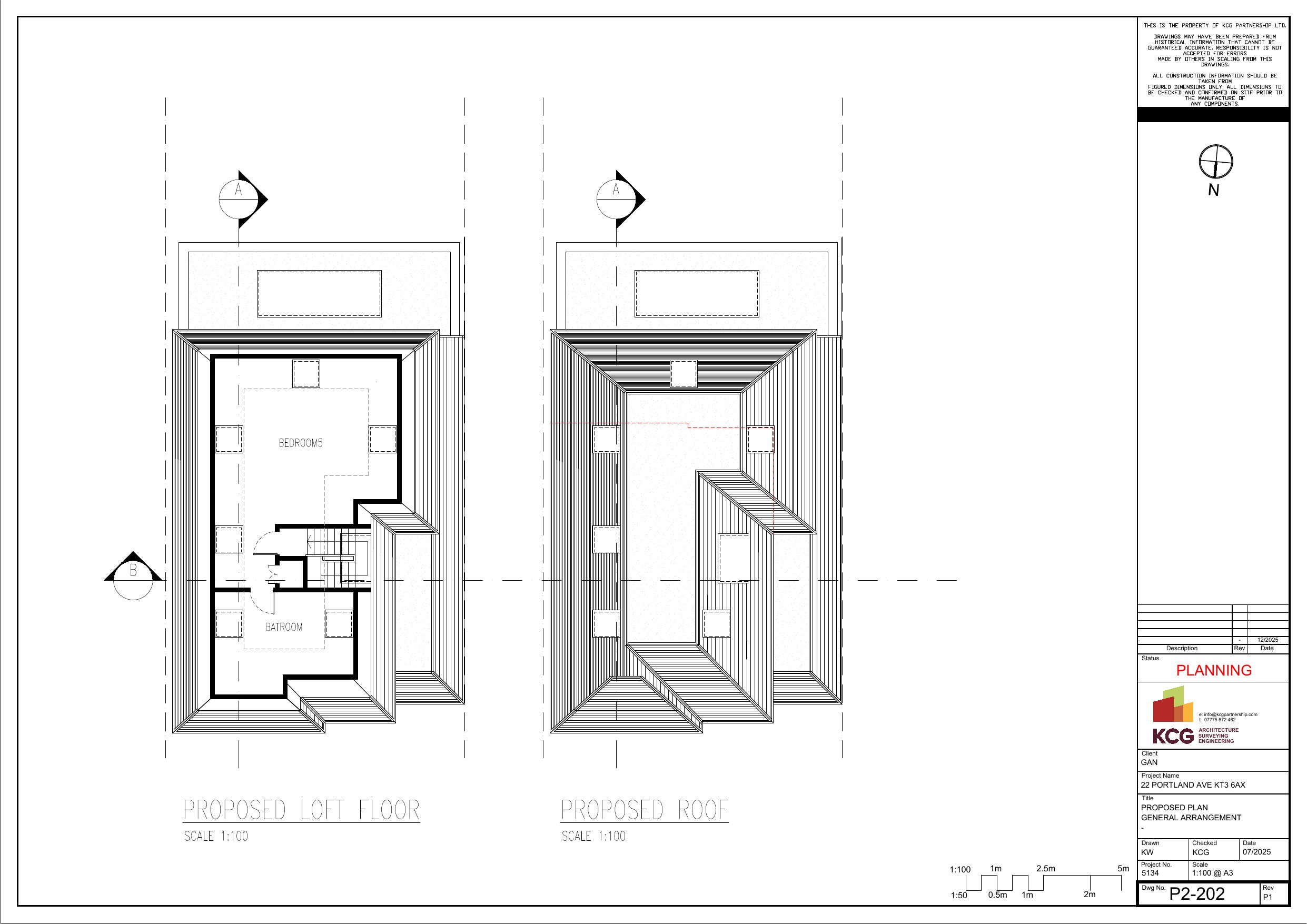
Demolition of detached garage and single storey rear extension. Erection of single storey front, rear/side extension and part first floor rear/side extension. Erection of roof extension with installation of 7nos. rooflights to facilitate loft conversion.

Have your say

Your comment matters. Councils must consider every representation that raises material planning considerations.

Write a comment