← Kingston upon Thames

Status

Pending Consideration House extension
Received
Last month
New homes
0

Full proposal

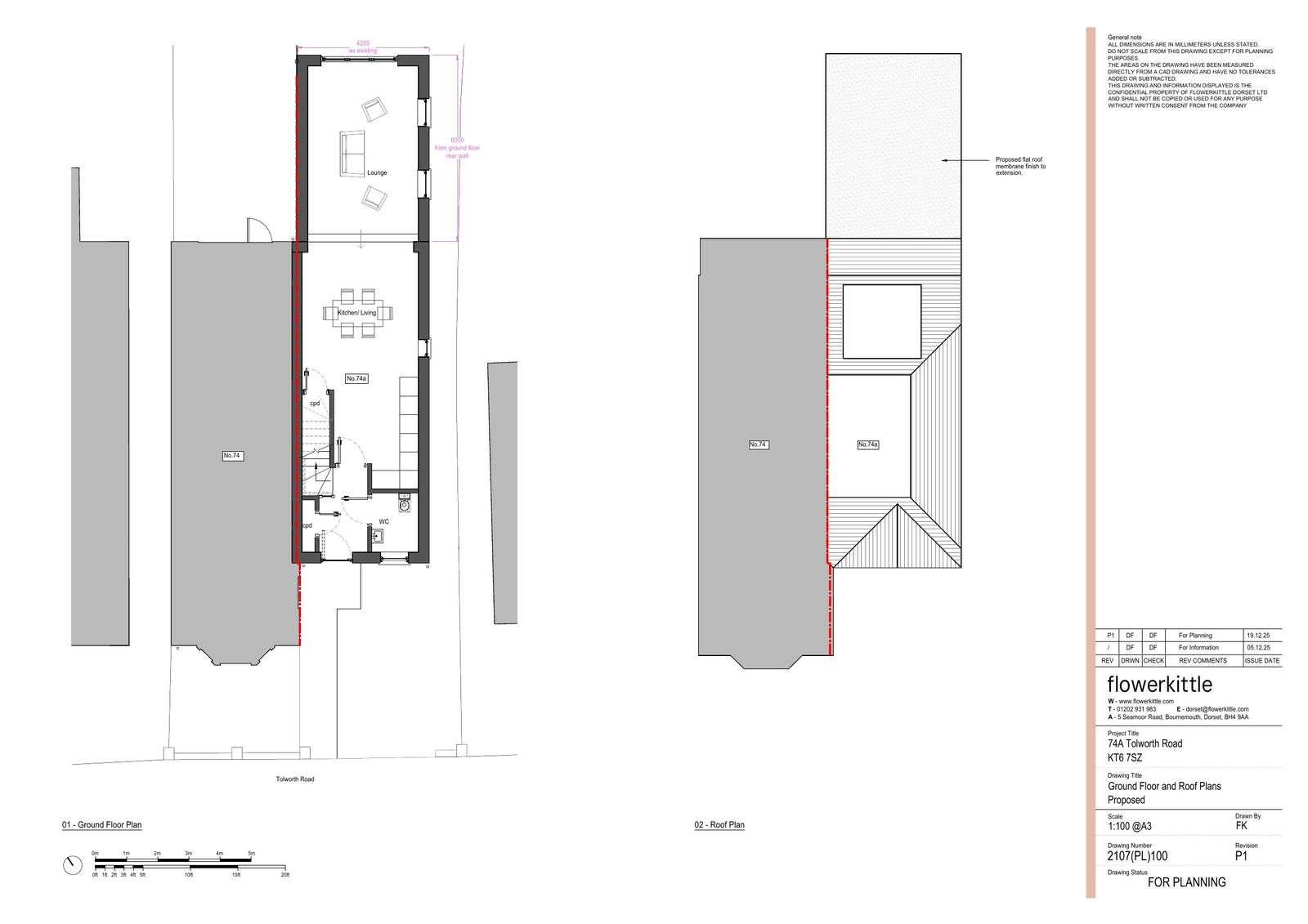
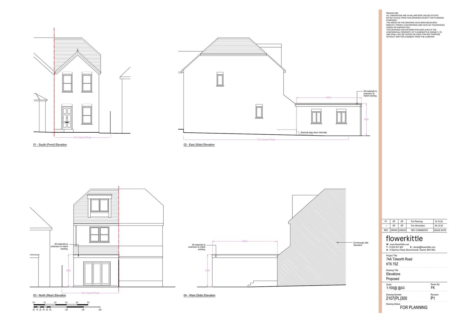
Erection of single storey rear extension (6m in depth, maximum height of 3m and eaves height of 3m)

Have your say

Your comment matters. Councils must consider every representation that raises material planning considerations.

Write a comment